アプリで簡単 物件探し 通知 共有 アプリならではの機能を使ってみる
中古住宅

群馬県高崎市下大島町 群馬八幡駅 中古一戸建て・中古住宅

情報提供元
SUUMO
群馬県高崎市下大島町 群馬八幡駅 中古一戸建て・中古住宅
価格 2700万円
交通
所在地 群馬県高崎市下大島町周辺地図
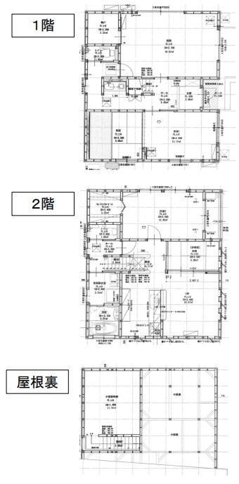
間取り 4LDK
建物面積 115.09m2(34.81坪)(登記) 土地面積 432.81m2(130.92坪)(登記)
築年月 2018年5月 築年数 築7年6ヶ月
おすすめポイント
■土地広々130坪■水廻り集中設計 ■屋根裏収納付◆土地広々でBBQや車もたくさん停められます☆彡◆開放感と採光にこだわったLDK☆彡◆屋根裏収納付きでお部屋すっきり(^^♪マイホーム探しは、コアライブにご相談ください!■自己資金0円から住宅購入できます!■他社様でご紹介されている物件も一緒にご提案できます。■他社様や過去にローンお断りされた方。ローンに自信あります。■平日のご見学希望大歓迎です。ご見学予約は0120-919-727【通話料無料】までお気軽にお電話ください。スマートフォンの方は青いバナーより、お問い合わせいただけます。
日当り良好・閑静な住宅街・駐車場3台分以上・整形地・浴室1坪以上
物件を見たい、物件や住環境の詳しい情報やローン相談など、
お問い合わせ先
(株)KOALIVE―コアライブ―

詳細情報

価格 2700万円
所在地 群馬県高崎市下大島町周辺地図
交通
  • JR信越本線 群馬八幡駅 徒歩38分乗換案内
間取り 4LDK 築年月(築年数) 2018年5月(築7年6ヶ月)
建物面積 115.09m2(34.81坪)(登記) 建物構造・規模 木造2階建
土地面積 432.81m2(130.92坪)(登記) 土地権利 所有権
私道面積 借地期間・地代
接道状況 北12.9m 駐車場
用途地域 無指定 都市計画 調整区域
建ぺい率/容積率 70%/200% 現況
地目 引渡可能時期 相談
情報提供元 SUUMO [030Z77787581] 情報公開日
情報更新日 次回更新予定日 随時

設備など

1種低層地域 - 即入居可 - 売主・代理 -
駐車2台以上 平屋 - 本下水 -
都市ガス - カウンターキッチン - 床暖房 -
ウォークインクローゼット バリアフリー -
設備 バルコニー・トイレ・収納スペース・洗面所・浴室乾燥機・ウォークインクローゼット・シャンプードレッサ・温水洗浄便座・システムキッチン・風呂・庭・LPガス・対面K・トイレ2ヶ所・床下収納・ルーフバルコニー・衣類乾燥機・複層ガラス・上水道
リフォーム履歴 -
リノベーション履歴 -
備考 <物件名>下大島町(群馬八幡駅) 2700万円/<土地権利>所有権/<間取り>4LDK/<特徴>\☆中古住宅の事ならコアライブへ☆/\☆安心のアフターサービス☆/、フラット35Sに対応・年内引渡可・駐車2台可・駐車3台以上可・土地100坪以上
販売戸数:1戸
特記事項 日当り良好・閑静な住宅街・駐車場3台分以上・整形地・浴室1坪以上

省エネ性能

エネルギー消費性能 -
断熱性能 -
目安光熱費 -

群馬県高崎市下大島町 周辺地図情報

地図
※地図上に表示される物件の位置は付近住所に所在することを表すものであり、実際の物件所在地とは異なる場合がございます。
   正確な物件所在地は、取扱い不動産会社にお問い合わせください。
物件を見たい、物件や住環境の詳しい情報やローン相談など、
お問い合わせ先
(株)KOALIVE―コアライブ―

不動産会社情報

お問い合わせ先 商号:(株)KOALIVE―コアライブ―
免許番号:群馬県知事(1)第007866号
所在地:群馬県高崎市小八木町2037-1
TEL:0120-919727
取引態様:一般媒介
管理コード:73087
共有する
QRコード
物件を見たい、物件や住環境の詳しい情報やローン相談など、
お問い合わせ先
(株)KOALIVE―コアライブ―

高崎市の暮らしデータ

人口などの統計情報

世帯数 160565世帯
人口総数 367861人
転入者数 14201人
転入率(人口1000人当たり)
38.60人
転出者数 13039人
転出率(人口1000人当たり)
35.45人
土地平均価格
住宅地
51829円/m2
商業地
138042円/m2

結婚・育児の助成金

子育て関連の独自の取り組み 【高崎市子育てなんでもセンター】子育て中の人や妊娠中の人が、1ヶ所で子育て支援、就労支援、託児等のさまざまな相談ができ、必要な支援を受けられる子育て支援の拠点であり、安心して子どもを産み、育てることができるよう、市・関係機関・NPO団体等が一体となって運営している。特に、同センター内にある託児施設「高崎キッズサポートかしの木」は、子育て中のリフレッシュとして、買い物や映画鑑賞等の際に気軽な利用が可能で、大変好評を頂いている。さらに、人口増加地域である群馬地域において、託児施設「高崎キッズサポートけやき」を開設し、子育て環境の充実を図っている(利用料:1時間300円)。
出産祝い あり
公立保育所数 21所(うち0歳児保育を実施している保育所:21所)
私立保育所数 32所(うち0歳児保育を実施している保育所:32所)
保育所入所待機児童数 0人
認定こども園数 53園 預かり保育実施園数 公立:8園 私立:7園
学校給食 【小学校】完全給食【中学校】完全給食
公立中学校の学校選択制 一部実施
子ども・学生等医療費助成<通院>対象年齢 18歳3月末まで 子ども・学生等医療費助成<入院>対象年齢 18歳3月末まで

高崎市の治安・ごみ収集情報

公共料金・インフラ

ガス料金(22m3使用した場合の月額) 東京瓦斯株式会社(群馬地区)3648円
東京瓦斯株式会社(群馬南地区)3451円
水道料金(口径20mmで20m3の月額) 高崎市(倉渕地域)1450円
高崎市(吉井地域)2678円
高崎市(新町地域)2075円
高崎市(榛名地域)2408円
高崎市(箕郷地域)2311円
高崎市(群馬地域)1870円
高崎市(高崎地域)2506円
下水道料金(20m3を使用した場合の月額) 高崎市(吉井地域)2310円
高崎市(新町地域)2090円
高崎市(榛名地域)2420円
高崎市(箕郷地域)2311円
高崎市(群馬地域)2090円
高崎市(高崎地域)2173円
下水道普及率 77.3%

安心・安全

建物火災出火件数 52件
人口10000人当たり
1.39件
刑法犯認知件数 2200件
人口1000人当たり
5.90件
ハザード・防災マップ あり

医療

一般病院総数 24ヶ所
一般診療所総数 353ヶ所
小児科医師数 61人
小児人口10000人当たり
14.07人
産婦人科医師数 29人
15~49歳女性人口1万人当たり
4.17人
介護保険料基準額(月額) 6592円

ごみ

家庭ごみ収集(可燃ごみ) 無料
備考
-
家庭ごみの分別方式 【高崎地域・吉井地域・榛名地域・箕郷地域・群馬地域・倉渕地域】3分別16種〔可燃ごみ 不燃ごみ 資源ごみ(飲料缶、びん類[無色透明のびん、茶色のびん、その他の色びん]、ペットボトル、古紙類[新聞紙、段ボール、紙パック、雑誌・古本、雑紙、シュレッダー]、危険物[スプレー缶・カセットボンベ・ライター、乾電池、蛍光灯])〕 【新町地域】3分別17種〔可燃ごみ 不燃ごみ 資源ごみ(飲料缶、びん類[無色透明のびん、茶色のびん、その他の色びん]、ペットボトル、古紙類[新聞紙、段ボール、紙パック、雑誌・古本、雑紙、シュレッダー]、危険物[スプレー缶・カセットボンベ・ライター、乾電池、蛍光灯]、白色トレイ)〕
家庭ごみの戸別収集 一部実施(高齢者ごみ出しSOS)
粗大ごみ収集 あり
備考
有料。戸別収集。事前申込制。
生ごみ処理機助成金制度 あり
上限金額
30000円
上限比率
50.0%

高崎市の住まいの給付金

中古購入

利子補給制度 あり
上限金額
-
備考
【高崎市移住促進資金利子補給金制度】倉渕、吉井、榛名地域への移住・定住のための住宅取得に際して受けた融資の利子5年間分を電子地域通貨「高崎通貨」にて全額補給する。
補助/助成金制度 なし

増築・改築・改修

利子補給制度 なし
補助/助成金制度 あり
上限金額
20万円
備考
【高崎市住環境改善助成事業】高崎市に住宅を所有し、そこに居住している方が市内の施工業者を利用して住宅の改修・修繕する場合に、その経費の一部を助成。費用の30%(上限20万円)。他要件あり。
暮らしデータ提供元:生活ガイド.com
※行政機関により公表していない地域及びデータがございます。東京23区以外の政令指定都市は、市全体のデータとして表示しています。
※提供データには細心の注意を払っておりますが、調査後に変更がある場合があります。 最新の情報につきましては各市区役所までお問い合わせいただくか、自治体HPなどをご確認ください。

この物件を見た人はこんな物件も見ています

OCN×ドコモ光新規お申込みで合計最大137,280円相当おトク!特典の内訳・適用条件など詳細はこちら

高崎市内の各駅の住みやすさ

他のエリアから探す

高崎市の詳細地域から一戸建て物件を探す

相生町赤坂町阿久津町足門町飯玉町飯塚町石原町井出町井野町岩押町岩鼻町江木町大橋町大八木町沖町貝沢町片岡町金古町上大島町上小鳥町上里見町上佐野町上滝町上中居町上並榎町上室田町上和田町北久保町倉賀野町倉渕町岩氷倉渕町川浦倉渕町水沼剣崎町小八木町神戸町新後閑町柴崎町芝塚町島野町下大島町下小鳥町下小塙町下里見町下佐野町下豊岡町下中居町下之城町下室田町正観寺町城山町新保町新町菅谷町高関町高浜町台新田町台町筑縄町寺尾町中泉町中居町中大類町中尾町中里見町中島町中豊岡町中室田町並榎町成田町根小屋町乗附町萩原町鼻高町浜川町浜尻町東貝沢町引間町聖石町日高町福島町藤塚町双葉町保渡田町本郷町町屋町箕郷町生原箕郷町柏木沢箕郷町上芝箕郷町白川箕郷町富岡箕郷町東明屋箕郷町矢原三ツ寺町宮沢町宮原町宮元町棟高町元島名町矢島町八千代町矢中町柳川町山名町八幡町弓町吉井町池吉井町下長根吉井町神保吉井町長根吉井町南陽台吉井町本郷吉井町吉井吉井町吉井川四ツ屋町楽間町連雀町若田町我峰町

近辺の市区から探す

前橋市藤岡市富岡市安中市甘楽郡甘楽町佐波郡玉村町

周辺の駅から探す

信越本線
高崎北高崎群馬八幡安中磯部松井田西松井田

住宅ローンの返済額一覧

物件価格 2700万円に対して、年率 で、頭金 の場合
↓ボーナス 35年間 30年間 25年間 20年間 15年間 10年間
0万円 57,108円/月 65,821円/月 78,027円/月 96,345円/月 126,888円/月 187,993円/月
5万円 48,023円/月 56,846円/月 69,160円/月 87,586円/月 118,236円/月 179,447円/月
10万円 38,937円/月 47,870円/月 60,293円/月 78,828円/月 109,585円/月 170,902円/月
15万円 29,852円/月 38,894円/月 51,427円/月 70,069円/月 100,933円/月 162,357円/月
20万円 ローン不可 ローン不可 42,560円/月 61,310円/月 92,282円/月 153,812円/月
25万円 ローン不可 ローン不可 ローン不可 52,552円/月 83,630円/月 145,267円/月
30万円 ローン不可 ローン不可 ローン不可 ローン不可 74,979円/月 136,722円/月
支払い利息合計 1,996,420円~ 1,704,920円~ 1,418,450円~ 1,133,280円~ 849,170円~ 565,380円~
※元利均等返済方式で試算しています。 「円」の単位以下の端数金額は「切り捨て」として計算しております。
※金利は、固定金利として計算しております。
※上記の住宅ローン返済額一覧は、あくまで試算であり、将来の金利動向により、実際のご返済額とは異なります。
※ボーナス支払総額が総支払額の50%を超えている場合、上記の表では「ローン不可」となります。
※住宅ローン返済額一覧の数値は、住宅ローンのお申し込みやご融資をお約束するものではございません。
物件を見たい、物件や住環境の詳しい情報やローン相談など、
お問い合わせ先
(株)KOALIVE―コアライブ―

掲載情報の著作権は提供元企業等に帰属します。
Copyright:(C) 2025 Recruit Co., Ltd.
アプリで簡単 物件探し 大手不動産サイトの情報から一括検!プッシュ通知で物件を見逃さない
App Storeからダウンロード Google Playで手に入れよう QRコード