工場・倉庫・他 姫路市飾東町小原/中古戸建(オーナーチェンジ) 収益物件・投資物件

情報提供元
LIFULL HOME'S
価格 400万円 表面利回り - 年間予定収入 -
所在地 兵庫県姫路市飾東町小原
交通 山陽本線 姫路駅 バス35分/小原(姫路市)バス停 停歩4分
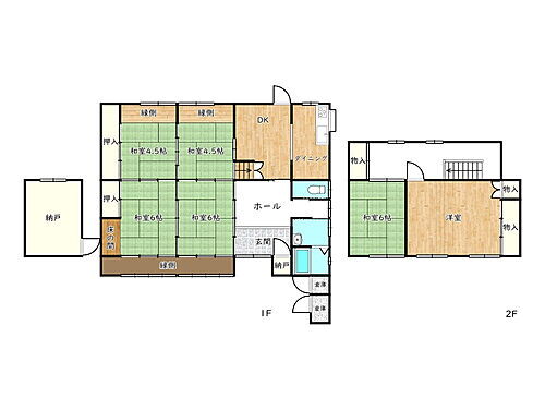
建物構造 木造 建物面積 129.9m2 土地面積 310.56m2(公簿)
現況 居住中 間取り 6DK 築年月 1968年3月(築57年9ヶ月)
おすすめポイント
くらすONEは一級建築士、宅地建物取引士、専属デザイナー、各分野のプロが在籍している不動産仲介をはじめ注文住宅やリフォームにも特化しているお店です♪住まいに関する事は何でも気軽にお問い合わせください。

販売状況、物件の見学、詳細を知りたい方はこちらからお問い合わせください(無料)

お問い合わせ先
株式会社くらすONE

詳細情報

種別 工場・倉庫・他
価格 400万円ローンシミュレーション
建物名 姫路市飾東町小原/中古戸建(オーナーチェンジ)
管理費等 - 修繕積立金 -
住所 兵庫県姫路市飾東町小原
交通 山陽本線 姫路駅 バス35分/小原(姫路市)バス停 停歩4分
土地面積 310.56m2(公簿)
建物面積 129.9m2
間取り 6DK(DK 6 和 6×2・4.5×2・6) バルコニー面積 -
駐車場 空無 管理形態 -
築年月 1968年3月(築57年9ヶ月) 総戸数 -
接道状況 南東5.3m接面10m 一方道路
セットバック 私道面積 -
敷地権利 所有権 借地期間・地代 -
構造・工法 木造 所在階/階建て 2階建
都市計画 調整区域 建ぺい率・容積率 60%・200%
用途地域 無指定 地目 宅地
現況 居住中 条件等 -
引き渡し 相談 国土法 不要
特記事項 -
設備 上水道・プロパンガス・浄化槽・コンロ2口以上・シャンプードレッサ・室内洗濯機置き場・モニタ付インターホン・温水洗浄便座・洗面所独立
リフォーム履歴 -
リノベーション
履歴
-
備考 【物件周辺の生活情報】
・学校
姫路市立谷内小学校(1,968m)、姫路市立城山中学校(5,111m)
・買い物
コンビニ(5,761m)
・その他施設
姫路市立豊富保育所(6,372m)
●谷内小学校まで約1968m●城山中学校まで約5111m ●築年数が閉鎖謄本にも記載がなく、土地贈与に困る所有権移転の昭和43年を築年数に記載しているが実際は不明●利回り:14.40% 年間予定賃料収入:57.60万円 ●資金計画や事前審査のご相談もお気軽に! 【設備・特記事項備考】専用バス・専用トイレ
建築確認番号 -
情報提供元 LIFULL HOME'S[1347340005499] 情報公開日
情報更新日 次回更新予定日 2025年11月29日
おすすめポイント
くらすONEは一級建築士、宅地建物取引士、専属デザイナー、各分野のプロが在籍している不動産仲介をはじめ注文住宅やリフォームにも特化しているお店です♪住まいに関する事は何でも気軽にお問い合わせください。

販売状況、物件の見学、詳細を知りたい方はこちらからお問い合わせください(無料)

お問い合わせ先
株式会社くらすONE

山陽本線 姫路駅の家賃相場

更新日:2025年11月24日
  ワンルーム 1K・1DK 1LDK・2K
2DK
2LDK・3K
3DK
3LDK・4K
4DK
マンション 4.8万円 5.7万円 7.8万円 7.2万円 8.8万円
アパート 4.6万円 4.5万円 5.6万円 5.8万円 7.2万円
一戸建て 5.5万円 6.3万円 4.8万円 5.5万円 8.4万円

※このデータはgoo住宅・不動産に掲載されている賃貸物件の平均賃料(管理費・駐車場代などを除く)を算出したものです。ただしマンション・アパート・一戸建てともに10戸以上の掲載があるものについてのみ対象とします。

最寄地図兵庫県姫路市飾東町小原 周辺地図情報

地図
※地図上に表示される物件の位置は付近住所に所在することを表すものであり、実際の物件所在地とは異なる場合がございます。
    正確な物件所在地は、取扱い不動産会社にお問い合わせください。
表面利回り:満室時表面利回り(年)=賃料×12ヶ月/購入価格※賃料は周辺相場を元に満室時を想定して算出 利回りとは、当該不動産の1年間の予定賃料収入の不動産取得対価に対する割合であり、公租公課・共益費など、その他当該物件を維持するために必要な費用の控除する前の収入で算出しています。 また、想定賃料が将来にわたり確実に得られる保証はございません。

不動産会社情報

お問い合わせ先 商号:株式会社くらすONE
免許番号:兵庫県知事(02)第451506号
所在地:兵庫県姫路市下手野2丁目4-3 KURASU-ONEビル1F
取引態様:媒介
管理コード:5499
所属協会など:(公社)近畿圏不動産流通機構
共有する

お電話でのお問い合わせ

電話をかける(携帯・PHS可)
お問い合わせダイヤル
通話無料0037-634-73528
営業時間 10:00~19:00 (定休日:毎週水曜日)
音声案内に従って数字を入力
お問い合わせ番号
49890-2971
不動産会社につながります
不動産会社のスタッフと
直接電話で話せます。
※不動産会社がお電話に出られなかった場合、株式会社LIFULLは電話会社が提供するサービスを介してお客様の発信者番号を受領後、折り返し専用の電話番号を発番してお問合せの不動産会社に通知します(お客様の発信者番号がお問合せの不動産会社に通知されることはございません)
※光IP電話、及びIP電話からはご利用になれません
※0037で始まる電話番号に携帯電話からお問合せいただいた方には、ショートメッセージ(SMS)によるお問合せ完了通知をお届けする場合があります
おすすめポイント
くらすONEは一級建築士、宅地建物取引士、専属デザイナー、各分野のプロが在籍している不動産仲介をはじめ注文住宅やリフォームにも特化しているお店です♪住まいに関する事は何でも気軽にお問い合わせください。

販売状況、物件の見学、詳細を知りたい方はこちらからお問い合わせください(無料)

お問い合わせ先
株式会社くらすONE

姫路市の暮らしデータ

人口などの統計情報

世帯数 223793世帯
人口総数 525884人
転入者数 15262人
転入率(人口1000人当たり)
29.02人
転出者数 15057人
転出率(人口1000人当たり)
28.63人
土地平均価格
住宅地
61020円/m2
商業地
204177円/m2

結婚・育児の助成金

子育て関連の独自の取り組み (1)子育て学習センター事業。(2)交通・災害遺児手当支給事業。(3)交通・災害遺児奨学金給付事業。(4)児童養護施設等入所児童就職祝金支給事業。(5)児童養護施設等間食給付事業。(6)姫路市子育てガイドブックの発行。
出産祝い あり
公立保育所数 17所(うち0歳児保育を実施している保育所:16所)
私立保育所数 12所(うち0歳児保育を実施している保育所:12所)
保育所入所待機児童数 18人
認定こども園数 87園 預かり保育実施園数 公立:0園 私立:1園
学校給食 【小学校】完全給食【中学校】完全給食
公立中学校の学校選択制 未実施
子ども・学生等医療費助成<通院>対象年齢 18歳3月末まで 子ども・学生等医療費助成<入院>対象年齢 18歳3月末まで

姫路市の治安・ごみ収集情報

公共料金・インフラ

ガス料金(22m3使用した場合の月額) 大阪瓦斯株式会社4544円
水道料金(口径20mmで20m3の月額) 姫路市2913円
下水道料金(20m3を使用した場合の月額) 姫路市2629円
下水道普及率 93.3%

安心・安全

建物火災出火件数 91件
人口10000人当たり
1.72件
刑法犯認知件数 3678件
人口1000人当たり
6.93件
ハザード・防災マップ あり

医療

一般病院総数 31ヶ所
一般診療所総数 418ヶ所
小児科医師数 84人
小児人口10000人当たり
12.77人
産婦人科医師数 44人
15~49歳女性人口1万人当たり
4.35人
介護保険料基準額(月額) 6200円

ごみ

家庭ごみ収集(可燃ごみ) 無料
備考
指定ごみ袋は有料だが、袋代にごみ収集・処理料金等を含まず。
家庭ごみの分別方式 【旧市域】15分別19種【香寺・夢前・安富町域】12分別16種【家島町域】10分別14種〔【全市域】可燃ごみ プラスチック製容器包装 ミックスペーパー 空きカン 空きビン(無色、茶色、その他) ペットボトル 紙パック 乾電池等 古紙(新聞紙、ダンボール、雑誌類) 蛍光管【旧市域】木製品 金属複合製品 プラスチック複合製品 ふとん・ジュータン ガラス陶磁器【香寺・夢前・安富町域】ふとん・ジュータン 不燃〕 拠点回収:使用済小型家電
家庭ごみの戸別収集 一部実施(【ふれあい収集】障がい者・高齢者・要介護者が対象)
粗大ごみ収集 あり
備考
無料。ステーション収集。地域により月1回収集と月2収集あり。
生ごみ処理機助成金制度 なし
上限金額
-
上限比率
-
暮らしデータ提供元:生活ガイド.com
※行政機関により公表していない地域及びデータがございます。東京23区以外の政令指定都市は、市全体のデータとして表示しています。
※提供データには細心の注意を払っておりますが、調査後に変更がある場合があります。 最新の情報につきましては各市区役所までお問い合わせいただくか、自治体HPなどをご確認ください。
OCN×ドコモ光新規お申込みで合計最大137,280円相当おトク!特典の内訳・適用条件など詳細はこちら

姫路市内の各駅の住みやすさ

住宅ローンの返済額一覧

物件価格 400万円に対して、年率 で、頭金 の場合
↓ボーナス 35年間 30年間 25年間 20年間 15年間 10年間
0万円 ローン不可 ローン不可 ローン不可 ローン不可 ローン不可 ローン不可
5万円 ローン不可 ローン不可 ローン不可 ローン不可 ローン不可 ローン不可
10万円 ローン不可 ローン不可 ローン不可 ローン不可 ローン不可 ローン不可
15万円 ローン不可 ローン不可 ローン不可 ローン不可 ローン不可 ローン不可
20万円 ローン不可 ローン不可 ローン不可 ローン不可 ローン不可 ローン不可
25万円 ローン不可 ローン不可 ローン不可 ローン不可 ローン不可 ローン不可
30万円 ローン不可 ローン不可 ローン不可 ローン不可 ローン不可 ローン不可
支払い利息合計
※元利均等返済方式で試算しています。 「円」の単位以下の端数金額は「切り捨て」として計算しております。
※金利は、固定金利として計算しております。
※上記の住宅ローン返済額一覧は、あくまで試算であり、将来の金利動向により、実際のご返済額とは異なります。
※ボーナス支払総額が総支払額の50%を超えている場合、上記の表では「ローン不可」となります。
※住宅ローン返済額一覧の数値は、住宅ローンのお申し込みやご融資をお約束するものではございません。
掲載情報の著作権は提供元企業等に帰属します。
Copyright:(C) 2025 LIFULL Co.,Ltd.
アプリで簡単 物件探し 大手不動産サイトの情報から一括検!プッシュ通知で物件を見逃さない
App Storeからダウンロード Google Playで手に入れよう QRコード