区分マンション メガロコープ平野第1号棟 収益物件・投資物件

情報提供元
LIFULL HOME'S
価格 1,780万円 表面利回り - 年間予定収入 -
所在地 大阪府大阪市平野区平野宮町1丁目6-1
交通 関西本線 平野駅 徒歩2分
大阪市谷町線 平野駅 徒歩15分
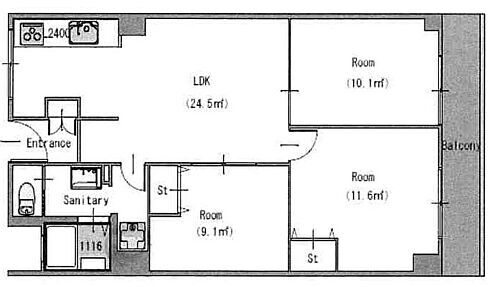
建物構造 RC 専有面積 69.17m2 土地面積 10849.54m2
現況 空家 間取り 3LDK 築年月 1970年8月(築55年5ヶ月)

販売状況、物件の見学、詳細を知りたい方はこちらからお問い合わせください(無料)

お問い合わせ先
株式会社ライズアップ

詳細情報

種別 区分マンション
価格 1,780万円ローンシミュレーション
建物名 メガロコープ平野第1号棟
管理費等 8,780円 修繕積立金 13,280円
住所 大阪府大阪市平野区平野宮町1丁目6-1
交通 関西本線 平野駅 徒歩2分 大阪市谷町線 平野駅 徒歩15分
土地面積 10849.54m2
専有面積 69.17m2
間取り 3LDK バルコニー面積 -
駐車場 管理形態 全部委託
築年月 1970年8月(築55年5ヶ月) 総戸数 321戸
接道状況 - 私道面積 -
敷地権利 所有権 借地期間・地代 -
構造・工法 RC 所在階/階建て 6階/11階建
都市計画 - 建ぺい率・容積率 -・-
用途地域 1種住居 地目 -
現況 空家 条件等 -
引き渡し 相談 国土法 -
特記事項 -
設備 リフォーム・上水道・都市ガス・本下水・バス・トイレ別・給湯・室内洗濯機置き場・エレベーター・バルコニー・フローリング
リフォーム履歴 【リフォーム】
・水周り
2025年08月実施
キッチン、浴室、洗面所、給湯器
・内装
2025年08月実施
全室クロス張替、床(フローリング等)、建具(室内ドア等)、玄関収納、ハウスクリーニング等
リノベーション
履歴
-
備考  【設備・特記事項備考】専用バス・専用トイレ
建築確認番号 -
情報提供元 LIFULL HOME'S[1181950010687] 情報公開日
情報更新日 次回更新予定日 2025年12月14日

販売状況、物件の見学、詳細を知りたい方はこちらからお問い合わせください(無料)

お問い合わせ先
株式会社ライズアップ

関西本線 平野駅の家賃相場

更新日:2025年11月24日
  ワンルーム 1K・1DK 1LDK・2K
2DK
2LDK・3K
3DK
3LDK・4K
4DK
マンション 3.7万円 5.2万円 6.9万円 8.7万円 10.0万円
アパート 5.2万円 5.5万円 7.7万円 11.8万円 -
一戸建て - - - 6.6万円 10.3万円

※このデータはgoo住宅・不動産に掲載されている賃貸物件の平均賃料(管理費・駐車場代などを除く)を算出したものです。ただしマンション・アパート・一戸建てともに10戸以上の掲載があるものについてのみ対象とします。

最寄地図大阪府大阪市平野区平野宮町1丁目 周辺地図情報

地図
※地図上に表示される物件の位置は付近住所に所在することを表すものであり、実際の物件所在地とは異なる場合がございます。
    正確な物件所在地は、取扱い不動産会社にお問い合わせください。
表面利回り:満室時表面利回り(年)=賃料×12ヶ月/購入価格※賃料は周辺相場を元に満室時を想定して算出 利回りとは、当該不動産の1年間の予定賃料収入の不動産取得対価に対する割合であり、公租公課・共益費など、その他当該物件を維持するために必要な費用の控除する前の収入で算出しています。 また、想定賃料が将来にわたり確実に得られる保証はございません。

不動産会社情報

お問い合わせ先 商号:株式会社ライズアップ
免許番号:大阪府知事(3)第55982号
所在地:大阪府大阪市都島区東野田町4丁目8-14 RU京橋ビル
取引態様:媒介
管理コード:10687
所属協会など:(公社)近畿地区不動産公正取引協議会、(公社)全日本不動産協会大阪府本部
共有する

お電話でのお問い合わせ

電話をかける(携帯・PHS可)
お問い合わせダイヤル
通話無料0037-634-25423
営業時間 09:30~18:30 (定休日:毎週火・水曜日)
音声案内に従って数字を入力
お問い合わせ番号
46083-2970
不動産会社につながります
不動産会社のスタッフと
直接電話で話せます。
※不動産会社がお電話に出られなかった場合、株式会社LIFULLは電話会社が提供するサービスを介してお客様の発信者番号を受領後、折り返し専用の電話番号を発番してお問合せの不動産会社に通知します(お客様の発信者番号がお問合せの不動産会社に通知されることはございません)
※光IP電話、及びIP電話からはご利用になれません
※0037で始まる電話番号に携帯電話からお問合せいただいた方には、ショートメッセージ(SMS)によるお問合せ完了通知をお届けする場合があります

販売状況、物件の見学、詳細を知りたい方はこちらからお問い合わせください(無料)

お問い合わせ先
株式会社ライズアップ

大阪市平野区の暮らしデータ

人口などの統計情報

世帯数 1464615世帯
人口総数 2757642人
転入者数 225000人
転入率(人口1000人当たり)
81.59人
転出者数 188180人
転出率(人口1000人当たり)
68.24人
土地平均価格
住宅地
270839円/m2
商業地
1966607円/m2

結婚・育児の助成金

子育て関連の独自の取り組み (1)子ども・子育てプラザ(在宅での子育て家庭や地域での子育て活動を支援し、また乳幼児期の親子や子育て支援者、就学期の子どもが集い交流する機会を提供する等、地域福祉活動の推進を図る)。(2)習い事・塾代助成事業(学習塾や家庭教師、文化・スポーツ教室等学校外教育にかかる費用を、1人当たり月額1万円まで助成。所得制限あり)。
出産祝い なし
公立保育所数 53所(うち0歳児保育を実施している保育所:52所)
私立保育所数 395所(うち0歳児保育を実施している保育所:385所)
保育所入所待機児童数 2人
認定こども園数 117園 預かり保育実施園数 公立:52園 私立:-
学校給食 【小学校】完全給食【中学校】完全給食
公立中学校の学校選択制 実施
子ども・学生等医療費助成<通院>対象年齢 18歳3月末まで 子ども・学生等医療費助成<入院>対象年齢 18歳3月末まで

大阪市平野区の治安・ごみ収集情報

公共料金・インフラ

ガス料金(22m3使用した場合の月額) 大阪瓦斯株式会社4544円
水道料金(口径20mmで20m3の月額) 大阪市2112円
下水道料金(20m3を使用した場合の月額) 大阪市1276円
下水道普及率 100.0%

安心・安全

建物火災出火件数 553件
人口10000人当たり
2.01件
刑法犯認知件数 39408件
人口1000人当たり
14.32件
ハザード・防災マップ あり

医療

一般病院総数 170ヶ所
一般診療所総数 3734ヶ所
小児科医師数 659人
小児人口10000人当たり
22.80人
産婦人科医師数 380人
15~49歳女性人口1万人当たり
6.15人
介護保険料基準額(月額) 9249円

ごみ

家庭ごみ収集(可燃ごみ) 無料
備考
-
家庭ごみの分別方式 4分別11種〔普通ごみ(普通ごみ、危険ごみ[竹串、ガラス片、カミソリの刃]) 資源ごみ(空き缶・空きびん・金属製の生活用品・ペットボトル、スプレー缶・カセットボンベ) 容器包装プラスチック 古紙・衣類(新聞紙・折込チラシ、段ボール、紙パック、雑誌、衣類、その他の紙類)〕
家庭ごみの戸別収集 一部実施(【ふれあい収集】65歳以上の一人暮らしの高齢者または高齢者だけの世帯、障がいがある方が居住される家庭で、ごみ出しが困難な人が対象)
粗大ごみ収集 あり
備考
有料。戸別収集。事前申込制。申込時に収集日を決定。
生ごみ処理機助成金制度 なし
上限金額
-
上限比率
-
暮らしデータ提供元:生活ガイド.com
※行政機関により公表していない地域及びデータがございます。東京23区以外の政令指定都市は、市全体のデータとして表示しています。
※提供データには細心の注意を払っておりますが、調査後に変更がある場合があります。 最新の情報につきましては各市区役所までお問い合わせいただくか、自治体HPなどをご確認ください。
OCN×ドコモ光新規お申込みで合計最大137,280円相当おトク!特典の内訳・適用条件など詳細はこちら

大阪市平野区内の各駅の住みやすさ

他のエリアから探す

近辺の市区から探す

大阪市東住吉区大阪市阿倍野区大阪市生野区大阪市住吉区大阪市天王寺区大阪市西成区八尾市大阪市東成区大阪市住之江区大阪市浪速区堺市北区大阪市中央区大阪市大正区堺市堺区大阪市西区大阪市都島区大阪市城東区大阪市港区堺市東区堺市美原区大阪市鶴見区大阪市北区大阪市福島区大阪市此花区大阪市旭区堺市中区堺市西区大東市大阪市淀川区大阪市西淀川区

関西本線の駅から探す

月ケ瀬口大河原笠置加茂木津平城山奈良郡山大和小泉法隆寺王寺三郷河内堅上高井田柏原志紀八尾久宝寺加美平野東部市場前天王寺新今宮今宮JR難波

大阪市谷町線の駅から探す

大日守口太子橋今市千林大宮関目高殿野江内代都島天神橋筋六丁目中崎町東梅田南森町天満橋谷町四丁目谷町六丁目谷町九丁目四天王寺前夕陽ヶ丘天王寺阿倍野文の里田辺駒川中野平野喜連瓜破出戸長原八尾南

都道府県から探す

北海道青森県秋田県岩手県宮城県山形県福島県東京都神奈川県埼玉県千葉県茨城県栃木県群馬県長野県山梨県新潟県石川県富山県福井県愛知県静岡県岐阜県三重県大阪府兵庫県京都府滋賀県奈良県和歌山県広島県岡山県山口県鳥取県島根県徳島県香川県愛媛県高知県福岡県佐賀県長崎県熊本県大分県宮崎県鹿児島県沖縄県

主要都市から探す

札幌市仙台市横浜市川崎市相模原市さいたま市千葉市新潟市名古屋市静岡市浜松市大阪市堺市神戸市京都市広島市岡山市北九州市福岡市熊本市

住宅ローンの返済額一覧

物件価格 1780万円に対して、年率 で、頭金 の場合
↓ボーナス 35年間 30年間 25年間 20年間 15年間 10年間
0万円 33,226円/月 38,296円/月 45,397円/月 56,055円/月 73,825円/月 109,377円/月
5万円 24,141円/月 29,320円/月 36,531円/月 47,296円/月 65,174円/月 100,832円/月
10万円 ローン不可 20,344円/月 27,664円/月 38,538円/月 56,522円/月 92,287円/月
15万円 ローン不可 ローン不可 ローン不可 29,779円/月 47,871円/月 83,742円/月
20万円 ローン不可 ローン不可 ローン不可 ローン不可 39,220円/月 75,197円/月
25万円 ローン不可 ローン不可 ローン不可 ローン不可 ローン不可 66,652円/月
30万円 ローン不可 ローン不可 ローン不可 ローン不可 ローン不可 58,106円/月
支払い利息合計 1,158,700円~ 992,560円~ 824,400円~ 659,440円~ 494,890円~ 331,460円~
※元利均等返済方式で試算しています。 「円」の単位以下の端数金額は「切り捨て」として計算しております。
※金利は、固定金利として計算しております。
※上記の住宅ローン返済額一覧は、あくまで試算であり、将来の金利動向により、実際のご返済額とは異なります。
※ボーナス支払総額が総支払額の50%を超えている場合、上記の表では「ローン不可」となります。
※住宅ローン返済額一覧の数値は、住宅ローンのお申し込みやご融資をお約束するものではございません。
掲載情報の著作権は提供元企業等に帰属します。
Copyright:(C) 2025 LIFULL Co.,Ltd.
アプリで簡単 物件探し 大手不動産サイトの情報から一括検!プッシュ通知で物件を見逃さない
App Storeからダウンロード Google Playで手に入れよう QRコード