貸寮

パンションアムール 北山駅 貸寮

情報提供元
アットホーム
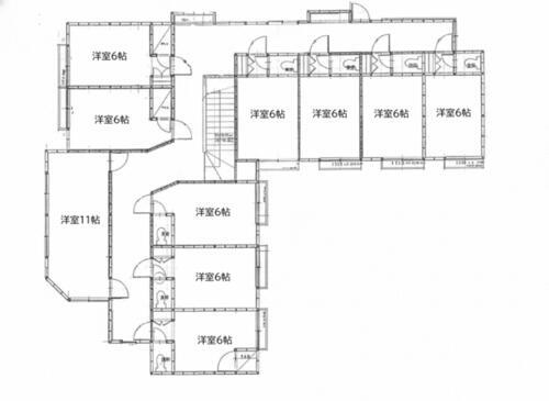
パンションアムール 2F平面図
賃料 24万円  (管理費等:-)
礼金・敷金 なし / 2ヶ月 保証金/敷引・償却 なし / -
交通
所在地 宮城県仙台市青葉区千代田町周辺地図
使用部分面積 361.2m2 土地面積 -
築年月 1986年3月 築年数 築39年10ヶ月
おすすめポイント
駐車場2台分

詳細情報

賃料 24万円  管理費等
敷金 2ヶ月  礼金 なし 
保証金 なし  敷引・償却
所在地 宮城県仙台市青葉区千代田町周辺地図
交通
使用部分面積 361.2m2  土地面積  
坪単価 0.22万円  その他一時金  
権利金 その他費用  
維持費等   都市計画  
用途地域   接道状況  
地目   建物構造・所在階/階数 木造 2階建 
建物名 パンションアムール  築年月(築年数) 1986年3月(築39年10ヶ月) 
条件等   契約期間 2年 
現況 空  引渡可能時期 即時 
情報提供元 アットホーム [6988263817] 情報公開日
情報更新日 - 次回更新予定日 随時

設備など

24時間セキュリティ - 1階 - 2階以上 -
即引渡し可 飲食店可 - エレベーター -
駐車場(近隣含) -        
設備 給湯・バス・トイレ別 
備考 東北福祉大学学生向けの寮だった物件で建物一括貸しとなります・賃貸保証等:加入要(アーク賃貸保証)・保険等:要 築年月:1986/03築 
特記事項 駐車場2台分 

宮城県仙台市青葉区千代田町 周辺地図情報

地図
※地図上に表示される物件の位置は付近住所に所在することを表すものであり、実際の物件所在地とは異なる場合がございます。
   正確な物件所在地は、取扱い不動産会社にお問い合わせください。

不動産会社情報

お問い合わせ先 商号:(株)ミディアム
免許番号:宮城県知事免許(2)第6493号
所在地:仙台市青葉区立町19-18
TEL:022-216-5250
取引態様:仲介
管理コード:
所属協会など:(公社)宮城県宅地建物取引業協会会員、東北地区不動産公正取引協議会加盟
共有する
QRコード

仙台市青葉区の暮らしデータ

人口などの統計情報

世帯数 524651世帯
人口総数 1066362人
転入者数 65750人
転入率(人口1000人当たり)
61.66人
転出者数 62390人
転出率(人口1000人当たり)
58.51人
土地平均価格
住宅地
139213円/m2
商業地
638309円/m2

仙台市青葉区の治安・ごみ収集情報

公共料金・インフラ

ガス料金(22m3使用した場合の月額) 仙台市4867円
水道料金(口径20mmで20m3の月額) 仙台市4290円
下水道料金(20m3を使用した場合の月額) 仙台市1917円
下水道普及率 98.7%

安心・安全

建物火災出火件数 153件
人口10000人当たり
1.40件
刑法犯認知件数 6087件
人口1000人当たり
5.55件
ハザード・防災マップ あり

医療

一般病院総数 47ヶ所
一般診療所総数 950ヶ所
小児科医師数 289人
小児人口10000人当たり
23.24人
産婦人科医師数 115人
15~49歳女性人口1万人当たり
5.01人
介護保険料基準額(月額) 6079円

ごみ

家庭ごみ収集(可燃ごみ) 有料
備考
指定ごみ袋有料。一般廃棄物処理手数料として徴収。
家庭ごみの分別方式 4分別8種〔家庭ごみ 紙類(新聞・折込チラシ、段ボール、紙パック、雑誌・雑がみ) プラスチック資源 缶・びん・ペットボトル・廃乾電池類等〕 拠点回収:使用済小型家電 使用済食用油 布類
家庭ごみの戸別収集 未実施
粗大ごみ収集 あり
備考
有料。戸別収集。事前申込制。
生ごみ処理機助成金制度 あり
上限金額
30000円
上限比率
60.0%
暮らしデータ提供元:生活ガイド.com
※行政機関により公表していない地域及びデータがございます。東京23区以外の政令指定都市は、市全体のデータとして表示しています。
※提供データには細心の注意を払っておりますが、調査後に変更がある場合があります。 最新の情報につきましては各市区役所までお問い合わせいただくか、自治体HPなどをご確認ください。
OCN×ドコモ光新規お申込みで合計最大137,280円相当おトク!特典の内訳・適用条件など詳細はこちら

仙台市青葉区内の各駅の住みやすさ

掲載情報の著作権は提供元企業等に帰属します。
Copyright:(C) 2025 At Home Co.,Ltd
アプリで簡単 物件探し 大手不動産サイトの情報から一括検!プッシュ通知で物件を見逃さない
App Storeからダウンロード Google Playで手に入れよう QRコード