アプリで簡単 物件探し 通知 共有 アプリならではの機能を使ってみる
賃貸アパート

兵庫県加古川市加古川町中津 日岡駅 3DK 賃貸(賃貸マンション・アパート)

情報提供元
LIFULL HOME'S
賃料 3.9万円  (管理費等:-)
礼金・敷金 5万円 / 5万円 保証金/敷引・償却 - / -
交通
所在地 兵庫県加古川市加古川町中津周辺地図
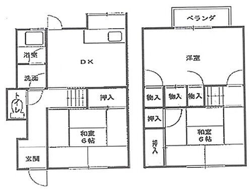
間取り 3DK 専有面積 63.76m2
築年月 1986年11月 築年数 築39年2ヶ月
おすすめポイント
初期費用最大24分割可能!クレジット決済可!ローン組めます!

詳細情報

賃料 3.9万円 管理費等 -
敷金 5万円 礼金 5万円
保証金 - 敷引・償却 -
更新料 - 契約期間 2年
カード決済 初期費用カード決済可
所在地 兵庫県加古川市加古川町中津周辺地図
交通
建物名  
間取り 3DK(DK 6 和 6×2 洋 7) 築年月(築年数) 1986年11月(築39年2ヶ月)
専有面積 63.76㎡ 所在階/階数 1階/2階建
建物構造 木造  方位 南 
現況 空  駐車場 有 5,500円 物件からの距離0m
入居可能時期 即時 住宅保険 不要
情報提供元 LIFULL HOME'S[1270330237006] 情報公開日
情報更新日 次回更新予定日 2025年12月5日

設備など

2階以上 - 最上階 - 角部屋 -
駐車場(近隣含) エアコン付き - バス・トイレ別
室内洗濯機置き場 追焚機能 オートロック付き -
モニタ付インターホン フローリング バルコニー
ガスコンロ可 - 浴室乾燥機 - 24時間セキュリティ -
宅配ボックス - ペット相談可 - 二人入居可
設備 プロパンガス・バス・トイレ別・コンロ2口以上・追焚機能・シャンプードレッサ・室内洗濯機置き場・バルコニー・フローリング・駐輪場・バイク置き場・モニタ付インターホン・洗面所独立 
リフォーム履歴 -
リノベーション履歴 -
備考 初期費用の分割可能!クレジット決済可!最大24回払い可能♪♪現地待ち合わせ可!入居審査もお任せ下さい! 初期費用がない!入居審査が不安!等も当社スタッフが様々なお悩みに対応致します♪/保証会社の利用:加入要/保証会社名:全保連/保証会社費用:全保連利用必須 初回:賃料総額の40% 更新料:13,000/1年毎 口座振替手数料 330円/管理人勤務形態:巡回 
特記事項 見学予約可・二人入居可・高齢者相談・初期費用カード決済可

省エネ性能

エネルギー消費性能 -
断熱性能 -
目安光熱費 -

兵庫県加古川市加古川町中津 周辺地図情報

地図
※地図上に表示される物件の位置は付近住所に所在することを表すものであり、実際の物件所在地とは異なる場合がございます。
   正確な物件所在地は、取扱い不動産会社にお問い合わせください。

不動産会社情報

お問い合わせ先 商号:株式会社Library Homes
免許番号:兵庫県知事(3)第451441号
所在地:兵庫県姫路市南畝町2丁目97
TEL:079-282-6655
取引態様:仲介
管理コード:237006
所属協会など:(公社)西日本不動産流通機構、(公社)近畿地区不動産公正取引協議会、(公社)全日本不動産協会兵庫県本部
共有する
QRコード

お電話でのお問い合わせ

電話をかける(携帯・PHS可)
お問い合わせダイヤル
通話無料0037-634-97799
営業時間 10:00~19:00 (定休日:年中無休(土日祝営業中))
音声案内に従って数字を入力
お問い合わせ番号
15018-2970
不動産会社につながります
不動産会社のスタッフと
直接電話で話せます。
※不動産会社がお電話に出られなかった場合、株式会社LIFULLは電話会社が提供するサービスを介してお客様の発信者番号を受領後、折り返し専用の電話番号を発番してお問合せの不動産会社に通知します(お客様の発信者番号がお問合せの不動産会社に通知されることはございません)
※光IP電話、及びIP電話からはご利用になれません
※0037で始まる電話番号に携帯電話からお問合せいただいた方には、ショートメッセージ(SMS)によるお問合せ完了通知をお届けする場合があります

加古川市の暮らしデータ

人口などの統計情報

世帯数 107075世帯
人口総数 258691人
転入者数 8245人
転入率(人口1000人当たり)
31.87人
転出者数 7948人
転出率(人口1000人当たり)
30.72人
土地平均価格
住宅地
81219円/m2
商業地
138450円/m2

結婚・育児の助成金

子育て関連の独自の取り組み (1)子育て支援予防接種助成事業(任意の予防接種のうち、おたふく風邪・三種混合ワクチンの接種料金の一部[2,000円・各1回限り]を助成)。(2)不妊不育症治療費助成事業(不妊・不育症の検査・治療を受けた夫婦に費用の一部を助成。一般不妊治療3万円/年、特定不妊治療5万円/回、不育症治療10万円/年を上限。所得制限なし)。(3)無料託児サービス(主に在宅で子育てをする家庭を対象に、市内2ヶ所の子育てプラザ内で加古川市在住の6ヶ月から就学前の子どもを無料で預かるサービスを実施している)。(4)育児休業からの復職に伴う利用申し込み(育児休業からの復職を予定している保護者を対象に、早期から年度途中の入園予約を受付)。
出産祝い あり
公立保育所数 3所(うち0歳児保育を実施している保育所:3所)
私立保育所数 13所(うち0歳児保育を実施している保育所:13所)
保育所入所待機児童数 12人
認定こども園数 31園 預かり保育実施園数 公立:16園 私立:2園
学校給食 【小学校】完全給食【中学校】完全給食
公立中学校の学校選択制 未実施
子ども・学生等医療費助成<通院>対象年齢 18歳3月末まで 子ども・学生等医療費助成<入院>対象年齢 18歳3月末まで

加古川市の治安・ごみ収集情報

公共料金・インフラ

ガス料金(22m3使用した場合の月額) 大阪瓦斯株式会社4544円
水道料金(口径20mmで20m3の月額) 加古川市2596円
下水道料金(20m3を使用した場合の月額) 加古川市2530円
下水道普及率 92.4%

安心・安全

建物火災出火件数 36件
人口10000人当たり
1.38件
刑法犯認知件数 1752件
人口1000人当たり
6.72件
ハザード・防災マップ あり

医療

一般病院総数 12ヶ所
一般診療所総数 179ヶ所
小児科医師数 50人
小児人口10000人当たり
16.09人
産婦人科医師数 18人
15~49歳女性人口1万人当たり
3.72人
介護保険料基準額(月額) 5600円

ごみ

家庭ごみ収集(可燃ごみ) 無料
備考
-
家庭ごみの分別方式 3分別17種〔燃やすごみ 燃やさないごみ 資源物(カン[飲食料用カン、スプレー缶・カセットボンベ]、ビン[無色びん、茶色びん、その他の色びん]、ペットボトル、紙[新聞紙・折込チラシ、段ボール、雑誌・雑がみ、紙パック]、衣類、蛍光灯、乾電池、ライター、剪定枝)〕 拠点回収:使用済小型家電 ライター インクカートリッジ 水銀使用製品
家庭ごみの戸別収集 一部実施(【加古川市さわやか収集】実施要綱に該当する高齢者、心身障がい者等を対象に家庭ごみ戸別収集を実施)
粗大ごみ収集 あり
備考
有料。事前申込制。
生ごみ処理機助成金制度 あり
上限金額
30000円
上限比率
50.0%
暮らしデータ提供元:生活ガイド.com
※行政機関により公表していない地域及びデータがございます。東京23区以外の政令指定都市は、市全体のデータとして表示しています。
※提供データには細心の注意を払っておりますが、調査後に変更がある場合があります。 最新の情報につきましては各市区役所までお問い合わせいただくか、自治体HPなどをご確認ください。
OCN×ドコモ光新規お申込みで合計最大137,280円相当おトク!特典の内訳・適用条件など詳細はこちら

加古川市内の各駅の住みやすさ

他のエリアから探す

加古川市の詳細地域から賃貸物件を探す

尾上町旭尾上町池田尾上町今福尾上町口里尾上町長田尾上町安田尾上町養田加古川町粟津加古川町稲屋加古川町大野加古川町河原加古川町北在家加古川町木村加古川町篠原町加古川町寺家町加古川町友沢加古川町中津加古川町西河原加古川町平野加古川町備後加古川町本町加古川町溝之口加古川町南備後加古川町美乃利上荘町都台神野町石守神野町神野神野町西条志方町上冨木志方町志方町新神野西神吉町大国西神吉町鼎西神吉町岸西神吉町中西野口町北野野口町坂井野口町坂元野口町坂元北野口町長砂野口町野口野口町二屋野口町古大内野口町水足野口町良野東神吉町砂部東神吉町神吉東神吉町出河原東神吉町西井ノ口東神吉町升田平岡町一色平岡町一色西平岡町一色東平岡町新在家平岡町高畑平岡町土山平岡町中野平岡町西谷平岡町八反田平岡町二俣平岡町山之上平荘町池尻平荘町養老別府町朝日町別府町石町別府町新野辺別府町新野辺北町別府町中島町別府町西町別府町西脇別府町東町別府町別府別府町本町別府町宮田町別府町元町山手米田町船頭米田町平津

近辺の市区から探す

高砂市加古郡稲美町加古郡播磨町

周辺の駅から探す

加古川線
加古川日岡神野厄神市場小野町
山陽本線
大久保魚住土山東加古川加古川宝殿曽根ひめじ別所御着

掲載情報の著作権は提供元企業等に帰属します。
Copyright:(C) 2025 LIFULL Co.,Ltd.
アプリで簡単 物件探し 大手不動産サイトの情報から一括検!プッシュ通知で物件を見逃さない
App Storeからダウンロード Google Playで手に入れよう QRコード