アプリで簡単 物件探し 通知 共有 アプリならではの機能を使ってみる
賃貸マンション

メゾン ヨークスター 伊丹駅 2LDK 賃貸(賃貸マンション・アパート)

情報提供元
SUUMO
メゾン ヨークスター
賃料 10.7万円  (管理費等:4500円)
礼金・敷金 なし / 3万円 保証金/敷引・償却 なし / -
交通
所在地 兵庫県伊丹市桜ケ丘1周辺地図
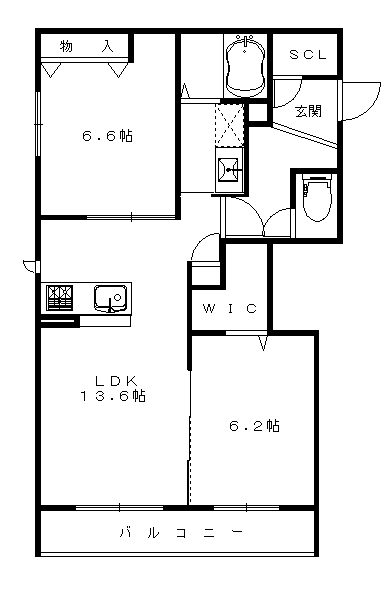
間取り 2LDK 専有面積 64.35m2
築年月 2016年3月 築年数 築9年10ヶ月
おすすめポイント
積水ハウスのシャーメゾン/駅徒歩6分/ネット無料/角部屋 積水ハウス設計施工のシャーメゾン/阪急伊丹駅徒歩6分/インターネット無料/角部屋/防犯カメラ/オートロック/システムキッチン

詳細情報

賃料 10.7万円 管理費等 4500円
敷金 3万円 礼金 なし
保証金 なし 敷引・償却 -
更新料 - 契約期間
カード決済 初期費用カード決済可
所在地 兵庫県伊丹市桜ケ丘1周辺地図
交通
建物名 メゾン ヨークスター 
間取り 2LDK(洋6.6 洋6.6 LDK13.6) 築年月(築年数) 2016年3月(築9年10ヶ月)
専有面積 64.35㎡ 所在階/階数 2階/3階建
建物構造 鉄骨  方位 東 
現況   駐車場 無    近くの駐車場を探す
入居可能時期 2026年1月中旬 住宅保険 あり
情報提供元 SUUMO[060H100474296692] 情報公開日
情報更新日 次回更新予定日 随時

設備など

2階以上 最上階 - 角部屋
駐車場(近隣含) - エアコン付き バス・トイレ別
室内洗濯機置き場 追焚機能 オートロック付き
モニタ付インターホン フローリング バルコニー
ガスコンロ可 - 浴室乾燥機 24時間セキュリティ -
宅配ボックス - ペット相談可 - 二人入居可 -
設備 冷房・暖房・エアコン・給湯・オートロック・バルコニー・バス・トイレ別・トイレ・収納スペース・洗濯機置場・洗面所・追焚機能・フローリング・浴室乾燥機・ウォークインクローゼット・温水洗浄便座・システムキッチン・カウンターキッチン・モニタ付インターホン・駐輪場・風呂・対面K・クローゼット・衣類乾燥機・都市ガス・浴トイレ別・防犯カメラ・オートバス・洗面所独立・コンロ2口以上・インターネット無料・インターネット対応・室内洗濯機置き場・シューズボックス 
リフォーム履歴 -
リノベーション履歴 -
備考 損保要/契約一時金20万、鍵交換費用1.1万、クリーニング特約料4.4万/シャーメゾンライフサポート24:税込1320円/月、更新料:新賃料1ヶ月分/2年/保証会社利用必:らくらくパートナー    初回事務手数料:3.3万   保証料:月額賃料等お支払相当額2%/月/仲介手数料1.1ヶ月/普通借家2年/子供可/事務所利用不可/ルームシェア不可/バストイレ別/バルコニー/エアコン/クロゼット/フローリング/TVインターホン/浴室乾燥機/オートロック/室内洗濯置/システムキッチン/追焚機能浴室/角住戸/温水洗浄便座/脱衣所/洗面所独立/洗面化粧台/駐輪場/閑静な住宅地/3口以上コンロ/対面式キッチン/防犯カメラ/全居室収納/オートバス/グリル付/全居室洋室/ウォークインクロゼット/保証人不要/東南角住戸/全居室フローリング/玄関ホール/2沿線利用可/駅まで平坦/ネット使用料不要/キッチンに窓/ダブルロックキー/24時間換気システム/耐震構造/始発駅/2駅利用可/駅徒歩10分以内/外壁サイディング/メーターモジュール/敷地内ごみ置き場/LDK12畳以上/全居室6畳以上/都市ガス/エコジョーズ/シャッター/シューズWIC/IT重説 対応物件/LGBTフレンドリー/初期費用カード決済可/巡回管理/REITA(ショッピングセンター)まで579m/関西スーパー駅前店(スーパー)まで491m/セブンイレブン伊丹桜ケ丘3丁目店(コンビニ)まで328m/キリン堂伊丹千僧店(ドラッグストア)まで432m/伊丹市立北中学校(中学校)まで680m/伊丹市立伊丹小学校(小学校)まで228m 
特記事項 角部屋・管理人巡回・閑静な住宅街・保証人不要/代行 ・初期費用カード決済可

省エネ性能

エネルギー消費性能 -
断熱性能 -
目安光熱費 -

兵庫県伊丹市桜ケ丘1 周辺地図情報

地図
※地図上に表示される物件の位置は付近住所に所在することを表すものであり、実際の物件所在地とは異なる場合がございます。
   正確な物件所在地は、取扱い不動産会社にお問い合わせください。

不動産会社情報

お問い合わせ先 商号:光栄住宅(株)
免許番号:兵庫県知事(15)第4183号
所在地:兵庫県伊丹市中央1-9-14
TEL:072-772-1088
取引態様:仲介
管理コード:5433
所属協会など:(公社)近畿地区不動産公正取引協議会加盟、(一社)兵庫県宅地建物取引業協会会員
共有する
QRコード

    伊丹市の暮らしデータ

    人口などの統計情報

    世帯数 82384世帯
    人口総数 201383人
    転入者数 7446人
    転入率(人口1000人当たり)
    36.97人
    転出者数 7833人
    転出率(人口1000人当たり)
    38.90人
    土地平均価格
    住宅地
    182000円/m2
    商業地
    214667円/m2

    結婚・育児の助成金

    子育て関連の独自の取り組み (1)地域子育てバックアップ事業補助金(市内で子育て支援活動を行う団体の事業に補助。審査あり)。(2)子育てサークル支援補助金(就学前の児童を持つ保護者が自主的に活動する団体に、1サークルにつき年額2万円までの補助)。(3)交通遺児等学業援助資金。(4)障害者(児)位置情報通知サービス利用料及び初期登録料助成。
    出産祝い なし
    公立保育所数 5所(うち0歳児保育を実施している保育所:5所)
    私立保育所数 32所(うち0歳児保育を実施している保育所:32所)
    保育所入所待機児童数 0人
    認定こども園数 8園 預かり保育実施園数 公立:6園 私立:5園
    学校給食 【小学校】完全給食【中学校】完全給食
    公立中学校の学校選択制 未実施
    子ども・学生等医療費助成<通院>対象年齢 中学校卒業まで 子ども・学生等医療費助成<入院>対象年齢 18歳3月末まで

    伊丹市の治安・ごみ収集情報

    公共料金・インフラ

    ガス料金(22m3使用した場合の月額) 大阪瓦斯株式会社4544円
    水道料金(口径20mmで20m3の月額) 伊丹市2552円
    下水道料金(20m3を使用した場合の月額) 伊丹市1727円
    下水道普及率 100.0%

    安心・安全

    建物火災出火件数 19件
    人口10000人当たり
    0.96件
    刑法犯認知件数 1505件
    人口1000人当たり
    7.60件
    ハザード・防災マップ あり

    医療

    一般病院総数 10ヶ所
    一般診療所総数 184ヶ所
    小児科医師数 37人
    小児人口10000人当たり
    13.92人
    産婦人科医師数 13人
    15~49歳女性人口1万人当たり
    3.28人
    介護保険料基準額(月額) 7200円

    ごみ

    家庭ごみ収集(可燃ごみ) 無料
    備考
    -
    家庭ごみの分別方式 3分別11種〔可燃ごみ 不燃ごみ 資源ごみ(プラスチック製容器包装、古紙[新聞、雑誌・雑がみ、ダンボール、紙パック]、古着類、ペットボトル、空き缶、びん)〕
    家庭ごみの戸別収集 未実施
    粗大ごみ収集 あり
    備考
    有料。事前申込制。
    生ごみ処理機助成金制度 あり
    上限金額
    20000円
    上限比率
    50.0%
    暮らしデータ提供元:生活ガイド.com
    ※行政機関により公表していない地域及びデータがございます。東京23区以外の政令指定都市は、市全体のデータとして表示しています。
    ※提供データには細心の注意を払っておりますが、調査後に変更がある場合があります。 最新の情報につきましては各市区役所までお問い合わせいただくか、自治体HPなどをご確認ください。
    OCN×ドコモ光新規お申込みで合計最大137,280円相当おトク!特典の内訳・適用条件など詳細はこちら

    伊丹市内の各駅の住みやすさ

    他のエリアから探す

    伊丹市の詳細地域から賃貸物件を探す

    荒牧荒牧南安堂寺町池尻伊丹稲野町鋳物師岩屋梅ノ木大鹿大野荻野荻野西奥畑柏木町春日丘北伊丹北河原北園北野北本町行基町口酒井車塚桑津鴻池昆陽昆陽池昆陽北昆陽東昆陽南御願塚桜ケ丘清水下河原鈴原町千僧高台中央寺本寺本東中野北中野西中野東西台西野野間野間北東有岡東野平松船原堀池松ケ丘美鈴町瑞ケ丘瑞原瑞穂町緑ケ丘南鈴原南町南野南野北南本町宮ノ前森本山田若菱町

    近辺の市区から探す

    大阪市福島区大阪市此花区大阪市西淀川区大阪市東淀川区大阪市淀川区豊中市池田市吹田市箕面市尼崎市西宮市芦屋市宝塚市川西市川辺郡猪名川町

    周辺の駅から探す

    福知山線
    大阪尼崎塚口猪名寺伊丹北伊丹川西池田中山寺宝塚
    阪急電鉄伊丹線
    塚口稲野新伊丹伊丹

    兵庫県伊丹市で他のジャンルから探す


    掲載情報の著作権は提供元企業等に帰属します。
    Copyright:(C) 2025 Recruit Co., Ltd.
    アプリで簡単 物件探し 大手不動産サイトの情報から一括検!プッシュ通知で物件を見逃さない
    App Storeからダウンロード Google Playで手に入れよう QRコード