アプリで簡単 物件探し 通知 共有 アプリならではの機能を使ってみる
賃貸アパート

YOSHIHARAハイツ 妙法寺駅 1LDK 賃貸(賃貸マンション・アパート)

情報提供元
SUUMO
YOSHIHARAハイツ
賃料 6.5万円  (管理費等:なし)
礼金・敷金 2ヶ月 / なし 保証金/敷引・償却 なし / -
交通
所在地 兵庫県神戸市須磨区妙法寺字大門周辺地図
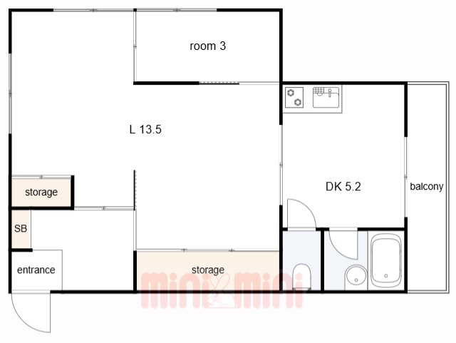
間取り 1LDK 専有面積 47.1m2
築年月 1971年3月 築年数 築54年10ヶ月
おすすめポイント
大切なペットと暮らせる嬉しいお部屋です。 クレジットカードでのお支払い(初期費用)OK。悪天候時やお急ぎの方には写真やパノラマ・動画などでもご内覧可能ですのでお気軽にご相談ください!
お問い合わせ先
ミニミニFC阪神御影店シティネット(株)
お問い合わせ先
ミニミニFC阪神御影店シティネット(株)

詳細情報

賃料 6.5万円 管理費等 なし
敷金 なし 礼金 2ヶ月
保証金 なし 敷引・償却 -
更新料 - 契約期間
カード決済 初期費用カード決済可
所在地 兵庫県神戸市須磨区妙法寺字大門周辺地図
交通
  • 地下鉄西神・山手線 妙法寺駅 徒歩16分乗換案内
  • 山陽電鉄本線 板宿駅 徒歩31分乗換案内
  • 地下鉄西神・山手線 板宿駅 徒歩32分乗換案内
建物名 YOSHIHARAハイツ 
間取り 1LDK(洋3 DK5.2L13.5) 築年月(築年数) 1971年3月(築54年10ヶ月)
専有面積 47.1㎡ 所在階/階数 2階/2階建
建物構造 木造  方位 南西 
現況   駐車場 近有 8,500円
入居可能時期 即時 住宅保険 あり
情報提供元 SUUMO[060H100400050353] 情報公開日
情報更新日 次回更新予定日 随時

設備など

2階以上 最上階 角部屋
駐車場(近隣含) エアコン付き - バス・トイレ別
室内洗濯機置き場 - 追焚機能 - オートロック付き -
モニタ付インターホン - フローリング - バルコニー
ガスコンロ可 浴室乾燥機 - 24時間セキュリティ -
宅配ボックス - ペット相談可 二人入居可
設備 バルコニー・バス・トイレ別・トイレ・収納スペース・ガスコンロ可・プロパンガス・浴トイレ別・シューズボックス・リノベーション 
リフォーム履歴 -
リノベーション履歴 -
備考 損保要/短期解約、喫煙に関する特約有り/保証会社利用必:■保証会社利用必須 初回保証料:総賃料50%,更新料:10,000円/2年/二人入居可/ペット相談/バストイレ別/バルコニー/ガスコンロ対応/シューズボックス/角住戸/最上階/ペット相談/全居室洋室/二人入居相談/2沿線利用可/2駅利用可/3駅以上利用可/プロパンガス/リノベーション/IT重説 対応物件/初期費用カード決済可/神戸市立妙法寺小学校(小学校)まで636m/神戸市立板宿小学校(小学校)まで2187m/神戸市立丸山ひばり小学校(小学校)まで2756m/賃貸戸数:8戸 
特記事項 ペット相談可・二人入居可・角部屋・最上階・初期費用カード決済可

省エネ性能

エネルギー消費性能 -
断熱性能 -
目安光熱費 -

兵庫県神戸市須磨区妙法寺字大門 周辺地図情報

地図
※地図上に表示される物件の位置は付近住所に所在することを表すものであり、実際の物件所在地とは異なる場合がございます。
   正確な物件所在地は、取扱い不動産会社にお問い合わせください。
お問い合わせ先
ミニミニFC阪神御影店シティネット(株)

不動産会社情報

お問い合わせ先 商号:ミニミニFC阪神御影店シティネット(株)
免許番号:兵庫県知事(6)第10417号
所在地:兵庫県神戸市東灘区御影中町1-9-5
TEL:078-857-0061
取引態様:仲介
管理コード:270895
所属協会など:(公社)近畿地区不動産公正取引協議会加盟、(公社)全日本不動産協会兵庫県本部会員
共有する
QRコード
お問い合わせ先
ミニミニFC阪神御影店シティネット(株)

    神戸市須磨区の暮らしデータ

    人口などの統計情報

    世帯数 734091世帯
    人口総数 1500425人
    転入者数 75773人
    転入率(人口1000人当たり)
    50.50人
    転出者数 75052人
    転出率(人口1000人当たり)
    50.02人
    土地平均価格
    住宅地
    196681円/m2
    商業地
    844842円/m2

    結婚・育児の助成金

    子育て関連の独自の取り組み (1)妊産婦タクシー利用券。(2)産後ケア事業(32ヶ所)。(3)多胎児家庭支援の充実(多胎児家庭ホームヘルプサービス等)。(4)多様な保育施設で待機児童3年連続ゼロ(保育送迎ステーション等)。(5)病児保育(22ヶ所)。(6)夜間、休日に年中無休で診療する「神戸こども初期急病センター」。(7)天候関係なく無料で遊べる場所の充実(こべっこランド、こども本の森神戸、児童館120ヶ所等)。(8)学童保育希望者全員受入れ。(9)インフルエンザ予防接種費の一部助成(12歳まで)。(10)市民が市内高校に通う通学定期代無料化。(11)子連れ利用可能な無料コワーキングスペース(無料の一時保育付)。(12)大人同伴の小学生以下の市バス・地下鉄の料金が無料。(13)住み替え補助(「住みかえーる」で検索)。
    出産祝い あり
    公立保育所数 56所(うち0歳児保育を実施している保育所:45所)
    私立保育所数 70所(うち0歳児保育を実施している保育所:67所)
    保育所入所待機児童数 0人
    認定こども園数 191園 預かり保育実施園数 公立:28園 私立:37園
    学校給食 【小学校】完全給食【中学校】完全給食 デリバリー形式[運搬:ランチボックス、内容:完全給食]、但し家庭弁当等の持参も可(2024年9月から順次全員喫食制へ移行)
    公立中学校の学校選択制 一部実施(特定地域選択制)
    子ども・学生等医療費助成<通院>対象年齢 18歳3月末まで 子ども・学生等医療費助成<入院>対象年齢 18歳3月末まで

    神戸市須磨区の治安・ごみ収集情報

    公共料金・インフラ

    ガス料金(22m3使用した場合の月額) 大阪瓦斯株式会社4544円
    伊丹産業株式会社7185円
    水道料金(口径20mmで20m3の月額) 神戸市2926円
    下水道料金(20m3を使用した場合の月額) 神戸市1760円
    下水道普及率 98.7%

    安心・安全

    建物火災出火件数 236件
    人口10000人当たり
    1.55件
    刑法犯認知件数 12014件
    人口1000人当たり
    7.88件
    ハザード・防災マップ あり

    医療

    一般病院総数 98ヶ所
    一般診療所総数 1643ヶ所
    小児科医師数 408人
    小児人口10000人当たり
    24.03人
    産婦人科医師数 190人
    15~49歳女性人口1万人当たり
    6.47人
    介護保険料基準額(月額) 6580円

    ごみ

    家庭ごみ収集(可燃ごみ) 無料
    備考
    指定ごみ袋は有料だが、袋代にごみ収集・処理料金等を含まず。
    家庭ごみの分別方式 5分別〔缶・びん・ペットボトル 容器包装プラスチック 燃えないごみ カセットボンベ・スプレー缶 燃えるごみ〕 拠点回収:使用済小型家電 カセットボンベ・スプレー缶 水銀体温計・温度計・血圧計 蛍光管 乾電池・充電式電池・ボタン電池
    家庭ごみの戸別収集 一部実施(【ひまわり収集】クリーンステーションまで、ごみを持ち出すことが困難な高齢者または障害者など一部の対象者に実施)
    粗大ごみ収集 あり
    備考
    有料。戸別収集。事前申込制。申込みの後、大型ごみシール券を購入し貼付けて出すか、キャッシュレス決済を行う。申込みから1~2週間程度で収集。
    生ごみ処理機助成金制度 なし
    上限金額
    -
    上限比率
    -
    暮らしデータ提供元:生活ガイド.com
    ※行政機関により公表していない地域及びデータがございます。東京23区以外の政令指定都市は、市全体のデータとして表示しています。
    ※提供データには細心の注意を払っておりますが、調査後に変更がある場合があります。 最新の情報につきましては各市区役所までお問い合わせいただくか、自治体HPなどをご確認ください。
    OCN×ドコモ光新規お申込みで合計最大137,280円相当おトク!特典の内訳・適用条件など詳細はこちら

    神戸市須磨区内の各駅の住みやすさ

    他のエリアから探す

    神戸市須磨区の詳細地域から賃貸物件を探す

    青葉町磯馴町板宿板宿町一ノ谷町稲葉町戎町大池町大田町大手大手町神の谷上細沢町川上町菊池町北落合北町衣掛町小寺町権現町桜木町潮見台町清水台白川白川台神撫町菅の台須磨浦通須磨寺町須磨本町関守町禅昌寺町外浜町多井畑多井畑東町多井畑南町高尾台高倉台高倉町鷹取町大黒町千歳町千守町月見山町月見山本町寺田町天神町飛松町戸政町友が丘中落合中島町西落合東落合東須磨東町平田町古川町宝田町堀池町前池町松風町水野町緑が丘南落合南町行幸町明神町妙法寺村雨町行平町養老町横尾離宮西町離宮前町竜が台若木町若草町若宮町

    近辺の市区から探す

    神戸市灘区神戸市兵庫区神戸市長田区神戸市垂水区神戸市北区神戸市中央区明石市

    周辺の駅から探す

    神戸市西神山手線
    上沢長田新長田板宿妙法寺名谷総合運動公園学園都市伊川谷
    山陽電気鉄道本線
    西代板宿東須磨月見山須磨寺山陽須磨

    兵庫県神戸市須磨区で他のジャンルから探す


    掲載情報の著作権は提供元企業等に帰属します。
    Copyright:(C) 2025 Recruit Co., Ltd.
    アプリで簡単 物件探し 大手不動産サイトの情報から一括検!プッシュ通知で物件を見逃さない
    App Storeからダウンロード Google Playで手に入れよう QRコード