アプリで簡単 物件探し 通知 共有 アプリならではの機能を使ってみる
賃貸マンション

マニフィーク北桜塚 豊中駅 1LDK 賃貸(賃貸マンション・アパート)

情報提供元
SUUMO
マニフィーク北桜塚
賃料 21.6万円  (管理費等:18000円)
礼金・敷金 3ヶ月 / 1ヶ月 保証金/敷引・償却 なし / -
交通
所在地 大阪府豊中市北桜塚3周辺地図
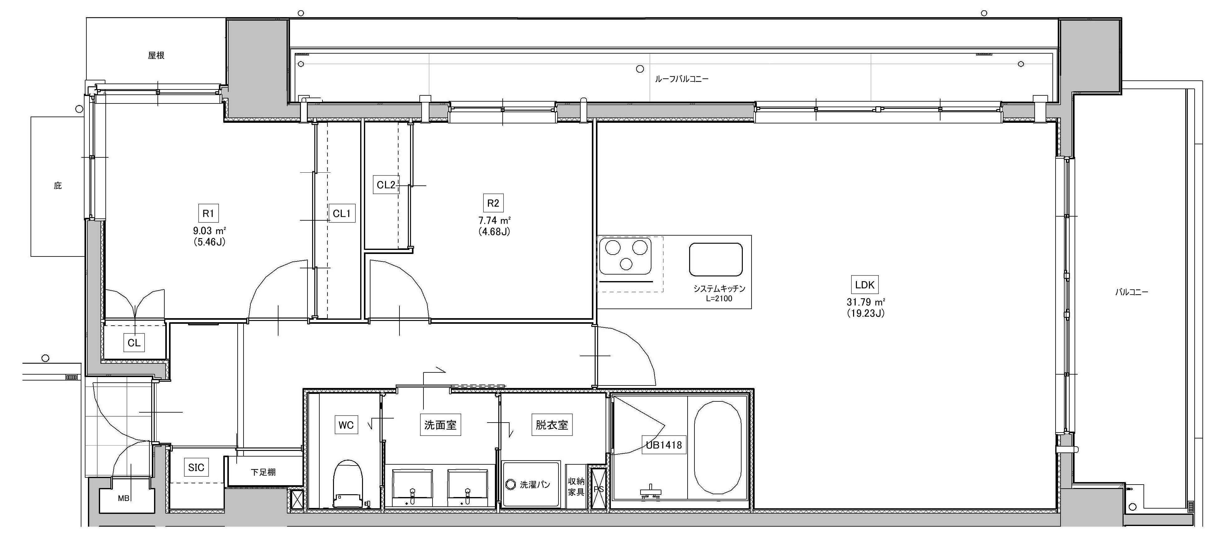
間取り 1LDK 専有面積 72.41m2
築年月 2025年7月 築年数 新築
おすすめポイント
高級感溢れる内装にホテルライク+分譲マンション級の設備 ★☆ キャンペーン中 ☆★  【12月26日までの本申込に限り】・礼金3ケ月→2ヶ月 ・賃料5000円ダウン【2026年12月より通常賃料】 ★中、大型犬要相談★
お問い合わせ先
(株)ケイ・インターナショナル
お問い合わせ先
(株)ケイ・インターナショナル

詳細情報

賃料 21.6万円 管理費等 18000円
敷金 1ヶ月 礼金 3ヶ月
保証金 なし 敷引・償却 -
更新料 - 契約期間
カード決済 -
所在地 大阪府豊中市北桜塚3周辺地図
交通
建物名 マニフィーク北桜塚 
間取り 1LDK(洋5.4 洋4.6 LDK19.2) 築年月(築年数) 2025年7月 新築
専有面積 72.41㎡ 所在階/階数 4階/5階建
建物構造 RC  方位 南西 
現況   駐車場 有 25,000円
入居可能時期 即時 住宅保険 あり 2年 24000円
情報提供元 SUUMO[060H100461087700] 情報公開日
情報更新日 次回更新予定日 随時

設備など

2階以上 最上階 - 角部屋 -
駐車場(近隣含) エアコン付き - バス・トイレ別
室内洗濯機置き場 追焚機能 オートロック付き
モニタ付インターホン フローリング - バルコニー
ガスコンロ可 - 浴室乾燥機 24時間セキュリティ -
宅配ボックス ペット相談可 二人入居可
設備 オートロック・バルコニー・バス・トイレ別・トイレ・収納スペース・洗濯機置場・洗面所・追焚機能・浴室乾燥機・照明器具・シャンプードレッサ・温水洗浄便座・システムキッチン・カウンターキッチン・モニタ付インターホン・宅配BOX・駐輪場・風呂・対面K・クローゼット・ルーフバルコニー・床暖房・衣類乾燥機・食器洗浄乾燥機・都市ガス・浄水器・食器乾燥機・浴トイレ別・車庫・防犯カメラ・洗面所独立・バイク置き場・コンロ2口以上・シューズボックス・インターネット対応・室内洗濯機置き場 
リフォーム履歴 -
リノベーション履歴 -
備考 ペット飼育:賃料6000円UP【小型犬】  中、大型犬要相談/二人入居可/子供可/ペット相談/バストイレ別/バルコニー/クロゼット/シャワー付洗面台/TVインターホン/浴室乾燥機/オートロック/室内洗濯置/シューズボックス/システムキッチン/追焚機能浴室/温水洗浄便座/脱衣所/洗面所独立/駐輪場/宅配ボックス/光ファイバー/3口以上コンロ/対面式キッチン/防犯カメラ/ペット相談/バイク置場/浄水器/床暖房/食器洗乾燥機/ルーフバルコニー/築2年以内/人感照明センサー/浴室未使用/敷地内ごみ置き場/専有面積30坪以上/電動シャッター車庫/平面駐車場/セキュリティ会社加入済/オープンキッチン/都市ガス/間接照明/ダウンライト/フットライト/巡回管理/サンディ豊中夕日丘店(スーパー)まで614m/ファミリーマート豊中中桜塚店(コンビニ)まで260m/大阪府立桜塚高校(高校・高専)まで389m/豊中市立第三中学校(中学校)まで494m/医療法人真正会真正会病院(病院)まで205m/豊中市役所(役所)まで540m 
特記事項 ペット相談可・二人入居可・管理人巡回

省エネ性能

エネルギー消費性能 -
断熱性能 -
目安光熱費 -

大阪府豊中市北桜塚3 周辺地図情報

地図
※地図上に表示される物件の位置は付近住所に所在することを表すものであり、実際の物件所在地とは異なる場合がございます。
   正確な物件所在地は、取扱い不動産会社にお問い合わせください。
お問い合わせ先
(株)ケイ・インターナショナル

不動産会社情報

お問い合わせ先 商号:(株)ケイ・インターナショナル
免許番号:大阪府知事(7)第41685号
所在地:大阪府大阪市北区堂山町 1-2 R&Eビル4階
TEL:06-6361-8488
取引態様:仲介
管理コード:
所属協会など:(公社)近畿地区不動産公正取引協議会加盟、(一社)大阪府宅地建物取引業協会会員
共有する
QRコード
お問い合わせ先
(株)ケイ・インターナショナル

    豊中市の暮らしデータ

    人口などの統計情報

    世帯数 176759世帯
    人口総数 406836人
    転入者数 20207人
    転入率(人口1000人当たり)
    49.67人
    転出者数 19359人
    転出率(人口1000人当たり)
    47.58人
    土地平均価格
    住宅地
    242750円/m2
    商業地
    358500円/m2

    結婚・育児の助成金

    子育て関連の独自の取り組み (1)子育て情報をまとめた「子育て応援BOOK『みんなで』」を配布。(2)こんにちは赤ちゃん事業(乳児家庭全戸訪問事業)。(3)保護者支援プログラムの実施(「安心感の輪」子育てプログラム)。 (4)多胎児家庭育児支援事業の実施。(5)とよなか子育て応援団(子育て家庭に配慮した取組みをする事業者を登録・周知)。(6)子育ち・子育て応援アプリ 「とよふぁみ」(成長記録や予防接種のスケジュール管理と、行政サービスやイベント等の情報発信)。(7)午前7時から登校時間(午前8時)まで、通学する小学校及び義務教育学校の体育館等での児童の見守り。(8)第二子以降の保育料無料。(9)豊中市立学校における学校教育活動徴収金無償化。
    出産祝い あり
    公立保育所数 0所(うち0歳児保育を実施している保育所:-)
    私立保育所数 48所(うち0歳児保育を実施している保育所:46所)
    保育所入所待機児童数 28人
    認定こども園数 59園 預かり保育実施園数 公立:- 私立:14園
    学校給食 【小学校】完全給食【中学校】デリバリー形式[運搬:ランチボックス及び食缶、内容:完全給食]
    公立中学校の学校選択制 未実施
    子ども・学生等医療費助成<通院>対象年齢 18歳3月末まで 子ども・学生等医療費助成<入院>対象年齢 18歳3月末まで

    豊中市の治安・ごみ収集情報

    公共料金・インフラ

    ガス料金(22m3使用した場合の月額) 大阪瓦斯株式会社4544円
    水道料金(口径20mmで20m3の月額) 豊中市2497円
    下水道料金(20m3を使用した場合の月額) 豊中市1421円
    下水道普及率 100.0%

    安心・安全

    建物火災出火件数 63件
    人口10000人当たり
    1.57件
    刑法犯認知件数 2040件
    人口1000人当たり
    5.08件
    ハザード・防災マップ あり

    医療

    一般病院総数 17ヶ所
    一般診療所総数 430ヶ所
    小児科医師数 71人
    小児人口10000人当たり
    13.09人
    産婦人科医師数 33人
    15~49歳女性人口1万人当たり
    4.00人
    介護保険料基準額(月額) 6998円

    ごみ

    家庭ごみ収集(可燃ごみ) 無料
    備考
    引越し等で、臨時に大量のごみを排出する場合は収集時に現金徴収。
    家庭ごみの分別方式 8分別〔可燃ごみ 不燃ごみ 空き缶・危険ごみ 充電式電池内蔵の小型家電・電池類 プラスチック製容器包装 ペットボトル ビン 紙・布〕 拠点回収:使用済小型家電 水銀使用廃製品
    家庭ごみの戸別収集 一部実施(【ふれあい収集】対象要件を満たした高齢者及び障害者に実施)
    粗大ごみ収集 あり
    備考
    有料。事前申込制。
    生ごみ処理機助成金制度 なし
    上限金額
    -
    上限比率
    -
    暮らしデータ提供元:生活ガイド.com
    ※行政機関により公表していない地域及びデータがございます。東京23区以外の政令指定都市は、市全体のデータとして表示しています。
    ※提供データには細心の注意を払っておりますが、調査後に変更がある場合があります。 最新の情報につきましては各市区役所までお問い合わせいただくか、自治体HPなどをご確認ください。
    OCN×ドコモ光新規お申込みで合計最大137,280円相当おトク!特典の内訳・適用条件など詳細はこちら

    豊中市内の各駅の住みやすさ

    他のエリアから探す

    豊中市の詳細地域から賃貸物件を探す

    赤阪旭丘石橋麻田町稲津町今在家町上野坂上野西上野東永楽荘大字上新田大島町岡上の町岡町岡町北岡町南小曽根春日町勝部上新田北桜塚北条町北緑丘熊野町栗ケ丘町上津島桜の町三和町柴原町島江町少路庄内幸町庄内栄町庄内宝町庄内西町庄内東町庄本町城山町新千里北町新千里西町新千里東町新千里南町末広町清風荘千成町千里園曽根西町曽根東町曽根南町立花町玉井町大黒町長興寺北長興寺南寺内利倉利倉西利倉東刀根山刀根山元町中桜塚西泉丘西緑丘野田町走井服部寿町服部西町服部本町服部南町服部元町服部豊町原田中原田南原田元町東泉丘東寺内町東豊中町日出町二葉町宝山町豊南町西豊南町東豊南町南螢池北町螢池中町螢池西町螢池東町螢池南町穂積本町待兼山町三国緑丘南桜塚箕輪宮山町向丘名神口山ノ上町夕日丘若竹町

    近辺の市区から探す

    大阪市都島区大阪市福島区大阪市此花区大阪市西区大阪市西淀川区大阪市東淀川区大阪市旭区大阪市城東区大阪市淀川区大阪市鶴見区大阪市北区大阪市中央区池田市吹田市守口市茨木市箕面市門真市摂津市尼崎市西宮市伊丹市宝塚市川西市

    周辺の駅から探す

    阪急電鉄宝塚線
    庄内服部天神曽根岡町豊中蛍池石橋阪大前池田川西能勢口

    大阪府豊中市で他のジャンルから探す


    掲載情報の著作権は提供元企業等に帰属します。
    Copyright:(C) 2025 Recruit Co., Ltd.
    アプリで簡単 物件探し 大手不動産サイトの情報から一括検!プッシュ通知で物件を見逃さない
    App Storeからダウンロード Google Playで手に入れよう QRコード