アプリで簡単 物件探し 通知 共有 アプリならではの機能を使ってみる
賃貸マンション

S-RESIDENCE堺湊駅前azure 湊駅 1K 賃貸(賃貸マンション・アパート)

情報提供元
SUUMO
S-RESIDENCE堺湊駅前azure
賃料 5.8万円  (管理費等:10000円)
礼金・敷金 1ヶ月 / なし 保証金/敷引・償却 なし / -
交通
所在地 大阪府堺市堺区出島海岸通1周辺地図
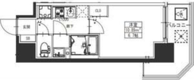
間取り 1K 専有面積 23.06m2
築年月 2025年9月 築年数 新築
おすすめポイント
仲介手数料0円のハッピーホーム堺店でハッピーにお部屋探し^^ 現地待ち合わせでのお部屋の内覧予約も可能です♪気になる物件はまずはお気軽にお問合せを。仲介手数料が0円のハッピーホーム堺店にお部屋探しはお任せ下さい^^

詳細情報

賃料 5.8万円 管理費等 10000円
敷金 なし 礼金 1ヶ月
保証金 なし 敷引・償却 -
更新料 - 契約期間
カード決済 -
所在地 大阪府堺市堺区出島海岸通1周辺地図
交通
建物名 S-RESIDENCE堺湊駅前azure 
間取り 1K(洋6.7) 築年月(築年数) 2025年9月 新築
専有面積 23.06㎡ 所在階/階数 3階/14階建
建物構造 RC  方位 南東 
現況   駐車場 有 14,300円
入居可能時期 即時 住宅保険 あり 2年 18000円
情報提供元 SUUMO[060H100469005828] 情報公開日
情報更新日 次回更新予定日 随時

設備など

2階以上 最上階 - 角部屋
駐車場(近隣含) エアコン付き バス・トイレ別
室内洗濯機置き場 追焚機能 - オートロック付き
モニタ付インターホン フローリング バルコニー -
ガスコンロ可 浴室乾燥機 24時間セキュリティ -
宅配ボックス ペット相談可 - 二人入居可 -
設備 冷房・暖房・エアコン・オートロック・バス・トイレ別・トイレ・収納スペース・洗濯機置場・洗面所・エレベーター・CATV・BS端子・フローリング・浴室乾燥機・照明器具・ガスコンロ可・シャンプードレッサ・温水洗浄便座・システムキッチン・モニタ付インターホン・宅配BOX・駐輪場・クローゼット・CS・衣類乾燥機・都市ガス・ディンプルキー・浴トイレ別・防犯カメラ・洗面所独立・バイク置き場・コンロ2口以上・シューズボックス・インターネット無料・インターネット対応・室内洗濯機置き場 
リフォーム履歴 -
リノベーション履歴 -
備考 AC清掃代 16500円/退去時 鍵交換 27500円/退去時 ハウスクリーニング 33000円/退去時 水道料 2530円/月額 更新料 1ヶ月/仲介手数料不要/普通借家02年/現地待ち合わせや駅までのお迎えなど柔軟に対応可能です。保証人無しや交渉など何でもご相談下さい。敷金・礼金0円物件や生活保護の方もOKの物件を多数ご紹介可能でございます。希望条件でのオススメ類似物件のご提案等もスムーズにご対応致します。堺市全域どの物件でも仲介手数料が0円のハッピーホーム堺店にお部屋探しはお任せ下さい^^/バストイレ別/エアコン/ガスコンロ対応/クロゼット/フローリング/シャワー付洗面台/TVインターホン/浴室乾燥機/オートロック/室内洗濯置/陽当り良好/シューズボックス/システムキッチン/角住戸/温水洗浄便座/脱衣所/エレベーター/洗面所独立/2口コンロ/駐輪場/宅配ボックス/CATV/光ファイバー/即入居可/閑静な住宅地/BS・CS/敷金不要/防犯カメラ/保証人不要/東南角住戸/仲介手数料不要/バイク置場/全居室フローリング/デザイナーズ/2沿線利用可/ディンプルキー/CS/駅まで平坦/ネット使用料不要/24時間換気システム/未入居/3駅以上利用可/駅徒歩5分以内/敷地内ごみ置き場/東南向き/全居室6畳以上/都市ガス/洗面所にドア/間接照明/BS/高速ネット対応/礼金1ヶ月/通風良好/日之出屋御陵前店(スーパー)まで651m/セブンイレブン堺大浜南町2丁店(コンビニ)まで239m/ドラッグセイムス堺東湊店(ドラッグストア)まで1068m/医療法人いずみ会阪堺病院(病院)まで915m/大阪府西堺警察署(警察署・交番)まで5051m/南海本線 堺駅徒歩22分/賃貸戸数:104戸 
特記事項 角部屋・日当り良好・閑静な住宅街・デザイナーズ物件・保証人不要/代行

省エネ性能

エネルギー消費性能 -
断熱性能 -
目安光熱費 -

大阪府堺市堺区出島海岸通1 周辺地図情報

地図
※地図上に表示される物件の位置は付近住所に所在することを表すものであり、実際の物件所在地とは異なる場合がございます。
   正確な物件所在地は、取扱い不動産会社にお問い合わせください。

不動産会社情報

お問い合わせ先 商号:ハッピーホーム堺店
免許番号:大阪府知事(2)第61255号
所在地:大阪府堺市北区北長尾町4-5-8 協商ビル1階-A
TEL:072-283-3019
取引態様:仲介
管理コード:13158218
所属協会など:(公社)近畿地区不動産公正取引協議会加盟、(公社)全日本不動産協会大阪府本部会員
共有する
QRコード

    堺市堺区の暮らしデータ

    人口などの統計情報

    世帯数 365535世帯
    人口総数 817041人
    転入者数 37003人
    転入率(人口1000人当たり)
    45.29人
    転出者数 35961人
    転出率(人口1000人当たり)
    44.01人
    土地平均価格
    住宅地
    143254円/m2
    商業地
    254357円/m2

    結婚・育児の助成金

    子育て関連の独自の取り組み (1)「さかいマイ保育園」の実施(身近な保育所[園]をかかりつけ保育園として登録)。(2)子ども食堂。(3)子育て応援アプリ。
    出産祝い あり
    公立保育所数 0所(うち0歳児保育を実施している保育所:-)
    私立保育所数 24所(うち0歳児保育を実施している保育所:24所)
    保育所入所待機児童数 0人
    認定こども園数 136園 預かり保育実施園数 公立:4園 私立:5園
    学校給食 【小学校】完全給食【中学校】家庭弁当等との選択制/デリバリー形式[運搬:ランチボックス、内容:完全給食]
    公立中学校の学校選択制 一部実施
    子ども・学生等医療費助成<通院>対象年齢 18歳3月末まで 子ども・学生等医療費助成<入院>対象年齢 18歳3月末まで

    堺市堺区の治安・ごみ収集情報

    公共料金・インフラ

    ガス料金(22m3使用した場合の月額) 大阪瓦斯株式会社4544円
    水道料金(口径20mmで20m3の月額) 堺市2464円
    下水道料金(20m3を使用した場合の月額) 堺市2821円
    下水道普及率 98.5%

    安心・安全

    建物火災出火件数 115件
    人口10000人当たり
    1.39件
    刑法犯認知件数 6173件
    人口1000人当たり
    7.47件
    ハザード・防災マップ あり

    医療

    一般病院総数 39ヶ所
    一般診療所総数 744ヶ所
    小児科医師数 108人
    小児人口10000人当たり
    11.15人
    産婦人科医師数 73人
    15~49歳女性人口1万人当たり
    4.60人
    介護保険料基準額(月額) 7418円

    ごみ

    家庭ごみ収集(可燃ごみ) 無料
    備考
    -
    家庭ごみの分別方式 2分別12種〔生活ごみ 資源(缶類・びん類、プラスチック製容器包装、ペットボトル、小型金属[金属、刃物類、スプレー缶・カセットボンベ]、古紙類[新聞、雑誌、ダンボール、紙パック]、不燃小物類)〕
    家庭ごみの戸別収集 実施
    粗大ごみ収集 あり
    備考
    有料。戸別収集。事前申込制。粗大ごみ処理券を貼付。
    生ごみ処理機助成金制度 なし
    上限金額
    -
    上限比率
    -
    暮らしデータ提供元:生活ガイド.com
    ※行政機関により公表していない地域及びデータがございます。東京23区以外の政令指定都市は、市全体のデータとして表示しています。
    ※提供データには細心の注意を払っておりますが、調査後に変更がある場合があります。 最新の情報につきましては各市区役所までお問い合わせいただくか、自治体HPなどをご確認ください。
    OCN×ドコモ光新規お申込みで合計最大137,280円相当おトク!特典の内訳・適用条件など詳細はこちら

    堺市堺区内の各駅の住みやすさ

    他のエリアから探す

    堺市堺区の詳細地域から賃貸物件を探す

    浅香山町旭ヶ丘北町旭ヶ丘中町旭ヶ丘南町旭通綾之町西綾之町東石津北町石津町一条通市之町西市之町東今池町永代町榎元町戎島町戎之町西戎之町東老松町大町西大町東大浜北町大浜中町大浜南町翁橋町遠里小野町海山町甲斐町西甲斐町東香ヶ丘町柏木町春日通霞ヶ丘町神石市之町神南辺町北瓦町北向陽町北清水町北庄町北田出井町北旅籠町西北旅籠町東北花田口町北半町西北半町東北丸保園北三国ヶ丘町北安井町京町通錦綾町九間町西櫛屋町東楠町熊野町西熊野町東車之町西車之町東向陵中町向陵西町向陵東町五条通幸通栄橋町桜之町西桜之町東五月町三条通三宝町材木町西材木町東七条通七道西町七道東町東雲西町宿院町西宿院町東宿屋町西宿屋町東少林寺町西少林寺町東昭和通新在家町西新在家町東神保通新町神明町西神明町東菅原通砂道町住吉橋町高砂町高須町田出井町大仙中町大仙西町鉄砲町寺地町西寺地町東出島海岸通出島町出島浜通中瓦町中向陽町中田出井町中永山園中之町西中之町東中三国ヶ丘町中安井町並松町南陵町賑町錦之町西錦之町東西永山園西湊町二条通東上野芝町東湊町松屋町松屋大和川通三国ヶ丘御幸通緑ヶ丘北町緑ヶ丘中町緑ヶ丘南町緑町南瓦町南向陽町南清水町南庄町南島町南田出井町南旅篭町西南旅篭町東南花田口町南半町西南半町東南丸保園南三国ヶ丘町南安井町百舌鳥夕雲町文珠橋通八千代通柳之町西柳之町東山本町竜神橋町陵西通六条通

    近辺の市区から探す

    大阪市此花区大阪市西区大阪市港区大阪市大正区大阪市天王寺区大阪市浪速区大阪市東成区大阪市生野区大阪市阿倍野区大阪市住吉区大阪市東住吉区大阪市西成区大阪市住之江区大阪市平野区大阪市中央区堺市中区堺市東区堺市西区堺市南区堺市北区堺市美原区泉大津市八尾市松原市和泉市羽曳野市高石市藤井寺市大阪狭山市泉北郡忠岡町

    周辺の駅から探す

    南海電鉄南海本線
    住吉大社住ノ江七道石津川諏訪ノ森浜寺公園羽衣
    阪堺電気軌道阪堺線
    花田口大小路宿院寺地町御陵前東湊石津北石津船尾

    大阪府堺市堺区で他のジャンルから探す


    掲載情報の著作権は提供元企業等に帰属します。
    Copyright:(C) 2025 Recruit Co., Ltd.
    アプリで簡単 物件探し 大手不動産サイトの情報から一括検!プッシュ通知で物件を見逃さない
    App Storeからダウンロード Google Playで手に入れよう QRコード