アプリで簡単 物件探し 通知 共有 アプリならではの機能を使ってみる
賃貸マンション

アビターレ油小路 京都駅 1K 賃貸(賃貸マンション・アパート)

情報提供元
SUUMO
アビターレ油小路
賃料 5.7万円  (管理費等:5700円)
礼金・敷金 1ヶ月 / なし 保証金/敷引・償却 なし / -
交通
所在地 京都府京都市下京区玉本町周辺地図
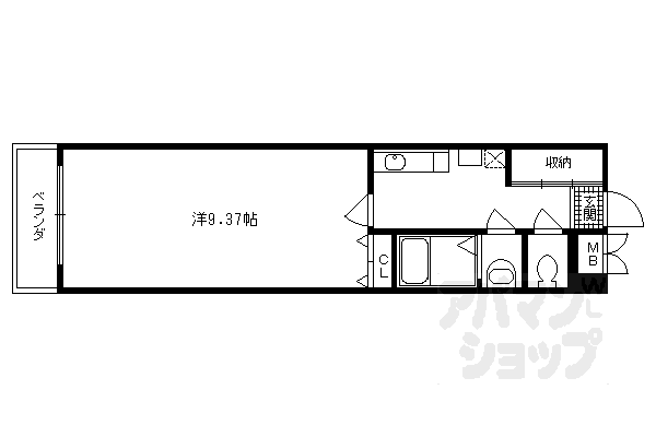
間取り 1K 専有面積 28.42m2
築年月 2007年6月 築年数 築18年7ヶ月
おすすめポイント
当社は来店不要のオンライン相談、オンライン申込み可能です! 「京都駅前店のこだわり…室内写真は広角レンズ等を使わずに出来る限り現状のお部屋をお伝え出来るよう撮影してます。」IH・ラジエントヒータの2口電気コンロ付き!西本願寺・東本願寺の間に位置し、京都ら...
お問い合わせ先
アパマンショップ二条駅前店ウインズリンク(株)
お問い合わせ先
アパマンショップ二条駅前店ウインズリンク(株)

詳細情報

賃料 5.7万円 管理費等 5700円
敷金 なし 礼金 1ヶ月
保証金 なし 敷引・償却 -
更新料 - 契約期間 定期借家 2年
カード決済 -
所在地 京都府京都市下京区玉本町周辺地図
交通
建物名 アビターレ油小路 
間取り 1K(洋9.37 K3) 築年月(築年数) 2007年6月(築18年7ヶ月)
専有面積 28.42㎡ 所在階/階数 1階/3階建
建物構造 RC  方位 東 
現況   駐車場 有 27,000円
入居可能時期 即時 住宅保険 あり 2年 15000円
情報提供元 SUUMO[060H100468648063] 情報公開日
情報更新日 次回更新予定日 随時

設備など

2階以上 - 最上階 - 角部屋 -
駐車場(近隣含) エアコン付き バス・トイレ別
室内洗濯機置き場 追焚機能 - オートロック付き
モニタ付インターホン フローリング バルコニー
ガスコンロ可 - 浴室乾燥機 - 24時間セキュリティ -
宅配ボックス ペット相談可 - 二人入居可 -
設備 冷房・暖房・エアコン・オートロック・バルコニー・バス・トイレ別・トイレ・収納スペース・洗濯機置場・洗面所・エレベーター・BS端子・フローリング・シャンプードレッサ・温水洗浄便座・システムキッチン・モニタ付インターホン・宅配BOX・駐輪場・CS・ディンプルキー・浴トイレ別・洗面所独立・バイク置き場・コンロ2口以上・シューズボックス・インターネット対応・室内洗濯機置き場 
リフォーム履歴 -
リノベーション履歴 -
備考 町会費300円/月 ハウスクリーニング代2.75万円/退去時 入居者サポート1.65万円/2年/保証会社利用必:初回:月額賃料等の50%、月額:システム利用料330円、更新時:1万円/1年/定期借家2年00ヶ月/更新料:新家賃1ヶ月 更新手数料:11000円/バストイレ別/バルコニー/エアコン/フローリング/シャワー付洗面台/TVインターホン/オートロック/室内洗濯置/シューズボックス/システムキッチン/温水洗浄便座/脱衣所/エレベーター/洗面所独立/2口コンロ/駐輪場/宅配ボックス/押入/光ファイバー/即入居可/敷金不要/電気コンロ/全居室洋室/単身者相談/バイク置場/オール電化/ディンプルキー/CS/3駅以上利用可/駅徒歩10分以内/24時間ゴミ出し可/敷地内ごみ置き場/全居室8畳以上/BS/礼金1ヶ月/IT重説 対応物件/ローソン京都西本願寺前店(コンビニ)まで282m/エビスク(スーパー)まで615m/武田病院(病院)まで602m/セブンイレブン京都七条大宮店(コンビニ)まで597m/ヨドバシカメラ(その他)まで780m/京都中央郵便局(郵便局)まで766m/京阪本線七条駅徒歩20分/賃貸戸数:25戸 
特記事項 オール電化

省エネ性能

エネルギー消費性能 -
断熱性能 -
目安光熱費 -

京都府京都市下京区玉本町 周辺地図情報

地図
※地図上に表示される物件の位置は付近住所に所在することを表すものであり、実際の物件所在地とは異なる場合がございます。
   正確な物件所在地は、取扱い不動産会社にお問い合わせください。
お問い合わせ先
アパマンショップ二条駅前店ウインズリンク(株)

不動産会社情報

お問い合わせ先 商号:アパマンショップ二条駅前店ウインズリンク(株)
免許番号:京都府知事(5)第11578号
所在地:京都府京都市中京区西ノ京南聖町 12-6
TEL:075-334-8383
取引態様:仲介
管理コード:02-W89338-105
所属協会など:(公社)近畿地区不動産公正取引協議会加盟、(公社)京都府宅地建物取引業協会会員
共有する
QRコード
お問い合わせ先
アパマンショップ二条駅前店ウインズリンク(株)

    京都市下京区の暮らしデータ

    人口などの統計情報

    世帯数 728744世帯
    人口総数 1379529人
    転入者数 85315人
    転入率(人口1000人当たり)
    61.84人
    転出者数 80567人
    転出率(人口1000人当たり)
    58.40人
    土地平均価格
    住宅地
    220880円/m2
    商業地
    1290411円/m2

    結婚・育児の助成金

    子育て関連の独自の取り組み (1)乳幼児の子育て支援機能や学童クラブ機能等を有する児童館設置。(2)こんにちはプレママ事業。(3)児童虐待未然防止に係る医療機関と子どもはぐくみ室及び京北出張所の連携。(4)子ども保健医療相談・事故防止センター設置。(5)京都はぐくみアプリ配信。(6)子育て支援コンシェルジュ育成。(7)骨髄移植手術等により免疫を喪失した子どもへのワクチン再接種費用助成制度。(8)子どもを共に育む京都市民憲章の制定、憲章の実践・普及の促進。(9)【京都安心すまい応援金】未就学の子どもがいる世帯を対象に、自己居住用として既存住宅を購入し、リフォームを行う場合に、最大200万円の応援金を交付。
    出産祝い あり
    公立保育所数 14所(うち0歳児保育を実施している保育所:13所)
    私立保育所数 196所(うち0歳児保育を実施している保育所:188所)
    保育所入所待機児童数 0人
    認定こども園数 83園 預かり保育実施園数 公立:15園 私立:81園
    学校給食 【小学校】完全給食【中学校】完全給食 家庭弁当等との選択制/デリバリー形式[運搬:ランチボックス、内容:完全給食] 給食なし
    公立中学校の学校選択制 未実施
    子ども・学生等医療費助成<通院>対象年齢 中学校卒業まで 子ども・学生等医療費助成<入院>対象年齢 中学校卒業まで

    京都市下京区の治安・ごみ収集情報

    公共料金・インフラ

    ガス料金(22m3使用した場合の月額) 大阪瓦斯株式会社4544円
    水道料金(口径20mmで20m3の月額) 京都市3014円
    下水道料金(20m3を使用した場合の月額) 京都市2013円
    下水道普及率 99.5%

    安心・安全

    建物火災出火件数 158件
    人口10000人当たり
    1.08件
    刑法犯認知件数 8104件
    人口1000人当たり
    5.54件
    ハザード・防災マップ あり

    医療

    一般病院総数 89ヶ所
    一般診療所総数 1622ヶ所
    小児科医師数 397人
    小児人口10000人当たり
    27.26人
    産婦人科医師数 201人
    15~49歳女性人口1万人当たり
    7.16人
    介護保険料基準額(月額) 7160円

    ごみ

    家庭ごみ収集(可燃ごみ) 有料
    備考
    指定ごみ袋有料。
    家庭ごみの分別方式 5分別8種〔燃やすごみ 缶・びん・ペットボトル プラスチック類 小型金属類・スプレー缶 雑がみ〕 拠点回収:移動式拠点回収):古紙(新聞・ダンボール) 雑がみ 紙パック 使用済てんぷら油 古着類 乾電池 ボタン電池 充電式電池 蛍光管 水銀体温計・水銀血圧計 小型家電 磁気テープ類 インクカートリッジ リユースびん 刃物類 使い捨てライター 陶磁器製の食器 せん定枝木の枝 石油類 医薬品・農薬 化学薬品・塗料・ワックス・絵の具 洗浄剤
    家庭ごみの戸別収集 一部実施(原則定点としているが、一部地域で狭路等やむを得ない事情がある場合のみ実施。また、ごみ出しが困難な高齢者や障害のある方などの生活支援の一つとして、御自宅の玄関先までごみの収集に伺う「ごみ収集福祉サービス[まごころ収集]」を実施)
    粗大ごみ収集 あり
    備考
    有料。事前申込制。
    生ごみ処理機助成金制度 なし
    上限金額
    -
    上限比率
    -
    暮らしデータ提供元:生活ガイド.com
    ※行政機関により公表していない地域及びデータがございます。東京23区以外の政令指定都市は、市全体のデータとして表示しています。
    ※提供データには細心の注意を払っておりますが、調査後に変更がある場合があります。 最新の情報につきましては各市区役所までお問い合わせいただくか、自治体HPなどをご確認ください。
    OCN×ドコモ光新規お申込みで合計最大137,280円相当おトク!特典の内訳・適用条件など詳細はこちら

    京都市下京区内の各駅の住みやすさ

    他のエリアから探す

    京都市下京区の詳細地域から賃貸物件を探す

    相之町悪王子町朝妻町芦刈山町新シ町安土町油小路町飴屋町綾大宮町綾材木町綾西洞院町綾堀川町石井筒町石不動之町和泉町和泉屋町市之町井筒町糸屋町因幡堂町稲荷町稲荷町稲荷町今大黒町岩滝町岩戸山町植松町植松町艮町打越町梅小路石橋町梅小路高畑町梅小路西中町梅湊町裏片町永養寺町榎木町恵美須之町夷之町夷之町夷馬場町大江町扇酒屋町大坂町大津町大堀町大宮1丁目大宮2丁目大宮3丁目大宮町小田原町柿本町鍵屋町鍵屋町傘鉾町風早町柏屋町鍛冶屋町鍛冶屋町堅田町堅田町堅田町郭巨山町金換町鎌屋町上鱗形町上夷町上金仏町上糀屋町上五条町上三之宮町上諏訪町上長福寺町上中之町上之町上之町上平野町上柳町上柳町上柳町亀屋町亀屋町烏丸2丁目唐物町雁金町雁金町観喜寺町官社殿町菅大臣町学林町元日町菊屋町菊屋町北町北不動堂町北門前町吉文字町吉文字町京極町喜吉町小石町小泉町小稲荷町幸竹町高野堂町粉川町小島町紺屋町郷之町御器屋町御供石町五条烏丸町五坊大宮町堺町堺町堺町佐竹町佐女牛井町晒屋町三軒町山王町山王町材木町材木町材木町塩竈町塩小路町塩屋町塩屋町塩屋町四条町四条堀川町七条御所ノ内北町七条御所ノ内中町七条御所ノ内西町七条御所ノ内本町七条御所ノ内南町四本松町清水町清水町志水町下鱗形町下五条町下三之宮町下長福寺町下二之宮町下平野町俊成町卓屋町新釜座町新日吉町神明町順風町杉蛭子町杉屋町朱雀北ノ口町朱雀正会町朱雀分木町朱雀宝蔵町筋屋町住吉町住吉町諏訪開町瀬戸屋町泉水町善長寺町太子山町高材木町高辻猪熊町高辻大宮町高辻町高辻西洞院町高辻堀川町竹屋之町橘町橘町橘町立中町辰巳町足袋屋町玉津島町玉本町玉屋町溜池町俵屋町俵屋町大工町大工町大黒町大黒町大黒町醍醐町大寿町茶磨屋町茶磨屋町忠庵町中堂寺鍵田町中堂寺北町中堂寺櫛笥町中堂寺庄ノ内町中堂寺西寺町中堂寺坊城町中堂寺前田町中堂寺前町中堂寺南町中堂寺壬生川町中堂寺薮ノ内町突抜1丁目月鉾町月見町土橋町葛籠屋町徹宝町天使突抜1丁目天使突抜3丁目天使突抜4丁目天神町天神前町天満町燈籠町木賊山町徳屋町富永町富永町富永町富松町中金仏町中之町中野之町永倉町永原町鍋屋町納屋町難波町匂天神町西綾小路西半町西綾小路東半町西錺屋町西側町西境町西七条赤社町西七条石井町西七条市部町西七条御前田町西七条掛越町西七条北衣田町西七条北月読町西七条北西野町西七条北東野町西七条御領町西七条中野町西七条名倉町西七条西石ケ坪町西七条西八反田町西七条東石ケ坪町西七条東御前田町西七条東久保町西七条東八反田町西七条比輪田町西七条南衣田町西七条南月読町西七条南中野町西七条南西野町西七条南東野町西七条八幡町西新屋敷上之町西新屋敷下之町西新屋敷太夫町西新屋敷中堂寺町西新屋敷中之町西高辻町西玉水町西田町西洞院町西橋詰町西前町西松屋町西八百屋町西若松町廿人講町二人司町塗師屋町塗師屋町布屋町白楽天町八王子町八文字町花畑町花屋町繁昌町東魚屋町東境町東塩小路町東塩小路向畑町東若松町平居町平野町平屋町毘沙門町深草町福島町福本町船鉾町麓町古御旅町仏具屋町仏具屋町仏光寺東町骨屋町骨屋町堀詰町堀之内町堀之上町本覚寺前町本燈籠町本柳水町坊門町坊門中之町真苧屋町桝屋町升屋町松川町松原中之町松本町松本町丸屋町丸屋町万寿寺町万寿寺中之町御影堂町御影町御影堂前町南夷町南京極町南町南不動堂町南八百屋町妙伝寺町妙満寺町元悪王子町本上神明町本塩竈町本神明町元両替町紅葉町文覚町屋形町薬園町矢田町八ツ柳町柳町藪下町藪之内町八幡町夕顔町要法寺町吉水町吉水町万屋町来迎堂町若松町若宮町若宮町若宮町和気町

    近辺の市区から探す

    大津市京都市北区京都市上京区京都市左京区京都市中京区京都市東山区京都市南区京都市右京区京都市伏見区京都市山科区京都市西京区宇治市向日市長岡京市乙訓郡大山崎町久世郡久御山町

    周辺の駅から探す

    東海道本線
    石山膳所大津山科京都西大路桂川向日町長岡京
    京都市烏丸線
    今出川丸太町烏丸御池四条五条京都九条十条くいな橋

    京都府京都市下京区で他のジャンルから探す


    掲載情報の著作権は提供元企業等に帰属します。
    Copyright:(C) 2025 Recruit Co., Ltd.
    アプリで簡単 物件探し 大手不動産サイトの情報から一括検!プッシュ通知で物件を見逃さない
    App Storeからダウンロード Google Playで手に入れよう QRコード