アプリで簡単 物件探し 通知 共有 アプリならではの機能を使ってみる
賃貸マンション

ラナップスクエア京都鴨川 清水五条駅 1K 賃貸(賃貸マンション・アパート)

情報提供元
SUUMO
ラナップスクエア京都鴨川
賃料 5.9万円  (管理費等:7200円)
礼金・敷金 6.62万円 / なし 保証金/敷引・償却 なし / -
交通
所在地 京都府京都市東山区宮川筋8周辺地図
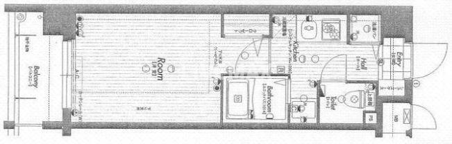
間取り 1K 専有面積 22.92m2
築年月 2006年11月 築年数 築19年2ヶ月
おすすめポイント
女性スタッフ・ベテランスタッフ在籍★何でもご相談ください★ クレジット決済可★造りのしっかりとした分譲マンション★敷金・更新料ナシ★2口ガスシステムキッチン、浴室乾燥機付きの設備充実★新入生様・新社会人様におススメ★近隣に大型スーパーも有り生活環境良好★
お問い合わせ先
リブ・マックス京都駅前店(株)リブマックスリーシング
お問い合わせ先
リブ・マックス京都駅前店(株)リブマックスリーシング

詳細情報

賃料 5.9万円 管理費等 7200円
敷金 なし 礼金 6.62万円
保証金 なし 敷引・償却 -
更新料 - 契約期間
カード決済 初期費用カード決済可
所在地 京都府京都市東山区宮川筋8周辺地図
交通
建物名 ラナップスクエア京都鴨川 
間取り 1K(洋6.5 K2.0) 築年月(築年数) 2006年11月(築19年2ヶ月)
専有面積 22.92㎡ 所在階/階数 2階/7階建
建物構造 RC  方位 南 
現況   駐車場 無    近くの駐車場を探す
入居可能時期 相談 住宅保険 あり
情報提供元 SUUMO[060H100476116326] 情報公開日
情報更新日 次回更新予定日 随時

設備など

2階以上 最上階 - 角部屋
駐車場(近隣含) - エアコン付き バス・トイレ別
室内洗濯機置き場 追焚機能 オートロック付き
モニタ付インターホン フローリング バルコニー
ガスコンロ可 浴室乾燥機 24時間セキュリティ -
宅配ボックス ペット相談可 - 二人入居可
設備 冷房・暖房・エアコン・オートロック・バルコニー・バス・トイレ別・トイレ・収納スペース・洗濯機置場・洗面所・エレベーター・BS端子・追焚機能・フローリング・浴室乾燥機・ガスコンロ可・シャンプードレッサ・温水洗浄便座・システムキッチン・モニタ付インターホン・宅配BOX・駐輪場・風呂・クローゼット・CS・衣類乾燥機・都市ガス・浴トイレ別・オートバス・洗面所独立・バイク置き場・コンロ2口以上・シューズボックス・インターネット対応・室内洗濯機置き場 
リフォーム履歴 -
リノベーション履歴 -
備考 損保要/鍵交換代2.2万円/室内清掃費用 38500円 Relo Rent24会費 月額1100円 水道代 月額2000円/保証会社利用必:保証人有:家賃+管理費×50%、保証人無:家賃+管理費×70%  ※初回保証料の計算は総賃料のみで水道料金等は含みません。共に更新1年毎に12 000円/普通借家01年0ヶ月/二人入居可/内見代行・写真撮影/動画撮影/WEB契約等来店不要でご契約可能です。お気軽にご相談下さい。/バストイレ別/バルコニー/エアコン/ガスコンロ対応/クロゼット/フローリング/シャワー付洗面台/TVインターホン/浴室乾燥機/オートロック/室内洗濯置/陽当り良好/シューズボックス/システムキッチン/南向き/角住戸/温水洗浄便座/脱衣所/エレベーター/洗面所独立/洗面化粧台/2口コンロ/駐輪場/宅配ボックス/光ファイバー/閑静な住宅地/敷金不要/分譲賃貸/オートバス/グリル付/単身者相談/二人入居相談/バイク置場/全居室フローリング/CS/ダブルロックキー/耐震構造/24時間ゴミ出し可/敷地内ごみ置き場/都市ガス/洗面所にドア/BS/IT重説 対応物件/初期費用カード決済可/ダイコクドラッグ 京阪五条駅前店(ドラッグストア)まで29m/ローソンストア100 京阪五条駅前店(スーパー)まで39m/ファミリーマート 京阪五条店(コンビニ)まで39m/ローソンストア100 LS京阪五条駅前店(スーパー)まで39m/セブンイレブン 京都東山五条店(コンビニ)まで156m/セブンイレブン 東山五条店(コンビニ)まで165m 
特記事項 二人入居可・分譲タイプ・角部屋・日当り良好・閑静な住宅街・初期費用カード決済可

省エネ性能

エネルギー消費性能 -
断熱性能 -
目安光熱費 -

京都府京都市東山区宮川筋8 周辺地図情報

地図
※地図上に表示される物件の位置は付近住所に所在することを表すものであり、実際の物件所在地とは異なる場合がございます。
   正確な物件所在地は、取扱い不動産会社にお問い合わせください。
お問い合わせ先
リブ・マックス京都駅前店(株)リブマックスリーシング

不動産会社情報

お問い合わせ先 商号:リブ・マックス京都駅前店(株)リブマックスリーシング
免許番号:国土交通大臣(3)第8116号
所在地:京都府京都市下京区材木町 499 京都駅前第7ビル4階
TEL:075-748-1840
取引態様:仲介
管理コード:11201095155300
所属協会など:(公社)近畿地区不動産公正取引協議会加盟、(公社)京都府宅地建物取引業協会会員
共有する
QRコード
お問い合わせ先
リブ・マックス京都駅前店(株)リブマックスリーシング

    京都市東山区の暮らしデータ

    人口などの統計情報

    世帯数 728744世帯
    人口総数 1379529人
    転入者数 85315人
    転入率(人口1000人当たり)
    61.84人
    転出者数 80567人
    転出率(人口1000人当たり)
    58.40人
    土地平均価格
    住宅地
    220880円/m2
    商業地
    1290411円/m2

    結婚・育児の助成金

    子育て関連の独自の取り組み (1)乳幼児の子育て支援機能や学童クラブ機能等を有する児童館設置。(2)こんにちはプレママ事業。(3)児童虐待未然防止に係る医療機関と子どもはぐくみ室及び京北出張所の連携。(4)子ども保健医療相談・事故防止センター設置。(5)京都はぐくみアプリ配信。(6)子育て支援コンシェルジュ育成。(7)骨髄移植手術等により免疫を喪失した子どもへのワクチン再接種費用助成制度。(8)子どもを共に育む京都市民憲章の制定、憲章の実践・普及の促進。(9)【京都安心すまい応援金】未就学の子どもがいる世帯を対象に、自己居住用として既存住宅を購入し、リフォームを行う場合に、最大200万円の応援金を交付。
    出産祝い あり
    公立保育所数 14所(うち0歳児保育を実施している保育所:13所)
    私立保育所数 196所(うち0歳児保育を実施している保育所:188所)
    保育所入所待機児童数 0人
    認定こども園数 83園 預かり保育実施園数 公立:15園 私立:81園
    学校給食 【小学校】完全給食【中学校】完全給食 家庭弁当等との選択制/デリバリー形式[運搬:ランチボックス、内容:完全給食] 給食なし
    公立中学校の学校選択制 未実施
    子ども・学生等医療費助成<通院>対象年齢 中学校卒業まで 子ども・学生等医療費助成<入院>対象年齢 中学校卒業まで

    京都市東山区の治安・ごみ収集情報

    公共料金・インフラ

    ガス料金(22m3使用した場合の月額) 大阪瓦斯株式会社4544円
    水道料金(口径20mmで20m3の月額) 京都市3014円
    下水道料金(20m3を使用した場合の月額) 京都市2013円
    下水道普及率 99.5%

    安心・安全

    建物火災出火件数 158件
    人口10000人当たり
    1.08件
    刑法犯認知件数 8104件
    人口1000人当たり
    5.54件
    ハザード・防災マップ あり

    医療

    一般病院総数 89ヶ所
    一般診療所総数 1622ヶ所
    小児科医師数 397人
    小児人口10000人当たり
    27.26人
    産婦人科医師数 201人
    15~49歳女性人口1万人当たり
    7.16人
    介護保険料基準額(月額) 7160円

    ごみ

    家庭ごみ収集(可燃ごみ) 有料
    備考
    指定ごみ袋有料。
    家庭ごみの分別方式 5分別8種〔燃やすごみ 缶・びん・ペットボトル プラスチック類 小型金属類・スプレー缶 雑がみ〕 拠点回収:移動式拠点回収):古紙(新聞・ダンボール) 雑がみ 紙パック 使用済てんぷら油 古着類 乾電池 ボタン電池 充電式電池 蛍光管 水銀体温計・水銀血圧計 小型家電 磁気テープ類 インクカートリッジ リユースびん 刃物類 使い捨てライター 陶磁器製の食器 せん定枝木の枝 石油類 医薬品・農薬 化学薬品・塗料・ワックス・絵の具 洗浄剤
    家庭ごみの戸別収集 一部実施(原則定点としているが、一部地域で狭路等やむを得ない事情がある場合のみ実施。また、ごみ出しが困難な高齢者や障害のある方などの生活支援の一つとして、御自宅の玄関先までごみの収集に伺う「ごみ収集福祉サービス[まごころ収集]」を実施)
    粗大ごみ収集 あり
    備考
    有料。事前申込制。
    生ごみ処理機助成金制度 なし
    上限金額
    -
    上限比率
    -
    暮らしデータ提供元:生活ガイド.com
    ※行政機関により公表していない地域及びデータがございます。東京23区以外の政令指定都市は、市全体のデータとして表示しています。
    ※提供データには細心の注意を払っておりますが、調査後に変更がある場合があります。 最新の情報につきましては各市区役所までお問い合わせいただくか、自治体HPなどをご確認ください。
    OCN×ドコモ光新規お申込みで合計最大137,280円相当おトク!特典の内訳・適用条件など詳細はこちら

    京都市東山区内の各駅の住みやすさ

    他のエリアから探す

    京都市東山区の詳細地域から賃貸物件を探す

    粟田口三条坊町池殿町石垣町東側石橋町一橋野本町一橋宮ノ内町稲荷町南組今熊野阿弥陀ケ峯町今熊野池田町今熊野北日吉町今熊野総山町今熊野剣宮町今熊野椥ノ森町今熊野日吉町今熊野宝蔵町今熊野南谷町今熊野南日吉町今小路町今道町梅宮町梅本町夷町蛭子町北組蛭子町南組大井手町大阪町大橋町音羽町門脇町鐘鋳町上新シ町上池田町上馬町上梅屋町上弁天町上堀詰町上柳町亀井町唐戸鼻町北木之元町北棟梁町清井町清水1丁目清水2丁目清水4丁目清水5丁目金園町祇園町南側小島町小松町五軒町五軒町五条橋東2丁目五条橋東4丁目五条橋東6丁目西海子町鞘町1丁目三町目七軒町七軒町下馬町下梅屋町下弁天町下堀詰町上人町正面町新瓦町東組進之町慈法院庵町石泉院町泉涌寺五葉ノ辻町泉涌寺雀ケ森町泉涌寺東林町泉涌寺門前町泉涌寺山内町高畑町竹村町辰巳町辰巳町大黒町大黒町茶屋町月見町堤町常盤町常盤町豊浦町土居之内町中之町中之町中之町西川原町西御門町西橘町西町二町目塗師屋町博多町八軒町梅林町東姉小路町東瓦町東町東橋詰町毘沙門町福稲柿本町福稲上高松町福稲川原町福稲御所ノ内町福稲下高松町福稲高原町古西町分木町弁財天町星野町本池田町本瓦町本町1丁目本町10丁目本町12丁目本町13丁目本町14丁目本町15丁目本町16丁目本町17丁目本町18丁目本町19丁目本町2丁目本町21丁目本町22丁目本町3丁目本町4丁目本町5丁目本町6丁目本町7丁目本町8丁目本町9丁目本町新5丁目本町新6丁目蒔田町松原町南木之元町南西海子町南町宮川筋1丁目宮川筋2丁目宮川筋4丁目宮川筋6丁目宮川筋8丁目妙法院前側町森下町山崎町山田町大和大路1丁目大和大路2丁目大和町柚之木町弓矢町林下町轆轤町

    近辺の市区から探す

    大津市京都市北区京都市上京区京都市左京区京都市中京区京都市下京区京都市南区京都市右京区京都市伏見区京都市山科区京都市西京区宇治市向日市長岡京市

    周辺の駅から探す

    阪急電鉄京都線
    京都河原町烏丸大宮西院西京極
    京阪電気鉄道京阪線
    三条祇園四条清水五条七条東福寺鳥羽街道伏見稲荷

    マンションライブラリーを見る

    ラナップスクエア京都鴨川

    京都府京都市東山区で他のジャンルから探す


    掲載情報の著作権は提供元企業等に帰属します。
    Copyright:(C) 2025 Recruit Co., Ltd.
    アプリで簡単 物件探し 大手不動産サイトの情報から一括検!プッシュ通知で物件を見逃さない
    App Storeからダウンロード Google Playで手に入れよう QRコード