アプリで簡単 物件探し 通知 共有 アプリならではの機能を使ってみる
賃貸マンション

ライオンズ南大高ディアグランデ 南大高駅 2LDK 賃貸(賃貸マンション・アパート)

情報提供元
SUUMO
ライオンズ南大高ディアグランデ
賃料 12万円  (管理費等:なし)
礼金・敷金 1ヶ月 / 2ヶ月 保証金/敷引・償却 なし / -
交通
所在地 愛知県名古屋市緑区南大高2周辺地図
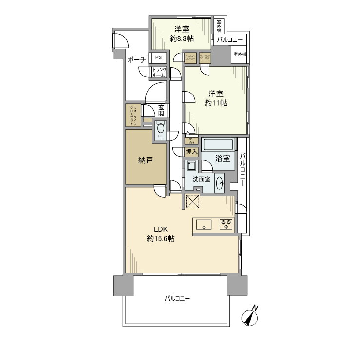
間取り 2LDK 専有面積 95.56m2
築年月 2012年2月 築年数 築13年11ヶ月

詳細情報

賃料 12万円 管理費等 なし
敷金 2ヶ月 礼金 1ヶ月
保証金 なし 敷引・償却 -
更新料 - 契約期間 定期借家 2026年11月
カード決済 -
所在地 愛知県名古屋市緑区南大高2周辺地図
交通
建物名 ライオンズ南大高ディアグランデ 
間取り 2LDK(洋11.0 洋8.3 LDK15.6) 築年月(築年数) 2012年2月(築13年11ヶ月)
専有面積 95.56㎡ 所在階/階数 4階/10階建
建物構造 RC  方位 南東 
現況   駐車場 無    近くの駐車場を探す
入居可能時期 2026年1月上旬 住宅保険 あり 2年 25500円
情報提供元 SUUMO[050H100475316005] 情報公開日
情報更新日 次回更新予定日 随時

設備など

2階以上 最上階 - 角部屋
駐車場(近隣含) - エアコン付き - バス・トイレ別
室内洗濯機置き場 追焚機能 オートロック付き
モニタ付インターホン フローリング バルコニー
ガスコンロ可 浴室乾燥機 24時間セキュリティ -
宅配ボックス ペット相談可 - 二人入居可 -
設備 オートロック・バルコニー・バス・トイレ別・トイレ・洗濯機置場・洗面所・エレベーター・追焚機能・フローリング・浴室乾燥機・ガスコンロ可・温水洗浄便座・システムキッチン・カウンターキッチン・モニタ付インターホン・宅配BOX・風呂・対面K・床暖房・衣類乾燥機・食器洗浄乾燥機・ディスポーザー・都市ガス・食器乾燥機・浴トイレ別・オートバス・洗面所独立・コンロ2口以上・室内洗濯機置き場 
リフォーム履歴 -
リノベーション履歴 -
備考 駐車場登録料 1台(利用時のみ)1.1万円 除菌施工料(契約時のみ)1.98万円/リロサポ加入必須 月額1500円/保証会社利用必:保証会社 要:初回 賃料総額100%+月額 賃料総額2%(最低1 000円)/定期借家2026年11月まで/事務所利用不可/ルームシェア不可/バストイレ別/バルコニー/ガスコンロ対応/フローリング/TVインターホン/浴室乾燥機/オートロック/室内洗濯置/システムキッチン/追焚機能浴室/角住戸/温水洗浄便座/エレベーター/洗面所独立/宅配ボックス/3口以上コンロ/対面式キッチン/オートバス/二人入居相談/床暖房/食器洗乾燥機/ディスポーザー/駅徒歩5分以内/駅徒歩10分以内/都市ガス/保証会社利用可 
特記事項 角部屋

省エネ性能

エネルギー消費性能 -
断熱性能 -
目安光熱費 -

愛知県名古屋市緑区南大高2 周辺地図情報

地図
※地図上に表示される物件の位置は付近住所に所在することを表すものであり、実際の物件所在地とは異なる場合がございます。
   正確な物件所在地は、取扱い不動産会社にお問い合わせください。

不動産会社情報

お問い合わせ先 商号:(株)N-works
免許番号:愛知県知事(1)第25630号
所在地:愛知県名古屋市中区栄3-31ー21 伊東屋栄中駒ビル 新館7F
TEL:052-990-3580
取引態様:仲介
管理コード:208012
所属協会など: 東海不動産公正取引協議会加盟、(公社)愛知県宅地建物取引業協会会員
共有する
QRコード

    名古屋市緑区の暮らしデータ

    人口などの統計情報

    世帯数 1119847世帯
    人口総数 2297745人
    転入者数 168667人
    転入率(人口1000人当たり)
    73.41人
    転出者数 154544人
    転出率(人口1000人当たり)
    67.26人
    土地平均価格
    住宅地
    223115円/m2
    商業地
    1106619円/m2

    結婚・育児の助成金

    子育て関連の独自の取り組み (1)なごや子育てアプリ「NAGOMii(なごみー)」による子育て支援情報の提供。(2)子育て家庭優待カード「ぴよか」の交付。(3)子どもを出産、育児する家庭に5万ポイント(5万円相当)分のカタログギフトを進呈する、ナゴヤわくわくプレゼント事業の実施。
    出産祝い あり
    公立保育所数 84所(うち0歳児保育を実施している保育所:84所)
    私立保育所数 367所(うち0歳児保育を実施している保育所:365所)
    保育所入所待機児童数 0人
    認定こども園数 107園 預かり保育実施園数 公立:20園 私立:-
    学校給食 【小学校】完全給食【中学校】家庭弁当等との選択制/デリバリー形式[運搬:食缶等、内容:完全給食(献立選択制)]
    公立中学校の学校選択制 未実施
    子ども・学生等医療費助成<通院>対象年齢 18歳3月末まで 子ども・学生等医療費助成<入院>対象年齢 18歳3月末まで

    名古屋市緑区の治安・ごみ収集情報

    公共料金・インフラ

    ガス料金(22m3使用した場合の月額) 東邦瓦斯株式会社5307円
    水道料金(口径20mmで20m3の月額) 名古屋市2915円
    下水道料金(20m3を使用した場合の月額) 名古屋市1804円
    下水道普及率 99.4%

    安心・安全

    建物火災出火件数 355件
    人口10000人当たり
    1.52件
    刑法犯認知件数 19857件
    人口1000人当たり
    8.51件
    ハザード・防災マップ あり

    医療

    一般病院総数 110ヶ所
    一般診療所総数 2272ヶ所
    小児科医師数 770人
    小児人口10000人当たり
    28.40人
    産婦人科医師数 319人
    15~49歳女性人口1万人当たり
    6.72人
    介護保険料基準額(月額) 6951円

    ごみ

    家庭ごみ収集(可燃ごみ) 無料
    備考
    指定ごみ袋制だが、袋代にごみ収集・処理料金等を含まず。
    家庭ごみの分別方式 5分別9種〔可燃ごみ 不燃ごみ 発火性危険物 電池類 資源(プラスチック資源、紙製容器包装・雑がみ、ペットボトル、空きびん、空き缶)〕 拠点回収:資源(ペットボトル 紙パック 食用油 小型家電 充電式家電 蛍光管・水銀体温計・水銀温度計)
    家庭ごみの戸別収集 実施(可燃ごみ、不燃ごみ、発火性危険物、電池類、プラスチック資源のみ。紙製容器包装・雑がみ、ペットボトル、空きびん、空き缶はステーション収集)
    粗大ごみ収集 あり
    備考
    有料。各戸収集。事前申込制。月1回収集で手数料(品目ごとに250円、500円、1,000円、1,500円)が必要。粗大ごみ受付センターにインターネットもしくは電話にて申し込み。
    生ごみ処理機助成金制度 なし
    上限金額
    -
    上限比率
    -
    暮らしデータ提供元:生活ガイド.com
    ※行政機関により公表していない地域及びデータがございます。東京23区以外の政令指定都市は、市全体のデータとして表示しています。
    ※提供データには細心の注意を払っておりますが、調査後に変更がある場合があります。 最新の情報につきましては各市区役所までお問い合わせいただくか、自治体HPなどをご確認ください。
    OCN×ドコモ光新規お申込みで合計最大137,280円相当おトク!特典の内訳・適用条件など詳細はこちら

    名古屋市緑区内の各駅の住みやすさ

    他のエリアから探す

    名古屋市緑区の詳細地域から賃貸物件を探す

    相川相原郷青山赤松旭出有松有松三丁山有松町大字有松有松町大字桶狭間有松幕山有松南池上台姥子山梅里浦里漆山大形山大清水大清水西大清水東大高台大高町大根山桶狭間桶狭間上の山桶狭間北桶狭間切戸桶狭間清水山桶狭間神明桶狭間西桶狭間巻山桶狭間南桶狭間森前尾崎山篭山鎌倉台上旭神沢神の倉亀が洞熊の前倉坂黒沢台鴻仏目小坂古鳴海境松左京山作の山町潮見が丘鹿山篠の風四本木清水山白土定納山砂田瀬木南曽根太子大将ケ根高根台高根山滝ノ水武路町鶴が沢東陵徳重鳥澄長根町鳴丘鳴子町鳴海町南陵西神の倉乗鞍東神の倉久方兵庫平子が丘平手北平手南藤塚文久山細口ほら貝松が根台万場山水広南大高元徳重桃山諸の木八つ松横吹町緑花台六田若田

    近辺の市区から探す

    名古屋市千種区名古屋市東区名古屋市中区名古屋市昭和区名古屋市瑞穂区名古屋市熱田区名古屋市中川区名古屋市港区名古屋市南区名古屋市名東区名古屋市天白区刈谷市東海市大府市知多市知立市豊明市日進市みよし市愛知郡東郷町知多郡東浦町

    周辺の駅から探す

    東海道本線
    刈谷逢妻大府共和南大高大高笠寺熱田金山

    マンションライブラリーを見る

    ライオンズ南大高ディアグランデ

    愛知県名古屋市緑区で他のジャンルから探す


    掲載情報の著作権は提供元企業等に帰属します。
    Copyright:(C) 2025 Recruit Co., Ltd.
    アプリで簡単 物件探し 大手不動産サイトの情報から一括検!プッシュ通知で物件を見逃さない
    App Storeからダウンロード Google Playで手に入れよう QRコード