アプリで簡単 物件探し 通知 共有 アプリならではの機能を使ってみる
賃貸マンション

愛知県名古屋市熱田区新尾頭2 金山駅 1K 賃貸(賃貸マンション・アパート)

情報提供元
SUUMO
★外観
賃料 6.75万円  (管理費等:9000円)
礼金・敷金 なし / なし 保証金/敷引・償却 なし / -
交通
所在地 愛知県名古屋市熱田区新尾頭2周辺地図
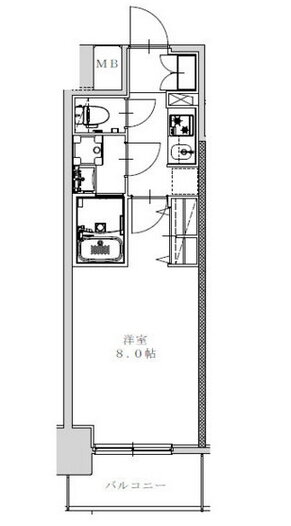
間取り 1K 専有面積 24.07m2
築年月 2025年7月 築年数 新築
おすすめポイント
★なんと初期費用3万!★ ◇上記キャンペーン適用には期間がございます◇ 金山駅までも近く目の前にもスーパーがあります♪ 駐車場も空いております!
お問い合わせ先
へやナビ(株)ナゴヤホームズ
お問い合わせ先
へやナビ(株)ナゴヤホームズ

詳細情報

賃料 6.75万円 管理費等 9000円
敷金 なし 礼金 なし
保証金 なし 敷引・償却 -
更新料 - 契約期間
カード決済 初期費用カード決済可
所在地 愛知県名古屋市熱田区新尾頭2周辺地図
交通
建物名  
間取り 1K(洋8.0) 築年月(築年数) 2025年7月 新築
専有面積 24.07㎡ 所在階/階数 2階/10階建
建物構造 RC  方位 南西 
現況   駐車場 有 21,450円
入居可能時期 即時 住宅保険 あり 2年 18000円
情報提供元 SUUMO[050H100470001596] 情報公開日
情報更新日 次回更新予定日 随時

設備など

2階以上 最上階 - 角部屋 -
駐車場(近隣含) エアコン付き バス・トイレ別
室内洗濯機置き場 追焚機能 - オートロック付き
モニタ付インターホン フローリング バルコニー
ガスコンロ可 浴室乾燥機 24時間セキュリティ -
宅配ボックス ペット相談可 二人入居可 -
設備 冷房・暖房・エアコン・オートロック・バルコニー・バス・トイレ別・トイレ・収納スペース・洗濯機置場・洗面所・エレベーター・CATV・フローリング・浴室乾燥機・照明器具・ガスコンロ可・シャンプードレッサ・温水洗浄便座・システムキッチン・モニタ付インターホン・宅配BOX・駐輪場・クローゼット・衣類乾燥機・都市ガス・浴トイレ別・防犯カメラ・洗面所独立・バイク置き場・コンロ2口以上・インターネット無料・インターネット対応・室内洗濯機置き場・シューズボックス 
リフォーム履歴 -
リノベーション履歴 -
備考 保証会社利用必:総賃料の50% 1年更新:12 000円/仲介手数料不要/普通借家02年0ヶ月/ペット相談/事務所利用不可/賃料のみフリーレント1ヶ月/バストイレ別/バルコニー/エアコン/ガスコンロ対応/クロゼット/フローリング/シャワー付洗面台/TVインターホン/浴室乾燥機/オートロック/室内洗濯置/陽当り良好/システムキッチン/南向き/温水洗浄便座/脱衣所/エレベーター/洗面所独立/2口コンロ/駐輪場/宅配ボックス/CATV/即入居可/礼金不要/敷金不要/防犯カメラ/ペット相談/全居室洋室/保証人不要/仲介手数料不要/バイク置場/全居室フローリング/2沿線利用可/ネット専用回線/ネット使用料不要/フリーレント/ダブルロックキー/保証金不要/築2年以内/24時間換気システム/浴室未使用/トイレ未使用/未入居/2駅利用可/3駅以上利用可/3沿線以上利用可/駅徒歩10分以内/敷地内ごみ置き場/平面駐車場/全居室8畳以上/キッチン未使用/都市ガス/洗面所にドア/南面バルコニー/シューズWIC/間接照明/敷金・礼金不要/初期費用5万円以下/初期費用カード決済可/通風良好/巡回管理/スギドラッグ 八熊店(ドラッグストア)まで360m/サポーレ 熱田伏見通り店(スーパー)まで76m/ファミリーマート 金山町店(コンビニ)まで465m/アスナル金山(その他)まで953m/めしや食堂尾頭橋店(飲食店)まで1132m/chocoZAP(チョコザップ) 金山店(その他)まで1091m/賃貸戸数:70戸 
特記事項 ペット相談可・フリーレント・管理人巡回・日当り良好・保証人不要/代行 ・初期費用カード決済可

省エネ性能

エネルギー消費性能 -
断熱性能 -
目安光熱費 -

愛知県名古屋市熱田区新尾頭2 周辺地図情報

地図
※地図上に表示される物件の位置は付近住所に所在することを表すものであり、実際の物件所在地とは異なる場合がございます。
   正確な物件所在地は、取扱い不動産会社にお問い合わせください。
お問い合わせ先
へやナビ(株)ナゴヤホームズ

不動産会社情報

お問い合わせ先 商号:へやナビ(株)ナゴヤホームズ
免許番号:愛知県知事(2)第23533号
所在地:愛知県名古屋市中区千代田5-19-15 Ceres鶴舞1階
TEL:052-269-9171
取引態様:仲介
管理コード:438298
所属協会など: 東海不動産公正取引協議会加盟、(公社)愛知県宅地建物取引業協会会員
共有する
QRコード
お問い合わせ先
へやナビ(株)ナゴヤホームズ

名古屋市熱田区の暮らしデータ

人口などの統計情報

世帯数 1119847世帯
人口総数 2297745人
転入者数 168667人
転入率(人口1000人当たり)
73.41人
転出者数 154544人
転出率(人口1000人当たり)
67.26人
土地平均価格
住宅地
223115円/m2
商業地
1106619円/m2

結婚・育児の助成金

子育て関連の独自の取り組み (1)なごや子育てアプリ「NAGOMii(なごみー)」による子育て支援情報の提供。(2)子育て家庭優待カード「ぴよか」の交付。(3)子どもを出産、育児する家庭に5万ポイント(5万円相当)分のカタログギフトを進呈する、ナゴヤわくわくプレゼント事業の実施。
出産祝い あり
公立保育所数 84所(うち0歳児保育を実施している保育所:84所)
私立保育所数 367所(うち0歳児保育を実施している保育所:365所)
保育所入所待機児童数 0人
認定こども園数 107園 預かり保育実施園数 公立:20園 私立:-
学校給食 【小学校】完全給食【中学校】家庭弁当等との選択制/デリバリー形式[運搬:食缶等、内容:完全給食(献立選択制)]
公立中学校の学校選択制 未実施
子ども・学生等医療費助成<通院>対象年齢 18歳3月末まで 子ども・学生等医療費助成<入院>対象年齢 18歳3月末まで

名古屋市熱田区の治安・ごみ収集情報

公共料金・インフラ

ガス料金(22m3使用した場合の月額) 東邦瓦斯株式会社5307円
水道料金(口径20mmで20m3の月額) 名古屋市2915円
下水道料金(20m3を使用した場合の月額) 名古屋市1804円
下水道普及率 99.4%

安心・安全

建物火災出火件数 355件
人口10000人当たり
1.52件
刑法犯認知件数 19857件
人口1000人当たり
8.51件
ハザード・防災マップ あり

医療

一般病院総数 110ヶ所
一般診療所総数 2272ヶ所
小児科医師数 770人
小児人口10000人当たり
28.40人
産婦人科医師数 319人
15~49歳女性人口1万人当たり
6.72人
介護保険料基準額(月額) 6951円

ごみ

家庭ごみ収集(可燃ごみ) 無料
備考
指定ごみ袋制だが、袋代にごみ収集・処理料金等を含まず。
家庭ごみの分別方式 5分別9種〔可燃ごみ 不燃ごみ 発火性危険物 電池類 資源(プラスチック資源、紙製容器包装・雑がみ、ペットボトル、空きびん、空き缶)〕 拠点回収:資源(ペットボトル 紙パック 食用油 小型家電 充電式家電 蛍光管・水銀体温計・水銀温度計)
家庭ごみの戸別収集 実施(可燃ごみ、不燃ごみ、発火性危険物、電池類、プラスチック資源のみ。紙製容器包装・雑がみ、ペットボトル、空きびん、空き缶はステーション収集)
粗大ごみ収集 あり
備考
有料。各戸収集。事前申込制。月1回収集で手数料(品目ごとに250円、500円、1,000円、1,500円)が必要。粗大ごみ受付センターにインターネットもしくは電話にて申し込み。
生ごみ処理機助成金制度 なし
上限金額
-
上限比率
-
暮らしデータ提供元:生活ガイド.com
※行政機関により公表していない地域及びデータがございます。東京23区以外の政令指定都市は、市全体のデータとして表示しています。
※提供データには細心の注意を払っておりますが、調査後に変更がある場合があります。 最新の情報につきましては各市区役所までお問い合わせいただくか、自治体HPなどをご確認ください。

この物件を見た人はこんな物件も見ています

OCN×ドコモ光新規お申込みで合計最大137,280円相当おトク!特典の内訳・適用条件など詳細はこちら

名古屋市熱田区内の各駅の住みやすさ

他のエリアから探す

名古屋市熱田区の詳細地域から賃貸物件を探す

青池町明野町一番内田町大瀬子町尾頭町金山金山町河田町川並町木之免町切戸町古新町神戸町五番町五本松町西郊通桜田町沢上沢下町三番町三本松町白鳥白鳥町新尾頭神宮神野町須賀町外土居町大宝高蔵町玉の井町千年千代田町伝馬中田町中出町波寄町西野町二番野立町幡野町旗屋旗屋町八番花表町花町比々野町南一番町六野森後町横田夜寒町四番六番

近辺の市区から探す

名古屋市千種区名古屋市東区名古屋市北区名古屋市西区名古屋市中村区名古屋市中区名古屋市昭和区名古屋市瑞穂区名古屋市中川区名古屋市港区名古屋市南区名古屋市守山区名古屋市緑区名古屋市名東区名古屋市天白区東海市豊明市日進市清須市海部郡大治町海部郡蟹江町海部郡飛島村

周辺の駅から探す

東海道本線
南大高大高笠寺熱田金山尾頭橋名古屋枇杷島清洲
中央本線
新守山大曽根千種鶴舞金山名古屋
名古屋市名城線
矢場町上前津東別院金山西高蔵熱田神宮西熱田神宮伝馬町堀田

掲載情報の著作権は提供元企業等に帰属します。
Copyright:(C) 2025 Recruit Co., Ltd.
アプリで簡単 物件探し 大手不動産サイトの情報から一括検!プッシュ通知で物件を見逃さない
App Storeからダウンロード Google Playで手に入れよう QRコード