アプリで簡単 物件探し 通知 共有 アプリならではの機能を使ってみる
賃貸マンション

ロイヤルパークスER万代 新潟駅 2LDK 賃貸(賃貸マンション・アパート)

情報提供元
SUUMO
ロイヤルパークスER万代
賃料 13.6万円  (管理費等:16000円)
礼金・敷金 1ヶ月 / 1ヶ月 保証金/敷引・償却 なし / -
交通
所在地 新潟県新潟市中央区東万代町周辺地図
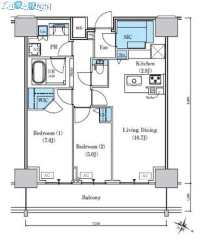
間取り 2LDK 専有面積 65.08m2
築年月 2018年8月 築年数 築7年4ヶ月
おすすめポイント
☆高級感溢れる賃貸マンション☆全室エアコン付☆オートロック☆ フロントコンシェルジュ常駐☆共用部にはフィットネスルーム、大浴場、(サウナ)、パーティールームあり!★お問合せはアパマン情報館新潟万代店【025-240-1830】までお気軽にご連絡ください
お問い合わせ先
アパマン情報館新潟万代店(株)マンションセンター
お問い合わせ先
アパマン情報館新潟万代店(株)マンションセンター

詳細情報

賃料 13.6万円 管理費等 16000円
敷金 1ヶ月 礼金 1ヶ月
保証金 なし 敷引・償却 -
更新料 - 契約期間
カード決済 初期費用カード決済可
所在地 新潟県新潟市中央区東万代町周辺地図
交通
建物名 ロイヤルパークスER万代 
間取り 2LDK(洋7 洋5 LDK13.6) 築年月(築年数) 2018年8月(築7年4ヶ月)
専有面積 65.08㎡ 所在階/階数 11階/18階建
建物構造 RC  方位 東 
現況   駐車場 無    近くの駐車場を探す
入居可能時期 即時 住宅保険 あり
情報提供元 SUUMO[040H100433406969] 情報公開日
情報更新日 次回更新予定日 随時

設備など

2階以上 最上階 - 角部屋 -
駐車場(近隣含) - エアコン付き バス・トイレ別
室内洗濯機置き場 追焚機能 オートロック付き
モニタ付インターホン フローリング バルコニー
ガスコンロ可 浴室乾燥機 24時間セキュリティ -
宅配ボックス ペット相談可 - 二人入居可
設備 冷房・暖房・エアコン・オートロック・バルコニー・バス・トイレ別・トイレ・収納スペース・洗濯機置場・洗面所・BS端子・追焚機能・フローリング・浴室乾燥機・ウォークインクローゼット・ガスコンロ可・シャンプードレッサ・温水洗浄便座・システムキッチン・カウンターキッチン・モニタ付インターホン・宅配BOX・駐輪場・風呂・対面K・クローゼット・床暖房・衣類乾燥機・カードキー・都市ガス・浴トイレ別・防犯カメラ・洗面所独立・コンロ2口以上・インターネット無料・インターネット対応・室内洗濯機置き場・シューズボックス 
リフォーム履歴 -
リノベーション履歴 -
備考 損保要/D-roomCardキー料金 9900円税込/更新料 1ヶ月/保証会社利用必:初回:月額総賃料の60% 更新:10000円/年/仲介手数料1.1ヶ月/普通借家02年/二人入居可/子供可/★最新空室情報はお電話がオススメ★お問合せはスーモ専用フリーダイヤルまたは025-240-1830までお電話ください♪お車でご来店の際は、万代シティ第一駐車場またはラブラ2駐車場をご利用ください♪最大2時間分のサービス券をお渡しします♪気になるお部屋の周辺物件情報もまとめてご紹介・ご案内♪もちろん予約状況によっては現地待ち合せも相談可能♪/バストイレ別/バルコニー/エアコン/ガスコンロ対応/クロゼット/フローリング/シャワー付洗面台/TVインターホン/浴室乾燥機/オートロック/室内洗濯置/陽当り良好/システムキッチン/追焚機能浴室/温水洗浄便座/脱衣所/洗面所独立/洗面化粧台/駐輪場/宅配ボックス/即入居可/3口以上コンロ/対面式キッチン/防犯カメラ/ウォークインクロゼット/保証人不要/敷金1ヶ月/二人入居相談/カードキー/全居室フローリング/ネット使用料不要/床暖房/眺望良好/エアコン全室/フロントサービス/始発駅/3駅以上利用可/3沿線以上利用可/駅前/駅徒歩10分以内/大浴場/敷地内ごみ置き場/LDK12畳以上/都市ガス/三面鏡付洗面化粧台/シューズWIC/BS/礼金1ヶ月/IT重説 対応物件/初期費用カード決済可/イオンスタイルラブラ万代(スーパー)まで957m/ローソン新潟明石通店(コンビニ)まで339m/ココカラファイン万代店(ドラッグストア)まで895m/ヨドバシカメラマルチメディア新潟駅前店(ホームセンター)まで771m/新潟万代病院(病院)まで1365m/新潟大学医歯学総合病院(病院)まで3018m 
特記事項 二人入居可・日当り良好・保証人不要/代行 ・初期費用カード決済可

省エネ性能

エネルギー消費性能 -
断熱性能 -
目安光熱費 -

新潟県新潟市中央区東万代町 周辺地図情報

地図
※地図上に表示される物件の位置は付近住所に所在することを表すものであり、実際の物件所在地とは異なる場合がございます。
   正確な物件所在地は、取扱い不動産会社にお問い合わせください。
お問い合わせ先
アパマン情報館新潟万代店(株)マンションセンター

不動産会社情報

お問い合わせ先 商号:アパマン情報館新潟万代店(株)マンションセンター
免許番号:新潟県知事(4)第4973号
所在地:新潟県新潟市中央区万代1-1-32 プリオール万代2階
TEL:025-240-1830
取引態様:仲介
管理コード:11582719
所属協会など:(公社)首都圏不動産公正取引協議会加盟、(公社)新潟県宅地建物取引業協会会員
共有する
QRコード
お問い合わせ先
アパマン情報館新潟万代店(株)マンションセンター

新潟市中央区の暮らしデータ

人口などの統計情報

世帯数 330697世帯
人口総数 767565人
転入者数 28151人
転入率(人口1000人当たり)
36.68人
転出者数 28261人
転出率(人口1000人当たり)
36.82人
土地平均価格
住宅地
51505円/m2
商業地
152371円/m2

結婚・育児の助成金

子育て関連の独自の取り組み (1)企業と行政の連携による「にいがたっ子すこやかパスポート」事業。(2)男性の育児休業取得促進事業。(3)子育て応援アプリ及び新潟市公式LINEアカウントによる情報発信。(4)保育園等に文庫を開設し絵本を貸出。(5)子育て相談を受けコーディネートする機能を持った相談窓口の運営支援。(6)食と花、動物とのふれあい、創作活動等を一体的に学べる「いくとぴあ食花」の設置運営。(7)新潟市子ども条例(2022年4月施行)に基づく、子どもの権利の周知・啓発、子どもの意見表明・社会参加の促進、子どもの権利侵害に係る相談・救済活動等の取組。
出産祝い なし
公立保育所数 80所(うち0歳児保育を実施している保育所:80所)
私立保育所数 47所(うち0歳児保育を実施している保育所:47所)
保育所入所待機児童数 0人
認定こども園数 131園 預かり保育実施園数 公立:2園 私立:4園
学校給食 【小学校】完全給食【中学校】完全給食 家庭弁当等との選択制/デリバリー形式[運搬:ランチボックス及び食缶、内容:完全給食]
公立中学校の学校選択制 未実施
子ども・学生等医療費助成<通院>対象年齢 18歳3月末まで 子ども・学生等医療費助成<入院>対象年齢 18歳3月末まで

新潟市中央区の治安・ごみ収集情報

公共料金・インフラ

ガス料金(22m3使用した場合の月額) 北陸瓦斯株式会社(新潟地区)3473円
新発田ガス株式会社(新発田地区)3505円
越後天然ガス株式会社3241円
蒲原瓦斯株式会社3186円
白根瓦斯株式会社(新潟南地区)3215円
白根瓦斯株式会社(燕地区)2916円
水道料金(口径20mmで20m3の月額) 新潟市4400円
下水道料金(20m3を使用した場合の月額) 新潟市3047円
下水道普及率 87.3%

安心・安全

建物火災出火件数 103件
人口10000人当たり
1.30件
刑法犯認知件数 3979件
人口1000人当たり
5.04件
ハザード・防災マップ あり

医療

一般病院総数 35ヶ所
一般診療所総数 651ヶ所
小児科医師数 155人
小児人口10000人当たり
17.83人
産婦人科医師数 65人
15~49歳女性人口1万人当たり
4.54人
介護保険料基準額(月額) 6880円

ごみ

家庭ごみ収集(可燃ごみ) 有料
備考
指定ごみ袋有料。資源ごみは無料で回収。
家庭ごみの分別方式 3分別12種〔燃やすごみ 燃やさないごみ 資源物(プラマーク容器包装、ペットボトル、古紙類[新聞、雑誌・雑紙、ダンボール、紙パック]、飲食用・化粧品びん、飲食用缶、枝葉・草、特定5品目)〕
家庭ごみの戸別収集 未実施(高齢者や障がい者などごみ出しが困難な世帯に対して、有償ボランティア等によるごみ出し支援を行う団体に対し支援金を交付)
粗大ごみ収集 あり
備考
有料。戸別収集。事前申込制。シール制。品目により料金を設定(100~500円)。
生ごみ処理機助成金制度 あり
上限金額
20000円
上限比率
50.0%
暮らしデータ提供元:生活ガイド.com
※行政機関により公表していない地域及びデータがございます。東京23区以外の政令指定都市は、市全体のデータとして表示しています。
※提供データには細心の注意を払っておりますが、調査後に変更がある場合があります。 最新の情報につきましては各市区役所までお問い合わせいただくか、自治体HPなどをご確認ください。
OCN×ドコモ光新規お申込みで合計最大137,280円相当おトク!特典の内訳・適用条件など詳細はこちら

新潟市中央区内の各駅の住みやすさ

他のエリアから探す

新潟市中央区の詳細地域から賃貸物件を探す

相生町赤坂町明石旭町通1番町旭町通2番町愛宕鐙西網川原有明大橋町有明台医学町通2番町礎町通1ノ町礎町通2ノ町礎町通5ノ町礎町通6ノ町礎町通上1ノ町一番堀通町入船町祝町姥ケ山海辺町1番町上沼営所通1番町近江大島親松鏡が岡春日町上近江上大川前通10番町上大川前通12番町上大川前通1番町上大川前通2番町上大川前通3番町上大川前通4番町上大川前通5番町上大川前通6番町上大川前通7番町上大川前通8番町上大川前通9番町上所上所上上所中川岸町川端町神道寺神道寺南蒲原町学校裏町学校町通2番町学校町通3番町北大畑町北多門町北毘沙門町寄附町窪田町京王高志寿町湖南小張木幸町幸西桜木町笹口三和町紫竹紫竹山信濃町下旭町下大川前通1ノ町下大川前通2ノ町下大川前通3ノ町下大川前通4ノ町下所島新光町新島町通1ノ町新島町通2ノ町新島町通3ノ町新和水道町菅根町住吉町関新関南町関屋大川前関屋御船蔵町関屋金鉢山町関屋金衛町関屋下川原町関屋昭和町関屋新町通関屋田町関屋浜松町関屋本村町関屋松波町関屋恵町高美町田中町田町月町附船町寺裏通1番町寺裏通2番町天神天神尾天明町出来島鳥屋野鳥屋野南中大畑町長潟長嶺町西馬越西厩島町西大畑町西堀通10番町西堀通11番町西堀通2番町西堀通3番町西堀通4番町西堀通5番町西堀通6番町西堀通7番町西堀通8番町西堀通9番町西堀前通3番町西堀前通4番町西堀前通5番町西堀前通6番町西堀前通7番町西堀前通8番町西湊町通2ノ町沼垂西沼垂東白山浦花園花町浜浦町早川町万代東受地町東大通東大畑通1番町東幸町東出来島東中通1番町東中通2番町東万代町東堀通10番町東堀通11番町東堀通12番町東堀通13番町東堀通1番町東堀通2番町東堀通4番町東堀通5番町東堀前通2番町東堀前通3番町東堀前通4番町東堀前通5番町東堀前通6番町東堀前通8番町東堀前通9番町東湊町通1ノ町東湊町通2ノ町日の出雲雀町二葉町船場町古町通10番町古町通12番町古町通13番町古町通2番町古町通4番町古町通5番町古町通6番町古町通8番町文京町弁天弁天橋通堀之内堀之内南堀割町本町通11番町本町通12番町本町通14番町本町通1番町本町通2番町本町通3番町本町通4番町本町通5番町本町通6番町本町通7番町本町通8番町本町通9番町本間町秣川岸通美咲町水島町湊町通1ノ町湊町通2ノ町湊町通3ノ町湊町通4ノ町南笹口南多門町南出来島南長潟南浜通1番町南万代町美の里女池女池上山女池北女池神明女池西女池東女池南本馬越元下島町八千代山二ツ横七番町通四ツ屋町米山寄居町和合町

近辺の市区から探す

新潟市東区新潟市江南区新潟市西区

周辺の駅から探す

白新線
早通新崎大形東新潟新潟
越後線
寺尾小針青山関屋白山上所新潟
信越本線
新津さつき野荻川亀田越後石山新潟

掲載情報の著作権は提供元企業等に帰属します。
Copyright:(C) 2025 Recruit Co., Ltd.
アプリで簡単 物件探し 大手不動産サイトの情報から一括検!プッシュ通知で物件を見逃さない
App Storeからダウンロード Google Playで手に入れよう QRコード