賃貸マンション
KDXレジデンス横濱紅葉坂 桜木町駅 2SLDK 賃貸(賃貸マンション・アパート)
 
  
    
      | 賃料 | 32万円  (管理費等:15000円) | 
    
      | 礼金・敷金 | 1.5ヶ月 / 1ヶ月 | 保証金/敷引・償却 | なし / - | 
    
      | 交通 |  | 
    
      | 所在地 | 神奈川県横浜市西区紅葉ケ丘周辺地図 | 
    
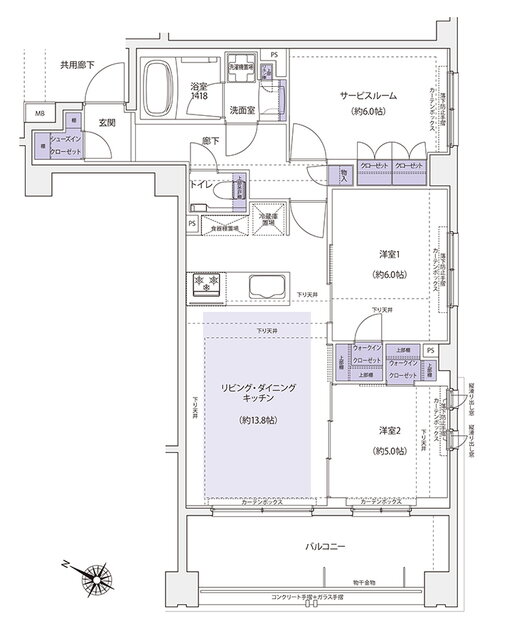
      | 間取り | 2SLDK | 専有面積 | 70.11m2 | 
    
      | 築年月 | 2021年3月 | 築年数 | 築4年9ヶ月 | 
  
 
 
- おすすめポイント
- 定休日なく営業中♪お問い合わせおまちしております★ 初期費用クレジットカード可能です♪
    
    
  
    - お問い合わせ先
- エキマエホーム横浜店武蔵小杉駅前不動産(株)
 
  
  
  
    - お問い合わせ先
- エキマエホーム横浜店武蔵小杉駅前不動産(株)
 
| 賃料 | 32万円 | 管理費等 | 15000円 | 
| 敷金 | 1ヶ月 | 礼金 | 1.5ヶ月 | 
| 保証金 | なし | 敷引・償却 | - | 
| 更新料 | - | 契約期間 |  | 
| カード決済 | - | 
| 所在地 | 神奈川県横浜市西区紅葉ケ丘周辺地図 | 
| 交通 | 
  JR根岸線 桜木町駅 徒歩7分乗換案内ブルーライン 桜木町駅 徒歩7分乗換案内みなとみらい線 みなとみらい駅 徒歩14分乗換案内 | 
| 建物名 | KDXレジデンス横濱紅葉坂 | 
| 間取り | 2SLDK | 築年月(築年数) | 2021年3月(築4年9ヶ月) | 
| 専有面積 | 70.11㎡ | 所在階/階数 | 4階/6階建 | 
| 建物構造 | RC | 方位 | 南西 | 
| 現況 |  | 駐車場 | 無    近くの駐車場を探す | 
| 入居可能時期 | 即時 | 住宅保険 | あり | 
| 情報提供元 | SUUMO[030H100469821018] | 情報公開日 |  | 
| 情報更新日 |  | 次回更新予定日 | 随時 | 
設備など
| 2階以上 | ○ | 最上階 | - | 角部屋 | - | 
| 駐車場(近隣含) | - | エアコン付き | ○ | バス・トイレ別 | ○ | 
| 室内洗濯機置き場 | ○ | 追焚機能 | ○ | オートロック付き | ○ | 
| モニタ付インターホン | - | フローリング | ○ | バルコニー | ○ | 
| ガスコンロ可 | - | 浴室乾燥機 | ○ | 24時間セキュリティ | - | 
| 宅配ボックス | ○ | ペット相談可 | ○ | 二人入居可 | - | 
| 設備 | 冷房・暖房・エアコン・オートロック・バルコニー・バス・トイレ別・トイレ・収納スペース・洗濯機置場・洗面所・エレベーター・CATV・BS端子・追焚機能・管理人日勤・フローリング・浴室乾燥機・ウォークインクローゼット・システムキッチン・宅配BOX・風呂・クローゼット・CS・床暖房・衣類乾燥機・浴トイレ別・洗面所独立・バイク置き場・室内洗濯機置き場 | 
| リフォーム履歴 | - | 
| リノベーション履歴 | - | 
| 備考 | 損保要/室内清掃費10.7969万円 鍵交換費2.2万円/更新料 賃料1.00ヶ月分 口座振替事務手数料 月額110円/保証会社利用必:初回保証委託料(最低20 000円):月額賃料等の50%、2年目以降:10 000円/年/普通借家02年0ヶ月/ペット相談/事務所利用不可/★お客様の気持ちに寄り添い、素敵なお部屋が見つかるようにお手伝いさせて頂きます♪★入居に関するご相談などお気軽にお問い合わせくださいませ♪♪/バストイレ別/バルコニー/エアコン/フローリング/浴室乾燥機/オートロック/室内洗濯置/システムキッチン/追焚機能浴室/エレベーター/洗面所独立/宅配ボックス/CATV/ペット相談/グリル付/ウォークインクロゼット/バイク置場/CS/床暖房/敷地内ごみ置き場/BS/通勤管理/SUPER MARKET FUJI(スーパーマーケットフジ)(スーパー)まで567m/セブンイレブン 横浜戸部店(コンビニ)まで439m/横浜戸部郵便局(郵便局)まで373m/掃部山公園(公園)まで145m/モスバーガー横浜桜木町店(飲食店)まで557m/新同楽(飲食店)まで351m | 
| 特記事項 | ペット相談可・管理人日勤 | 
神奈川県横浜市西区紅葉ケ丘 周辺地図情報
※地図上に表示される物件の位置は付近住所に所在することを表すものであり、実際の物件所在地とは異なる場合がございます。
   正確な物件所在地は、取扱い不動産会社にお問い合わせください。
 
 
  
  
  
    - お問い合わせ先
- エキマエホーム横浜店武蔵小杉駅前不動産(株)
 
不動産会社情報
| お問い合わせ先 | 商号:エキマエホーム横浜店武蔵小杉駅前不動産(株) 免許番号:神奈川県知事(2)第29474号
 所在地:神奈川県横浜市西区南幸2-14-16 やまと屋ビル2階
 TEL:045-534-9750
 取引態様:仲介
 管理コード:tsuda 564057
 所属協会など:(公社)首都圏不動産公正取引協議会加盟、(公社)全日本不動産協会神奈川県本部会員
 | 共有する |  | 
  
  
  
    - お問い合わせ先
- エキマエホーム横浜店武蔵小杉駅前不動産(株)
 
  
  
    人口などの統計情報
    
      
        
          | 世帯数 | 1744208世帯 | 
        
          | 人口総数 | 3752969人 | 
        
          | 転入者数 | 217258人 
 
              転入率(人口1000人当たり)57.89人 | 
        
          | 転出者数 | 201570人 
 
              転出率(人口1000人当たり)53.71人 | 
        
          | 土地平均価格 | 
              住宅地254434円/m2商業地1043863円/m2 | 
      
    
   
    
    結婚・育児の助成金
    
      
        
          | 子育て関連の独自の取り組み | 横浜市私立幼稚園等預かり保育事業(横浜市が定めた基準(実施日、時間、職員配置等)を満たし、横浜市の認定を受けた幼稚園・認定こども園が実施する事業。市内在住の園児の保護者が就労や病気等で、園の正規教育時間の前後に家庭で保育ができない場合に、利用可能。3歳児~5歳児は無料、満3歳児は(a)私学助成を受ける幼稚園の場合、月額9,000円、(b)新制度に移行した園の場合、0円~9,000円)。 | 
        
          | 出産祝い | あり | 
        
          | 公立保育所数 | 56所(うち0歳児保育を実施している保育所:41所) | 
        
          | 私立保育所数 | 813所(うち0歳児保育を実施している保育所:716所) | 
        
          | 保育所入所待機児童数 | 5人 | 
        
          | 認定こども園数 | 70園 | 預かり保育実施園数 | 公立:- 私立:213園 | 
        
          | 学校給食 | 【小学校】完全給食【中学校】家庭弁当等・業者弁当との選択制/デリバリー形式[運搬:ランチボックス、内容:完全給食] | 
        
          | 公立中学校の学校選択制 | 一部実施(特定地域選択制[特別調整通学区域]) | 
        
          | 子ども・学生等医療費助成<通院>対象年齢 | 中学校卒業まで | 子ども・学生等医療費助成<入院>対象年齢 | 中学校卒業まで | 
      
    
   
    
    横浜市西区の治安・ごみ収集情報
    公共料金・インフラ
    
      
        
          | ガス料金(22m3使用した場合の月額) | 東京瓦斯株式会社(東京地区等)3926円 | 
        
          | 水道料金(口径20mmで20m3の月額) | 横浜市3017円 | 
        
          | 下水道料金(20m3を使用した場合の月額) | 横浜市2035円 | 
        
          | 下水道普及率 | 100.0% | 
      
    
    安心・安全
    
      
        
          | 建物火災出火件数 | 438件 
              人口10000人当たり1.16件 | 
        
          | 刑法犯認知件数 | 16059件 
              人口1000人当たり4.25件 | 
        
          | ハザード・防災マップ | あり | 
      
    
    医療
    
      
        
          | 一般病院総数 | 113ヶ所 | 
        
          | 一般診療所総数 | 3201ヶ所 | 
        
          | 小児科医師数 | 682人 
              小児人口10000人当たり15.98人 | 
        
          | 産婦人科医師数 | 346人 
              15~49歳女性人口1万人当たり4.58人 | 
        
          | 介護保険料基準額(月額) | 6620円 | 
      
    
    ごみ
    
      
        
          | 家庭ごみ収集(可燃ごみ) | 無料 | 
        
          | 家庭ごみの分別方式 | 7分別9種〔燃やすごみ 燃えないごみ スプレー缶 乾電池 プラスチック製容器包装 缶・びん・ペットボトル(缶、びん、ペットボトル) 小さな金属類〕 | 
        
          | 家庭ごみの戸別収集 | 一部実施(【ふれあい収集】家庭ごみ・粗大ごみを集積場所まで持ち出すことができない高齢者や障害のある方などを対象にごみ出しの支援を実施。【狭あい道路収集】道路が狭く収集車が通行することができないため、集積場所が自宅近くに設けられない地域において、軽四輪車でごみを収集) | 
        
          | 粗大ごみ収集 | あり | 
        
          | 生ごみ処理機助成金制度 | なし 
              上限金額-上限比率- | 
      
    
   
  
      
    
      ※行政機関により公表していない地域及びデータがございます。東京23区以外の政令指定都市は、市全体のデータとして表示しています。
      
※提供データには細心の注意を払っておりますが、調査後に変更がある場合があります。 最新の情報につきましては各市区役所までお問い合わせいただくか、自治体HPなどをご確認ください。
    
      横浜市西区の暮らしデータをもっと見る