アプリで簡単 物件探し 通知 共有 アプリならではの機能を使ってみる
賃貸アパート

KEIAI RESIDENCE 久米川 久米川駅 1LDK 賃貸(賃貸マンション・アパート)

情報提供元
SUUMO
KEIAI RESIDENCE 久米川
賃料 7.9万円  (管理費等:3500円)
礼金・敷金 1ヶ月 / なし 保証金/敷引・償却 なし / -
交通
所在地 東京都東村山市萩山町4周辺地図
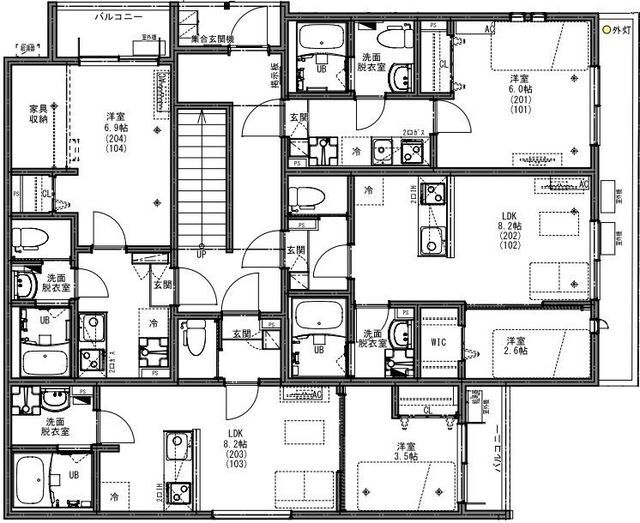
間取り 1LDK 専有面積 27.53m2
築年月 2025年10月 築年数 新築
おすすめポイント
インターネットに掲載しているお部屋をまとめてお調べできます! 久米川駅徒歩10分 通勤・通学に便利な立地です!新築アパートで、水回りや設備が新しいです!オートロックがあり比較的防犯面で安心かと思います!ネット使用料無料です!
お問い合わせ先
(株)セントラルエージェンシーセントラルハウス所沢駅前店
お問い合わせ先
(株)セントラルエージェンシーセントラルハウス所沢駅前店

詳細情報

賃料 7.9万円 管理費等 3500円
敷金 なし 礼金 1ヶ月
保証金 なし 敷引・償却 -
更新料 - 契約期間
カード決済 初期費用カード決済可
所在地 東京都東村山市萩山町4周辺地図
交通
建物名 KEIAI RESIDENCE 久米川 
間取り 1LDK(洋2.6 LDK8.2) 築年月(築年数) 2025年10月 新築
専有面積 27.53㎡ 所在階/階数 1階/2階建
建物構造 木造  方位 東 
現況   駐車場 無    近くの駐車場を探す
入居可能時期 即時 住宅保険 なし
情報提供元 SUUMO[030H100461700391] 情報公開日
情報更新日 次回更新予定日 随時

設備など

2階以上 - 最上階 - 角部屋 -
駐車場(近隣含) - エアコン付き バス・トイレ別
室内洗濯機置き場 追焚機能 - オートロック付き
モニタ付インターホン フローリング バルコニー
ガスコンロ可 - 浴室乾燥機 24時間セキュリティ -
宅配ボックス ペット相談可 - 二人入居可
設備 冷房・暖房・エアコン・オートロック・バルコニー・バス・トイレ別・トイレ・収納スペース・洗濯機置場・洗面所・CATV・フローリング・浴室乾燥機・ウォークインクローゼット・シャンプードレッサ・温水洗浄便座・システムキッチン・カウンターキッチン・モニタ付インターホン・宅配BOX・対面K・クローゼット・衣類乾燥機・プロパンガス・IHクッキングヒータ・ディンプルキー・浴トイレ別・洗面所独立・コンロ2口以上・シューズボックス・インターネット無料・インターネット対応・室内洗濯機置き場 
リフォーム履歴 -
リノベーション履歴 -
備考 室内清掃費用55000円/契約事務手数料16500円/カギ交換費用27500円/KEIAI CLUB加入費(火災保険、24時間サポート等含む)2750円/保証会社利用必:初回保証料:家賃総額50% 月額保証料:900円/月/仲介手数料1.1ヶ月/普通借家2年/単身者可/二人入居可/久米川駅徒歩10分 通勤・通学に便利な立地です!新築アパートで、水回りや設備が新しいです!オートロックがあり比較的防犯面で安心かと思います!ネット使用料無料です!/バストイレ別/バルコニー/エアコン/フローリング/シャワー付洗面台/TVインターホン/浴室乾燥機/オートロック/室内洗濯置/シューズボックス/システムキッチン/温水洗浄便座/脱衣所/洗面所独立/洗面化粧台/2口コンロ/宅配ボックス/CATV/敷金不要/対面式キッチン/IHクッキングヒーター/ウォークインクロゼット/保証人不要/単身者相談/二人入居相談/24時間緊急通報システム/防犯シャッター/全居室フローリング/2沿線利用可/ディンプルキー/ネット専用回線/ネット使用料不要/保証金不要/24時間換気システム/3駅以上利用可/駅徒歩10分以内/敷地内ごみ置き場/プロパンガス/洗面所にドア/シャッター/室内物干機/礼金1ヶ月/IT重説 対応物件/初期費用カード決済可/ローソンさいたま高砂店(コンビニ)まで336m/マツモトキヨシmatsukiyoLAB浦和高砂店(ドラッグストア)まで576m/カフェ・ベローチェ浦和市民文化センター店(飲食店)まで475m/埼玉県庁内郵便局(郵便局)まで411m/賃貸戸数:8戸 
特記事項 二人入居可・保証人不要/代行 ・初期費用カード決済可

省エネ性能

エネルギー消費性能 -
断熱性能 -
目安光熱費 -

東京都東村山市萩山町4 周辺地図情報

地図
※地図上に表示される物件の位置は付近住所に所在することを表すものであり、実際の物件所在地とは異なる場合がございます。
   正確な物件所在地は、取扱い不動産会社にお問い合わせください。
お問い合わせ先
(株)セントラルエージェンシーセントラルハウス所沢駅前店

不動産会社情報

お問い合わせ先 商号:(株)セントラルエージェンシーセントラルハウス所沢駅前店
免許番号:国土交通大臣(3)第8188号
所在地:埼玉県所沢市くすのき台3-18-5 リングスビル1階
TEL:04-2997-1122
取引態様:仲介
管理コード:67570637
所属協会など:(公社)首都圏不動産公正取引協議会加盟、(公社)埼玉県宅地建物取引業協会会員
共有する
QRコード
お問い合わせ先
(株)セントラルエージェンシーセントラルハウス所沢駅前店

    東村山市の暮らしデータ

    人口などの統計情報

    世帯数 68340世帯
    人口総数 151751人
    転入者数 7229人
    転入率(人口1000人当たり)
    47.64人
    転出者数 6243人
    転出率(人口1000人当たり)
    41.14人
    土地平均価格
    住宅地
    200417円/m2
    商業地
    375333円/m2

    結婚・育児の助成金

    子育て関連の独自の取り組み (1)子ども・子育て支援のためのポータルサイト「たのしむらやまポータル」を開設(利用者一人ひとりにパーソナライズされた情報をプッシュ型で提供するサービスや、予約申請サービス、オンライン相談サービス、動画配信サービス等を一体的に提供する事業)(2)指定管理者制度の活用により民間事業者等と行政が協働して運営を行う「子育て総合支援センター(ころころの森)」事業。(3)地域担当保育士が、6ヶ月~未就学のお子さんがいる家庭を訪問し、子育ての相談等を行う「すくすく訪問」事業。
    出産祝い あり
    公立保育所数 5所(うち0歳児保育を実施している保育所:5所)
    私立保育所数 16所(うち0歳児保育を実施している保育所:16所)
    保育所入所待機児童数 18人
    認定こども園数 4園 預かり保育実施園数 公立:- 私立:8園
    学校給食 【小学校】完全給食【中学校】家庭弁当等との選択制/デリバリー形式[運搬:ランチボックス、内容:完全給食]
    公立中学校の学校選択制 一部実施
    子ども・学生等医療費助成<通院>対象年齢 18歳3月末まで 子ども・学生等医療費助成<入院>対象年齢 18歳3月末まで

    東村山市の治安・ごみ収集情報

    公共料金・インフラ

    ガス料金(22m3使用した場合の月額) 東京瓦斯株式会社(東京地区等)3926円
    水道料金(口径20mmで20m3の月額) 東京都水道局2816円
    下水道料金(20m3を使用した場合の月額) 東村山市1936円
    下水道普及率 100.0%

    安心・安全

    建物火災出火件数 15件
    人口10000人当たり
    0.99件
    刑法犯認知件数 832件
    人口1000人当たり
    5.48件
    ハザード・防災マップ あり

    医療

    一般病院総数 9ヶ所
    一般診療所総数 92ヶ所
    小児科医師数 38人
    小児人口10000人当たり
    21.97人
    産婦人科医師数 3人
    15~49歳女性人口1万人当たり
    1.03人
    介護保険料基準額(月額) 6200円

    ごみ

    家庭ごみ収集(可燃ごみ) 有料
    備考
    指定収集袋。びん・かん、有害物、紙おむつ、古着、剪定枝(直径5cm以下・長さ60cm以下)は、透明・半透明の袋に入れて出せば無料。新聞、古着はひもで縛って出せば無料。
    家庭ごみの分別方式 7分別12種〔可燃ごみ 不燃ごみ 容器包装プラスチック 資源ごみ(カン・ビン、ペットボトル) 古紙(新聞紙、段ボール、雑誌・書籍、紙パック、雑紙) 古着 有害ごみ〕 拠点回収:使用済小型家電 インクカートリッジ
    家庭ごみの戸別収集 実施
    粗大ごみ収集 あり
    備考
    有料。事前申込制。申込先は「粗大ごみ・動物回収受付センター」[委託先]。収集運搬は、委託業者による。
    生ごみ処理機助成金制度 なし
    上限金額
    -
    上限比率
    -
    暮らしデータ提供元:生活ガイド.com
    ※行政機関により公表していない地域及びデータがございます。東京23区以外の政令指定都市は、市全体のデータとして表示しています。
    ※提供データには細心の注意を払っておりますが、調査後に変更がある場合があります。 最新の情報につきましては各市区役所までお問い合わせいただくか、自治体HPなどをご確認ください。
    OCN×ドコモ光新規お申込みで合計最大137,280円相当おトク!特典の内訳・適用条件など詳細はこちら

    東村山市内の各駅の住みやすさ

    他のエリアから探す

    東村山市の詳細地域から賃貸物件を探す

    青葉町秋津町恩多町久米川町栄町諏訪町多摩湖町野口町萩山町富士見町本町美住町廻田町

    近辺の市区から探す

    所沢市狭山市入間市朝霞市志木市和光市新座市入間郡三芳町立川市武蔵野市三鷹市府中市昭島市小金井市小平市日野市国分寺市国立市福生市東大和市清瀬市東久留米市武蔵村山市西東京市西多摩郡瑞穂町

    周辺の駅から探す

    西武鉄道新宿線
    西武柳沢田無花小金井小平久米川東村山西武園所沢航空公園
    西武鉄道多摩湖線
    国分寺一橋学園青梅街道萩山八坂武蔵大和多摩湖

    東京都東村山市で他のジャンルから探す


    掲載情報の著作権は提供元企業等に帰属します。
    Copyright:(C) 2025 Recruit Co., Ltd.
    アプリで簡単 物件探し 大手不動産サイトの情報から一括検!プッシュ通知で物件を見逃さない
    App Storeからダウンロード Google Playで手に入れよう QRコード