賃貸マンション
平和堂ビル 鵠沼海岸駅 3LDK 賃貸(賃貸マンション・アパート)
| 賃料 |
22.04万円 (管理費等:5000円) |
| 礼金・敷金 |
1ヶ月 / 1ヶ月 |
保証金/敷引・償却 |
なし / - |
| 交通 |
|
| 所在地 |
神奈川県藤沢市鵠沼海岸3丁目周辺地図
|
| 間取り |
3LDK |
専有面積 |
80.96m2 |
| 築年月 |
2025年11月 |
築年数 |
新築 |
- おすすめポイント
- ペット相談可・24時間換気システム
| 賃料 |
22.04万円 |
管理費等 |
5000円 |
| 敷金 |
1ヶ月 |
礼金 |
1ヶ月 |
| 保証金 |
なし |
敷引・償却 |
- |
| 更新料 |
新賃料の1ヶ月分 |
契約期間 |
定期借家 2年 |
| カード決済 |
- |
| 所在地 |
神奈川県藤沢市鵠沼海岸3丁目周辺地図
|
| 交通 |
|
| 建物名 |
平和堂ビル |
| 間取り |
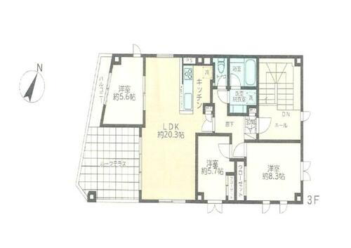
3LDK(洋 8.3・5.7・5.6 LDK 20.3) |
築年月(築年数) |
2025年11月
新築 |
| 専有面積 |
80.96㎡ |
所在階/階数 |
3階/3階建
|
| 建物構造 |
鉄骨 |
方位 |
南西 |
| 現況 |
未完成 |
駐車場 |
無 近くの駐車場を探す
|
| 入居可能時期 |
2025年12月上旬 |
住宅保険 |
あり家財保険 |
| 情報提供元 |
アットホーム[6987573846] |
情報公開日 |
|
| 情報更新日 |
- |
次回更新予定日 |
随時 |
設備など
| 2階以上 |
○ |
最上階 |
- |
角部屋 |
- |
| 駐車場(近隣含) |
- |
エアコン付き |
- |
バス・トイレ別 |
○ |
| 室内洗濯機置き場 |
○ |
追焚機能 |
○ |
オートロック付き |
○ |
| モニタ付インターホン |
○ |
フローリング |
○ |
バルコニー |
○ |
| ガスコンロ可 |
- |
浴室乾燥機 |
○ |
24時間セキュリティ |
- |
| 宅配ボックス |
- |
ペット相談可 |
○ |
二人入居可 |
- |
| 設備 |
給湯・オートロック・バルコニー・バス・トイレ別・トイレ・洗濯機置場・室内洗濯機置き場・シャワー・BS端子・追焚機能・都市ガス・フローリング・浴室乾燥機・シャンプードレッサ・温水洗浄便座・システムキッチン・モニタ付インターホン・駐輪場・テラス・クローゼット・CS・洗面所独立・シューズボックス・3口以上コンロ |
| リフォーム履歴 |
- |
| リノベーション履歴 |
- |
| 備考 |
民泊・転貸借不可。再契約相談可(再契約の場合は新賃料の1か月分が必要となります)・賃貸保証等:加入要(ナップ賃貸保証、初回保証料:賃料総額の60%、継続保証料:毎年12,000円)・ペット条件:小型犬可/敷金2カ月、小型犬1匹のみ・バルコニー:16平米・バイク置場:なし・駐輪場:有(無料) |
| 特記事項 |
ペット相談可・24時間換気システム |
神奈川県藤沢市鵠沼海岸3丁目 周辺地図情報
※地図上に表示される物件の位置は付近住所に所在することを表すものであり、実際の物件所在地とは異なる場合がございます。
正確な物件所在地は、取扱い不動産会社にお問い合わせください。
アピールポイント
約7.7帖のルーフテラス付の3LDK!3階は1部屋のみの独立タイプ。鵠沼海岸商店街通り沿い。小型犬1匹飼育可(敷金2カ月)、オートロック、モニター付きインターフォン、システムキッチン(3口)、ドラム式洗濯機対応、CATV・インターネット引込可、全部屋エアコン設置可。鵠沼海岸駅徒歩1分。商店街通りに面した物件ですので、日々のお買い物や通勤にも便利です。
不動産会社情報
| お問い合わせ先 |
商号:(株)オリエンタル住販 免許番号:神奈川県知事免許(3)第27834号 所在地:藤沢市鵠沼海岸2丁目4-7 TEL:0466-30-1230 取引態様:仲介 管理コード: 所属協会など:(公社)全日本不動産協会会員、(公社)首都圏不動産公正取引協議会加盟
|
共有する |
|
人口などの統計情報
| 世帯数 |
192960世帯 |
| 人口総数 |
445172人 |
| 転入者数 |
19958人
- 転入率(人口1000人当たり)
- 44.83人
|
| 転出者数 |
18277人
- 転出率(人口1000人当たり)
- 41.06人
|
| 土地平均価格 |
- 住宅地
- 230734円/m2
- 商業地
- 420444円/m2
|
結婚・育児の助成金
| 子育て関連の独自の取り組み |
神奈川県が運用しているスマートフォンの子育て情報アプリを活用した「子育てアプリふじさわ」により子育て情報を配信している。 |
| 出産祝い |
あり |
| 公立保育所数 |
14所(うち0歳児保育を実施している保育所:12所) |
| 私立保育所数 |
75所(うち0歳児保育を実施している保育所:75所) |
| 保育所入所待機児童数 |
11人 |
| 認定こども園数 |
2園 |
預かり保育実施園数 |
公立:- 私立:29園 |
| 学校給食 |
【小学校】完全給食【中学校】家庭弁当等との選択制/デリバリー形式[運搬:ランチボックス、内容:完全給食] |
| 公立中学校の学校選択制 |
一部実施(特定地域選択制) |
| 子ども・学生等医療費助成<通院>対象年齢 |
18歳3月末まで |
子ども・学生等医療費助成<入院>対象年齢 |
18歳3月末まで |
藤沢市の治安・ごみ収集情報
公共料金・インフラ
| ガス料金(22m3使用した場合の月額) |
東京瓦斯株式会社(東京地区等)3926円 |
| 水道料金(口径20mmで20m3の月額) |
神奈川県営水道2988円 |
| 下水道料金(20m3を使用した場合の月額) |
藤沢市2487円 |
| 下水道普及率 |
96.1% |
安心・安全
| 建物火災出火件数 |
64件
- 人口10000人当たり
- 1.46件
|
| 刑法犯認知件数 |
2101件
- 人口1000人当たり
- 4.81件
|
| ハザード・防災マップ |
あり |
医療
| 一般病院総数 |
14ヶ所 |
| 一般診療所総数 |
437ヶ所 |
| 小児科医師数 |
76人
- 小児人口10000人当たり
- 13.47人
|
| 産婦人科医師数 |
39人
- 15~49歳女性人口1万人当たり
- 4.41人
|
| 介護保険料基準額(月額) |
6300円 |
ごみ
| 家庭ごみ収集(可燃ごみ) |
有料
|
| 家庭ごみの分別方式 |
3分別20種〔可燃ごみ 不燃ごみ(蛍光管、ガスボンベ・スプレー、電池類、テープ類、ライター、水銀体温計、加熱式たばこ) 資源(新聞・折込広告、本・雑紙、段ボール、飲料用紙パック、古布類、ビン、カン・鍋類、ペットボトル、廃食用油、プラスチック製容器包装、商品プラスチック、剪定枝)〕 |
| 家庭ごみの戸別収集 |
実施(市全域で実施。集合住宅については敷地内の専用集積所) |
| 粗大ごみ収集 |
あり
|
| 生ごみ処理機助成金制度 |
あり
- 上限金額
- 30000円
- 上限比率
- 75.0%
|
※行政機関により公表していない地域及びデータがございます。東京23区以外の政令指定都市は、市全体のデータとして表示しています。
※提供データには細心の注意を払っておりますが、調査後に変更がある場合があります。 最新の情報につきましては各市区役所までお問い合わせいただくか、自治体HPなどをご確認ください。
藤沢市の暮らしデータをもっと見る