アプリで簡単 物件探し 通知 共有 アプリならではの機能を使ってみる
賃貸アパート

コーポ江原 飯能駅 2DK 賃貸(賃貸マンション・アパート)

情報提供元
アットホーム
コーポ江原
賃料 4.5万円  (管理費等:-)
礼金・敷金 1ヶ月 / 1ヶ月 保証金/敷引・償却 なし / -
交通
所在地 埼玉県飯能市大字川寺周辺地図
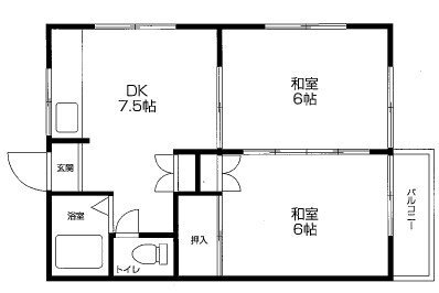
間取り 2DK 専有面積 39.6m2
築年月 1986年11月 築年数 築39年1ヶ月
おすすめポイント
ペット相談可・閑静な住宅街

詳細情報

賃料 4.5万円 管理費等 -
敷金 1ヶ月 礼金 1ヶ月
保証金 なし 敷引・償却 -
更新料 新賃料の0.5ヶ月分 契約期間 2年
カード決済 -
所在地 埼玉県飯能市大字川寺周辺地図
交通
  • 西武池袋・豊島線 飯能駅 徒歩13分乗換案内
建物名 コーポ江原 
間取り 2DK(洋 6・6 DK 7.5) 築年月(築年数) 1986年11月(築39年1ヶ月)
専有面積 39.6㎡ 所在階/階数 2階/2階建
建物構造 木造  方位 東 
現況 空  駐車場 有 無料
入居可能時期 即時 住宅保険 あり 2年 18000円
情報提供元 アットホーム[6982764379] 情報公開日
情報更新日 - 次回更新予定日 随時

設備など

2階以上 最上階 - 角部屋 -
駐車場(近隣含) エアコン付き バス・トイレ別
室内洗濯機置き場 追焚機能 - オートロック付き -
モニタ付インターホン - フローリング - バルコニー
ガスコンロ可 - 浴室乾燥機 - 24時間セキュリティ -
宅配ボックス - ペット相談可 二人入居可 -
設備 エアコン・バルコニー・バス・トイレ別・収納スペース・洗濯機置場・室内洗濯機置き場・シャワー・プロパンガス・駐輪場・クローゼット・シューズボックス・リフォーム 
リフォーム履歴 ■水回り
2022年05月実施
キッチン
■内装
2022年05月実施
全室クロス張替え/床(フローリング等)/建具(室内ドア等)
※実施年月は、施工箇所の中で最も古いものを表示しています
リノベーション履歴 -
備考 ペット飼育要相談(飼育の場合は敷金2ケ月分)・鍵交換代:あり16,500円~・お探しの方には嬉しいペット相談可。閑静な住宅街の住戸、更に陽の光の移ろいを感じられる2面採光のある住戸なので、自然光が部屋に差し込みます。駐車場1台分無料・駐輪場:有(無料)・仲介手数料:49,500円 
特記事項 ペット相談可・閑静な住宅街

省エネ性能

エネルギー消費性能 -
断熱性能 -
目安光熱費 -

埼玉県飯能市大字川寺 周辺地図情報

地図
※地図上に表示される物件の位置は付近住所に所在することを表すものであり、実際の物件所在地とは異なる場合がございます。
   正確な物件所在地は、取扱い不動産会社にお問い合わせください。
アピールポイント
閑静な住宅地、ペット飼育相談(飼育の場合は敷金2ケ月分)、陽当り、通風良好!!駐車場1台分家賃に含んでいます。

不動産会社情報

お問い合わせ先 商号:(株)新光不動産
免許番号:埼玉県知事免許(3)第22188号
所在地:飯能市大字川寺103-5
TEL:042-972-6209
取引態様:仲介
管理コード:
所属協会など:(公社)埼玉県宅地建物取引業協会会員、(公社)首都圏不動産公正取引協議会加盟
共有する
QRコード

飯能市の暮らしデータ

人口などの統計情報

世帯数 33516世帯
人口総数 78472人
転入者数 3194人
転入率(人口1000人当たり)
40.70人
転出者数 2477人
転出率(人口1000人当たり)
31.57人
土地平均価格
住宅地
55031円/m2
商業地
186000円/m2

結婚・育児の助成金

子育て関連の独自の取り組み (1)赤ちゃんスマイル事業。(2)子どもインフルエンザ予防接種の費用無償化事業。
出産祝い あり
公立保育所数 9所(うち0歳児保育を実施している保育所:4所)
私立保育所数 5所(うち0歳児保育を実施している保育所:5所)
保育所入所待機児童数 0人
認定こども園数 3園 預かり保育実施園数 公立:1園 私立:3園
学校給食 【小学校】完全給食【中学校】完全給食
公立中学校の学校選択制 一部実施(小規模特認校)
子ども・学生等医療費助成<通院>対象年齢 18歳3月末まで 子ども・学生等医療費助成<入院>対象年齢 18歳3月末まで

飯能市の治安・ごみ収集情報

公共料金・インフラ

ガス料金(22m3使用した場合の月額) 武州瓦斯株式会社4281円
西武ガス株式会社(本社地区)4759円
西武ガス株式会社(横手地区)4718円
入間ガス株式会社4384円
水道料金(口径20mmで20m3の月額) 飯能市2695円
下水道料金(20m3を使用した場合の月額) 飯能市2706円
下水道普及率 72.7%

安心・安全

建物火災出火件数 7件
人口10000人当たり
0.87件
刑法犯認知件数 464件
人口1000人当たり
5.77件
ハザード・防災マップ あり

医療

一般病院総数 4ヶ所
一般診療所総数 46ヶ所
小児科医師数 10人
小児人口10000人当たり
12.24人
産婦人科医師数 1人
15~49歳女性人口1万人当たり
0.74人
介護保険料基準額(月額) 5591円

ごみ

家庭ごみ収集(可燃ごみ) 無料
備考
-
家庭ごみの分別方式 8分別14種〔可燃ごみ 不燃ごみ 有害ごみ(蛍光管、乾電池・ライター・水銀体温計[血圧計]、スプレー缶) プラスチック類 びん 飲料缶 ペットボトル 紙・布(新聞紙・チラシ、段ボール、雑紙・雑紙、紙パック、古布)〕
家庭ごみの戸別収集 未実施
粗大ごみ収集 あり
備考
有料。
生ごみ処理機助成金制度 なし
上限金額
-
上限比率
-
暮らしデータ提供元:生活ガイド.com
※行政機関により公表していない地域及びデータがございます。東京23区以外の政令指定都市は、市全体のデータとして表示しています。
※提供データには細心の注意を払っておりますが、調査後に変更がある場合があります。 最新の情報につきましては各市区役所までお問い合わせいただくか、自治体HPなどをご確認ください。
OCN×ドコモ光新規お申込みで合計最大137,280円相当おトク!特典の内訳・適用条件など詳細はこちら

飯能市内の各駅の住みやすさ


掲載情報の著作権は提供元企業等に帰属します。
Copyright:(C) 2025 At Home Co.,Ltd
アプリで簡単 物件探し 大手不動産サイトの情報から一括検!プッシュ通知で物件を見逃さない
App Storeからダウンロード Google Playで手に入れよう QRコード