| 価格 | 1980万円 | 管理費等 | 9,400円 |
|---|---|---|---|
| 駐車場 | 修繕積立金 | 11,900円 | |
| 所在地 | 神奈川県横浜市中区長者町8丁目周辺地図 | ||
| 交通 | |||
| 物件名 | フェニックス伊勢佐木町弐番館 | ||
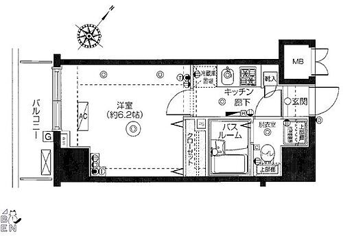
| 築年月(築年数) | 2009年8月(築16年3ヶ月) | 間取り | 1K |
| 総戸数 | 27戸 | 専有面積 | 21.08m2(壁芯) |
| 所在階/階数 | 4階/10階建 | バルコニー面積 | 3.44m2 |
| 方位 | 南西 | 建物構造 | RC |
| 管理形態 | 一部委託 | 管理員の勤務形態 | 日勤 |
| 維持費等 | 土地権利 | 所有権 | |
| 用途地域 | 商業地域 | 借地期間・地代 | |
| 現況 | 賃貸中 | 引渡可能年月 | 相談 |
| 情報提供元 | LIFULL HOME'S [1019810023786] | 情報公開日 | |
| 情報更新日 | 次回更新予定日 | 2025年11月3日 | |
| ペット相談可 | - | 即入居可 | - | 南向き | - |
|---|---|---|---|---|---|
| 角部屋 | - | 駐車場空き有り | - | トランクルーム | - |
| オートロック | ○ | 宅配ボックス | ○ | 浴室乾燥機 | ○ |
| 床暖房 | - | ウォークインクローゼット | - | 管理人常駐 | - |
| 最上階 | - | 2階以上 | ○ | タワーマンション | - |
| 設備 | バス・トイレ別・シャワー・ガスコンロ可・コンロ2口以上・エアコン・室内洗濯機置き場・CATV・BS端子・オートロック・エレベーター・バルコニー・フローリング・宅配BOX・駐輪場・バイク置き場・光ファイバー(ブロードバンド)・浴室乾燥機・クローゼット・シューズボックス | ||||
| リフォーム履歴 | - | ||||
| リノベーション履歴 | - | ||||
| 備考 | 【物件周辺の生活情報】 ・学校 横浜市立本町小学校(1,130m)、横浜市立横浜吉田中学校(430m) ・買い物 スーパー(150m)、ドラッグストア(110m) ・その他施設 公園(400m)、聖母幼稚園(310m) 施工会社:共立建設株式会社 引渡し時期相談内容:※サブリース契約中 at250731-4 ・2025年8月現在、月額65,700円にてサブリース契約中のオーナーチェンジ物件です・2024年12月大規模修繕完了済の管理体制良好マンション・4階部分の南西向きのお部屋です■■この物件のおすすめポイント■■・ブルーライン「伊勢佐木長者町」、京急「日ノ出町」駅へ平坦徒歩6分・JR京浜東北線、根岸線「関内」駅へ徒歩10分も利用可能なアクセス良好マンション・2025年8月現在、月額65,700円にてサブリース契約中のオーナーチェンジ物件です・2024年12月大規模修繕完了済の管理体制良好・宅配ボックス完備で留守の際のお荷物も受け取ることができます・オートロックシステム完備の安心マンション・駐輪場、バイク置き場も完備です・浴室・トイレ別の間取りです・4階部分の南西向きのお部屋で採光もたっぷり取り込むことができますね・是非ご確認ください 【間取り備考】※サブリーズ契約中 【設備・特記事項備考】専用バス・専用トイレ・全居室収納 国土法届出:不要 |
||||
| 特記事項 | |||||
| エネルギー消費性能 | - |
|---|---|
| 断熱性能 | - |
| 目安光熱費 | - |
| お問い合わせ先 |
商号:株式会社ベンハウス 川崎西口支店
免許番号:国土交通大臣免許(04)第007179号 所在地:神奈川県川崎市幸区大宮町5番地太尾ビル1F 取引態様:専任媒介 管理コード:23786 所属協会など:(公社)全日本不動産協会 |
共有する |
|
|---|
| 世帯数 | 1744208世帯 |
|---|---|
| 人口総数 | 3752969人 |
| 転入者数 | 217258人
|
| 転出者数 | 201570人
|
| 土地平均価格 |
|
| 子育て関連の独自の取り組み | 横浜市私立幼稚園等預かり保育事業(横浜市が定めた基準(実施日、時間、職員配置等)を満たし、横浜市の認定を受けた幼稚園・認定こども園が実施する事業。市内在住の園児の保護者が就労や病気等で、園の正規教育時間の前後に家庭で保育ができない場合に、利用可能。3歳児~5歳児は無料、満3歳児は(a)私学助成を受ける幼稚園の場合、月額9,000円、(b)新制度に移行した園の場合、0円~9,000円)。 | ||
|---|---|---|---|
| 出産祝い | あり | ||
| 公立保育所数 | 56所(うち0歳児保育を実施している保育所:41所) | ||
| 私立保育所数 | 813所(うち0歳児保育を実施している保育所:716所) | ||
| 保育所入所待機児童数 | 5人 | ||
| 認定こども園数 | 70園 | 預かり保育実施園数 | 公立:- 私立:213園 |
| 学校給食 | 【小学校】完全給食【中学校】家庭弁当等・業者弁当との選択制/デリバリー形式[運搬:ランチボックス、内容:完全給食] | ||
| 公立中学校の学校選択制 | 一部実施(特定地域選択制[特別調整通学区域]) | ||
| 子ども・学生等医療費助成<通院>対象年齢 | 中学校卒業まで | 子ども・学生等医療費助成<入院>対象年齢 | 中学校卒業まで |
| ガス料金(22m3使用した場合の月額) | 東京瓦斯株式会社(東京地区等)3926円 |
|---|---|
| 水道料金(口径20mmで20m3の月額) | 横浜市3017円 |
| 下水道料金(20m3を使用した場合の月額) | 横浜市2035円 |
| 下水道普及率 | 100.0% |
| 建物火災出火件数 |
438件
|
|---|---|
| 刑法犯認知件数 |
16059件
|
| ハザード・防災マップ | あり |
| 一般病院総数 | 113ヶ所 |
|---|---|
| 一般診療所総数 | 3201ヶ所 |
| 小児科医師数 |
682人
|
| 産婦人科医師数 |
346人
|
| 介護保険料基準額(月額) | 6620円 |
| 家庭ごみ収集(可燃ごみ) |
無料
|
|---|---|
| 家庭ごみの分別方式 | 7分別9種〔燃やすごみ 燃えないごみ スプレー缶 乾電池 プラスチック製容器包装 缶・びん・ペットボトル(缶、びん、ペットボトル) 小さな金属類〕 |
| 家庭ごみの戸別収集 | 一部実施(【ふれあい収集】家庭ごみ・粗大ごみを集積場所まで持ち出すことができない高齢者や障害のある方などを対象にごみ出しの支援を実施。【狭あい道路収集】道路が狭く収集車が通行することができないため、集積場所が自宅近くに設けられない地域において、軽四輪車でごみを収集) |
| 粗大ごみ収集 |
あり
|
| 生ごみ処理機助成金制度 |
なし
|
| 利子補給制度 | なし |
|---|---|
| 補助/助成金制度 | なし |
| 利子補給制度 | なし |
|---|---|
| 補助/助成金制度 | あり
|
曙町|池袋|伊勢佐木町|上野町|打越|扇町|太田町|翁町|尾上町|北仲通|寿町|小港町|新山下|末吉町|住吉町|滝之上|竹之丸|千歳町|長者町|千代崎町|常盤町|仲尾台|錦町|西竹之丸|日本大通|根岸旭台|根岸加曽台|根岸台|根岸町|野毛町|初音町|花咲町|英町|万代町|日ノ出町|福富町西通|富士見町|不老町|弁天通|蓬莱町|本郷町|本牧荒井|本牧大里町|本牧町|本牧原|本牧間門|本牧宮原|本牧元町|松影町|豆口台|南仲通|宮川町|麦田町|元浜町|元町|山下町|山田町|山手町|山吹町|山元町|弥生町|吉田町|吉浜町|若葉町
横浜市鶴見区|横浜市神奈川区|横浜市西区|横浜市南区|横浜市保土ケ谷区|横浜市磯子区|横浜市金沢区|横浜市港北区|横浜市戸塚区|横浜市港南区|横浜市旭区|横浜市緑区|横浜市栄区|横浜市都筑区|川崎市川崎区|川崎市幸区