アプリで簡単 物件探し 通知 共有 アプリならではの機能を使ってみる
中古マンション

稲毛ファミールハイツ 19号棟 11階 2LDK

情報提供元
LIFULL HOME'S
稲毛ファミールハイツ 19号棟 ~ご内見予約・資料請求受付中です~\\まずは資料だけ…というお問い合せも大歓迎です//
価格 1580万円  (管理費等:5,200円)
修繕積立金 14,090円
交通
所在地 千葉県千葉市稲毛区柏台周辺地図
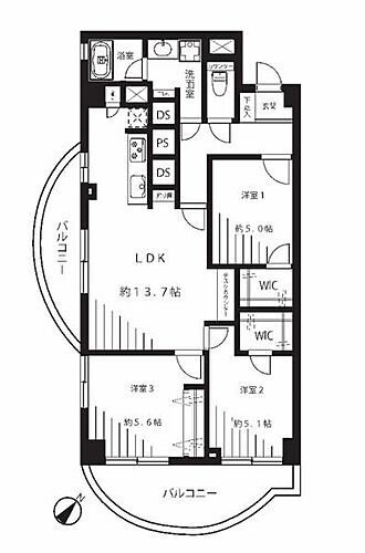
間取り 2LDK 専有面積 73.93m2(壁芯)
所在階/階数 11階/11階建 方位 南東
築年月 1975年2月 築年数 築50年9ヶ月
おすすめポイント
\\2025年7月リフォーム物件!!快適な暮らしの実現// 【最上階】眺望・採光良好です!LDKは広々20帖超えの開放感あふれるリビング
角部屋・最上階
お問い合わせ先
東海住宅株式会社 四街道支店
物件を見たい、物件や住環境の詳しい情報やローン相談など、
お問い合わせ先
東海住宅株式会社 四街道支店

詳細情報

価格 1580万円 管理費等 5,200円
駐車場   修繕積立金 14,090円
所在地 千葉県千葉市稲毛区柏台周辺地図
交通
  • 総武本線 稲毛駅 バス19分/「ファミールハイツ」バス停 停歩2分乗換案内
  • 千葉都市モノレール 穴川駅 徒歩22分乗換案内
物件名 稲毛ファミールハイツ 19号棟
築年月(築年数) 1975年2月(築50年9ヶ月) 間取り 2LDK (LDK 22 洋 5・6)
総戸数 1343戸 専有面積 73.93m2(壁芯)
所在階/階数 11階/11階建 バルコニー面積 7.98m2
方位 南東 建物構造 SRC
管理形態 全部委託 管理員の勤務形態 日勤
維持費等 土地権利 所有権
用途地域 1種中高 借地期間・地代
現況 空室 引渡可能年月 相談
情報提供元 LIFULL HOME'S [1204490008045] 情報公開日
情報更新日 次回更新予定日 2025年11月10日

設備など

ペット相談可 - 即入居可 - 南向き -
角部屋 駐車場空き有り - トランクルーム -
オートロック - 宅配ボックス - 浴室乾燥機
床暖房 - ウォークインクローゼット - 管理人常駐 -
最上階 2階以上 タワーマンション -
設備 リフォーム・上水道・都市ガス・本下水・バス・トイレ別・シャワー・ガスコンロ可・コンロ2口以上・システムキッチン・給湯・追焚機能・シャンプードレッサ・洗濯機置場・エレベーター・バルコニー・フローリング・モニタ付インターホン・温水洗浄便座・カウンターキッチン・浴室乾燥機・洗面所独立・食器洗浄乾燥機・クローゼット・照明器具
リフォーム履歴 ■水回り
2025年07月実施
キッチン/浴室/トイレ/洗面所/給排水管
■内装
2025年07月実施
全室クロス張替え/床(フローリング等)/建具(室内ドア等)
ハウスクリーニング他
※実施年月は、施工箇所の中で最も古いものを表示しています
リノベーション履歴 -
備考 【物件周辺の生活情報】
・学校
千葉市立柏台小学校(784m)、千葉市立緑が丘中学校(1,654m)
・買い物
スーパー(540m)、コンビニ(467m)、商店街(1,136m)
・その他施設
総合病院(300m)、公園(244m)
施工会社:(株)竹中工務店
・≪物件アピールポイント≫●家事負担軽減の【食器洗浄乾燥機】付きで家事の効率化アップ●閑静な住宅街でのんびりスローライフが叶う住環境●小学校xスーパーx商業施設徒歩圏内で周辺住環境充実!!≪アクセス≫JR総武線「稲毛」駅 バス18分(バス「ファミールハイツ」停徒2分)千葉都市モノレール「穴川」駅       徒歩22分 1700m「スポーツセンター」駅 徒歩24分 1900m≪周辺環境≫柏台小学校  徒歩8分 620m緑が丘中学校 徒歩19分 1500mワンズモール 徒歩14分 1090mせんどう長沼店 徒歩9分 660m【営業時間】9:30-18:30この時間帯はお電話でのお問い合わせのほうがスムーズにご対応できます!お気軽にご連絡ください!《東海住宅四街道支店の特徴》●地域密着!どうぞ安心してお任せください!お客様の夢やご希望をおきかせください。豊富な地元情報と経験豊かな専門スタッフが、責任をもって全力でお客様の「住まい」探しのお手伝いをいたします。 【設備・特記事項備考】全居室収納
国土法届出:不要
販売戸数:1戸
特記事項 角部屋・最上階

省エネ性能

エネルギー消費性能 -
断熱性能 -
目安光熱費 -

千葉県千葉市稲毛区柏台 周辺地図情報

地図
※地図上に表示される物件の位置は付近住所に所在することを表すものであり、実際の物件所在地とは異なる場合がございます。
   正確な物件所在地は、取扱い不動産会社にお問い合わせください。
物件を見たい、物件や住環境の詳しい情報やローン相談など、
お問い合わせ先
東海住宅株式会社 四街道支店

不動産会社情報

お問い合わせ先 商号:東海住宅株式会社 四街道支店
免許番号:国土交通大臣(14)第1961号
所在地:千葉県四街道市四街道1丁目6番4号
取引態様:媒介
管理コード:8045
所属協会など:(公財)東日本不動産流通機構
共有する
QRコード

お電話でのお問い合わせ

電話をかける(携帯・PHS可)
お問い合わせダイヤル
通話無料0037-634-08575
営業時間 09:30~18:30 (定休日:毎週火曜日・水曜日)
音声案内に従って数字を入力
お問い合わせ番号
35719-2970
不動産会社につながります
不動産会社のスタッフと
直接電話で話せます。
※不動産会社がお電話に出られなかった場合、株式会社LIFULLは電話会社が提供するサービスを介してお客様の発信者番号を受領後、折り返し専用の電話番号を発番してお問合せの不動産会社に通知します(お客様の発信者番号がお問合せの不動産会社に通知されることはございません)
※光IP電話、及びIP電話からはご利用になれません
※0037で始まる電話番号に携帯電話からお問合せいただいた方には、ショートメッセージ(SMS)によるお問合せ完了通知をお届けする場合があります
物件を見たい、物件や住環境の詳しい情報やローン相談など、
お問い合わせ先
東海住宅株式会社 四街道支店

千葉市稲毛区の暮らしデータ

人口などの統計情報

世帯数 445814世帯
人口総数 978899人
転入者数 58210人
転入率(人口1000人当たり)
59.46人
転出者数 50072人
転出率(人口1000人当たり)
51.15人
土地平均価格
住宅地
121580円/m2
商業地
397034円/m2

結婚・育児の助成金

子育て関連の独自の取り組み (1)5年連続待機児童ゼロ。(2)政令市で2番目の産後ケア利用件数(2021年度政令指定都市主管課長会議)。(3)放課後児童クラブと放課後子ども教室を一体的に運営するアフタースクール。(4)小中学生に「ふれあいパスポート」(対象施設を無料・割引で利用可能)を配布。(5)ステップルームティーチャーの配置等6つの取組み(不登校対策パッケージ)。(6)保育園での医療的ケア児の受入。(7)3歳未満児在宅保育支援給付。(8)公立保育所における休日保育。(9)施設利用選考基準における多胎児への加点。(10)子育て支援コンシェルジュ。(11)エンゼルヘルパー。(12)男性の育児休業取得促進奨励金。(13)こども誰でも通園制度の試行。
出産祝い あり
公立保育所数 52所(うち0歳児保育を実施している保育所:51所)
私立保育所数 175所(うち0歳児保育を実施している保育所:175所)
保育所入所待機児童数 0人
認定こども園数 46園 預かり保育実施園数 公立:- 私立:53園
学校給食 【小学校】完全給食【中学校】完全給食
公立中学校の学校選択制 未実施
子ども・学生等医療費助成<通院>対象年齢 18歳3月末まで 子ども・学生等医療費助成<入院>対象年齢 18歳3月末まで

千葉市稲毛区の治安・ごみ収集情報

公共料金・インフラ

ガス料金(22m3使用した場合の月額) 東京瓦斯株式会社(東京地区等)3926円
大多喜ガス株式会社(内房地区12A地区)4180円
大多喜ガス株式会社(内房地区13A地区)4105円
習志野市3432円
水道料金(口径20mmで20m3の月額) 千葉市3250円
千葉県営水道3250円
四街道市2640円
下水道料金(20m3を使用した場合の月額) 千葉市2140円
下水道普及率 97.5%

安心・安全

建物火災出火件数 145件
人口10000人当たり
1.49件
刑法犯認知件数 7010件
人口1000人当たり
7.19件
ハザード・防災マップ あり

医療

一般病院総数 42ヶ所
一般診療所総数 717ヶ所
小児科医師数 229人
小児人口10000人当たり
21.09人
産婦人科医師数 100人
15~49歳女性人口1万人当たり
5.17人
介護保険料基準額(月額) 6300円

ごみ

家庭ごみ収集(可燃ごみ) 有料
備考
指定ごみ袋有料。家庭ごみ処理手数料として1リットルあたり0.8円にて販売。
家庭ごみの分別方式 4分別20種〔可燃ごみ 不燃ごみ 資源物(びん[無色、茶色、その他]、缶、ペットボトル、木の枝、刈り草・葉、新聞、雑誌、段ボール、紙パック、雑がみ、布類) 有害ごみ(乾電池、蛍光灯、水銀入り体温計・血圧計、カセット式ガスボンベ・スプレー缶、使い捨てガスライター)〕
家庭ごみの戸別収集 未実施
粗大ごみ収集 あり
備考
有料。事前申込制。受付センターへ申込み。
生ごみ処理機助成金制度 あり
上限金額
35000円
上限比率
50.0%

千葉市稲毛区の住まいの給付金

中古購入

利子補給制度 なし
補助/助成金制度 あり
上限金額
50万円
備考
【千葉市三世代同居・近居支援事業】要件は、(a)今後、親、子、孫を基本とする三世代の家族が同居または近隣(1km以内)に居住。(b)親が65歳以上で1年以上千葉市に居住。(c)孫が18歳未満。(d)同居または近隣の状態が今後3年以上継続する見込み。助成内容は、住宅購入費用+引越費用の合計額と助成限度額50万円を比較して低い額。

増築・改築・改修

利子補給制度 なし
補助/助成金制度 あり
上限金額
(1)9.6万円(2)100万円(3)20万円(4)100万円
備考
(1)【耐震診断費】1981年5月31日以前に建築された木造住宅。上限額9.6万円。(2)【耐震改修費】2000年5月31日以前に建築された木造住宅。工事、上限100万円。工事を二段階に分ける場合、1981年5月31日以前に建築された木造住宅。段階ごとに上限50万円。(3)【耐震シェルター設置費】1981年5月31日以前に建築された木造住宅。上限20万円。(4)【千葉市三世代同居・近居支援事業】今後、親、子、孫を基本とする三世代の家族が同居または近隣(1km以内)に居住する目的で、増築を行う際に助成。増築費用+引越費用の合計額と助成限度額50万円を比較して低い額(市内業者と契約して施工等を行った場合、限度額100万円)。他要件あり。
暮らしデータ提供元:生活ガイド.com
※行政機関により公表していない地域及びデータがございます。東京23区以外の政令指定都市は、市全体のデータとして表示しています。
※提供データには細心の注意を払っておりますが、調査後に変更がある場合があります。 最新の情報につきましては各市区役所までお問い合わせいただくか、自治体HPなどをご確認ください。

この物件を見た人はこんな物件も見ています

OCN×ドコモ光新規お申込みで合計最大137,280円相当おトク!特典の内訳・適用条件など詳細はこちら

千葉市稲毛区内の各駅の住みやすさ

住宅ローンの返済額一覧

物件価格 1580万円に対して、年率 で、頭金 の場合
↓ボーナス 35年間 30年間 25年間 20年間 15年間 10年間
0万円 28,035円/月 32,312円/月 38,304円/月 47,296円/月 62,290円/月 92,287円/月
5万円 18,949円/月 23,336円/月 29,437円/月 38,538円/月 53,639円/月 83,742円/月
10万円 ローン不可 ローン不可 20,570円/月 29,779円/月 44,987円/月 75,197円/月
15万円 ローン不可 ローン不可 ローン不可 ローン不可 36,336円/月 66,652円/月
20万円 ローン不可 ローン不可 ローン不可 ローン不可 ローン不可 58,106円/月
25万円 ローン不可 ローン不可 ローン不可 ローン不可 ローン不可 49,561円/月
30万円 ローン不可 ローン不可 ローン不可 ローン不可 ローン不可 ローン不可
支払い利息合計 978,060円~ 835,320円~ 696,200円~ 555,280円~ 416,940円~ 279,600円~
※元利均等返済方式で試算しています。 「円」の単位以下の端数金額は「切り捨て」として計算しております。
※金利は、固定金利として計算しております。
※上記の住宅ローン返済額一覧は、あくまで試算であり、将来の金利動向により、実際のご返済額とは異なります。
※ボーナス支払総額が総支払額の50%を超えている場合、上記の表では「ローン不可」となります。
※住宅ローン返済額一覧の数値は、住宅ローンのお申し込みやご融資をお約束するものではございません。
物件を見たい、物件や住環境の詳しい情報やローン相談など、
お問い合わせ先
東海住宅株式会社 四街道支店

掲載情報の著作権は提供元企業等に帰属します。
Copyright:(C) 2025 LIFULL Co.,Ltd.
アプリで簡単 物件探し 大手不動産サイトの情報から一括検!プッシュ通知で物件を見逃さない
App Storeからダウンロード Google Playで手に入れよう QRコード