アプリで簡単 物件探し 通知 共有 アプリならではの機能を使ってみる
中古マンション

東急ドエル・アルス御屋敷通 13階 3LDK

情報提供元
SUUMO
東急ドエル・アルス御屋敷通 外観もきれいです
価格 3380万円  (管理費等:6500円/月(委託(通勤)))
修繕積立金 16,890円
交通
所在地 兵庫県神戸市長田区御屋敷通1周辺地図
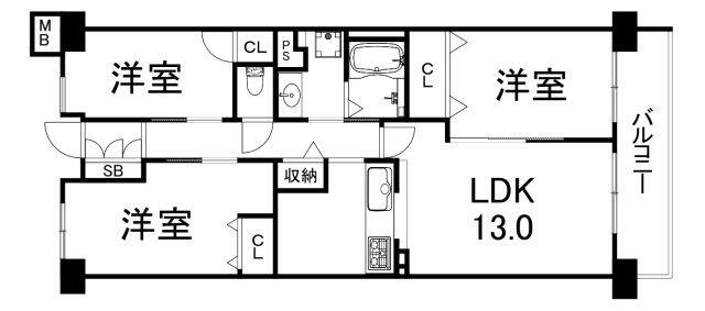
間取り 3LDK 専有面積 67.01m2(20.27坪)(壁芯)
所在階/階数 13階/地上14階地下1階建 方位 南東
築年月 1999年9月 築年数 築26年4ヶ月
おすすめポイント
■人気の対面式システムキッチン・食洗機付■14階建て13階部分・南東向き採光・眺望・通風良好■全居室収納■オートロック、宅配ボックス有■ペット飼育可能(規約による制限あり)□神戸市立蓮池小学校 徒歩約3分□神戸市立西代中学校 徒歩約16分
ペット相談可・日当り良好・管理人日勤
お問い合わせ先
(株)プラン・ドゥ・シー元町店
物件を見たい、物件や住環境の詳しい情報やローン相談など、
お問い合わせ先
(株)プラン・ドゥ・シー元町店

詳細情報

価格 3380万円 管理費等 6500円/月(委託(通勤))
駐車場 空無 修繕積立金 16,890円
所在地 兵庫県神戸市長田区御屋敷通1周辺地図
交通
物件名 東急ドエル・アルス御屋敷通
築年月(築年数) 1999年9月(築26年4ヶ月) 間取り 3LDK
総戸数 114戸 専有面積 67.01m2(20.27坪)(壁芯)
所在階/階数 13階/地上14階地下1階建 バルコニー面積 9.95m2
方位 南東 建物構造 SRC
管理形態 委託管理
維持費等 土地権利 所有権
用途地域 近隣商業 借地期間・地代
現況 引渡可能年月 相談
情報提供元 SUUMO [060Z78644311] 情報公開日
情報更新日 次回更新予定日 随時

設備など

ペット相談可 即入居可 - 南向き -
角部屋 - 駐車場空き有り - トランクルーム -
オートロック - 宅配ボックス 浴室乾燥機 -
床暖房 - ウォークインクローゼット - 管理人常駐 -
最上階 - 2階以上 タワーマンション -
設備 バルコニー・トイレ・収納スペース・洗面所・エレベーター・管理人日勤・シャンプードレッサ・温水洗浄便座・システムキッチン・モニタ付インターホン・対面K・浄水器・食器洗浄乾燥機・リフォーム・バイク置き場・駐輪場・宅配BOX
リフォーム履歴 2025年7月完了
 水回り設備交換:キッチン・浴室・トイレ
 内装リフォーム:壁・床・全室
※年月は一番古いリフォーム箇所を表します
リノベーション履歴 -
備考 <物件名>東急ドエル・アルス御屋敷通/<駐車場>空無/委託(日勤)/<土地権利>所有権/<間取り>3LDK/<リフォーム>●リフォーム:2025年7月完了(水回り設備交換:キッチン・浴室・トイレ、内装リフォーム:壁・床・全室)※年月は一番古いリフォーム箇所を表します/<特徴>令和7年7月リフォーム完成済み!人気の対面キッチン!3LDK・上層階13階、即引渡可・2沿線以上利用可・スーパー 徒歩10分以内・内装リフォーム・システムキッチン
販売戸数:1戸/管理費等帯:6500円/修繕積立金帯:16890円
特記事項 ペット相談可・日当り良好・管理人日勤

省エネ性能

エネルギー消費性能 -
断熱性能 -
目安光熱費 -

兵庫県神戸市長田区御屋敷通1 周辺地図情報

地図
※地図上に表示される物件の位置は付近住所に所在することを表すものであり、実際の物件所在地とは異なる場合がございます。
   正確な物件所在地は、取扱い不動産会社にお問い合わせください。
物件を見たい、物件や住環境の詳しい情報やローン相談など、
お問い合わせ先
(株)プラン・ドゥ・シー元町店

不動産会社情報

お問い合わせ先 商号:(株)プラン・ドゥ・シー元町店
免許番号:国土交通大臣(2)第009550号
所在地:兵庫県神戸市中央区北長狭通3-3-1
TEL:0120-825013
取引態様:媒介
管理コード:70173
共有する
QRコード
物件を見たい、物件や住環境の詳しい情報やローン相談など、
お問い合わせ先
(株)プラン・ドゥ・シー元町店

神戸市長田区の暮らしデータ

人口などの統計情報

世帯数 734091世帯
人口総数 1500425人
転入者数 75773人
転入率(人口1000人当たり)
50.50人
転出者数 75052人
転出率(人口1000人当たり)
50.02人
土地平均価格
住宅地
196681円/m2
商業地
844842円/m2

結婚・育児の助成金

子育て関連の独自の取り組み (1)妊産婦タクシー利用券。(2)産後ケア事業(32ヶ所)。(3)多胎児家庭支援の充実(多胎児家庭ホームヘルプサービス等)。(4)多様な保育施設で待機児童3年連続ゼロ(保育送迎ステーション等)。(5)病児保育(22ヶ所)。(6)夜間、休日に年中無休で診療する「神戸こども初期急病センター」。(7)天候関係なく無料で遊べる場所の充実(こべっこランド、こども本の森神戸、児童館120ヶ所等)。(8)学童保育希望者全員受入れ。(9)インフルエンザ予防接種費の一部助成(12歳まで)。(10)市民が市内高校に通う通学定期代無料化。(11)子連れ利用可能な無料コワーキングスペース(無料の一時保育付)。(12)大人同伴の小学生以下の市バス・地下鉄の料金が無料。(13)住み替え補助(「住みかえーる」で検索)。
出産祝い あり
公立保育所数 56所(うち0歳児保育を実施している保育所:45所)
私立保育所数 70所(うち0歳児保育を実施している保育所:67所)
保育所入所待機児童数 0人
認定こども園数 191園 預かり保育実施園数 公立:28園 私立:37園
学校給食 【小学校】完全給食【中学校】完全給食 デリバリー形式[運搬:ランチボックス、内容:完全給食]、但し家庭弁当等の持参も可(2024年9月から順次全員喫食制へ移行)
公立中学校の学校選択制 一部実施(特定地域選択制)
子ども・学生等医療費助成<通院>対象年齢 18歳3月末まで 子ども・学生等医療費助成<入院>対象年齢 18歳3月末まで

神戸市長田区の治安・ごみ収集情報

公共料金・インフラ

ガス料金(22m3使用した場合の月額) 大阪瓦斯株式会社4544円
伊丹産業株式会社7185円
水道料金(口径20mmで20m3の月額) 神戸市2926円
下水道料金(20m3を使用した場合の月額) 神戸市1760円
下水道普及率 98.7%

安心・安全

建物火災出火件数 236件
人口10000人当たり
1.55件
刑法犯認知件数 12014件
人口1000人当たり
7.88件
ハザード・防災マップ あり

医療

一般病院総数 98ヶ所
一般診療所総数 1643ヶ所
小児科医師数 408人
小児人口10000人当たり
24.03人
産婦人科医師数 190人
15~49歳女性人口1万人当たり
6.47人
介護保険料基準額(月額) 6580円

ごみ

家庭ごみ収集(可燃ごみ) 無料
備考
指定ごみ袋は有料だが、袋代にごみ収集・処理料金等を含まず。
家庭ごみの分別方式 5分別〔缶・びん・ペットボトル 容器包装プラスチック 燃えないごみ カセットボンベ・スプレー缶 燃えるごみ〕 拠点回収:使用済小型家電 カセットボンベ・スプレー缶 水銀体温計・温度計・血圧計 蛍光管 乾電池・充電式電池・ボタン電池
家庭ごみの戸別収集 一部実施(【ひまわり収集】クリーンステーションまで、ごみを持ち出すことが困難な高齢者または障害者など一部の対象者に実施)
粗大ごみ収集 あり
備考
有料。戸別収集。事前申込制。申込みの後、大型ごみシール券を購入し貼付けて出すか、キャッシュレス決済を行う。申込みから1~2週間程度で収集。
生ごみ処理機助成金制度 なし
上限金額
-
上限比率
-

神戸市長田区の住まいの給付金

中古購入

利子補給制度 なし
補助/助成金制度 なし

増築・改築・改修

利子補給制度 なし
補助/助成金制度 あり
上限金額
(1)無料(2)127万円
備考
(1)【すまいの耐震診断員派遣事業】1981年5月31日以前に建築された住宅を対象に耐震診断員を無料で派遣し耐震診断を行う。(2)【神戸市住宅耐震化促進事業】1981年5月31日以前に建築された住宅が対象。耐震診断を受け上部構造評点1.0以上にされる方に改修設計費に上限27万円、改修工事費に上限100万円の耐震改修補助を行う(戸建住宅)。
暮らしデータ提供元:生活ガイド.com
※行政機関により公表していない地域及びデータがございます。東京23区以外の政令指定都市は、市全体のデータとして表示しています。
※提供データには細心の注意を払っておりますが、調査後に変更がある場合があります。 最新の情報につきましては各市区役所までお問い合わせいただくか、自治体HPなどをご確認ください。
OCN×ドコモ光新規お申込みで合計最大137,280円相当おトク!特典の内訳・適用条件など詳細はこちら

神戸市長田区内の各駅の住みやすさ

住宅ローンの返済額一覧

物件価格 3380万円に対して、年率 で、頭金 の場合
↓ボーナス 35年間 30年間 25年間 20年間 15年間 10年間
0万円 74,760円/月 86,166円/月 102,144円/月 126,124円/月 166,108円/月 246,099円/月
5万円 65,675円/月 77,190円/月 93,278円/月 117,366円/月 157,456円/月 237,554円/月
10万円 56,589円/月 68,215円/月 84,411円/月 108,607円/月 148,805円/月 229,009円/月
15万円 47,504円/月 59,239円/月 75,544円/月 99,848円/月 140,153円/月 220,464円/月
20万円 38,418円/月 50,263円/月 66,677円/月 91,090円/月 131,502円/月 211,919円/月
25万円 ローン不可 ローン不可 57,811円/月 82,331円/月 122,850円/月 203,374円/月
30万円 ローン不可 ローン不可 ローン不可 73,572円/月 114,199円/月 194,829円/月
支払い利息合計 2,613,690円~ 2,232,120円~ 1,856,400円~ 1,482,240円~ 1,108,770円~ 738,220円~
※元利均等返済方式で試算しています。 「円」の単位以下の端数金額は「切り捨て」として計算しております。
※金利は、固定金利として計算しております。
※上記の住宅ローン返済額一覧は、あくまで試算であり、将来の金利動向により、実際のご返済額とは異なります。
※ボーナス支払総額が総支払額の50%を超えている場合、上記の表では「ローン不可」となります。
※住宅ローン返済額一覧の数値は、住宅ローンのお申し込みやご融資をお約束するものではございません。
物件を見たい、物件や住環境の詳しい情報やローン相談など、
お問い合わせ先
(株)プラン・ドゥ・シー元町店

掲載情報の著作権は提供元企業等に帰属します。
Copyright:(C) 2025 Recruit Co., Ltd.
アプリで簡単 物件探し 大手不動産サイトの情報から一括検!プッシュ通知で物件を見逃さない
App Storeからダウンロード Google Playで手に入れよう QRコード