アプリで簡単 物件探し 通知 共有 アプリならではの機能を使ってみる
中古マンション

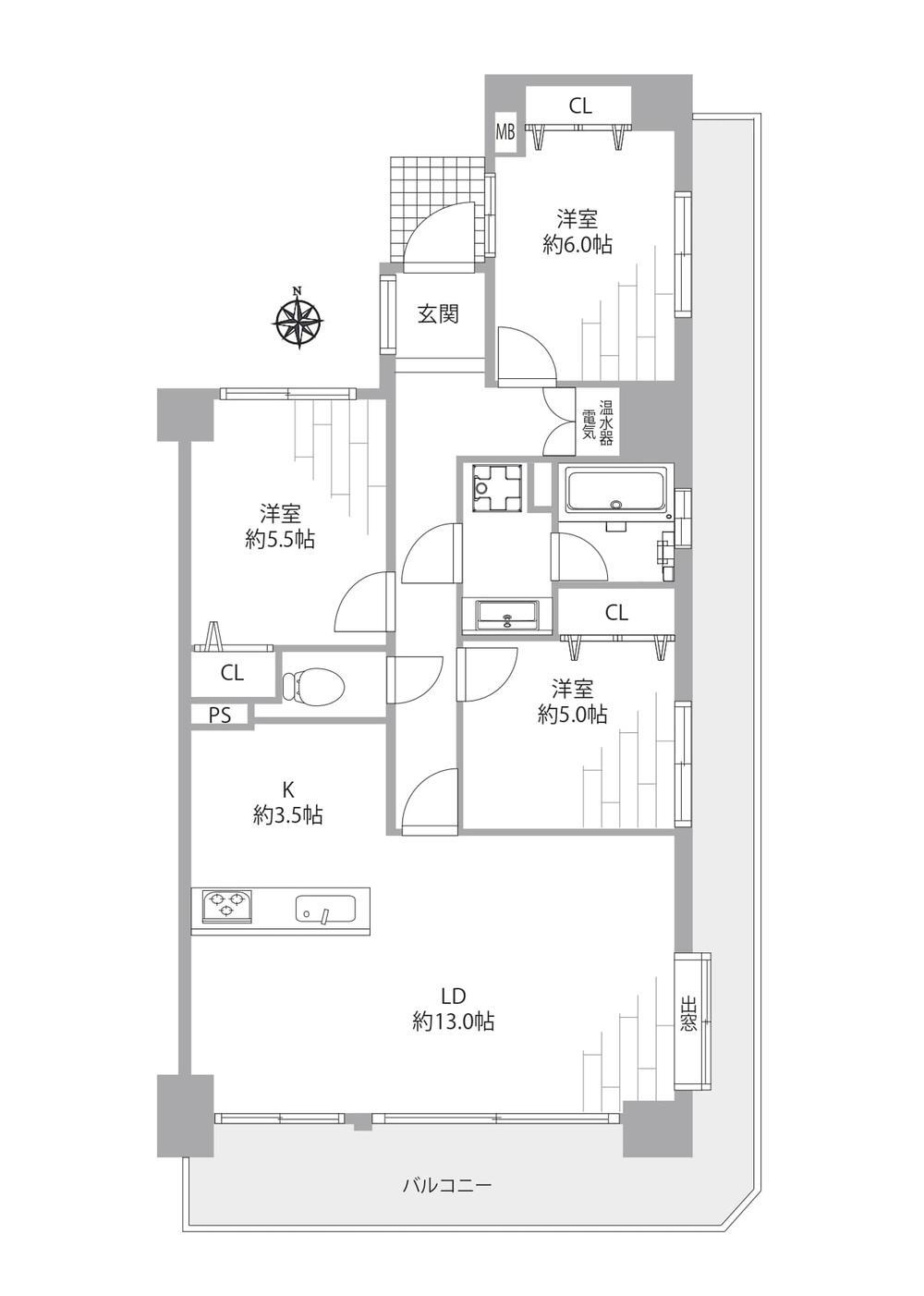
5分で生活が完結■充実の新羽駅前■賃貸需要も高く、ポテンシャルは未知数 4階 3LDK

情報提供元
SUUMO
5分で生活が完結■充実の新羽駅前■賃貸需要も高く、ポテンシャルは未知数 美しさの中に潜む、獰猛なまでのエネルギー◆風格をまとった外観があなたを支配する☆彡
価格 5180万円  (管理費等:1万8410円/月(委託(巡回)))
修繕積立金 28,260円
交通
所在地 神奈川県横浜市港北区新羽町周辺地図
間取り 3LDK 専有面積 85.65m2(壁芯)
所在階/階数 4階/7階建 方位
築年月 1990年6月 築年数 築35年5ヶ月
おすすめポイント
創業32年の実績。当社の「信頼」と「地域密着力」を併せ持つ強みをいかし高齢の方から若い方まで全てのお客さまが『いちばん相談しやすい不動産店』を目指しますカフェのようにリラックスして話していただけるカジュアルな雰囲気を大切に売買のご提案から、住みやすさの情報資産運用や相続の問題、さらに人生の夢をかなえるためのプランまでお一人お一人に分かりやすく不動産の相談が多様化するこの時代こそすべての相談が気軽に楽しくできるようになるべきだと私たちは考えますいちばん話しやすいいちばん分かりやすいいちばんワクワクする不動産ネットワークへCENTURY21マイホーム創業32年の実績
日当り良好・閑静な住宅街・角部屋・管理人巡回・24時間ゴミ出し可
お問い合わせ先
センチュリー21(株)マイホーム営業2課
物件を見たい、物件や住環境の詳しい情報やローン相談など、
お問い合わせ先
センチュリー21(株)マイホーム営業2課

詳細情報

価格 5180万円 管理費等 1万8410円/月(委託(巡回))
駐車場 空無 修繕積立金 28,260円
所在地 神奈川県横浜市港北区新羽町周辺地図
交通
物件名 5分で生活が完結■充実の新羽駅前■賃貸需要も高く、ポテンシャルは未知数
築年月(築年数) 1990年6月(築35年5ヶ月) 間取り 3LDK
総戸数 29戸 専有面積 85.65m2(壁芯)
所在階/階数 4階/7階建 バルコニー面積 25.48m2
方位 建物構造 RC
管理形態 委託管理
維持費等 CATVに係る費用/定額費用330円 土地権利 所有権
用途地域 準工業 借地期間・地代
現況 引渡可能年月 即時
情報提供元 SUUMO [030Z78671131] 情報公開日
情報更新日 次回更新予定日 随時

設備など

ペット相談可 - 即入居可 南向き
角部屋 駐車場空き有り - トランクルーム -
オートロック - 宅配ボックス 浴室乾燥機
床暖房 - ウォークインクローゼット - 管理人常駐 -
最上階 - 2階以上 タワーマンション -
設備 バルコニー・トイレ・収納スペース・洗面所・エレベーター・浴室乾燥機・シャンプードレッサ・温水洗浄便座・システムキッチン・モニタ付インターホン・風呂・対面K・浄水器・衣類乾燥機・食器洗浄乾燥機・リフォーム・バイク置き場・駐輪場・宅配BOX
リフォーム履歴 2025年10月完了予定
 水回り設備交換:キッチン・浴室・トイレ
 内装リフォーム:壁・床・全室
※年月は一番古いリフォーム箇所を表します
リノベーション履歴 -
備考 <物件名>5分で生活が完結■充実の新羽駅前■賃貸需要も高く、ポテンシャルは未知数■/<駐車場>空無/委託(巡回)/<土地権利>所有権/<間取り>3LDK/<リフォーム>●リフォーム:2025年10月完了予定(水回り設備交換:キッチン・浴室・トイレ、内装リフォーム:壁・床・全室)※年月は一番古いリフォーム箇所を表します/<特徴>5分圏内で生活が完結■充実の新羽駅前■賃貸需要も高く、ポテンシャルは未知数、2沿線以上利用可・リバーサイド・テニスコートが近い・スーパー 徒歩10分以内・市街地が近い
販売戸数:1戸/管理費等帯:18410円/修繕積立金帯:28260円
特記事項 日当り良好・閑静な住宅街・角部屋・管理人巡回・24時間ゴミ出し可

省エネ性能

エネルギー消費性能 -
断熱性能 -
目安光熱費 -

神奈川県横浜市港北区新羽町 周辺地図情報

地図
※地図上に表示される物件の位置は付近住所に所在することを表すものであり、実際の物件所在地とは異なる場合がございます。
   正確な物件所在地は、取扱い不動産会社にお問い合わせください。
物件を見たい、物件や住環境の詳しい情報やローン相談など、
お問い合わせ先
センチュリー21(株)マイホーム営業2課

不動産会社情報

お問い合わせ先 商号:センチュリー21(株)マイホーム営業2課
免許番号:神奈川県知事(7)第020560号
所在地:神奈川県横浜市西区北幸2-8-4 横浜西口KNビル1階
TEL:045-320-3522
取引態様:媒介
共有する
QRコード
物件を見たい、物件や住環境の詳しい情報やローン相談など、
お問い合わせ先
センチュリー21(株)マイホーム営業2課

横浜市港北区の暮らしデータ

人口などの統計情報

世帯数 1744208世帯
人口総数 3752969人
転入者数 217258人
転入率(人口1000人当たり)
57.89人
転出者数 201570人
転出率(人口1000人当たり)
53.71人
土地平均価格
住宅地
254434円/m2
商業地
1043863円/m2

結婚・育児の助成金

子育て関連の独自の取り組み 横浜市私立幼稚園等預かり保育事業(横浜市が定めた基準(実施日、時間、職員配置等)を満たし、横浜市の認定を受けた幼稚園・認定こども園が実施する事業。市内在住の園児の保護者が就労や病気等で、園の正規教育時間の前後に家庭で保育ができない場合に、利用可能。3歳児~5歳児は無料、満3歳児は(a)私学助成を受ける幼稚園の場合、月額9,000円、(b)新制度に移行した園の場合、0円~9,000円)。
出産祝い あり
公立保育所数 56所(うち0歳児保育を実施している保育所:41所)
私立保育所数 813所(うち0歳児保育を実施している保育所:716所)
保育所入所待機児童数 5人
認定こども園数 70園 預かり保育実施園数 公立:- 私立:213園
学校給食 【小学校】完全給食【中学校】家庭弁当等・業者弁当との選択制/デリバリー形式[運搬:ランチボックス、内容:完全給食]
公立中学校の学校選択制 一部実施(特定地域選択制[特別調整通学区域])
子ども・学生等医療費助成<通院>対象年齢 中学校卒業まで 子ども・学生等医療費助成<入院>対象年齢 中学校卒業まで

横浜市港北区の治安・ごみ収集情報

公共料金・インフラ

ガス料金(22m3使用した場合の月額) 東京瓦斯株式会社(東京地区等)3926円
水道料金(口径20mmで20m3の月額) 横浜市3017円
下水道料金(20m3を使用した場合の月額) 横浜市2035円
下水道普及率 100.0%

安心・安全

建物火災出火件数 438件
人口10000人当たり
1.16件
刑法犯認知件数 16059件
人口1000人当たり
4.25件
ハザード・防災マップ あり

医療

一般病院総数 113ヶ所
一般診療所総数 3201ヶ所
小児科医師数 682人
小児人口10000人当たり
15.98人
産婦人科医師数 346人
15~49歳女性人口1万人当たり
4.58人
介護保険料基準額(月額) 6620円

ごみ

家庭ごみ収集(可燃ごみ) 無料
備考
-
家庭ごみの分別方式 7分別9種〔燃やすごみ 燃えないごみ スプレー缶 乾電池 プラスチック製容器包装 缶・びん・ペットボトル(缶、びん、ペットボトル) 小さな金属類〕
家庭ごみの戸別収集 一部実施(【ふれあい収集】家庭ごみ・粗大ごみを集積場所まで持ち出すことができない高齢者や障害のある方などを対象にごみ出しの支援を実施。【狭あい道路収集】道路が狭く収集車が通行することができないため、集積場所が自宅近くに設けられない地域において、軽四輪車でごみを収集)
粗大ごみ収集 あり
備考
有料。事前申込制。自宅近くまでもしくは市内4ヶ所に設置されている自己搬入ヤードへ持ち込み。申し込みは電話、またはインターネット。
生ごみ処理機助成金制度 なし
上限金額
-
上限比率
-

横浜市港北区の住まいの給付金

中古購入

利子補給制度 なし
補助/助成金制度 なし

増築・改築・改修

利子補給制度 なし
補助/助成金制度 あり
上限金額
(1)全額(2)140万円
備考
(1)【木造住宅耐震診断士派遣事業】耐震診断士を派遣し、無料で耐震診断を実施。(2)【木造住宅耐震改修促進事業】補助限度額は、一般世帯100万円、非課税世帯140万円。上部構造評点が1.0未満と判定された住宅が対象。
暮らしデータ提供元:生活ガイド.com
※行政機関により公表していない地域及びデータがございます。東京23区以外の政令指定都市は、市全体のデータとして表示しています。
※提供データには細心の注意を払っておりますが、調査後に変更がある場合があります。 最新の情報につきましては各市区役所までお問い合わせいただくか、自治体HPなどをご確認ください。

この物件を見た人はこんな物件も見ています

OCN×ドコモ光新規お申込みで合計最大137,280円相当おトク!特典の内訳・適用条件など詳細はこちら

横浜市港北区内の各駅の住みやすさ

住宅ローンの返済額一覧

物件価格 5180万円に対して、年率 で、頭金 の場合
↓ボーナス 35年間 30年間 25年間 20年間 15年間 10年間
0万円 121,485円/月 140,020円/月 165,985円/月 204,953円/月 269,926円/月 399,912円/月
5万円 112,400円/月 131,045円/月 157,118円/月 196,194円/月 261,274円/月 391,367円/月
10万円 103,314円/月 122,069円/月 148,252円/月 187,435円/月 252,623円/月 382,822円/月
15万円 94,229円/月 113,093円/月 139,385円/月 178,677円/月 243,971円/月 374,277円/月
20万円 85,144円/月 104,117円/月 130,518円/月 169,918円/月 235,320円/月 365,731円/月
25万円 76,058円/月 95,142円/月 121,651円/月 161,159円/月 226,668円/月 357,186円/月
30万円 66,973円/月 86,166円/月 112,785円/月 152,400円/月 218,017円/月 348,641円/月
支払い利息合計 4,245,890円~ 3,625,920円~ 3,011,200円~ 2,400,960円~ 1,796,010円~ 1,195,660円~
※元利均等返済方式で試算しています。 「円」の単位以下の端数金額は「切り捨て」として計算しております。
※金利は、固定金利として計算しております。
※上記の住宅ローン返済額一覧は、あくまで試算であり、将来の金利動向により、実際のご返済額とは異なります。
※ボーナス支払総額が総支払額の50%を超えている場合、上記の表では「ローン不可」となります。
※住宅ローン返済額一覧の数値は、住宅ローンのお申し込みやご融資をお約束するものではございません。
物件を見たい、物件や住環境の詳しい情報やローン相談など、
お問い合わせ先
センチュリー21(株)マイホーム営業2課

掲載情報の著作権は提供元企業等に帰属します。
Copyright:(C) 2025 Recruit Co., Ltd.
アプリで簡単 物件探し 大手不動産サイトの情報から一括検!プッシュ通知で物件を見逃さない
App Storeからダウンロード Google Playで手に入れよう QRコード