アプリで簡単 物件探し 通知 共有 アプリならではの機能を使ってみる
中古マンション

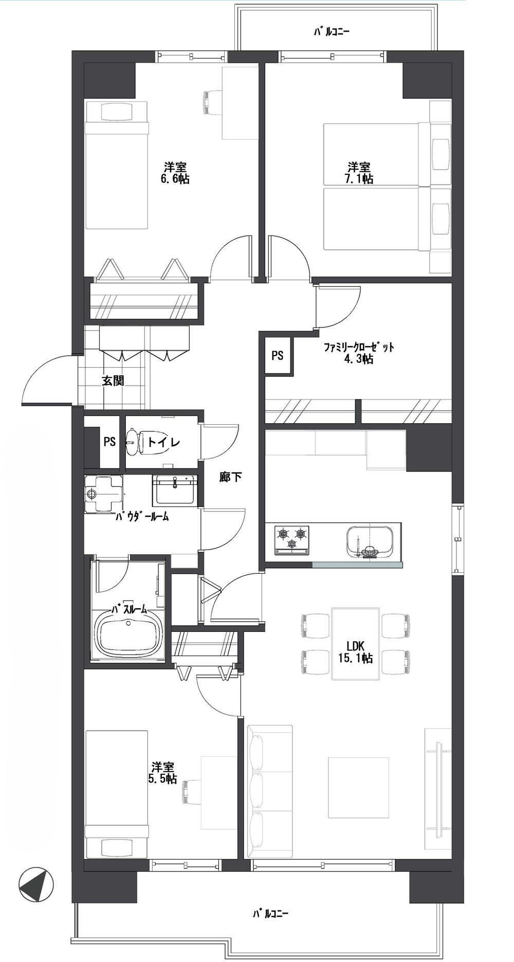
京成サンコーポ稲毛2号棟 4階 4階 3LDK

情報提供元
SUUMO
京成サンコーポ稲毛2号棟 4階 現地外観写真
価格 2280万円  (管理費等:7760円/月(委託(通勤)))
修繕積立金 9,280円
交通
所在地 千葉県千葉市稲毛区稲毛東6周辺地図
間取り 3LDK 専有面積 84.42m2(25.53坪)(壁芯)
所在階/階数 4階/14階建 方位 南東
築年月 1983年2月 築年数 築42年9ヶ月
おすすめポイント
◆「稲毛」駅徒歩14分、「京成稲毛」駅へも徒歩圏内◆周辺には稲毛東公園や稲毛病院、スーパーやコンビニなどの生活施設が充実◆子育て世帯にも適した環境管理体制が良好◆植栽も丁寧に手入れされて、落ち着いた住環境◆採光・通風良好◆敷地内には200台分の駐車場や450台分の駐輪場が完備◆おうち時間もおでかけも、家族みんなの暮らしをやさしく支える住戸です。
日当り良好・閑静な住宅街・管理人日勤
お問い合わせ先
センチュリー21あさひアーバン(株)
物件を見たい、物件や住環境の詳しい情報やローン相談など、
お問い合わせ先
センチュリー21あさひアーバン(株)

詳細情報

価格 2280万円 管理費等 7760円/月(委託(通勤))
駐車場 敷地内(8000円/月) 修繕積立金 9,280円
所在地 千葉県千葉市稲毛区稲毛東6周辺地図
交通
物件名 京成サンコーポ稲毛2号棟 4階
築年月(築年数) 1983年2月(築42年9ヶ月) 間取り 3LDK
総戸数 346戸 専有面積 84.42m2(25.53坪)(壁芯)
所在階/階数 4階/14階建 バルコニー面積 10.77m2
方位 南東 建物構造 SRC
管理形態 委託管理
維持費等 土地権利 所有権
用途地域 1種住居 借地期間・地代
現況 引渡可能年月 相談
情報提供元 SUUMO [030Z78593395] 情報公開日
情報更新日 次回更新予定日 随時

設備など

ペット相談可 - 即入居可 - 南向き -
角部屋 - 駐車場空き有り トランクルーム -
オートロック - 宅配ボックス - 浴室乾燥機
床暖房 - ウォークインクローゼット 管理人常駐 -
最上階 - 2階以上 タワーマンション -
設備 トイレ・洗面所・エレベーター・管理人日勤・浴室乾燥機・ウォークインクローゼット・シャンプードレッサ・温水洗浄便座・システムキッチン・モニタ付インターホン・風呂・対面K・IHクッキングヒータ・衣類乾燥機・リフォーム・バイク置き場・駐輪場・リノベーション
リフォーム履歴 2025年4月完了
 水回り設備交換:キッチン・浴室・トイレ
 内装リフォーム:壁・床
※年月は一番古いリフォーム箇所を表します
リノベーション履歴 -
備考 <物件名>京成サンコーポ稲毛2号棟 4階/<駐車場>敷地内/委託(日勤)/<土地権利>所有権/<間取り>3LDK/<リフォーム>●リフォーム:2025年4月完了(水回り設備交換:キッチン・浴室・トイレ、内装リフォーム:壁・床)※年月は一番古いリフォーム箇所を表します/<特徴>◆公園も病院もスーパーも徒歩圏内◆駅までも歩けて通勤・通学にも便利な立地、スーパー 徒歩10分以内・内装リフォーム・システムキッチン・浴室乾燥機・陽当り良好
販売戸数:1戸/管理費等帯:7760円/修繕積立金帯:9280円
特記事項 日当り良好・閑静な住宅街・管理人日勤

省エネ性能

エネルギー消費性能 -
断熱性能 -
目安光熱費 -

千葉県千葉市稲毛区稲毛東6 周辺地図情報

地図
※地図上に表示される物件の位置は付近住所に所在することを表すものであり、実際の物件所在地とは異なる場合がございます。
   正確な物件所在地は、取扱い不動産会社にお問い合わせください。
物件を見たい、物件や住環境の詳しい情報やローン相談など、
お問い合わせ先
センチュリー21あさひアーバン(株)

不動産会社情報

お問い合わせ先 商号:センチュリー21あさひアーバン(株)
免許番号:千葉県知事(1)第018060号
所在地:千葉県千葉市中央区新千葉2-4-12 コーメービル1階
TEL:043-306-6870
取引態様:媒介
管理コード:192801-334
共有する
QRコード
物件を見たい、物件や住環境の詳しい情報やローン相談など、
お問い合わせ先
センチュリー21あさひアーバン(株)

千葉市稲毛区の暮らしデータ

人口などの統計情報

世帯数 445814世帯
人口総数 978899人
転入者数 58210人
転入率(人口1000人当たり)
59.46人
転出者数 50072人
転出率(人口1000人当たり)
51.15人
土地平均価格
住宅地
121580円/m2
商業地
397034円/m2

結婚・育児の助成金

子育て関連の独自の取り組み (1)5年連続待機児童ゼロ。(2)政令市で2番目の産後ケア利用件数(2021年度政令指定都市主管課長会議)。(3)放課後児童クラブと放課後子ども教室を一体的に運営するアフタースクール。(4)小中学生に「ふれあいパスポート」(対象施設を無料・割引で利用可能)を配布。(5)ステップルームティーチャーの配置等6つの取組み(不登校対策パッケージ)。(6)保育園での医療的ケア児の受入。(7)3歳未満児在宅保育支援給付。(8)公立保育所における休日保育。(9)施設利用選考基準における多胎児への加点。(10)子育て支援コンシェルジュ。(11)エンゼルヘルパー。(12)男性の育児休業取得促進奨励金。(13)こども誰でも通園制度の試行。
出産祝い あり
公立保育所数 52所(うち0歳児保育を実施している保育所:51所)
私立保育所数 175所(うち0歳児保育を実施している保育所:175所)
保育所入所待機児童数 0人
認定こども園数 46園 預かり保育実施園数 公立:- 私立:53園
学校給食 【小学校】完全給食【中学校】完全給食
公立中学校の学校選択制 未実施
子ども・学生等医療費助成<通院>対象年齢 18歳3月末まで 子ども・学生等医療費助成<入院>対象年齢 18歳3月末まで

千葉市稲毛区の治安・ごみ収集情報

公共料金・インフラ

ガス料金(22m3使用した場合の月額) 東京瓦斯株式会社(東京地区等)3926円
大多喜ガス株式会社(内房地区12A地区)4180円
大多喜ガス株式会社(内房地区13A地区)4105円
習志野市3432円
水道料金(口径20mmで20m3の月額) 千葉市3250円
千葉県営水道3250円
四街道市2640円
下水道料金(20m3を使用した場合の月額) 千葉市2140円
下水道普及率 97.5%

安心・安全

建物火災出火件数 145件
人口10000人当たり
1.49件
刑法犯認知件数 7010件
人口1000人当たり
7.19件
ハザード・防災マップ あり

医療

一般病院総数 42ヶ所
一般診療所総数 717ヶ所
小児科医師数 229人
小児人口10000人当たり
21.09人
産婦人科医師数 100人
15~49歳女性人口1万人当たり
5.17人
介護保険料基準額(月額) 6300円

ごみ

家庭ごみ収集(可燃ごみ) 有料
備考
指定ごみ袋有料。家庭ごみ処理手数料として1リットルあたり0.8円にて販売。
家庭ごみの分別方式 4分別20種〔可燃ごみ 不燃ごみ 資源物(びん[無色、茶色、その他]、缶、ペットボトル、木の枝、刈り草・葉、新聞、雑誌、段ボール、紙パック、雑がみ、布類) 有害ごみ(乾電池、蛍光灯、水銀入り体温計・血圧計、カセット式ガスボンベ・スプレー缶、使い捨てガスライター)〕
家庭ごみの戸別収集 未実施
粗大ごみ収集 あり
備考
有料。事前申込制。受付センターへ申込み。
生ごみ処理機助成金制度 あり
上限金額
35000円
上限比率
50.0%

千葉市稲毛区の住まいの給付金

中古購入

利子補給制度 なし
補助/助成金制度 あり
上限金額
50万円
備考
【千葉市三世代同居・近居支援事業】要件は、(a)今後、親、子、孫を基本とする三世代の家族が同居または近隣(1km以内)に居住。(b)親が65歳以上で1年以上千葉市に居住。(c)孫が18歳未満。(d)同居または近隣の状態が今後3年以上継続する見込み。助成内容は、住宅購入費用+引越費用の合計額と助成限度額50万円を比較して低い額。

増築・改築・改修

利子補給制度 なし
補助/助成金制度 あり
上限金額
(1)9.6万円(2)100万円(3)20万円(4)100万円
備考
(1)【耐震診断費】1981年5月31日以前に建築された木造住宅。上限額9.6万円。(2)【耐震改修費】2000年5月31日以前に建築された木造住宅。工事、上限100万円。工事を二段階に分ける場合、1981年5月31日以前に建築された木造住宅。段階ごとに上限50万円。(3)【耐震シェルター設置費】1981年5月31日以前に建築された木造住宅。上限20万円。(4)【千葉市三世代同居・近居支援事業】今後、親、子、孫を基本とする三世代の家族が同居または近隣(1km以内)に居住する目的で、増築を行う際に助成。増築費用+引越費用の合計額と助成限度額50万円を比較して低い額(市内業者と契約して施工等を行った場合、限度額100万円)。他要件あり。
暮らしデータ提供元:生活ガイド.com
※行政機関により公表していない地域及びデータがございます。東京23区以外の政令指定都市は、市全体のデータとして表示しています。
※提供データには細心の注意を払っておりますが、調査後に変更がある場合があります。 最新の情報につきましては各市区役所までお問い合わせいただくか、自治体HPなどをご確認ください。

この物件を見た人はこんな物件も見ています

OCN×ドコモ光新規お申込みで合計最大137,280円相当おトク!特典の内訳・適用条件など詳細はこちら

千葉市稲毛区内の各駅の住みやすさ

住宅ローンの返済額一覧

物件価格 2280万円に対して、年率 で、頭金 の場合
↓ボーナス 35年間 30年間 25年間 20年間 15年間 10年間
0万円 46,206円/月 53,255円/月 63,131円/月 77,952円/月 102,664円/月 152,103円/月
5万円 37,120円/月 44,280円/月 54,264円/月 69,193円/月 94,012円/月 143,558円/月
10万円 28,035円/月 35,304円/月 45,397円/月 60,434円/月 85,361円/月 135,013円/月
15万円 ローン不可 ローン不可 36,531円/月 51,676円/月 76,709円/月 126,468円/月
20万円 ローン不可 ローン不可 ローン不可 42,917円/月 68,058円/月 117,922円/月
25万円 ローン不可 ローン不可 ローン不可 ローン不可 59,406円/月 109,377円/月
30万円 ローン不可 ローン不可 ローン不可 ローン不可 ローン不可 100,832円/月
支払い利息合計 1,613,730円~ 1,378,160円~ 1,147,150円~ 916,720円~ 687,200円~ 458,580円~
※元利均等返済方式で試算しています。 「円」の単位以下の端数金額は「切り捨て」として計算しております。
※金利は、固定金利として計算しております。
※上記の住宅ローン返済額一覧は、あくまで試算であり、将来の金利動向により、実際のご返済額とは異なります。
※ボーナス支払総額が総支払額の50%を超えている場合、上記の表では「ローン不可」となります。
※住宅ローン返済額一覧の数値は、住宅ローンのお申し込みやご融資をお約束するものではございません。
物件を見たい、物件や住環境の詳しい情報やローン相談など、
お問い合わせ先
センチュリー21あさひアーバン(株)

掲載情報の著作権は提供元企業等に帰属します。
Copyright:(C) 2025 Recruit Co., Ltd.
アプリで簡単 物件探し 大手不動産サイトの情報から一括検!プッシュ通知で物件を見逃さない
App Storeからダウンロード Google Playで手に入れよう QRコード