アプリで簡単 物件探し 通知 共有 アプリならではの機能を使ってみる
中古住宅

京都府宇治市神明 新田駅 中古一戸建て・中古住宅

情報提供元
LIFULL HOME'S
京都府宇治市神明 新田駅 中古一戸建て・中古住宅
価格 2580万円
交通
所在地 京都府宇治市神明周辺地図
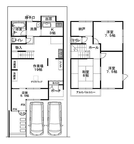
間取り 3K
建物面積 112.21m2 土地面積 115.96m2
築年月 1997年12月 築年数 築28年
物件を見たい、物件や住環境の詳しい情報やローン相談など、
お問い合わせ先
株式会社O-HOME

詳細情報

価格 2580万円
所在地 京都府宇治市神明周辺地図
交通
間取り 3K(和 8 洋 7.5×2 K 3) 築年月(築年数) 1997年12月(築28年)
建物面積 112.21m2 建物構造・規模 木造2階建
土地面積 115.96m2 土地権利 所有権
私道面積 借地期間・地代
接道状況 南6m公道 一方道路
セットバック 駐車場
用途地域 1種低層 都市計画 市街化区域
建ぺい率/容積率 60%/100% 現況 居住中
地目 宅地 引渡可能時期 相談
情報提供元 LIFULL HOME'S [1529850000019] 情報公開日
情報更新日 次回更新予定日 2025年11月14日

設備など

1種低層地域 即入居可 - 売主・代理 -
駐車2台以上 - 平屋 - 本下水 -
都市ガス - カウンターキッチン - 床暖房 -
ウォークインクローゼット - バリアフリー -
設備 浄化槽・ガスコンロ可・コンロ2口以上・システムキッチン・給湯・室内洗濯機置き場・フローリング・温水洗浄便座・洗面所独立
リフォーム履歴 -
リノベーション履歴 -
備考 【物件周辺の生活情報】
・学校
宇治市立大開小学校(660m)、宇治市立広野中学校(780m)
・買い物
スーパー(1,130m)、コンビニ(450m)、ドラッグストア(690m)
・その他施設
公園(160m)、銀行(340m)
約19帖の作業スペースがある店舗付き住宅です店舗として物販できる5.5帖のスペースもあります!住居部分のキッチンスペースもあるので住居スペースと分離可能2階には間取り広々な洋室2部屋と和室あり!目の前が桜並木、すぐ近くに公園がありとってもいい立地です!カフェ・ベーカリーなどいかがでしょうかH23年に店舗仕様に改装済現状お使いの設備も条件により譲渡相談できます是非現地内覧いかがでしょうかお問い合わせはこちら↓↓京都府宇治市神明宮北16-26株式会社O-HOME0774-28-5788 【間取り備考】1階に作業スペース19帖と店舗5.5帖/南
特記事項

省エネ性能

エネルギー消費性能 -
断熱性能 -
目安光熱費 -

京都府宇治市神明 周辺地図情報

地図
※地図上に表示される物件の位置は付近住所に所在することを表すものであり、実際の物件所在地とは異なる場合がございます。
   正確な物件所在地は、取扱い不動産会社にお問い合わせください。
物件を見たい、物件や住環境の詳しい情報やローン相談など、
お問い合わせ先
株式会社O-HOME

不動産会社情報

お問い合わせ先 商号:株式会社O-HOME
免許番号:京都府知事(04)第012275号
所在地:京都府宇治市神明宮北16番地の26
取引態様:専属専任媒介
管理コード:19
所属協会など:(公社)近畿地区不動産公正取引協議会、(公社)全日本不動産協会京都府本部
共有する
QRコード

お電話でのお問い合わせ

電話をかける(携帯・PHS可)
お問い合わせダイヤル
通話無料0037-619-98646
営業時間 09:00~19:00 (定休日:毎週水曜日 他不定休)
音声案内に従って数字を入力
お問い合わせ番号
85948-2970
不動産会社につながります
不動産会社のスタッフと
直接電話で話せます。
※不動産会社がお電話に出られなかった場合、株式会社LIFULLは電話会社が提供するサービスを介してお客様の発信者番号を受領後、折り返し専用の電話番号を発番してお問合せの不動産会社に通知します(お客様の発信者番号がお問合せの不動産会社に通知されることはございません)
※光IP電話、及びIP電話からはご利用になれません
※0037で始まる電話番号に携帯電話からお問合せいただいた方には、ショートメッセージ(SMS)によるお問合せ完了通知をお届けする場合があります
物件を見たい、物件や住環境の詳しい情報やローン相談など、
お問い合わせ先
株式会社O-HOME

宇治市の暮らしデータ

人口などの統計情報

世帯数 73443世帯
人口総数 180943人
転入者数 6394人
転入率(人口1000人当たり)
35.34人
転出者数 6409人
転出率(人口1000人当たり)
35.42人
土地平均価格
住宅地
116144円/m2
商業地
241667円/m2

結婚・育児の助成金

子育て関連の独自の取り組み (1)市役所1階に「来庁者子育て支援コーナー」の設置(子どもと一緒に来庁した市民のために保育士による子どもの一時預かりや保育士や専門相談員による子育ての相談及び支援事業の紹介等を実施)。(2)毎年度作成の「宇治子育て情報誌」を未就学児のいる全家庭に郵送等で配布。電子書籍版を作成しスマートフォン等から手軽に閲覧可能。(3)主に未就学児を対象とした子育て世帯へLINE(ライン)による情報発信の充実。
出産祝い なし
公立保育所数 7所(うち0歳児保育を実施している保育所:7所)
私立保育所数 5所(うち0歳児保育を実施している保育所:5所)
保育所入所待機児童数 0人
認定こども園数 14園 預かり保育実施園数 公立:3園 私立:9園
学校給食 【小学校】完全給食【中学校】給食なし
公立中学校の学校選択制 未実施
子ども・学生等医療費助成<通院>対象年齢 中学校卒業まで 子ども・学生等医療費助成<入院>対象年齢 中学校卒業まで

宇治市の治安・ごみ収集情報

公共料金・インフラ

ガス料金(22m3使用した場合の月額) 大阪瓦斯株式会社4544円
水道料金(口径20mmで20m3の月額) 宇治市3412円
下水道料金(20m3を使用した場合の月額) 宇治市3082円
下水道普及率 98.4%

安心・安全

建物火災出火件数 20件
人口10000人当たり
1.11件
刑法犯認知件数 573件
人口1000人当たり
3.19件
ハザード・防災マップ あり

医療

一般病院総数 9ヶ所
一般診療所総数 134ヶ所
小児科医師数 33人
小児人口10000人当たり
16.06人
産婦人科医師数 11人
15~49歳女性人口1万人当たり
3.29人
介護保険料基準額(月額) 5900円

ごみ

家庭ごみ収集(可燃ごみ) 無料
備考
一時多量ごみ(引越し時に発生したごみ等)は有料。100リットルごとに250円。
家庭ごみの分別方式 10分別13種〔もえるごみ もえないごみ 乾電池 スプレー缶・ボンベ缶 ライター 缶 びん ペットボトル プラマーク 古紙類(新聞・チラシ、雑誌・その他紙、ダンボール、古布)〕 拠点回収:紙パック てんぷら油 ペットボトルキャップ 蛍光管 小型家電 インクカートリッジ その他紙
家庭ごみの戸別収集 一部実施(高齢者・身体障害者・産後ケア対象者の一部を対象に実施)
粗大ごみ収集 あり
備考
有料。戸別収集。事前申込制。一時多量ごみ・大型ごみ等が対象。
生ごみ処理機助成金制度 なし
上限金額
-
上限比率
-

宇治市の住まいの給付金

中古購入

利子補給制度 なし
補助/助成金制度 なし

増築・改築・改修

利子補給制度 なし
補助/助成金制度 あり
上限金額
137.5万円
備考
【宇治市木造住宅耐震改修等事業】1981年5月31日以前に着工した木造住宅が対象。耐震改修Aは耐震診断結果1.0未満が1.0以上となる工事の経費11/12(上限137.5万円)を補助。耐震改修Bは耐震診断結果1.0未満が0.7以上に向上する工事の経費4/5(上限100万円)を補助。簡易改修は耐震診断結果1.0未満の建物の耐震性が確実に向上する簡易な工事の経費4/5(上限40万円)。罹災証明を受けた一部損壊以上の木造住宅も対象。耐震シェルターは設置に要した経費の3/4(上限30万円)を補助。他要件あり。
暮らしデータ提供元:生活ガイド.com
※行政機関により公表していない地域及びデータがございます。東京23区以外の政令指定都市は、市全体のデータとして表示しています。
※提供データには細心の注意を払っておりますが、調査後に変更がある場合があります。 最新の情報につきましては各市区役所までお問い合わせいただくか、自治体HPなどをご確認ください。

この物件を見た人はこんな物件も見ています

OCN×ドコモ光新規お申込みで合計最大137,280円相当おトク!特典の内訳・適用条件など詳細はこちら

宇治市内の各駅の住みやすさ

住宅ローンの返済額一覧

物件価格 2580万円に対して、年率 で、頭金 の場合
↓ボーナス 35年間 30年間 25年間 20年間 15年間 10年間
0万円 53,993円/月 62,231円/月 73,771円/月 91,090円/月 119,967円/月 177,738円/月
5万円 44,908円/月 53,255円/月 64,904円/月 82,331円/月 111,315円/月 169,193円/月
10万円 35,822円/月 44,280円/月 56,037円/月 73,572円/月 102,664円/月 160,648円/月
15万円 ローン不可 35,304円/月 47,171円/月 64,814円/月 94,012円/月 152,103円/月
20万円 ローン不可 ローン不可 38,304円/月 56,055円/月 85,361円/月 143,558円/月
25万円 ローン不可 ローン不可 ローン不可 47,296円/月 76,709円/月 135,013円/月
30万円 ローン不可 ローン不可 ローン不可 ローン不可 68,058円/月 126,468円/月
支払い利息合計 1,884,270円~ 1,612,520円~ 1,341,650円~ 1,071,840円~ 803,390円~ 534,900円~
※元利均等返済方式で試算しています。 「円」の単位以下の端数金額は「切り捨て」として計算しております。
※金利は、固定金利として計算しております。
※上記の住宅ローン返済額一覧は、あくまで試算であり、将来の金利動向により、実際のご返済額とは異なります。
※ボーナス支払総額が総支払額の50%を超えている場合、上記の表では「ローン不可」となります。
※住宅ローン返済額一覧の数値は、住宅ローンのお申し込みやご融資をお約束するものではございません。
物件を見たい、物件や住環境の詳しい情報やローン相談など、
お問い合わせ先
株式会社O-HOME

掲載情報の著作権は提供元企業等に帰属します。
Copyright:(C) 2025 LIFULL Co.,Ltd.
アプリで簡単 物件探し 大手不動産サイトの情報から一括検!プッシュ通知で物件を見逃さない
App Storeからダウンロード Google Playで手に入れよう QRコード