アプリで簡単 物件探し 通知 共有 アプリならではの機能を使ってみる
中古住宅

東京都東村山市青葉町2丁目 東村山駅 中古一戸建て・中古住宅

情報提供元
LIFULL HOME'S
東京都東村山市青葉町2丁目 東村山駅 中古一戸建て・中古住宅
価格 6980万円
交通
所在地 東京都東村山市青葉町2丁目周辺地図
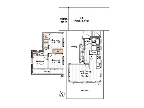
間取り 6LDK
建物面積 142.01m2 土地面積 143.48m2
築年月 2020年3月 築年数 築5年8ヶ月
おすすめポイント
駐車場2台分・バリアフリー・オール電化
物件を見たい、物件や住環境の詳しい情報やローン相談など、
お問い合わせ先
ME不動産西東京株式会社

詳細情報

価格 6980万円
所在地 東京都東村山市青葉町2丁目周辺地図
交通
間取り 6LDK 築年月(築年数) 2020年3月(築5年8ヶ月)
建物面積 142.01m2 建物構造・規模 木造2階建
土地面積 143.48m2 土地権利 所有権
私道面積 借地期間・地代
接道状況 北西6.6m私道 一方道路
セットバック 駐車場 空有 (2台) 無料
用途地域 1種中高 都市計画 市街化区域
建ぺい率/容積率 60%/200% 現況 居住中
地目 宅地 引渡可能時期 相談
情報提供元 LIFULL HOME'S [1471030008123] 情報公開日
情報更新日 次回更新予定日 2025年11月10日

設備など

1種低層地域 - 即入居可 - 売主・代理 -
駐車2台以上 平屋 - 本下水
都市ガス - カウンターキッチン - 床暖房 -
ウォークインクローゼット バリアフリー
設備 上水道・本下水・バス・トイレ別・IHクッキングヒータ・システムキッチン・給湯・追焚機能・床下収納・ウォークインクローゼット・室内洗濯機置き場・バルコニー・フローリング・温水洗浄便座・浴室乾燥機・食器洗浄乾燥機・クローゼット・シューズボックス・オートバス
リフォーム履歴 -
リノベーション履歴 -
備考 【物件周辺の生活情報】
・学校
東村山市立青葉小学校(300m)、東村山市立第五中学校(650m)
・買い物
スーパー(500m)
  【設備・特記事項備考】専用バス・専用トイレ・全居室収納
国土法届出:不要
法令等制限:準防火地域 第2種高度地区
特記事項 駐車場2台分・バリアフリー・オール電化

省エネ性能

エネルギー消費性能 -
断熱性能 -
目安光熱費 -

東京都東村山市青葉町2丁目 周辺地図情報

地図
※地図上に表示される物件の位置は付近住所に所在することを表すものであり、実際の物件所在地とは異なる場合がございます。
   正確な物件所在地は、取扱い不動産会社にお問い合わせください。
物件を見たい、物件や住環境の詳しい情報やローン相談など、
お問い合わせ先
ME不動産西東京株式会社

不動産会社情報

お問い合わせ先 商号:ME不動産西東京株式会社
免許番号:東京都知事(01)第107558号
所在地:東京都西東京市田無町5丁目1-1 田無北口ビル
取引態様:一般媒介
管理コード:8123
所属協会など:(公社)首都圏不動産公正取引協議会、(公社)全日本不動産協会東京都本部
共有する
QRコード

お電話でのお問い合わせ

電話をかける(携帯・PHS可)
お問い合わせダイヤル
通話無料0037-634-95774
営業時間 09:00~18:30
音声案内に従って数字を入力
お問い合わせ番号
73864-2977
不動産会社につながります
不動産会社のスタッフと
直接電話で話せます。
※不動産会社がお電話に出られなかった場合、株式会社LIFULLは電話会社が提供するサービスを介してお客様の発信者番号を受領後、折り返し専用の電話番号を発番してお問合せの不動産会社に通知します(お客様の発信者番号がお問合せの不動産会社に通知されることはございません)
※光IP電話、及びIP電話からはご利用になれません
※0037で始まる電話番号に携帯電話からお問合せいただいた方には、ショートメッセージ(SMS)によるお問合せ完了通知をお届けする場合があります
物件を見たい、物件や住環境の詳しい情報やローン相談など、
お問い合わせ先
ME不動産西東京株式会社

東村山市の暮らしデータ

人口などの統計情報

世帯数 68340世帯
人口総数 151751人
転入者数 7229人
転入率(人口1000人当たり)
47.64人
転出者数 6243人
転出率(人口1000人当たり)
41.14人
土地平均価格
住宅地
200417円/m2
商業地
375333円/m2

結婚・育児の助成金

子育て関連の独自の取り組み (1)子ども・子育て支援のためのポータルサイト「たのしむらやまポータル」を開設(利用者一人ひとりにパーソナライズされた情報をプッシュ型で提供するサービスや、予約申請サービス、オンライン相談サービス、動画配信サービス等を一体的に提供する事業)(2)指定管理者制度の活用により民間事業者等と行政が協働して運営を行う「子育て総合支援センター(ころころの森)」事業。(3)地域担当保育士が、6ヶ月~未就学のお子さんがいる家庭を訪問し、子育ての相談等を行う「すくすく訪問」事業。
出産祝い あり
公立保育所数 5所(うち0歳児保育を実施している保育所:5所)
私立保育所数 16所(うち0歳児保育を実施している保育所:16所)
保育所入所待機児童数 18人
認定こども園数 4園 預かり保育実施園数 公立:- 私立:8園
学校給食 【小学校】完全給食【中学校】家庭弁当等との選択制/デリバリー形式[運搬:ランチボックス、内容:完全給食]
公立中学校の学校選択制 一部実施
子ども・学生等医療費助成<通院>対象年齢 18歳3月末まで 子ども・学生等医療費助成<入院>対象年齢 18歳3月末まで

東村山市の治安・ごみ収集情報

公共料金・インフラ

ガス料金(22m3使用した場合の月額) 東京瓦斯株式会社(東京地区等)3926円
水道料金(口径20mmで20m3の月額) 東京都水道局2816円
下水道料金(20m3を使用した場合の月額) 東村山市1936円
下水道普及率 100.0%

安心・安全

建物火災出火件数 15件
人口10000人当たり
0.99件
刑法犯認知件数 832件
人口1000人当たり
5.48件
ハザード・防災マップ あり

医療

一般病院総数 9ヶ所
一般診療所総数 92ヶ所
小児科医師数 38人
小児人口10000人当たり
21.97人
産婦人科医師数 3人
15~49歳女性人口1万人当たり
1.03人
介護保険料基準額(月額) 6200円

ごみ

家庭ごみ収集(可燃ごみ) 有料
備考
指定収集袋。びん・かん、有害物、紙おむつ、古着、剪定枝(直径5cm以下・長さ60cm以下)は、透明・半透明の袋に入れて出せば無料。新聞、古着はひもで縛って出せば無料。
家庭ごみの分別方式 7分別12種〔可燃ごみ 不燃ごみ 容器包装プラスチック 資源ごみ(カン・ビン、ペットボトル) 古紙(新聞紙、段ボール、雑誌・書籍、紙パック、雑紙) 古着 有害ごみ〕 拠点回収:使用済小型家電 インクカートリッジ
家庭ごみの戸別収集 実施
粗大ごみ収集 あり
備考
有料。事前申込制。申込先は「粗大ごみ・動物回収受付センター」[委託先]。収集運搬は、委託業者による。
生ごみ処理機助成金制度 なし
上限金額
-
上限比率
-

東村山市の住まいの給付金

中古購入

利子補給制度 なし
補助/助成金制度 なし

増築・改築・改修

利子補給制度 なし
補助/助成金制度 あり
上限金額
(1)(デジタル地域ポイント)10万円(2)10万円(3)100万円
備考
(1)【住宅修改築費補助制度】消費税を除く契約金額の5%、最高10万円分のデジタル地域ポイントを付与。建て替えによる新築も対象となる。(2)【木造住宅耐震診断費の助成】要件を満たす木造住宅の耐震診断費用の一部を助成。診断費用の2/3に相当する額、10万円を限度。(3)【木造住宅耐震改修費等の助成】要件を満たす木造住宅の耐震改修等費用の一部を助成。耐震改修の場合、改修費用の1/2に相当する額、100万円を限度。除却の場合、除却費用の1/3に相当する額、30万円を限度。
暮らしデータ提供元:生活ガイド.com
※行政機関により公表していない地域及びデータがございます。東京23区以外の政令指定都市は、市全体のデータとして表示しています。
※提供データには細心の注意を払っておりますが、調査後に変更がある場合があります。 最新の情報につきましては各市区役所までお問い合わせいただくか、自治体HPなどをご確認ください。

この物件を見た人はこんな物件も見ています

OCN×ドコモ光新規お申込みで合計最大137,280円相当おトク!特典の内訳・適用条件など詳細はこちら

東村山市内の各駅の住みやすさ

住宅ローンの返済額一覧

物件価格 6980万円に対して、年率 で、頭金 の場合
↓ボーナス 35年間 30年間 25年間 20年間 15年間 10年間
0万円 168,211円/月 193,874円/月 229,826円/月 283,781円/月 373,743円/月 553,724円/月
5万円 159,125円/月 184,899円/月 220,959円/月 275,022円/月 365,092円/月 545,179円/月
10万円 150,040円/月 175,923円/月 212,092円/月 266,263円/月 356,440円/月 536,634円/月
15万円 140,954円/月 166,947円/月 203,225円/月 257,505円/月 347,789円/月 528,089円/月
20万円 131,869円/月 157,972円/月 194,359円/月 248,746円/月 339,137円/月 519,544円/月
25万円 122,783円/月 148,996円/月 185,492円/月 239,987円/月 330,486円/月 510,999円/月
30万円 113,698円/月 140,020円/月 176,625円/月 231,229円/月 321,834円/月 502,454円/月
支払い利息合計 5,870,390円~ 5,013,360円~ 4,163,200円~ 3,319,920円~ 2,483,070円~ 1,653,220円~
※元利均等返済方式で試算しています。 「円」の単位以下の端数金額は「切り捨て」として計算しております。
※金利は、固定金利として計算しております。
※上記の住宅ローン返済額一覧は、あくまで試算であり、将来の金利動向により、実際のご返済額とは異なります。
※ボーナス支払総額が総支払額の50%を超えている場合、上記の表では「ローン不可」となります。
※住宅ローン返済額一覧の数値は、住宅ローンのお申し込みやご融資をお約束するものではございません。
物件を見たい、物件や住環境の詳しい情報やローン相談など、
お問い合わせ先
ME不動産西東京株式会社

掲載情報の著作権は提供元企業等に帰属します。
Copyright:(C) 2025 LIFULL Co.,Ltd.
アプリで簡単 物件探し 大手不動産サイトの情報から一括検!プッシュ通知で物件を見逃さない
App Storeからダウンロード Google Playで手に入れよう QRコード