アプリで簡単 物件探し 通知 共有 アプリならではの機能を使ってみる
中古住宅

千葉県東金市台方 東金駅 中古一戸建て・中古住宅

情報提供元
LIFULL HOME'S
千葉県東金市台方 東金駅 中古一戸建て・中古住宅
価格 1450万円
交通
所在地 千葉県東金市台方周辺地図
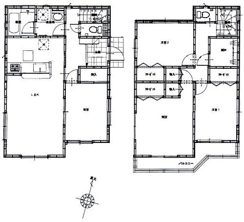
間取り 4LDK
建物面積 103.5m2 土地面積 165.02m2(公簿)
築年月 1997年3月 築年数 築28年9ヶ月
おすすめポイント
人気の角地で陽当り&風通し良好♪小学校徒歩約5分、2台駐車可、トイレ2ヵ所、1階にくつろぎの和室!
駐車場2台分・角地
物件を見たい、物件や住環境の詳しい情報やローン相談など、
お問い合わせ先
センチュリー21Associe

詳細情報

価格 1450万円
所在地 千葉県東金市台方周辺地図
交通
間取り 4LDK 築年月(築年数) 1997年3月(築28年9ヶ月)
建物面積 103.5m2 建物構造・規模 木造2階建
土地面積 165.02m2(公簿) 土地権利 所有権
私道面積 借地期間・地代
接道状況 北東4.2m 南東4.8m 角地 駐車場 空有 (2台) 無料
用途地域 1種低層 都市計画 非線引区域
建ぺい率/容積率 50%/100% 現況 居住中
地目 宅地 引渡可能時期 相談
情報提供元 LIFULL HOME'S [75150010044] 情報公開日
情報更新日 次回更新予定日 2025年11月14日

設備など

1種低層地域 即入居可 - 売主・代理 -
駐車2台以上 平屋 - 本下水 -
都市ガス - カウンターキッチン - 床暖房 -
ウォークインクローゼット - バリアフリー -
設備 上水道・プロパンガス・浄化槽・ガスコンロ可・コンロ2口以上
リフォーム履歴 -
リノベーション履歴 -
備考 【物件周辺の生活情報】
・学校
城西小学校(400m)、西中学校(1,017m)
・買い物
スーパー(1,446m)、コンビニ(908m)、ドラッグストア(1,186m)
・その他施設
岸本医院(1,081m)
[物件コード]099401-11773、東金駅まで約1.6km(徒歩約20分)、城西小学校まで約400m(徒歩約5分)、ローソン東金台方店まで約1km(徒歩約13分)、ビッグハウス東金店(スーパー)まで約1.4km(徒歩約18分)、
国土法届出:不要
述べ床面積:103.5m2
特記事項 駐車場2台分・角地

省エネ性能

エネルギー消費性能 -
断熱性能 -
目安光熱費 -

千葉県東金市台方 周辺地図情報

地図
※地図上に表示される物件の位置は付近住所に所在することを表すものであり、実際の物件所在地とは異なる場合がございます。
   正確な物件所在地は、取扱い不動産会社にお問い合わせください。
物件を見たい、物件や住環境の詳しい情報やローン相談など、
お問い合わせ先
センチュリー21Associe

不動産会社情報

お問い合わせ先 商号:センチュリー21Associe
免許番号:千葉県知事(5)第14993号
所在地:千葉県八街市八街ほ316-18
取引態様:媒介
管理コード:10044
所属協会など:(公社)首都圏不動産公正取引協議会、(公社)全日本不動産協会
共有する
QRコード

お電話でのお問い合わせ

電話をかける(携帯・PHS可)
お問い合わせダイヤル
通話無料0037-634-00776
営業時間 09:30~18:00 (定休日:水曜日、第1・第3・第5の火曜日)
音声案内に従って数字を入力
お問い合わせ番号
68436-2974
不動産会社につながります
不動産会社のスタッフと
直接電話で話せます。
※不動産会社がお電話に出られなかった場合、株式会社LIFULLは電話会社が提供するサービスを介してお客様の発信者番号を受領後、折り返し専用の電話番号を発番してお問合せの不動産会社に通知します(お客様の発信者番号がお問合せの不動産会社に通知されることはございません)
※光IP電話、及びIP電話からはご利用になれません
※0037で始まる電話番号に携帯電話からお問合せいただいた方には、ショートメッセージ(SMS)によるお問合せ完了通知をお届けする場合があります
物件を見たい、物件や住環境の詳しい情報やローン相談など、
お問い合わせ先
センチュリー21Associe

東金市の暮らしデータ

人口などの統計情報

世帯数 25355世帯
人口総数 56867人
転入者数 3057人
転入率(人口1000人当たり)
53.76人
転出者数 2845人
転出率(人口1000人当たり)
50.03人
土地平均価格
住宅地
22817円/m2
商業地
49900円/m2

結婚・育児の助成金

子育て関連の独自の取り組み (1)とうがね子育てアプリひろばの配信。(2)とうがねわくわく子育て応援団。(3)東金市子育てガイドブックひろばの製作・配布。
出産祝い あり
公立保育所数 2所(うち0歳児保育を実施している保育所:2所)
私立保育所数 2所(うち0歳児保育を実施している保育所:2所)
保育所入所待機児童数 0人
認定こども園数 6園 預かり保育実施園数 公立:5園 私立:-
学校給食 【小学校】完全給食【中学校】完全給食
公立中学校の学校選択制 未実施
子ども・学生等医療費助成<通院>対象年齢 18歳3月末まで 子ども・学生等医療費助成<入院>対象年齢 18歳3月末まで

東金市の治安・ごみ収集情報

公共料金・インフラ

ガス料金(22m3使用した場合の月額) 東金市2622円
水道料金(口径20mmで20m3の月額) 山武郡市広域水道企業団5318円
下水道料金(20m3を使用した場合の月額) 東金市2714円
下水道普及率 42.4%

安心・安全

建物火災出火件数 19件
人口10000人当たり
3.26件
刑法犯認知件数 426件
人口1000人当たり
7.32件
ハザード・防災マップ あり

医療

一般病院総数 2ヶ所
一般診療所総数 39ヶ所
小児科医師数 9人
小児人口10000人当たり
16.10人
産婦人科医師数 5人
15~49歳女性人口1万人当たり
5.06人
介護保険料基準額(月額) 5700円

ごみ

家庭ごみ収集(可燃ごみ) 有料
備考
指定ごみ袋有料。指定ごみ袋にごみ処理手数料を含む(応益負担)。
家庭ごみの分別方式 7分別8種〔可燃ごみ ビン類(ビン、ガラス・陶器類) 金属類 カン ペットボトル 乾電池 蛍光灯類〕
家庭ごみの戸別収集 未実施
粗大ごみ収集 あり
備考
有料。東金市外三市町環境クリーンセンターで収集。事前申込制(戸別収集及び自己搬入)。
生ごみ処理機助成金制度 あり
上限金額
20000円
上限比率
50.0%

東金市の住まいの給付金

中古購入

利子補給制度 なし
補助/助成金制度 なし

増築・改築・改修

利子補給制度 なし
補助/助成金制度 あり
上限金額
(1)4万円(2)50万円
備考
(1)【東金市木造住宅耐震診断補助制度】1981年5月31日以前に着工された木造住宅の耐震診断費用の2/3(上限4万円)を助成。(2)【東金市木造住宅耐震改修補助制度】1981年5月31日以前に着工された木造住宅の耐震設計費用の2/3(上限4万円)、工事監理費の2/3(上限6万円)、改修費用の2/3(上限40万円)を助成。他要件あり。
暮らしデータ提供元:生活ガイド.com
※行政機関により公表していない地域及びデータがございます。東京23区以外の政令指定都市は、市全体のデータとして表示しています。
※提供データには細心の注意を払っておりますが、調査後に変更がある場合があります。 最新の情報につきましては各市区役所までお問い合わせいただくか、自治体HPなどをご確認ください。

この物件を見た人はこんな物件も見ています

OCN×ドコモ光新規お申込みで合計最大137,280円相当おトク!特典の内訳・適用条件など詳細はこちら

東金市内の各駅の住みやすさ

他のエリアから探す

東金市の詳細地域から一戸建て物件を探す

大沼田家徳上布田川場北之幸谷季美の森東求名幸田小沼田極楽寺下武射田下谷宿薄島関内田中田間台方東金道庭二之袋東上宿菱沼日吉台広瀬堀上堀之内前之内松之郷御門南上宿八坂台山口油井

近辺の市区から探す

八街市山武市大網白里市山武郡九十九里町長生郡白子町

周辺の駅から探す

東金線
大網福俵東金求名成東

住宅ローンの返済額一覧

物件価格 1450万円に対して、年率 で、頭金 の場合
↓ボーナス 35年間 30年間 25年間 20年間 15年間 10年間
0万円 24,660円/月 28,423円/月 33,693円/月 41,603円/月 54,792円/月 81,178円/月
5万円 15,575円/月 19,447円/月 24,826円/月 32,845円/月 46,141円/月 72,633円/月
10万円 ローン不可 ローン不可 ローン不可 24,086円/月 37,489円/月 64,088円/月
15万円 ローン不可 ローン不可 ローン不可 ローン不可 28,838円/月 55,543円/月
20万円 ローン不可 ローン不可 ローン不可 ローン不可 ローン不可 46,998円/月
25万円 ローン不可 ローン不可 ローン不可 ローン不可 ローン不可 ローン不可
30万円 ローン不可 ローン不可 ローン不可 ローン不可 ローン不可 ローン不可
支払い利息合計 860,980円~ 735,280円~ 610,400円~ 488,960円~ 367,300円~ 245,580円~
※元利均等返済方式で試算しています。 「円」の単位以下の端数金額は「切り捨て」として計算しております。
※金利は、固定金利として計算しております。
※上記の住宅ローン返済額一覧は、あくまで試算であり、将来の金利動向により、実際のご返済額とは異なります。
※ボーナス支払総額が総支払額の50%を超えている場合、上記の表では「ローン不可」となります。
※住宅ローン返済額一覧の数値は、住宅ローンのお申し込みやご融資をお約束するものではございません。
物件を見たい、物件や住環境の詳しい情報やローン相談など、
お問い合わせ先
センチュリー21Associe

掲載情報の著作権は提供元企業等に帰属します。
Copyright:(C) 2025 LIFULL Co.,Ltd.
アプリで簡単 物件探し 大手不動産サイトの情報から一括検!プッシュ通知で物件を見逃さない
App Storeからダウンロード Google Playで手に入れよう QRコード