アプリで簡単 物件探し 通知 共有 アプリならではの機能を使ってみる
中古住宅

埼玉県児玉郡神川町大字関口 丹荘駅 中古一戸建て・中古住宅

情報提供元
LIFULL HOME'S
埼玉県児玉郡神川町大字関口 丹荘駅 中古一戸建て・中古住宅
価格 3500万円
交通
所在地 埼玉県児玉郡神川町大字関口周辺地図
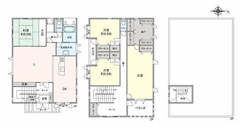
間取り 4SLDK
建物面積 202.33m2(壁芯) 土地面積 460.48m2(公簿)
築年月 2009年9月 築年数 築16年4ヶ月
おすすめポイント
\屋上付の3階建てオール電化住宅/純和風の別棟 ▽丹壮駅徒歩4分 ▽大理石床が高級感を演出 ▽二世帯住宅 ▽スーパー徒歩6分
二世帯向き・オール電化・角地
物件を見たい、物件や住環境の詳しい情報やローン相談など、
お問い合わせ先
でざいん不動産株式会社

詳細情報

価格 3500万円
所在地 埼玉県児玉郡神川町大字関口周辺地図
交通
間取り 4SLDK(LDK 31.4 和 8 洋 15.3・8.5×2) 築年月(築年数) 2009年9月(築16年4ヶ月)
建物面積 202.33m2(壁芯) 建物構造・規模 木造3階建
土地面積 460.48m2(公簿) 土地権利 所有権
私道面積 借地期間・地代
接道状況 東6m公道 南6m公道 角地
セットバック 駐車場 空有 無料
用途地域 無指定 都市計画 非線引区域
建ぺい率/容積率 60%/200% 現況 空室
地目 宅地 引渡可能時期 即時
情報提供元 LIFULL HOME'S [1497150002711] 情報公開日
情報更新日 次回更新予定日 2025年12月19日

設備など

1種低層地域 - 即入居可 売主・代理 -
駐車2台以上 - 平屋 - 本下水 -
都市ガス - カウンターキッチン 床暖房
ウォークインクローゼット - バリアフリー -
設備 上水道・プロパンガス・浄化槽・IHクッキングヒータ・コンロ2口以上・システムキッチン・追焚機能・床暖房・モニタ付インターホン・温水洗浄便座・カウンターキッチン・浴室乾燥機・クローゼット
リフォーム履歴 -
リノベーション履歴 -
備考 【物件周辺の生活情報】
・学校
丹荘小学校(301m)、神川中学校(1,480m)
・買い物
スーパー(440m)、コンビニ(1,151m)、ドラッグストア(4,874m)、商店街(574m)
・その他施設
公園(545m)、「丹壮」駅(311m)
《住まいのことなら【楽ラク×不動産】でざいん不動産へ!》 ▼当店は宅建士、FPなどの不動産や資金の将来設計に関する有資格者がおり、お客様に寄り添った住まい探しができます。 ▼自己資金0円からの家探しできます。 ▼住宅ローンに自信あり!過去にお断りされた方ご相談ください。 ▼当日、平日、時間外もご見学・ご案内可能です。  見学予約は0120-25-1373【通話無料】までお気軽にお電話ください。 【設備・特記事項備考】専用バス・専用トイレ・浴室TV
国土法届出:不要/南
特記事項 二世帯向き・オール電化・角地

省エネ性能

エネルギー消費性能 -
断熱性能 -
目安光熱費 -

埼玉県児玉郡神川町大字関口 周辺地図情報

地図
※地図上に表示される物件の位置は付近住所に所在することを表すものであり、実際の物件所在地とは異なる場合がございます。
   正確な物件所在地は、取扱い不動産会社にお問い合わせください。
物件を見たい、物件や住環境の詳しい情報やローン相談など、
お問い合わせ先
でざいん不動産株式会社

不動産会社情報

お問い合わせ先 商号:でざいん不動産株式会社
免許番号:埼玉県知事(01)第024643号
所在地:埼玉県熊谷市中央2丁目251
取引態様:媒介
管理コード:2711
所属協会など:(公財)東日本不動産流通機構、(公社)首都圏不動産公正取引協議会、(公社)埼玉県宅地建物取引業協会
共有する
QRコード

お電話でのお問い合わせ

電話をかける(携帯・PHS可)
お問い合わせダイヤル
通話無料0037-634-43683
営業時間 10:00~19:00 (定休日:水曜日)
音声案内に従って数字を入力
お問い合わせ番号
17677-2976
不動産会社につながります
不動産会社のスタッフと
直接電話で話せます。
※不動産会社がお電話に出られなかった場合、株式会社LIFULLは電話会社が提供するサービスを介してお客様の発信者番号を受領後、折り返し専用の電話番号を発番してお問合せの不動産会社に通知します(お客様の発信者番号がお問合せの不動産会社に通知されることはございません)
※光IP電話、及びIP電話からはご利用になれません
※0037で始まる電話番号に携帯電話からお問合せいただいた方には、ショートメッセージ(SMS)によるお問合せ完了通知をお届けする場合があります
物件を見たい、物件や住環境の詳しい情報やローン相談など、
お問い合わせ先
でざいん不動産株式会社
OCN×ドコモ光新規お申込みで合計最大137,280円相当おトク!特典の内訳・適用条件など詳細はこちら

児玉郡神川町内の各駅の住みやすさ

他のエリアから探す

児玉郡神川町の詳細地域から一戸建て物件を探す

大字植竹大字小浜大字関口大字新里大字肥土大字渡瀬

近辺の市区から探す

藤岡市佐波郡玉村町本庄市秩父郡長瀞町児玉郡美里町児玉郡上里町

周辺の駅から探す

八高線
寄居用土松久児玉丹荘群馬藤岡北藤岡倉賀野高崎

埼玉県児玉郡神川町で他のジャンルから探す

住宅ローンの返済額一覧

物件価格 3500万円に対して、年率 で、頭金 の場合
↓ボーナス 35年間 30年間 25年間 20年間 15年間 10年間
0万円 77,875円/月 89,756円/月 106,400円/月 131,380円/月 173,029円/月 256,354円/月
5万円 68,790円/月 80,781円/月 97,534円/月 122,621円/月 164,378円/月 247,809円/月
10万円 59,704円/月 71,805円/月 88,667円/月 113,862円/月 155,726円/月 239,263円/月
15万円 50,619円/月 62,829円/月 79,800円/月 105,104円/月 147,075円/月 230,718円/月
20万円 41,533円/月 53,854円/月 70,933円/月 96,345円/月 138,423円/月 222,173円/月
25万円 ローン不可 44,878円/月 62,067円/月 87,586円/月 129,772円/月 213,628円/月
30万円 ローン不可 ローン不可 53,200円/月 78,828円/月 121,120円/月 205,083円/月
支払い利息合計 2,721,990円~ 2,327,880円~ 1,935,700円~ 1,543,680円~ 1,154,550円~ 768,700円~
※元利均等返済方式で試算しています。 「円」の単位以下の端数金額は「切り捨て」として計算しております。
※金利は、固定金利として計算しております。
※上記の住宅ローン返済額一覧は、あくまで試算であり、将来の金利動向により、実際のご返済額とは異なります。
※ボーナス支払総額が総支払額の50%を超えている場合、上記の表では「ローン不可」となります。
※住宅ローン返済額一覧の数値は、住宅ローンのお申し込みやご融資をお約束するものではございません。
物件を見たい、物件や住環境の詳しい情報やローン相談など、
お問い合わせ先
でざいん不動産株式会社

掲載情報の著作権は提供元企業等に帰属します。
Copyright:(C) 2025 LIFULL Co.,Ltd.
アプリで簡単 物件探し 大手不動産サイトの情報から一括検!プッシュ通知で物件を見逃さない
App Storeからダウンロード Google Playで手に入れよう QRコード