アプリで簡単 物件探し 通知 共有 アプリならではの機能を使ってみる
中古住宅

奈良県天理市中町 二階堂駅 中古一戸建て・中古住宅

情報提供元
SUUMO
奈良県天理市中町 二階堂駅 中古一戸建て・中古住宅
価格 1980万円
交通
所在地 奈良県天理市中町周辺地図
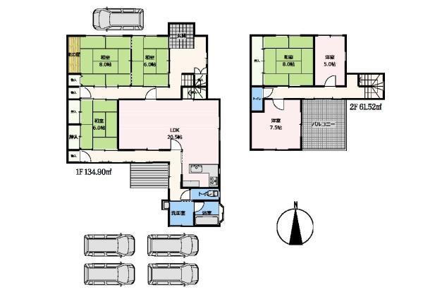
間取り 6LDK
建物面積 134.9m2(登記) 土地面積 399.99m2(登記)
築年月 1983年7月 築年数 築42年4ヶ月
おすすめポイント
☆土地面積約120坪の広々とした敷地!☆駐車5台以上可能です!■CENTURY21 マトリックス不動産販売■不動産取引で安心を皆様にお届けさせて頂きます。■豊かなライフタイルをご提案できるように、提携SONYグループのファイナンシャルプランナーが心をこめて将来の試算についてご案内いたします。■当店の強みは「誠実・丁寧・真面目」■物件探しの注意点等、良い事だけでなく懸念点までしっかりとお知らせしております。■お得な金利のご提案(融資中・返済相談・女性単身・派遣社員・非正規雇用の方でも相談可能です。)■お気軽にご相談ください!♪お問合せお待ちしております♪
日当り良好・閑静な住宅街・セットバック要・駐車場3台分以上・浴室1坪以上
お問い合わせ先
センチュリー21マトリックス不動産販売(株)
物件を見たい、物件や住環境の詳しい情報やローン相談など、
お問い合わせ先
センチュリー21マトリックス不動産販売(株)

詳細情報

価格 1980万円
所在地 奈良県天理市中町周辺地図
交通
間取り 6LDK 築年月(築年数) 1983年7月(築42年4ヶ月)
建物面積 134.9m2(登記) 建物構造・規模 木造2階建
土地面積 399.99m2(登記) 土地権利 所有権
私道面積 借地期間・地代
接道状況 北3.7m 駐車場
用途地域 準工業 都市計画
建ぺい率/容積率 60%/200% 現況
地目 引渡可能時期 相談
情報提供元 SUUMO [060Z78247722] 情報公開日
情報更新日 次回更新予定日 随時

設備など

1種低層地域 - 即入居可 - 売主・代理 -
駐車2台以上 平屋 - 本下水
都市ガス カウンターキッチン - 床暖房 -
ウォークインクローゼット - バリアフリー -
設備 洗面所・シャンプードレッサ・システムキッチン・風呂・LPガス・トイレ2ヶ所・上水道・本下水・都市ガス
リフォーム履歴 -
リノベーション履歴 -
備考 <物件名>中町(二階堂駅) 1980万円/<駐車場>カースペース/<土地権利>所有権/<間取り>6LDK/<特徴>☆価格変更しました!、駐車3台以上可・2沿線以上利用可・土地100坪以上・LDK18畳以上・システムキッチン
販売戸数:1戸
法令等制限:景観地区
特記事項 日当り良好・閑静な住宅街・セットバック要・駐車場3台分以上・浴室1坪以上

省エネ性能

エネルギー消費性能 -
断熱性能 -
目安光熱費 -

奈良県天理市中町 周辺地図情報

地図
※地図上に表示される物件の位置は付近住所に所在することを表すものであり、実際の物件所在地とは異なる場合がございます。
   正確な物件所在地は、取扱い不動産会社にお問い合わせください。
物件を見たい、物件や住環境の詳しい情報やローン相談など、
お問い合わせ先
センチュリー21マトリックス不動産販売(株)

不動産会社情報

お問い合わせ先 商号:センチュリー21マトリックス不動産販売(株)
免許番号:奈良県知事(2)第004352号
所在地:奈良県橿原市新堂町281-3
TEL:0744-48-5388
取引態様:専属専任媒介
管理コード:189901-1001
共有する
QRコード
物件を見たい、物件や住環境の詳しい情報やローン相談など、
お問い合わせ先
センチュリー21マトリックス不動産販売(株)

天理市の暮らしデータ

人口などの統計情報

世帯数 25377世帯
人口総数 61328人
転入者数 2616人
転入率(人口1000人当たり)
42.66人
転出者数 2971人
転出率(人口1000人当たり)
48.44人
土地平均価格
住宅地
50938円/m2
商業地
121000円/m2

結婚・育児の助成金

子育て関連の独自の取り組み -
出産祝い なし
公立保育所数 3所(うち0歳児保育を実施している保育所:3所)
私立保育所数 4所(うち0歳児保育を実施している保育所:4所)
保育所入所待機児童数 0人
認定こども園数 6園 預かり保育実施園数 公立:6園 私立:1園
学校給食 【小学校】完全給食【中学校】完全給食
公立中学校の学校選択制 未実施
子ども・学生等医療費助成<通院>対象年齢 18歳3月末まで 子ども・学生等医療費助成<入院>対象年齢 18歳3月末まで

天理市の治安・ごみ収集情報

公共料金・インフラ

ガス料金(22m3使用した場合の月額) 大阪瓦斯株式会社4544円
水道料金(口径20mmで20m3の月額) 天理市4114円
下水道料金(20m3を使用した場合の月額) 天理市2860円
下水道普及率 97.6%

安心・安全

建物火災出火件数 13件
人口10000人当たり
2.03件
刑法犯認知件数 362件
人口1000人当たり
5.67件
ハザード・防災マップ あり

医療

一般病院総数 5ヶ所
一般診療所総数 39ヶ所
小児科医師数 13人
小児人口10000人当たり
18.01人
産婦人科医師数 6人
15~49歳女性人口1万人当たり
5.00人
介護保険料基準額(月額) 6770円

ごみ

家庭ごみ収集(可燃ごみ) 無料
備考
-
家庭ごみの分別方式 4分別11種〔燃やせるごみ 燃やせないごみ 資源ごみ(プラスチック製容器包装・発砲スチロールトレー、飲料用ペットボトル、紙パック、古着類、新聞、ダンボール、飲料カン・飲食用びん、雑誌類) 有害ごみ(蛍光灯を除く)〕
家庭ごみの戸別収集 一部実施(ぬくもり収集)
粗大ごみ収集 あり
備考
無料。リクエスト収集(事前申込制)。
生ごみ処理機助成金制度 あり
上限金額
30000円
上限比率
50.0%

天理市の住まいの給付金

中古購入

利子補給制度 なし
補助/助成金制度 なし

増築・改築・改修

利子補給制度 なし
補助/助成金制度 なし
暮らしデータ提供元:生活ガイド.com
※行政機関により公表していない地域及びデータがございます。東京23区以外の政令指定都市は、市全体のデータとして表示しています。
※提供データには細心の注意を払っておりますが、調査後に変更がある場合があります。 最新の情報につきましては各市区役所までお問い合わせいただくか、自治体HPなどをご確認ください。

この物件を見た人はこんな物件も見ています

OCN×ドコモ光新規お申込みで合計最大137,280円相当おトク!特典の内訳・適用条件など詳細はこちら

天理市内の各駅の住みやすさ

住宅ローンの返済額一覧

物件価格 1980万円に対して、年率 で、頭金 の場合
↓ボーナス 35年間 30年間 25年間 20年間 15年間 10年間
0万円 38,418円/月 44,280円/月 52,491円/月 64,814円/月 85,361円/月 126,468円/月
5万円 29,333円/月 35,304円/月 43,624円/月 56,055円/月 76,709円/月 117,922円/月
10万円 20,247円/月 26,328円/月 34,757円/月 47,296円/月 68,058円/月 109,377円/月
15万円 ローン不可 ローン不可 ローン不可 38,538円/月 59,406円/月 100,832円/月
20万円 ローン不可 ローン不可 ローン不可 ローン不可 50,755円/月 92,287円/月
25万円 ローン不可 ローン不可 ローン不可 ローン不可 ローン不可 83,742円/月
30万円 ローン不可 ローン不可 ローン不可 ローン不可 ローン不可 75,197円/月
支払い利息合計 1,342,770円~ 1,146,800円~ 952,300円~ 761,600円~ 571,190円~ 382,380円~
※元利均等返済方式で試算しています。 「円」の単位以下の端数金額は「切り捨て」として計算しております。
※金利は、固定金利として計算しております。
※上記の住宅ローン返済額一覧は、あくまで試算であり、将来の金利動向により、実際のご返済額とは異なります。
※ボーナス支払総額が総支払額の50%を超えている場合、上記の表では「ローン不可」となります。
※住宅ローン返済額一覧の数値は、住宅ローンのお申し込みやご融資をお約束するものではございません。
物件を見たい、物件や住環境の詳しい情報やローン相談など、
お問い合わせ先
センチュリー21マトリックス不動産販売(株)

掲載情報の著作権は提供元企業等に帰属します。
Copyright:(C) 2025 Recruit Co., Ltd.
アプリで簡単 物件探し 大手不動産サイトの情報から一括検!プッシュ通知で物件を見逃さない
App Storeからダウンロード Google Playで手に入れよう QRコード