アプリで簡単 物件探し 通知 共有 アプリならではの機能を使ってみる
中古住宅

大阪府茨木市南春日丘7 阪大病院前駅 中古一戸建て・中古住宅

情報提供元
SUUMO
大阪府茨木市南春日丘7 阪大病院前駅 中古一戸建て・中古住宅
価格 5230万円
交通
所在地 大阪府茨木市南春日丘7周辺地図
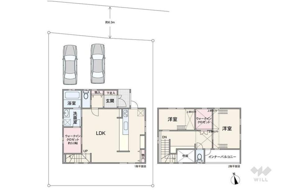
間取り 2LDK
建物面積 89.91m2(登記) 土地面積 151.67m2(登記)
築年月 2015年12月 築年数 築9年11ヶ月
おすすめポイント
◆延床面積89.91平米のゆったりとした2LDK!◆LDKと洗面室から出入りできるWICあり!洗濯動線に優れています!◆配膳や片付けがしやすい横並びダイニングキッチン!◆家族と顔を合わせる機会が増えるリビング階段プラン!◆キッチン背面や2階小上がりスペースにはカウンターが備え付けられており、テレワークやお子様の勉強スペースとしてお使いいただけそうです!◆食洗機や床暖房、浴室乾燥機等充実の室内設備!◆ロフト3か所付き!◆2台駐車可能!吹田インターチェンジが近く、車での移動が便利な立地!◆大阪モノレール彩都線「阪大病院前駅」徒歩8分!◆沢池小学校徒歩10分、西陵中学校徒歩21分。
日当り良好・閑静な住宅街・駐車場2台分・整形地
お問い合わせ先
ウィル不動産販売 茨木営業所(株)ウィル
物件を見たい、物件や住環境の詳しい情報やローン相談など、
お問い合わせ先
ウィル不動産販売 茨木営業所(株)ウィル

詳細情報

価格 5230万円
所在地 大阪府茨木市南春日丘7周辺地図
交通
  • 大阪モノレール彩都線 阪大病院前駅 徒歩8分乗換案内
間取り 2LDK 築年月(築年数) 2015年12月(築9年11ヶ月)
建物面積 89.91m2(登記) 建物構造・規模 木造2階建
土地面積 151.67m2(登記) 土地権利 所有権
私道面積 借地期間・地代
接道状況 北6.3m接面10.4m 駐車場
用途地域 1種低層 都市計画
建ぺい率/容積率 50%/100% 現況
地目 引渡可能時期 相談
情報提供元 SUUMO [060Z78424574] 情報公開日
情報更新日 次回更新予定日 随時

設備など

1種低層地域 即入居可 - 売主・代理 -
駐車2台以上 平屋 - 本下水
都市ガス カウンターキッチン - 床暖房
ウォークインクローゼット バリアフリー -
設備 ロフト・バルコニー・トイレ・都市ガス・浴室乾燥機・ウォークインクローゼット・温水洗浄便座・システムキッチン・モニタ付インターホン・風呂・対面K・トイレ2ヶ所・床暖房・衣類乾燥機・食器洗浄乾燥機・上水道・本下水・駐車場2台分・フローリング・太陽光システム
リフォーム履歴 -
リノベーション履歴 -
備考 <物件名>南春日丘7(阪大病院前駅) 5230万円/<駐車場>カースペース/<土地権利>所有権/<間取り>2LDK/<特徴>■ウィル不動産販売■太陽光発電システムあり!2台並列駐車能!WIC2ヶ所、太陽光発電システム・駐車2台可・LDK20畳以上・市街地が近い・システムキッチン
販売戸数:1戸
特記事項 日当り良好・閑静な住宅街・駐車場2台分・整形地

省エネ性能

エネルギー消費性能 -
断熱性能 -
目安光熱費 -

大阪府茨木市南春日丘7 周辺地図情報

地図
※地図上に表示される物件の位置は付近住所に所在することを表すものであり、実際の物件所在地とは異なる場合がございます。
   正確な物件所在地は、取扱い不動産会社にお問い合わせください。
物件を見たい、物件や住環境の詳しい情報やローン相談など、
お問い合わせ先
ウィル不動産販売 茨木営業所(株)ウィル

不動産会社情報

お問い合わせ先 商号:ウィル不動産販売 茨木営業所(株)ウィル
免許番号:国土交通大臣(5)第006447号
所在地:大阪府茨木市元町3-8
TEL:0120-743733
取引態様:媒介
共有する
QRコード
物件を見たい、物件や住環境の詳しい情報やローン相談など、
お問い合わせ先
ウィル不動産販売 茨木営業所(株)ウィル

茨木市の暮らしデータ

人口などの統計情報

世帯数 124953世帯
人口総数 285715人
転入者数 13394人
転入率(人口1000人当たり)
46.88人
転出者数 12067人
転出率(人口1000人当たり)
42.23人
土地平均価格
住宅地
212267円/m2
商業地
400400円/m2

結婚・育児の助成金

子育て関連の独自の取り組み (1)出前型一時保育事業。(2)産前産後ホームヘルパー派遣事業。(3)中高生の乳児とのふれあいまなび事業。(4)障害児通学支援事業。(5)ユースプラザ事業。(6)子ども・若者自立支援事業。
出産祝い なし
公立保育所数 5所(うち0歳児保育を実施している保育所:5所)
私立保育所数 13所(うち0歳児保育を実施している保育所:12所)
保育所入所待機児童数 24人
認定こども園数 42園 預かり保育実施園数 公立:1園 私立:10園
学校給食 【小学校】完全給食【中学校】完全給食
公立中学校の学校選択制 未実施
子ども・学生等医療費助成<通院>対象年齢 18歳3月末まで 子ども・学生等医療費助成<入院>対象年齢 18歳3月末まで

茨木市の治安・ごみ収集情報

公共料金・インフラ

ガス料金(22m3使用した場合の月額) 大阪瓦斯株式会社4544円
水道料金(口径20mmで20m3の月額) 茨木市2420円
下水道料金(20m3を使用した場合の月額) 茨木市2035円
下水道普及率 99.5%

安心・安全

建物火災出火件数 20件
人口10000人当たり
0.70件
刑法犯認知件数 2062件
人口1000人当たり
7.17件
ハザード・防災マップ あり

医療

一般病院総数 12ヶ所
一般診療所総数 246ヶ所
小児科医師数 33人
小児人口10000人当たり
8.61人
産婦人科医師数 16人
15~49歳女性人口1万人当たり
2.63人
介護保険料基準額(月額) 6480円

ごみ

家庭ごみ収集(可燃ごみ) 無料
備考
-
家庭ごみの分別方式 2分別8種〔普通ごみ 資源物(缶、びん、ペットボトル、古紙[新聞、雑誌・雑がみ、段ボール]、古布)〕 拠点回収:古紙・牛乳パック 使用済み小型家電 水銀使用廃製品
家庭ごみの戸別収集 一部実施(【スマイル収集】対象要件は65歳以上で要介護3以上、身体障害者手帳1級または2級、療育手帳A、精神障害者保健福祉手帳1級のいずれかに該当する者の世帯。ただし、親族等の協力を得ることができる世帯は除く)
粗大ごみ収集 あり
備考
「小型」と「大型」に分けて収集。「小型」は、縦・横・高さの一番長いところが30cm以上1m未満のごみ。「大型」は、縦・横・高さの一番長いところが1m以上のごみ(ただし、いずれかの一辺が1m未満)。
生ごみ処理機助成金制度 あり
上限金額
20000円
上限比率
50.0%

茨木市の住まいの給付金

中古購入

利子補給制度 あり
上限金額
-
備考
【フラット35】地域連携型(子育て支援) 市外在住の方が、茨木市内で子世帯、または親等と近居・同居をするために住宅の取得をし転入する場合にフラット35の借入金利を当初5年間0.5%引き下げ。
補助/助成金制度 あり
上限金額
30万円
備考
【茨木市多世代近居・同居支援事業補助制度】市外在住の方が、茨木市内で子世帯、または親等と近居・同居をするために住宅の取得をし転入する場合に購入費用の一部を上限30万円助成。

増築・改築・改修

利子補給制度 なし
補助/助成金制度 あり
上限金額
(1)5万円(2)10万円(3)90万円(4)60万円(5)30万円
備考
(1)【既存民間建築物耐震診断】2000年5月31日以前に建築された木造住宅が対象。延床面積に応じ上限5万円補助。(2)【木造住宅耐震設計】2000年5月31日以前に建築された木造住宅が対象。耐震改修とセットが条件。設計費用の7割、上限10万円補助。(3)【木造住宅耐震改修】2000年5月31日以前に建築された木造住宅が対象。所得に応じて70万円か90万円補助。(4)【木造住宅除却】1981年5月31日以前に建築された木造住宅が対象。耐震性のない建物が条件。所得に応じて40万円か60万円補助。(5)【茨木市多世代近居・同居支援事業補助制度】市外在住の方が、茨木市内で子世帯、または親等と同居をするために市内業者でリフォームする場合工事費用の一部を上限30万円助成。
暮らしデータ提供元:生活ガイド.com
※行政機関により公表していない地域及びデータがございます。東京23区以外の政令指定都市は、市全体のデータとして表示しています。
※提供データには細心の注意を払っておりますが、調査後に変更がある場合があります。 最新の情報につきましては各市区役所までお問い合わせいただくか、自治体HPなどをご確認ください。

この物件を見た人はこんな物件も見ています

OCN×ドコモ光新規お申込みで合計最大137,280円相当おトク!特典の内訳・適用条件など詳細はこちら

茨木市内の各駅の住みやすさ

住宅ローンの返済額一覧

物件価格 5230万円に対して、年率 で、頭金 の場合
↓ボーナス 35年間 30年間 25年間 20年間 15年間 10年間
0万円 122,783円/月 141,516円/月 167,758円/月 207,142円/月 272,809円/月 404,185円/月
5万円 113,698円/月 132,540円/月 158,892円/月 198,384円/月 264,158円/月 395,639円/月
10万円 104,612円/月 123,565円/月 150,025円/月 189,625円/月 255,506円/月 387,094円/月
15万円 95,527円/月 114,589円/月 141,158円/月 180,866円/月 246,855円/月 378,549円/月
20万円 86,441円/月 105,613円/月 132,291円/月 172,108円/月 238,203円/月 370,004円/月
25万円 77,356円/月 96,638円/月 123,425円/月 163,349円/月 229,552円/月 361,459円/月
30万円 68,270円/月 87,662円/月 114,558円/月 154,590円/月 220,900円/月 352,914円/月
支払い利息合計 4,290,630円~ 3,664,480円~ 3,043,100円~ 2,426,560円~ 1,814,950円~ 1,208,420円~
※元利均等返済方式で試算しています。 「円」の単位以下の端数金額は「切り捨て」として計算しております。
※金利は、固定金利として計算しております。
※上記の住宅ローン返済額一覧は、あくまで試算であり、将来の金利動向により、実際のご返済額とは異なります。
※ボーナス支払総額が総支払額の50%を超えている場合、上記の表では「ローン不可」となります。
※住宅ローン返済額一覧の数値は、住宅ローンのお申し込みやご融資をお約束するものではございません。
物件を見たい、物件や住環境の詳しい情報やローン相談など、
お問い合わせ先
ウィル不動産販売 茨木営業所(株)ウィル

掲載情報の著作権は提供元企業等に帰属します。
Copyright:(C) 2025 Recruit Co., Ltd.
アプリで簡単 物件探し 大手不動産サイトの情報から一括検!プッシュ通知で物件を見逃さない
App Storeからダウンロード Google Playで手に入れよう QRコード