アプリで簡単 物件探し 通知 共有 アプリならではの機能を使ってみる
中古住宅

大阪府吹田市五月が丘南 岸辺駅 中古一戸建て・中古住宅

情報提供元
SUUMO
大阪府吹田市五月が丘南 岸辺駅 中古一戸建て・中古住宅
価格 5280万円
交通
所在地 大阪府吹田市五月が丘南周辺地図
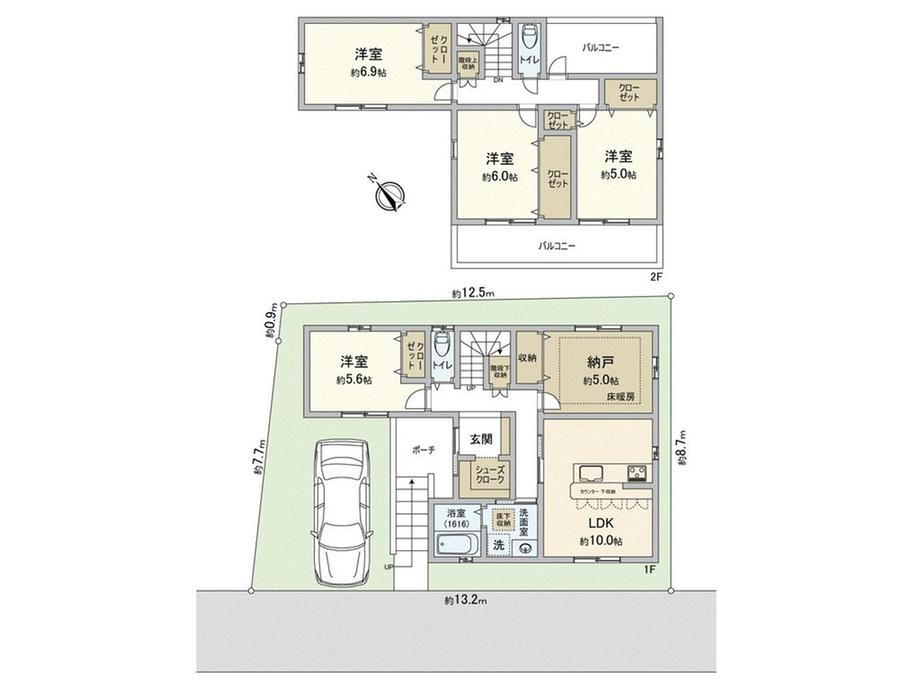
間取り 4SLDK
建物面積 105.83m2(32.01坪)(登記) 土地面積 112.21m2(33.94坪)(登記)
築年月 2017年4月 築年数 築8年7ヶ月
おすすめポイント
-物件のおすすめポイント-▼特徴・2017年4月築の4SLDK住宅・全居室2面採光設計・配膳がスムーズなカウンター付の対面式キッチン・約5帖の納戸は床暖房付・浴室は広々1616サイズ・各階にトイレを配置、ゆとりをもって使用可能・カーポート付の駐車場有(車種による)・南西側が幅員約12mの公道に面した敷地・室内丁寧にお使いです▼周辺環境・佐井寺東公園 徒歩4分(約310m)・東佐井寺小学校 徒歩7分(約500m)・佐井寺中学校 徒歩9分(約700m)■ ご希望の住まい探しをお手伝いします ━━━━━・・・物件の詳細・ご相談はお気軽にお問い合わせください。
浴室1坪以上
お問い合わせ先
三井のリハウス茨木センター三井不動産リアルティ(株)
物件を見たい、物件や住環境の詳しい情報やローン相談など、
お問い合わせ先
三井のリハウス茨木センター三井不動産リアルティ(株)

詳細情報

価格 5280万円
所在地 大阪府吹田市五月が丘南周辺地図
交通
  • JR東海道本線 岸辺駅 バス14分/「竹谷」バス停 停歩2分乗換案内
間取り 4SLDK 築年月(築年数) 2017年4月(築8年7ヶ月)
建物面積 105.83m2(32.01坪)(登記) 建物構造・規模 木造2階建
土地面積 112.21m2(33.94坪)(登記) 土地権利 所有権
私道面積 借地期間・地代
接道状況 南西12m接面13.2m 駐車場
用途地域 2種中高 都市計画
建ぺい率/容積率 60%/200% 現況
地目 引渡可能時期 相談
情報提供元 SUUMO [060Z77764007] 情報公開日
情報更新日 次回更新予定日 随時

設備など

1種低層地域 - 即入居可 - 売主・代理 -
駐車2台以上 - 平屋 - 本下水
都市ガス カウンターキッチン - 床暖房
ウォークインクローゼット - バリアフリー -
設備 バルコニー・収納スペース・都市ガス・風呂・対面K・トイレ2ヶ所・床下収納・床暖房・2面バルコニー・上水道・本下水・シューズインクローク
リフォーム履歴 -
リノベーション履歴 -
備考 <物件名>五月が丘南 5280万円/<土地権利>所有権/<間取り>4LDK+S(納戸)/<特徴>■三井のリハウス■両面バルコニー仕様SC・階段下収納等、収納豊富な設計、スーパー 徒歩10分以内・前道6m以上・対面式キッチン・トイレ2ヶ所・浴室1坪以上
販売戸数:1戸
特記事項 浴室1坪以上

省エネ性能

エネルギー消費性能 -
断熱性能 -
目安光熱費 -

大阪府吹田市五月が丘南 周辺地図情報

地図
※地図上に表示される物件の位置は付近住所に所在することを表すものであり、実際の物件所在地とは異なる場合がございます。
   正確な物件所在地は、取扱い不動産会社にお問い合わせください。
物件を見たい、物件や住環境の詳しい情報やローン相談など、
お問い合わせ先
三井のリハウス茨木センター三井不動産リアルティ(株)

不動産会社情報

お問い合わせ先 商号:三井のリハウス茨木センター三井不動産リアルティ(株)
免許番号:国土交通大臣(15)第000777号
所在地:大阪府茨木市舟木町3-27 エル・ボスクII1階
TEL:00786-01794161
取引態様:専任媒介
管理コード:FYMAFA05
共有する
QRコード
物件を見たい、物件や住環境の詳しい情報やローン相談など、
お問い合わせ先
三井のリハウス茨木センター三井不動産リアルティ(株)

吹田市の暮らしデータ

人口などの統計情報

世帯数 179962世帯
人口総数 382681人
転入者数 22853人
転入率(人口1000人当たり)
59.72人
転出者数 20873人
転出率(人口1000人当たり)
54.54人
土地平均価格
住宅地
229857円/m2
商業地
959000円/m2

結婚・育児の助成金

子育て関連の独自の取り組み 子どもの習い事費用助成事業(対象は、市内在住の生活保護又は児童扶養手当を受給している者のうち、小学校5年生から中学校3年生までの児童・生徒の保護者。対象となる児童・生徒のスポーツ・芸術、学習等の習い事に要する費用に利用できるクーポンを、一人につき毎月10,000円分交付)。
出産祝い なし
公立保育所数 12所(うち0歳児保育を実施している保育所:12所)
私立保育所数 36所(うち0歳児保育を実施している保育所:36所)
保育所入所待機児童数 4人
認定こども園数 24園 預かり保育実施園数 公立:5園 私立:16園
学校給食 【小学校】完全給食【中学校】家庭弁当等との選択制/デリバリー形式[運搬:ランチボックス、内容:完全給食]
公立中学校の学校選択制 未実施
子ども・学生等医療費助成<通院>対象年齢 18歳3月末まで 子ども・学生等医療費助成<入院>対象年齢 18歳3月末まで

吹田市の治安・ごみ収集情報

公共料金・インフラ

ガス料金(22m3使用した場合の月額) 大阪瓦斯株式会社4544円
水道料金(口径20mmで20m3の月額) 吹田市2805円
下水道料金(20m3を使用した場合の月額) 吹田市1609円
下水道普及率 99.9%

安心・安全

建物火災出火件数 25件
人口10000人当たり
0.65件
刑法犯認知件数 1774件
人口1000人当たり
4.60件
ハザード・防災マップ あり

医療

一般病院総数 14ヶ所
一般診療所総数 373ヶ所
小児科医師数 154人
小児人口10000人当たり
29.65人
産婦人科医師数 98人
15~49歳女性人口1万人当たり
11.97人
介護保険料基準額(月額) 6280円

ごみ

家庭ごみ収集(可燃ごみ) 無料
備考
引越しごみのみ有料。
家庭ごみの分別方式 4分別10種〔燃焼ごみ 資源ごみ(かん、びん、新聞、雑誌類、段ボール、古布類、牛乳パック) 小型複雑ごみ 有害危険ごみ〕 拠点回収:ペットボトル 廃食用油
家庭ごみの戸別収集 実施
粗大ごみ収集 あり
備考
月に一度、地区ごとに定められた曜日に収集。
生ごみ処理機助成金制度 なし
上限金額
-
上限比率
-

吹田市の住まいの給付金

中古購入

利子補給制度 なし
補助/助成金制度 なし

増築・改築・改修

利子補給制度 なし
補助/助成金制度 あり
上限金額
(1)5万円(2)10万円(3)70万円(4)40万円
備考
耐震化の補助制度1981年5月31日以前に建築確認を受けた木造住宅について、耐震診断、耐震設計、耐震改修、除却を行う場合に、その費用の一部を補助。(1)【耐震診断】上限5万円。(2)【耐震設計】上限10万円。所得制限あり。(3)【耐震改修】上限70万円(低所得の世帯には90万円)。所得制限あり。(4)【除却】上限40万円。所得制限、資産要件あり。
暮らしデータ提供元:生活ガイド.com
※行政機関により公表していない地域及びデータがございます。東京23区以外の政令指定都市は、市全体のデータとして表示しています。
※提供データには細心の注意を払っておりますが、調査後に変更がある場合があります。 最新の情報につきましては各市区役所までお問い合わせいただくか、自治体HPなどをご確認ください。

この物件を見た人はこんな物件も見ています

OCN×ドコモ光新規お申込みで合計最大137,280円相当おトク!特典の内訳・適用条件など詳細はこちら

吹田市内の各駅の住みやすさ

住宅ローンの返済額一覧

物件価格 5280万円に対して、年率 で、頭金 の場合
↓ボーナス 35年間 30年間 25年間 20年間 15年間 10年間
0万円 124,081円/月 143,012円/月 169,532円/月 209,332円/月 275,693円/月 408,457円/月
5万円 114,996円/月 134,036円/月 160,665円/月 200,573円/月 267,042円/月 399,912円/月
10万円 105,910円/月 125,061円/月 151,798円/月 191,815円/月 258,390円/月 391,367円/月
15万円 96,825円/月 116,085円/月 142,931円/月 183,056円/月 249,739円/月 382,822円/月
20万円 87,739円/月 107,109円/月 134,065円/月 174,297円/月 241,087円/月 374,277円/月
25万円 78,654円/月 98,134円/月 125,198円/月 165,539円/月 232,436円/月 365,731円/月
30万円 69,568円/月 89,158円/月 116,331円/月 156,780円/月 223,784円/月 357,186円/月
支払い利息合計 4,335,790円~ 3,703,040円~ 3,075,000円~ 2,452,160円~ 1,834,070円~ 1,221,060円~
※元利均等返済方式で試算しています。 「円」の単位以下の端数金額は「切り捨て」として計算しております。
※金利は、固定金利として計算しております。
※上記の住宅ローン返済額一覧は、あくまで試算であり、将来の金利動向により、実際のご返済額とは異なります。
※ボーナス支払総額が総支払額の50%を超えている場合、上記の表では「ローン不可」となります。
※住宅ローン返済額一覧の数値は、住宅ローンのお申し込みやご融資をお約束するものではございません。
物件を見たい、物件や住環境の詳しい情報やローン相談など、
お問い合わせ先
三井のリハウス茨木センター三井不動産リアルティ(株)

掲載情報の著作権は提供元企業等に帰属します。
Copyright:(C) 2025 Recruit Co., Ltd.
アプリで簡単 物件探し 大手不動産サイトの情報から一括検!プッシュ通知で物件を見逃さない
App Storeからダウンロード Google Playで手に入れよう QRコード