アプリで簡単 物件探し 通知 共有 アプリならではの機能を使ってみる
中古住宅

京都府京都市北区紫竹下緑町 北大路駅 中古一戸建て・中古住宅

情報提供元
SUUMO
京都府京都市北区紫竹下緑町 北大路駅 中古一戸建て・中古住宅
価格 2780万円
交通
所在地 京都府京都市北区紫竹下緑町周辺地図
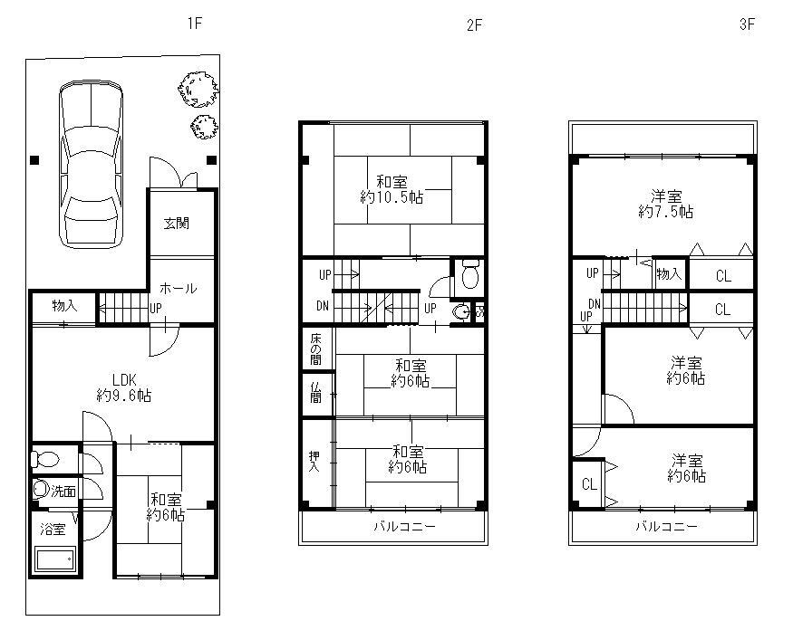
間取り 3LDK
建物面積 100.01m2(登記) 土地面積 71.17m2(登記)
築年月 1979年3月 築年数 築46年8ヶ月
おすすめポイント
価格変更いたしました!北山大宮に新物件登場!現在店舗付き住宅です。住宅リフォームも可能ですのでお問い合わせお待ちしております!現在空き家なのでいつでもご案内可能です♪
整形地
物件を見たい、物件や住環境の詳しい情報やローン相談など、
お問い合わせ先
(株)大和住建

詳細情報

価格 2780万円
所在地 京都府京都市北区紫竹下緑町周辺地図
交通
間取り 3LDK 築年月(築年数) 1979年3月(築46年8ヶ月)
建物面積 100.01m2(登記) 建物構造・規模 木造2階建
土地面積 71.17m2(登記) 土地権利 所有権
私道面積 借地期間・地代
接道状況 南5.7m 駐車場
用途地域 都市計画
建ぺい率/容積率 60%/200% 現況
地目 引渡可能時期 即時
情報提供元 SUUMO [060Z77889560] 情報公開日
情報更新日 次回更新予定日 随時

設備など

1種低層地域 - 即入居可 売主・代理 -
駐車2台以上 - 平屋 - 本下水
都市ガス - カウンターキッチン - 床暖房 -
ウォークインクローゼット - バリアフリー -
設備 収納スペース・上水道・本下水
リフォーム履歴 -
リノベーション履歴 -
備考 <物件名>紫竹下緑町(北大路駅) 2780万円/<土地権利>所有権/<間取り>3LDK/<特徴>価格変更!北山大宮すぐ店舗付き住宅です 完全住宅リフォームも可能です♪、即引渡可・南向き・全居室収納・整形地・2階建
販売戸数:1戸
特記事項 整形地

省エネ性能

エネルギー消費性能 -
断熱性能 -
目安光熱費 -

京都府京都市北区紫竹下緑町 周辺地図情報

地図
※地図上に表示される物件の位置は付近住所に所在することを表すものであり、実際の物件所在地とは異なる場合がございます。
   正確な物件所在地は、取扱い不動産会社にお問い合わせください。
物件を見たい、物件や住環境の詳しい情報やローン相談など、
お問い合わせ先
(株)大和住建

不動産会社情報

お問い合わせ先 商号:(株)大和住建
免許番号:京都府知事(2)第013568号
所在地:京都府京都市北区紫野雲林院町4-3
TEL:075-202-8975
取引態様:専属専任媒介
共有する
QRコード
物件を見たい、物件や住環境の詳しい情報やローン相談など、
お問い合わせ先
(株)大和住建

京都市北区の暮らしデータ

人口などの統計情報

世帯数 728744世帯
人口総数 1379529人
転入者数 85315人
転入率(人口1000人当たり)
61.84人
転出者数 80567人
転出率(人口1000人当たり)
58.40人
土地平均価格
住宅地
220880円/m2
商業地
1290411円/m2

結婚・育児の助成金

子育て関連の独自の取り組み (1)乳幼児の子育て支援機能や学童クラブ機能等を有する児童館設置。(2)こんにちはプレママ事業。(3)児童虐待未然防止に係る医療機関と子どもはぐくみ室及び京北出張所の連携。(4)子ども保健医療相談・事故防止センター設置。(5)京都はぐくみアプリ配信。(6)子育て支援コンシェルジュ育成。(7)骨髄移植手術等により免疫を喪失した子どもへのワクチン再接種費用助成制度。(8)子どもを共に育む京都市民憲章の制定、憲章の実践・普及の促進。(9)【京都安心すまい応援金】未就学の子どもがいる世帯を対象に、自己居住用として既存住宅を購入し、リフォームを行う場合に、最大200万円の応援金を交付。
出産祝い あり
公立保育所数 14所(うち0歳児保育を実施している保育所:13所)
私立保育所数 196所(うち0歳児保育を実施している保育所:188所)
保育所入所待機児童数 0人
認定こども園数 83園 預かり保育実施園数 公立:15園 私立:81園
学校給食 【小学校】完全給食【中学校】完全給食 家庭弁当等との選択制/デリバリー形式[運搬:ランチボックス、内容:完全給食] 給食なし
公立中学校の学校選択制 未実施
子ども・学生等医療費助成<通院>対象年齢 中学校卒業まで 子ども・学生等医療費助成<入院>対象年齢 中学校卒業まで

京都市北区の治安・ごみ収集情報

公共料金・インフラ

ガス料金(22m3使用した場合の月額) 大阪瓦斯株式会社4544円
水道料金(口径20mmで20m3の月額) 京都市3014円
下水道料金(20m3を使用した場合の月額) 京都市2013円
下水道普及率 99.5%

安心・安全

建物火災出火件数 158件
人口10000人当たり
1.08件
刑法犯認知件数 8104件
人口1000人当たり
5.54件
ハザード・防災マップ あり

医療

一般病院総数 89ヶ所
一般診療所総数 1622ヶ所
小児科医師数 397人
小児人口10000人当たり
27.26人
産婦人科医師数 201人
15~49歳女性人口1万人当たり
7.16人
介護保険料基準額(月額) 7160円

ごみ

家庭ごみ収集(可燃ごみ) 有料
備考
指定ごみ袋有料。
家庭ごみの分別方式 5分別8種〔燃やすごみ 缶・びん・ペットボトル プラスチック類 小型金属類・スプレー缶 雑がみ〕 拠点回収:移動式拠点回収):古紙(新聞・ダンボール) 雑がみ 紙パック 使用済てんぷら油 古着類 乾電池 ボタン電池 充電式電池 蛍光管 水銀体温計・水銀血圧計 小型家電 磁気テープ類 インクカートリッジ リユースびん 刃物類 使い捨てライター 陶磁器製の食器 せん定枝木の枝 石油類 医薬品・農薬 化学薬品・塗料・ワックス・絵の具 洗浄剤
家庭ごみの戸別収集 一部実施(原則定点としているが、一部地域で狭路等やむを得ない事情がある場合のみ実施。また、ごみ出しが困難な高齢者や障害のある方などの生活支援の一つとして、御自宅の玄関先までごみの収集に伺う「ごみ収集福祉サービス[まごころ収集]」を実施)
粗大ごみ収集 あり
備考
有料。事前申込制。
生ごみ処理機助成金制度 なし
上限金額
-
上限比率
-

京都市北区の住まいの給付金

中古購入

利子補給制度 なし
補助/助成金制度 あり
上限金額
200万円
備考
【京都安心すまい応援金】未就学の子どもがいる世帯を対象に、自己居住用として既存住宅を購入し、リフォームを行う場合に、最大200万円の応援金を交付。

増築・改築・改修

利子補給制度 なし
補助/助成金制度 あり
上限金額
(1)250万円(2)20万円(3)300万円
備考
(1)【指定京町家改修補助金】保全・継承に必要な修理工事等に係る費用の一部を助成。指定地区内の京町家の場合、補助対象費用の1/2(上限100万円)。個別指定の京町家の場合、補助対象費用の1/2(上限250万円)。(2)【個別指定京町家維持修繕補助金】個別指定の京町家のうち、日常的な維持修繕に係る費用の一部を助成。補助対象費用の1/2(上限20万円)。(3)【「まちの匠・ぷらす」京町家・木造住宅 耐震・防火改修支援事業】耐震改修工事や防火改修工事に要する費用の80%を補助(補助メニューごとに上限あり)。その他耐震診断士派遣(無料)等あり。
暮らしデータ提供元:生活ガイド.com
※行政機関により公表していない地域及びデータがございます。東京23区以外の政令指定都市は、市全体のデータとして表示しています。
※提供データには細心の注意を払っておりますが、調査後に変更がある場合があります。 最新の情報につきましては各市区役所までお問い合わせいただくか、自治体HPなどをご確認ください。

この物件を見た人はこんな物件も見ています

OCN×ドコモ光新規お申込みで合計最大137,280円相当おトク!特典の内訳・適用条件など詳細はこちら

京都市北区内の各駅の住みやすさ

他のエリアから探す

京都市北区の詳細地域から一戸建て物件を探す

大北山原谷乾町大宮一ノ井町大宮上ノ岸町大宮北箱ノ井町大宮北山ノ前町大宮玄琢北東町大宮玄琢北町大宮玄琢南町大宮釈迦谷大宮田尻町大宮中総門口町大宮中ノ社町大宮中林町大宮西小野堀町大宮西総門口町大宮西野山町大宮開町大宮南椿原町大宮薬師山西町大宮薬師山東町上賀茂赤尾町上賀茂朝露ケ原町上賀茂畔勝町上賀茂池殿町上賀茂馬ノ目町上賀茂岡本町上賀茂北大路町上賀茂菖蒲園町上賀茂竹ケ鼻町上賀茂津ノ国町上賀茂中大路町上賀茂中ノ坂町上賀茂中山町上賀茂狭間町上賀茂東後藤町上賀茂舟着町上賀茂松本町上賀茂御薗口町上賀茂深泥池町上賀茂向縄手町上賀茂本山上清蔵口町北野上白梅町北野紅梅町北野下白梅町衣笠赤阪町衣笠大祓町衣笠街道町衣笠鏡石町衣笠高橋町衣笠西開キ町衣笠東御所ノ内町衣笠東開キ町衣笠氷室町衣笠開キ町小松原北町小山板倉町小山北大野町小山下総町小山町小山西大野町小山初音町小山東玄以町小山東元町小山堀池町紫竹牛若町紫竹上梅ノ木町紫竹上芝本町紫竹上園生町紫竹上竹殿町紫竹上長目町紫竹北栗栖町紫竹栗栖町紫竹下芝本町紫竹下ノ岸町紫竹下緑町紫竹西南町紫竹高縄町紫竹竹殿町紫竹大門町紫竹西大門町紫竹西野山町紫竹東栗栖町紫竹東桃ノ本町大将軍川端町大将軍坂田町大将軍東鷹司町鷹峯北鷹峯町鷹峯旧土居町鷹峯黒門町鷹峯藤林町鷹峯南鷹峯町等持院北町等持院中町等持院西町等持院東町等持院南町西賀茂井ノ口町西賀茂今原町西賀茂大道口町西賀茂大深町西賀茂蟹ケ坂町西賀茂鹿ノ下町西賀茂上庄田町西賀茂川上町西賀茂北今原町西賀茂北川上町西賀茂下庄田町西賀茂中川上町西賀茂榿ノ木町西賀茂水垣町西賀茂南今原町西賀茂山ノ森町平野上柳町平野桜木町平野東柳町平野宮西町紫野今宮町紫野雲林院町紫野上柏野町紫野上御所田町紫野上鳥田町紫野上若草町紫野北舟岡町紫野郷ノ上町紫野下鳥田町紫野下若草町紫野十二坊町紫野大徳寺町紫野中柏野町紫野西蓮台野町紫野東御所田町紫野東泉堂町紫野東舟岡町紫野南舟岡町紫野宮西町

近辺の市区から探す

大津市京都市上京区京都市左京区京都市中京区京都市東山区京都市下京区京都市南区京都市右京区京都市伏見区京都市山科区京都市西京区向日市

周辺の駅から探す

京都市烏丸線
国際会館松ヶ崎北山北大路鞍馬口今出川丸太町烏丸御池

住宅ローンの返済額一覧

物件価格 2780万円に対して、年率 で、頭金 の場合
↓ボーナス 35年間 30年間 25年間 20年間 15年間 10年間
0万円 59,185円/月 68,215円/月 80,864円/月 99,848円/月 131,502円/月 194,829円/月
5万円 50,099円/月 59,239円/月 71,997円/月 91,090円/月 122,850円/月 186,284円/月
10万円 41,014円/月 50,263円/月 63,131円/月 82,331円/月 114,199円/月 177,738円/月
15万円 31,929円/月 41,288円/月 54,264円/月 73,572円/月 105,547円/月 169,193円/月
20万円 ローン不可 ローン不可 45,397円/月 64,814円/月 96,896円/月 160,648円/月
25万円 ローン不可 ローン不可 ローン不可 56,055円/月 88,245円/月 152,103円/月
30万円 ローン不可 ローン不可 ローン不可 ローン不可 79,593円/月 143,558円/月
支払い利息合計 2,068,760円~ 1,766,760円~ 1,469,550円~ 1,174,000円~ 879,690円~ 585,700円~
※元利均等返済方式で試算しています。 「円」の単位以下の端数金額は「切り捨て」として計算しております。
※金利は、固定金利として計算しております。
※上記の住宅ローン返済額一覧は、あくまで試算であり、将来の金利動向により、実際のご返済額とは異なります。
※ボーナス支払総額が総支払額の50%を超えている場合、上記の表では「ローン不可」となります。
※住宅ローン返済額一覧の数値は、住宅ローンのお申し込みやご融資をお約束するものではございません。
物件を見たい、物件や住環境の詳しい情報やローン相談など、
お問い合わせ先
(株)大和住建

掲載情報の著作権は提供元企業等に帰属します。
Copyright:(C) 2025 Recruit Co., Ltd.
アプリで簡単 物件探し 大手不動産サイトの情報から一括検!プッシュ通知で物件を見逃さない
App Storeからダウンロード Google Playで手に入れよう QRコード