アプリで簡単 物件探し 通知 共有 アプリならではの機能を使ってみる
中古住宅

愛知県清須市西市場1 新清洲駅 中古一戸建て・中古住宅

情報提供元
SUUMO
愛知県清須市西市場1 新清洲駅 中古一戸建て・中古住宅
価格 2499万円
交通
所在地 愛知県清須市西市場1周辺地図
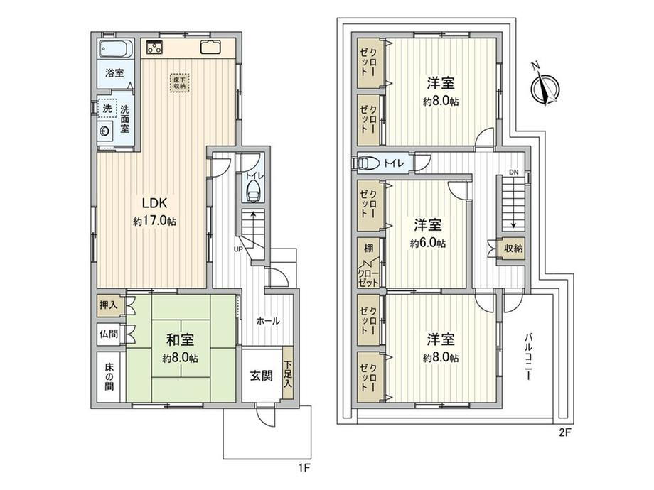
間取り 4LDK
建物面積 130.77m2(39.55坪)(登記) 土地面積 131.19m2(39.68坪)(登記)
築年月 1993年9月 築年数 築32年2ヶ月
おすすめポイント
-物件のおすすめポイント-▼特徴・ゆとりある4LDKの間取り・3面採光が確保された約17.0帖LDK・壁付キッチン採用(床下収納有)・和室は2WAY仕様・各階トイレ有・駐車スペース有(車種による)▼設備・浴室乾燥機・TVモニタ付インターホン▼2025年12月室内リフォーム内容【交換】キッチン、トイレ、洗面化粧台 等【張替】クロス、フロアタイル貼 等【その他】畳表替え、室内クリーニング、白蟻点検▼周辺環境・清洲小学校 徒歩6分(約450m)■ ご希望の住まい探しをお手伝いします ━━━━━・・・物件の詳細・ご相談はお気軽にお問い合わせください。
お問い合わせ先
三井のリハウス上小田井センター三井不動産リアルティ(株)
物件を見たい、物件や住環境の詳しい情報やローン相談など、
お問い合わせ先
三井のリハウス上小田井センター三井不動産リアルティ(株)

詳細情報

価格 2499万円
所在地 愛知県清須市西市場1周辺地図
交通
  • 名鉄名古屋本線 新清洲駅 徒歩12分乗換案内
間取り 4LDK 築年月(築年数) 1993年9月(築32年2ヶ月)
建物面積 130.77m2(39.55坪)(登記) 建物構造・規模 RC2階建
土地面積 131.19m2(39.68坪)(登記) 土地権利 所有権
私道面積 借地期間・地代
接道状況 駐車場
用途地域 1種中高 都市計画
建ぺい率/容積率 60%/200% 現況
地目 引渡可能時期 相談
情報提供元 SUUMO [050Z78615909] 情報公開日
情報更新日 次回更新予定日 随時

設備など

1種低層地域 - 即入居可 - 売主・代理 -
駐車2台以上 - 平屋 - 本下水 -
都市ガス カウンターキッチン - 床暖房 -
ウォークインクローゼット - バリアフリー -
設備 トイレ・収納スペース・都市ガス・浴室乾燥機・温水洗浄便座・モニタ付インターホン・風呂・トイレ2ヶ所・床下収納・衣類乾燥機・上水道・浄化槽・リフォーム
リフォーム履歴 2025年12月完了予定
 水回り設備交換:キッチン・トイレ
 内装リフォーム:床
 その他:全室クロス/室内ク…
※年月は一番古いリフォーム箇所を表します
リノベーション履歴 -
備考 <物件名>西市場1(新清洲駅) 2499万円/<土地権利>所有権/<間取り>4LDK/<リフォーム>●リフォーム:2025年12月完了予定(水回り設備交換:キッチン・トイレ、内装リフォーム:床、その他:全室クロス/室内ク…)※年月は一番古いリフォーム箇所を表します/<特徴>■三井のリハウス■鉄筋コンクリート造2階建て住宅全居室6帖以上の広さ、内装リフォーム・浴室乾燥機・全居室収納・LDK15畳以上・和室
販売戸数:1戸
特記事項

省エネ性能

エネルギー消費性能 -
断熱性能 -
目安光熱費 -

愛知県清須市西市場1 周辺地図情報

地図
※地図上に表示される物件の位置は付近住所に所在することを表すものであり、実際の物件所在地とは異なる場合がございます。
   正確な物件所在地は、取扱い不動産会社にお問い合わせください。
物件を見たい、物件や住環境の詳しい情報やローン相談など、
お問い合わせ先
三井のリハウス上小田井センター三井不動産リアルティ(株)

不動産会社情報

お問い合わせ先 商号:三井のリハウス上小田井センター三井不動産リアルティ(株)
免許番号:国土交通大臣(15)第000777号
所在地:愛知県名古屋市西区上小田井2-39
TEL:00786-01794272
取引態様:一般媒介
管理コード:FB3ASA16
共有する
QRコード
物件を見たい、物件や住環境の詳しい情報やローン相談など、
お問い合わせ先
三井のリハウス上小田井センター三井不動産リアルティ(株)

清須市の暮らしデータ

人口などの統計情報

世帯数 28907世帯
人口総数 68891人
転入者数 3601人
転入率(人口1000人当たり)
52.27人
転出者数 3738人
転出率(人口1000人当たり)
54.26人
土地平均価格
住宅地
100343円/m2
商業地
123000円/m2

結婚・育児の助成金

子育て関連の独自の取り組み (1)子育て情報発信事業としてスマートフォン用アプリ「キヨスマ」を制作し、市内の子育て関連施設のイベントやお出かけ情報等を掲載、子育て日記で健診や予防接種の管理ができる。(2)妊娠前から子育て期にわたり、あらゆる相談を受け付けるワンストップ窓口として「こども家庭センター」を設置している。(3)生後6ヶ月頃、生後10ヶ月頃の乳児のいる全ての家庭に、母子保健推進員などが訪問し、子育てに関する相談などに対応するとともに、5,000円分の「清須市こどもおむつ券」を配布する。(4)入学祝い品としてランドセルを贈呈している。
出産祝い なし
公立保育所数 12所(うち0歳児保育を実施している保育所:12所)
私立保育所数 0所(うち0歳児保育を実施している保育所:-)
保育所入所待機児童数 0人
認定こども園数 3園 預かり保育実施園数 公立:1園 私立:-
学校給食 【小学校】完全給食【中学校】完全給食
公立中学校の学校選択制 一部実施(一部特定地域のみ、申出により選択可能)
子ども・学生等医療費助成<通院>対象年齢 18歳3月末まで 子ども・学生等医療費助成<入院>対象年齢 18歳3月末まで

清須市の治安・ごみ収集情報

公共料金・インフラ

ガス料金(22m3使用した場合の月額) 東邦瓦斯株式会社5307円
水道料金(口径20mmで20m3の月額) 名古屋市2915円
清須市(春日地区)2915円
下水道料金(20m3を使用した場合の月額) 清須市2860円
下水道普及率 34.1%

安心・安全

建物火災出火件数 5件
人口10000人当たり
0.74件
刑法犯認知件数 395件
人口1000人当たり
5.86件
ハザード・防災マップ あり

医療

一般病院総数 2ヶ所
一般診療所総数 44ヶ所
小児科医師数 13人
小児人口10000人当たり
13.37人
産婦人科医師数 0人
15~49歳女性人口1万人当たり
0.00人
介護保険料基準額(月額) 5939円

ごみ

家庭ごみ収集(可燃ごみ) 有料
備考
指定ごみ袋有料。指定ごみ袋にごみ処理手数料を含む。
家庭ごみの分別方式 5分別16種〔可燃ごみ 不燃ごみ 資源(空きビン、空き缶・金物、古着、古紙・雑紙[新聞紙、書籍・雑誌、牛乳パック、雑紙、ダンボール]、ペットボトル、ペットボトルキャップ) プラスチック製容器包装 発火性危険物(スプレー缶・カセットボンベ類、使い捨てライター、乾電池)〕 拠点回収:使用済み小型家電 使用済み天ぷら油 使用済みインクカートリッジ 小型充電池式電池
家庭ごみの戸別収集 未実施
粗大ごみ収集 あり
備考
有料。戸別収集。事前申込制。
生ごみ処理機助成金制度 あり
上限金額
15000円
上限比率
50.0%

清須市の住まいの給付金

中古購入

利子補給制度 なし
補助/助成金制度 なし

増築・改築・改修

利子補給制度 なし
補助/助成金制度 あり
上限金額
100万円
備考
【民間木造住宅耐震改修費補助金】診断結果が「1.0未満」の住宅の評点を0.3以上引上げかつ1.0以上にする工事が対象。他要件あり。上限100万円。
暮らしデータ提供元:生活ガイド.com
※行政機関により公表していない地域及びデータがございます。東京23区以外の政令指定都市は、市全体のデータとして表示しています。
※提供データには細心の注意を払っておりますが、調査後に変更がある場合があります。 最新の情報につきましては各市区役所までお問い合わせいただくか、自治体HPなどをご確認ください。

この物件を見た人はこんな物件も見ています

OCN×ドコモ光新規お申込みで合計最大137,280円相当おトク!特典の内訳・適用条件など詳細はこちら

清須市内の各駅の住みやすさ

住宅ローンの返済額一覧

物件価格 2499万円に対して、年率 で、頭金 の場合
↓ボーナス 35年間 30年間 25年間 20年間 15年間 10年間
0万円 51,891円/月 59,807円/月 70,898円/月 87,542円/月 115,295円/月 170,817円/月
5万円 42,805円/月 50,832円/月 62,031円/月 78,784円/月 106,643円/月 162,272円/月
10万円 33,720円/月 41,856円/月 53,165円/月 70,025円/月 97,992円/月 153,727円/月
15万円 ローン不可 32,880円/月 44,298円/月 61,266円/月 89,340円/月 145,181円/月
20万円 ローン不可 ローン不可 ローン不可 52,508円/月 80,689円/月 136,636円/月
25万円 ローン不可 ローン不可 ローン不可 ローン不可 72,037円/月 128,091円/月
30万円 ローン不可 ローン不可 ローン不可 ローン不可 63,386円/月 119,546円/月
支払い利息合計 1,811,430円~ 1,549,880円~ 1,287,250円~ 1,028,560円~ 772,430円~ 514,260円~
※元利均等返済方式で試算しています。 「円」の単位以下の端数金額は「切り捨て」として計算しております。
※金利は、固定金利として計算しております。
※上記の住宅ローン返済額一覧は、あくまで試算であり、将来の金利動向により、実際のご返済額とは異なります。
※ボーナス支払総額が総支払額の50%を超えている場合、上記の表では「ローン不可」となります。
※住宅ローン返済額一覧の数値は、住宅ローンのお申し込みやご融資をお約束するものではございません。
物件を見たい、物件や住環境の詳しい情報やローン相談など、
お問い合わせ先
三井のリハウス上小田井センター三井不動産リアルティ(株)

掲載情報の著作権は提供元企業等に帰属します。
Copyright:(C) 2025 Recruit Co., Ltd.
アプリで簡単 物件探し 大手不動産サイトの情報から一括検!プッシュ通知で物件を見逃さない
App Storeからダウンロード Google Playで手に入れよう QRコード