アプリで簡単 物件探し 通知 共有 アプリならではの機能を使ってみる
中古住宅

長野県中野市南宮 信州中野駅 中古一戸建て・中古住宅

情報提供元
SUUMO
長野県中野市南宮 信州中野駅 中古一戸建て・中古住宅
価格 2498万円
交通
所在地 長野県中野市南宮周辺地図
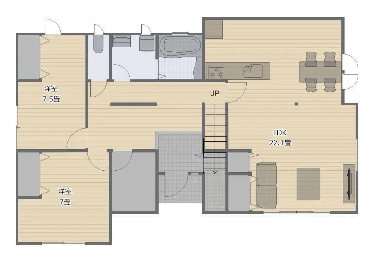
間取り 4SLDK
建物面積 129.02m2(39.02坪) 土地面積 240m2(72.59坪)
築年月 1966年4月 築年数 築59年9ヶ月
おすすめポイント
中野小学校まで約1500m 徒歩約19分南宮中学校まで約250m 徒歩約4分当社は、宅地建物取引士によるご購入相談はもちろん、住宅ローンのご相談も承っております。支払っていけるか…、審査が通るか…など、住宅ローンのご心配ごとは当社へご相談ください!
日当り良好・駐車場3台分以上・整形地・浴室1坪以上
お問い合わせ先
イエステーション(株)熊木住建
物件を見たい、物件や住環境の詳しい情報やローン相談など、
お問い合わせ先
イエステーション(株)熊木住建

詳細情報

価格 2498万円
所在地 長野県中野市南宮周辺地図
交通
  • 長野電鉄長野線 信州中野駅 徒歩17分乗換案内
  • 長野電鉄長野線 延徳駅 徒歩20分乗換案内
  • 長野電鉄長野線 中野松川駅 徒歩22分乗換案内
間取り 4SLDK 築年月(築年数) 1966年4月(築59年9ヶ月)
建物面積 129.02m2(39.02坪) 建物構造・規模 木造2階建
土地面積 240m2(72.59坪) 土地権利 所有権
私道面積 借地期間・地代
接道状況 南4m接面15.9m 駐車場
用途地域 1種低層 都市計画
建ぺい率/容積率 50%/80% 現況
地目 引渡可能時期 相談
情報提供元 SUUMO [040Z78807245] 情報公開日
情報更新日 次回更新予定日 随時

設備など

1種低層地域 即入居可 - 売主・代理 -
駐車2台以上 平屋 - 本下水
都市ガス カウンターキッチン - 床暖房 -
ウォークインクローゼット - バリアフリー -
設備 バルコニー・トイレ・収納スペース・洗面所・都市ガス・シャンプードレッサ・温水洗浄便座・システムキッチン・風呂・上水道・本下水・リフォーム・フローリング
リフォーム履歴 2025年11月完了
 水回り設備交換:キッチン・浴室・トイレ
 内装リフォーム:壁・床
 その他:洗面、給湯器
2025年11月完了
 その他リフォーム:外壁
※年月は一番古いリフォーム箇所を表します
リノベーション履歴 -
備考 <物件名>南宮(信州中野駅) 2498万円/<駐車場>カースペース/<土地権利>所有権/<間取り>4LDK+S(納戸)/<リフォーム>●リフォーム:2025年11月完了(水回り設備交換:キッチン・浴室・トイレ、内装リフォーム:壁・床、その他:洗面、給湯器)、2025年11月完了(その他リフォーム:外壁)※年月は一番古いリフォーム箇所を表します/<その他制限事項>令和7年一部取壊し予定 ■長野市景観計画 ■前所有者の売却理由:相続資産の整理 ■建物表題変更登記(床面積)申請予定/<特徴>全水廻り新品交換♪全居室6帖以上、広々リビングのリフォーム済み4SLDK☆、駐車3台以上可・LDK20畳以上・土地50坪以上・内外装リフォーム・南向き
販売戸数:1戸
法令等制限:■昭和47年4月増築、昭和54年9月一部取毀、昭和54年12月変更・増築
特記事項 日当り良好・駐車場3台分以上・整形地・浴室1坪以上

省エネ性能

エネルギー消費性能 -
断熱性能 -
目安光熱費 -

長野県中野市南宮 周辺地図情報

地図
※地図上に表示される物件の位置は付近住所に所在することを表すものであり、実際の物件所在地とは異なる場合がございます。
   正確な物件所在地は、取扱い不動産会社にお問い合わせください。
物件を見たい、物件や住環境の詳しい情報やローン相談など、
お問い合わせ先
イエステーション(株)熊木住建

不動産会社情報

お問い合わせ先 商号:イエステーション(株)熊木住建
免許番号:長野県知事(4)第005081号
所在地:長野県長野市神明7
TEL:026-285-0132
取引態様:媒介
共有する
QRコード
物件を見たい、物件や住環境の詳しい情報やローン相談など、
お問い合わせ先
イエステーション(株)熊木住建

中野市の暮らしデータ

人口などの統計情報

世帯数 15773世帯
人口総数 42586人
転入者数 1304人
転入率(人口1000人当たり)
30.62人
転出者数 1411人
転出率(人口1000人当たり)
33.13人
土地平均価格
住宅地
23566円/m2
商業地
36150円/m2

結婚・育児の助成金

子育て関連の独自の取り組み (1)ブックスタート事業(ファーストブック-7ヶ月児健診時に絵本を2冊贈呈。セカンドブック-3歳児健診時に絵本を1冊贈呈)。(2)子育て応援ガイドブックの配布。(3)インフルエンザ予防接種及びおたふくかぜ予防接種費用の一部助成。(4)新生児聴覚検査の一部助成。(5)なかの子育て応援アプリの導入。(6)「歯っぴー親子むし歯予防教室」を開催し、乳幼児期から親子のむし歯予防に取り組んでいる。(7)オプショナル新生児スクリーニング検査の助成。(8)中野市健康をこどもにつなぐ事業~葉酸サプリメント配布事業~の実施。(9)もうすぐパパママ教室の開催(主に父親支援の内容を入れた教室)。
出産祝い なし
公立保育所数 9所(うち0歳児保育を実施している保育所:6所)
私立保育所数 1所(うち0歳児保育を実施している保育所:1所)
保育所入所待機児童数 0人
認定こども園数 1園 預かり保育実施園数 公立:- 私立:1園
学校給食 【小学校】完全給食【中学校】完全給食
公立中学校の学校選択制 未実施
子ども・学生等医療費助成<通院>対象年齢 18歳3月末まで 子ども・学生等医療費助成<入院>対象年齢 中学校卒業まで

中野市の治安・ごみ収集情報

公共料金・インフラ

ガス料金(22m3使用した場合の月額) 長野都市ガス株式会社3928円
水道料金(口径20mmで20m3の月額) 中野市3905円
下水道料金(20m3を使用した場合の月額) 中野市3575円
下水道普及率 73.5%

安心・安全

建物火災出火件数 7件
人口10000人当たり
1.65件
刑法犯認知件数 232件
人口1000人当たり
5.48件
ハザード・防災マップ あり

医療

一般病院総数 2ヶ所
一般診療所総数 29ヶ所
小児科医師数 11人
小児人口10000人当たり
22.99人
産婦人科医師数 7人
15~49歳女性人口1万人当たり
9.31人
介護保険料基準額(月額) 5780円

ごみ

家庭ごみ収集(可燃ごみ) 有料
備考
指定ごみ袋有料。
家庭ごみの分別方式 9分別15種〔可燃ごみ 埋立ごみ プラスチック製容器包装 金属類 古紙(紙パック、ダンボール、新聞紙、雑誌類) ビン(無色透明びん、茶色びん、その他の色) ペットボトル 白色トレイ 有害ごみ(乾電池・ボタン電池・コイン電池・小型充電式電池・体温計・鏡、蛍光灯・グローランプ・電球)〕
家庭ごみの戸別収集 一部実施(65歳以上・身体障がい者のみ世帯等の場合。資源物のみ)
粗大ごみ収集 あり
備考
一部無料。市内2ヶ所で年2回実施。
生ごみ処理機助成金制度 あり
上限金額
40000円
上限比率
50.0%

中野市の住まいの給付金

中古購入

利子補給制度 なし
補助/助成金制度 なし

増築・改築・改修

利子補給制度 なし
補助/助成金制度 あり
上限金額
(1)全額(2)100万円(3)83万円
備考
(1)【耐震診断士派遣】無料で耐震診断士を派遣。要件あり。(2)【耐震改修工事助成】(a)耐震改修工事費用の8/10以内、上限100万円。要件あり。(b)除却工事費用の1/2以内、上限83.8万円。要件あり。(3)【住宅防災・衛生機能向上事業】(a)火災警報器設置住宅は5万円。(b)下水道接続住宅は10万円。(c)耐震改修工事の1/2以内上限80万円。(d)外構防災住宅は10万円。※(a)を除き、高齢者のみ居住の住宅は3万円加算。
暮らしデータ提供元:生活ガイド.com
※行政機関により公表していない地域及びデータがございます。東京23区以外の政令指定都市は、市全体のデータとして表示しています。
※提供データには細心の注意を払っておりますが、調査後に変更がある場合があります。 最新の情報につきましては各市区役所までお問い合わせいただくか、自治体HPなどをご確認ください。
OCN×ドコモ光新規お申込みで合計最大137,280円相当おトク!特典の内訳・適用条件など詳細はこちら

中野市内の各駅の住みやすさ

他のエリアから探す

中野市の詳細地域から一戸建て物件を探す

大字一本木大字岩船大字江部大字金井大字上今井大字小田中大字田麦大字七瀬大字間長瀬大字三ツ和大字吉田南宮三好町

近辺の市区から探す

須坂市飯山市上高井郡小布施町上高井郡高山村下高井郡山ノ内町上水内郡飯綱町

周辺の駅から探す

長野電鉄長野線
小布施都住桜沢延徳信州中野中野松川信濃竹原|夜間瀬|上条

長野県中野市で他のジャンルから探す

住宅ローンの返済額一覧

物件価格 2498万円に対して、年率 で、頭金 の場合
↓ボーナス 35年間 30年間 25年間 20年間 15年間 10年間
0万円 51,865円/月 59,778円/月 70,863円/月 87,499円/月 115,237円/月 170,731円/月
5万円 42,779円/月 50,802円/月 61,996円/月 78,740円/月 106,586円/月 162,186円/月
10万円 33,694円/月 41,826円/月 53,129円/月 69,981円/月 97,934円/月 153,641円/月
15万円 ローン不可 32,851円/月 44,262円/月 61,223円/月 89,283円/月 145,096円/月
20万円 ローン不可 ローン不可 ローン不可 52,464円/月 80,631円/月 136,551円/月
25万円 ローン不可 ローン不可 ローン不可 ローン不可 71,980円/月 128,006円/月
30万円 ローン不可 ローン不可 ローン不可 ローン不可 63,328円/月 119,461円/月
支払い利息合計 1,810,510円~ 1,549,440円~ 1,286,450円~ 1,028,000円~ 771,990円~ 514,060円~
※元利均等返済方式で試算しています。 「円」の単位以下の端数金額は「切り捨て」として計算しております。
※金利は、固定金利として計算しております。
※上記の住宅ローン返済額一覧は、あくまで試算であり、将来の金利動向により、実際のご返済額とは異なります。
※ボーナス支払総額が総支払額の50%を超えている場合、上記の表では「ローン不可」となります。
※住宅ローン返済額一覧の数値は、住宅ローンのお申し込みやご融資をお約束するものではございません。
物件を見たい、物件や住環境の詳しい情報やローン相談など、
お問い合わせ先
イエステーション(株)熊木住建

掲載情報の著作権は提供元企業等に帰属します。
Copyright:(C) 2025 Recruit Co., Ltd.
アプリで簡単 物件探し 大手不動産サイトの情報から一括検!プッシュ通知で物件を見逃さない
App Storeからダウンロード Google Playで手に入れよう QRコード