アプリで簡単 物件探し 通知 共有 アプリならではの機能を使ってみる
中古住宅

神奈川県高座郡寒川町一之宮4 寒川駅 中古一戸建て・中古住宅

情報提供元
SUUMO
神奈川県高座郡寒川町一之宮4 寒川駅 中古一戸建て・中古住宅
価格 4780万円
交通
所在地 神奈川県高座郡寒川町一之宮4周辺地図
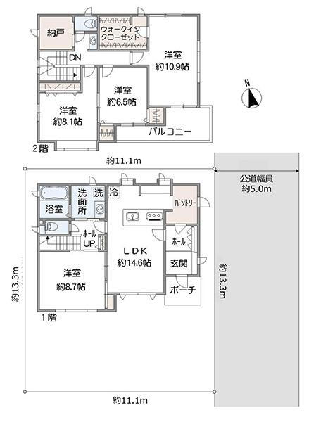
間取り 4LDK
建物面積 92.52m2(登記) 土地面積 108.36m2(登記)
築年月 2024年6月 築年数 築1年5ヶ月
おすすめポイント
性能の高さ×標準仕様の充実度×長期的な安心が魅力の一条工務店施工!◇太陽光発電システム搭載!◇長期優良住宅認定済!◇全館除湿&24時間換気システム!1年中快適に過ごせます!◇カースペース2台分有(車種によります)◇和室約3.0帖と繋げて 17帖超の広々LDKとしても利用可能!◇2階に約2.5帖の広々ウォークインクローゼット有! ファミリークローゼットとして家族全員の服等を収納できます!◇キッチンは食洗機付きのカウンターキッチン♪◇キッチンには備え付けのカップボード有!◇人気のリビングイン階段! 帰宅後必ずリビングを通る動線で自然と会話が弾みます!
日当り良好・閑静な住宅街・駐車場2台分・オール電化・整形地・長期優良住宅・浴室1坪以上
物件を見たい、物件や住環境の詳しい情報やローン相談など、
お問い合わせ先
SHONAN Sky(株)

詳細情報

価格 4780万円
所在地 神奈川県高座郡寒川町一之宮4周辺地図
交通
間取り 4LDK 築年月(築年数) 2024年6月(築1年5ヶ月)
建物面積 92.52m2(登記) 建物構造・規模 木造2階建
土地面積 108.36m2(登記) 土地権利 所有権
私道面積 借地期間・地代
接道状況 東5m接面5m 北3m接面4.5m 駐車場
用途地域 準工業 都市計画
建ぺい率/容積率 60%/200% 現況
地目 引渡可能時期 相談
情報提供元 SUUMO [030Z78382622] 情報公開日
情報更新日 次回更新予定日 随時

設備など

1種低層地域 - 即入居可 - 売主・代理 -
駐車2台以上 平屋 - 本下水
都市ガス - カウンターキッチン - 床暖房
ウォークインクローゼット バリアフリー -
設備 トイレ・収納スペース・浴室乾燥機・ウォークインクローゼット・温水洗浄便座・システムキッチン・モニタ付インターホン・風呂・対面K・トイレ2ヶ所・IHクッキングヒータ・浄水器・床暖房・衣類乾燥機・食器洗浄乾燥機・上水道・本下水・駐車場2台分・太陽光システム・省エネ給湯器
リフォーム履歴 -
リノベーション履歴 -
備考 <物件名>一之宮4(寒川駅) 4780万円/<駐車場>カースペース/<土地権利>所有権/<間取り>4LDK/<特徴>~一条工務店施工の注文住宅~一条工務店の保証(最長30年)引き継げます!、長期優良住宅認定通知書・建築確認完了検査済証・新築時・増改築時の設計図・太陽光発電システム・地盤調査済
販売戸数:1戸
法令等制限:河川法、高度地区、隅切り有
特記事項 日当り良好・閑静な住宅街・駐車場2台分・オール電化・整形地・長期優良住宅・浴室1坪以上

省エネ性能

エネルギー消費性能 -
断熱性能 -
目安光熱費 -

神奈川県高座郡寒川町一之宮4 周辺地図情報

地図
※地図上に表示される物件の位置は付近住所に所在することを表すものであり、実際の物件所在地とは異なる場合がございます。
   正確な物件所在地は、取扱い不動産会社にお問い合わせください。
物件を見たい、物件や住環境の詳しい情報やローン相談など、
お問い合わせ先
SHONAN Sky(株)

不動産会社情報

お問い合わせ先 商号:SHONAN Sky(株)
免許番号:神奈川県知事(1)第031714号
所在地:神奈川県藤沢市本鵠沼4-1-5
TEL:0466-24-2020
取引態様:専任媒介
共有する
QRコード
物件を見たい、物件や住環境の詳しい情報やローン相談など、
お問い合わせ先
SHONAN Sky(株)

この物件を見た人はこんな物件も見ています

OCN×ドコモ光新規お申込みで合計最大137,280円相当おトク!特典の内訳・適用条件など詳細はこちら

高座郡寒川町内の各駅の住みやすさ

他のエリアから探す

高座郡寒川町の詳細地域から一戸建て物件を探す

一之宮岡田倉見小谷中瀬宮山

近辺の市区から探す

横浜市泉区平塚市藤沢市茅ヶ崎市厚木市伊勢原市海老名市綾瀬市中郡大磯町

周辺の駅から探す

相模線
社家門沢橋倉見宮山寒川香川北茅ケ崎茅ケ崎

神奈川県高座郡寒川町で他のジャンルから探す

住宅ローンの返済額一覧

物件価格 4780万円に対して、年率 で、頭金 の場合
↓ボーナス 35年間 30年間 25年間 20年間 15年間 10年間
0万円 111,102円/月 128,053円/月 151,798円/月 187,435円/月 246,855円/月 365,731円/月
5万円 102,017円/月 119,077円/月 142,931円/月 178,677円/月 238,203円/月 357,186円/月
10万円 92,931円/月 110,101円/月 134,065円/月 169,918円/月 229,552円/月 348,641円/月
15万円 83,846円/月 101,126円/月 125,198円/月 161,159円/月 220,900円/月 340,096円/月
20万円 74,760円/月 92,150円/月 116,331円/月 152,400円/月 212,249円/月 331,551円/月
25万円 65,675円/月 83,174円/月 107,464円/月 143,642円/月 203,598円/月 323,006円/月
30万円 56,589円/月 74,198円/月 98,598円/月 134,883円/月 194,946円/月 314,461円/月
支払い利息合計 3,884,610円~ 3,317,440円~ 2,755,100円~ 2,196,880円~ 1,643,230円~ 1,094,060円~
※元利均等返済方式で試算しています。 「円」の単位以下の端数金額は「切り捨て」として計算しております。
※金利は、固定金利として計算しております。
※上記の住宅ローン返済額一覧は、あくまで試算であり、将来の金利動向により、実際のご返済額とは異なります。
※ボーナス支払総額が総支払額の50%を超えている場合、上記の表では「ローン不可」となります。
※住宅ローン返済額一覧の数値は、住宅ローンのお申し込みやご融資をお約束するものではございません。
物件を見たい、物件や住環境の詳しい情報やローン相談など、
お問い合わせ先
SHONAN Sky(株)

掲載情報の著作権は提供元企業等に帰属します。
Copyright:(C) 2025 Recruit Co., Ltd.
アプリで簡単 物件探し 大手不動産サイトの情報から一括検!プッシュ通知で物件を見逃さない
App Storeからダウンロード Google Playで手に入れよう QRコード