アプリで簡単 物件探し 通知 共有 アプリならではの機能を使ってみる
中古住宅

神奈川県茅ヶ崎市菱沼1 辻堂駅 中古一戸建て・中古住宅

情報提供元
SUUMO
神奈川県茅ヶ崎市菱沼1 辻堂駅 中古一戸建て・中古住宅
価格 3180万円
交通
所在地 神奈川県茅ヶ崎市菱沼1周辺地図
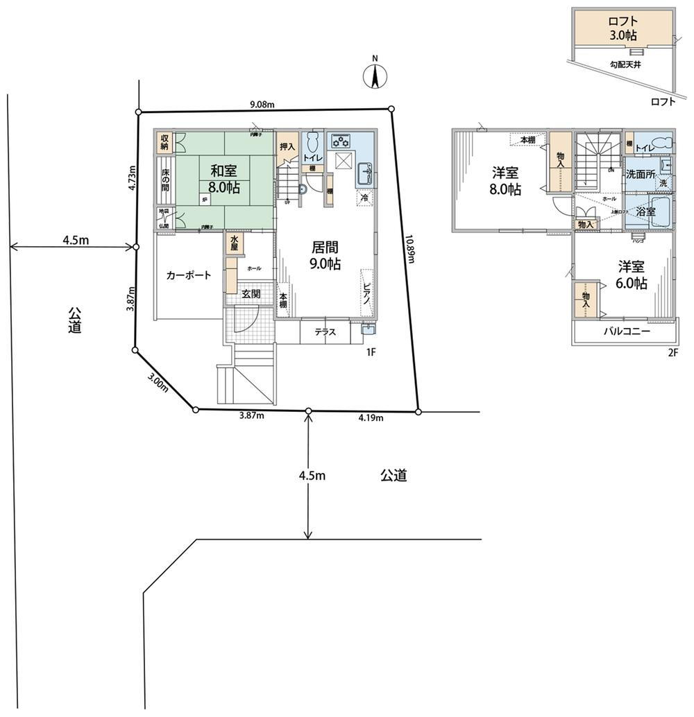
間取り 3SDK
建物面積 85.57m2(実測) 土地面積 101.59m2(登記)
築年月 2000年12月 築年数 築24年11ヶ月
おすすめポイント
・神奈川エコハウス施工の注文住宅♪・大型開発分譲地内の閑静な住宅街♪・室内大変綺麗にお使いです♪角地、開発分譲地内、整形地、2階建
角地・整形地
物件を見たい、物件や住環境の詳しい情報やローン相談など、
お問い合わせ先
(株)小浜土地建物

詳細情報

価格 3180万円
所在地 神奈川県茅ヶ崎市菱沼1周辺地図
交通
  • JR東海道本線 辻堂駅 徒歩23分乗換案内
  • JR東海道本線 茅ケ崎駅 徒歩3.5km乗換案内
間取り 3SDK 築年月(築年数) 2000年12月(築24年11ヶ月)
建物面積 85.57m2(実測) 建物構造・規模 木造2階建
土地面積 101.59m2(登記) 土地権利 所有権
私道面積 借地期間・地代
接道状況 西4.5m接面8.6m 南4.5m接面11m 二方道路 駐車場
用途地域 1種住居 都市計画
建ぺい率/容積率 60%/200% 現況
地目 引渡可能時期 相談
情報提供元 SUUMO [030Z77208426] 情報公開日
情報更新日 次回更新予定日 随時

設備など

1種低層地域 - 即入居可 - 売主・代理 -
駐車2台以上 - 平屋 - 本下水
都市ガス - カウンターキッチン - 床暖房 -
ウォークインクローゼット - バリアフリー -
設備 LPガス・上水道・本下水
リフォーム履歴 -
リノベーション履歴 -
備考 <物件名>菱沼1(辻堂駅) 3180万円/<駐車場>カースペース/<土地権利>所有権/<間取り>3DK+S(納戸)/<特徴>東海道線「辻堂」駅まで徒歩23分♪分譲地内なので静かな環境です♪、角地・整形地・2階建・開発分譲地内
販売戸数:1戸
法令等制限:景観法、準防火地域
特記事項 角地・整形地

省エネ性能

エネルギー消費性能 -
断熱性能 -
目安光熱費 -

神奈川県茅ヶ崎市菱沼1 周辺地図情報

地図
※地図上に表示される物件の位置は付近住所に所在することを表すものであり、実際の物件所在地とは異なる場合がございます。
   正確な物件所在地は、取扱い不動産会社にお問い合わせください。
物件を見たい、物件や住環境の詳しい情報やローン相談など、
お問い合わせ先
(株)小浜土地建物

不動産会社情報

お問い合わせ先 商号:(株)小浜土地建物
免許番号:神奈川県知事(7)第021255号
所在地:神奈川県茅ヶ崎市浜竹3-3-37
TEL:0467-89-2622
取引態様:専任媒介
共有する
QRコード
物件を見たい、物件や住環境の詳しい情報やローン相談など、
お問い合わせ先
(株)小浜土地建物

茅ヶ崎市の暮らしデータ

人口などの統計情報

世帯数 102364世帯
人口総数 247785人
転入者数 10857人
転入率(人口1000人当たり)
43.82人
転出者数 8310人
転出率(人口1000人当たり)
33.54人
土地平均価格
住宅地
220175円/m2
商業地
424000円/m2

結婚・育児の助成金

子育て関連の独自の取り組み ほしつ☆メソッド(子どもへのほめ方・叱り方・伝え方を練習して身につける講座。通常講座は2時間×5回、入門講座は2時間×1回)。
出産祝い なし
公立保育所数 7所(うち0歳児保育を実施している保育所:7所)
私立保育所数 40所(うち0歳児保育を実施している保育所:38所)
保育所入所待機児童数 9人
認定こども園数 8園 預かり保育実施園数 公立:- 私立:9園
学校給食 【小学校】完全給食【中学校】家庭弁当等との選択制/デリバリー形式[運搬:ランチボックス、内容:完全給食] 10月から6校で給食開始。他7校は来年5月から実施。
公立中学校の学校選択制 一部実施
子ども・学生等医療費助成<通院>対象年齢 18歳3月末まで 子ども・学生等医療費助成<入院>対象年齢 18歳3月末まで

茅ヶ崎市の治安・ごみ収集情報

公共料金・インフラ

ガス料金(22m3使用した場合の月額) 東京瓦斯株式会社(東京地区等)3926円
水道料金(口径20mmで20m3の月額) 神奈川県営水道2509円
下水道料金(20m3を使用した場合の月額) 茅ヶ崎市1878円
下水道普及率 95.8%

安心・安全

建物火災出火件数 33件
人口10000人当たり
1.36件
刑法犯認知件数 1029件
人口1000人当たり
4.25件
ハザード・防災マップ あり

医療

一般病院総数 6ヶ所
一般診療所総数 161ヶ所
小児科医師数 28人
小児人口10000人当たり
9.13人
産婦人科医師数 18人
15~49歳女性人口1万人当たり
3.74人
介護保険料基準額(月額) 5380円

ごみ

家庭ごみ収集(可燃ごみ) 有料
備考
指定ごみ袋有料。生活系ごみ(可燃ごみ、不燃ごみ)が対象で単純従量制(2.0円/1リットル)。指定ごみ袋対象外の品目あり([1]落ち葉、雑草等、[2]紙おむつ・尿とりパット、[3]ストーマ袋・腹膜透析パック、[4]乾電池・蛍光管・水銀式体温計、[5]ボランティアごみ)。
家庭ごみの分別方式 3分別18種〔燃やせるごみ 燃やせないごみ(乾電池、水銀式体温計、蛍光灯、その他燃やせないごみ) 資源物(びん、かん、ペットボトル、古紙類[ダンボール、飲料用紙パック、新聞・チラシ、本・雑誌、シュレッダーで裁断した紙、雑紙]、衣類・布類、プラスチック製容器包装類、廃食用油、金属類[指定8品目])〕 拠点回収:使用済小型家電
家庭ごみの戸別収集 一部実施(安心まごころ収集、剪定枝)
粗大ごみ収集 あり
備考
有料。指定場所へ持ち出し。事前申込制。
生ごみ処理機助成金制度 あり
上限金額
25000円
上限比率
33.3%

茅ヶ崎市の住まいの給付金

中古購入

利子補給制度 なし
補助/助成金制度 なし

増築・改築・改修

利子補給制度 なし
補助/助成金制度 あり
上限金額
(1)9.9万円(2)70万円(3)25万円(4)30万円
備考
(1)【耐震診断補助金】1981年5月31日以前建築の住宅の耐震診断費用の助成(最大9.9万円)。他要件あり。(2)【木造住宅耐震補強事業補助金】(1)の補助を受け、総合評点1.0未満の住宅の設計及び工事監理費用、最大70万円の助成。他要件あり。(3)【耐震シェルター設置事業補助金】耐震シェルター設置費用の1/2(上限25万円)を助成。他要件あり。(4)【危険ブロック塀等撤去費補助金】危険ブロック塀等の撤去に要する費用の一部を助成。最大30万円の助成。他要件あり。
暮らしデータ提供元:生活ガイド.com
※行政機関により公表していない地域及びデータがございます。東京23区以外の政令指定都市は、市全体のデータとして表示しています。
※提供データには細心の注意を払っておりますが、調査後に変更がある場合があります。 最新の情報につきましては各市区役所までお問い合わせいただくか、自治体HPなどをご確認ください。

この物件を見た人はこんな物件も見ています

OCN×ドコモ光新規お申込みで合計最大137,280円相当おトク!特典の内訳・適用条件など詳細はこちら

茅ヶ崎市内の各駅の住みやすさ

住宅ローンの返済額一覧

物件価格 3180万円に対して、年率 で、頭金 の場合
↓ボーナス 35年間 30年間 25年間 20年間 15年間 10年間
0万円 69,568円/月 80,182円/月 95,051円/月 117,366円/月 154,573円/月 229,009円/月
5万円 60,483円/月 71,207円/月 86,184円/月 108,607円/月 145,921円/月 220,464円/月
10万円 51,397円/月 62,231円/月 77,318円/月 99,848円/月 137,270円/月 211,919円/月
15万円 42,312円/月 53,255円/月 68,451円/月 91,090円/月 128,618円/月 203,374円/月
20万円 ローン不可 44,280円/月 59,584円/月 82,331円/月 119,967円/月 194,829円/月
25万円 ローン不可 ローン不可 50,717円/月 73,572円/月 111,315円/月 186,284円/月
30万円 ローン不可 ローン不可 ローン不可 64,814円/月 102,664円/月 177,738円/月
支払い利息合計 2,429,620円~ 2,078,240円~ 1,728,200円~ 1,380,320円~ 1,032,470円~ 687,300円~
※元利均等返済方式で試算しています。 「円」の単位以下の端数金額は「切り捨て」として計算しております。
※金利は、固定金利として計算しております。
※上記の住宅ローン返済額一覧は、あくまで試算であり、将来の金利動向により、実際のご返済額とは異なります。
※ボーナス支払総額が総支払額の50%を超えている場合、上記の表では「ローン不可」となります。
※住宅ローン返済額一覧の数値は、住宅ローンのお申し込みやご融資をお約束するものではございません。
物件を見たい、物件や住環境の詳しい情報やローン相談など、
お問い合わせ先
(株)小浜土地建物

掲載情報の著作権は提供元企業等に帰属します。
Copyright:(C) 2025 Recruit Co., Ltd.
アプリで簡単 物件探し 大手不動産サイトの情報から一括検!プッシュ通知で物件を見逃さない
App Storeからダウンロード Google Playで手に入れよう QRコード