アプリで簡単 物件探し 通知 共有 アプリならではの機能を使ってみる
中古住宅

神奈川県鎌倉市山ノ内 北鎌倉駅 中古一戸建て・中古住宅

情報提供元
SUUMO
神奈川県鎌倉市山ノ内 北鎌倉駅 中古一戸建て・中古住宅
価格 10500万円
交通
所在地 神奈川県鎌倉市山ノ内周辺地図
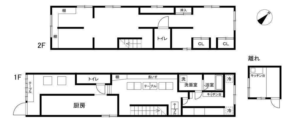
間取り 5K
建物面積 115.09m2(登記) 土地面積 181.81m2(登記)
築年月 1979年8月 築年数 築46年3ヶ月
おすすめポイント
◆北鎌倉駅東口から徒歩3分。まるで京町屋のような和風店舗兼住居。◆円覚寺と明月院の間に位置し、観光客が多く行き交う好立地です。◆現在1階は空き店舗の為、リノベーションして色々と活用出来ます。
物件を見たい、物件や住環境の詳しい情報やローン相談など、
お問い合わせ先
(株)COCO-HOUSE

詳細情報

価格 10500万円
所在地 神奈川県鎌倉市山ノ内周辺地図
交通
間取り 5K 築年月(築年数) 1979年8月(築46年3ヶ月)
建物面積 115.09m2(登記) 建物構造・規模 木造2階建
土地面積 181.81m2(登記) 土地権利 所有権
私道面積 借地期間・地代
接道状況 南西4m接面6.1m 駐車場
用途地域 1種低層 都市計画
建ぺい率/容積率 40%/80% 現況
地目 引渡可能時期 相談
情報提供元 SUUMO [030Z77237362] 情報公開日
情報更新日 次回更新予定日 随時

設備など

1種低層地域 即入居可 - 売主・代理 -
駐車2台以上 - 平屋 - 本下水
都市ガス カウンターキッチン - 床暖房 -
ウォークインクローゼット - バリアフリー -
設備 都市ガス・上水道・本下水
リフォーム履歴 -
リノベーション履歴 -
備考 <物件名>山ノ内(北鎌倉駅) 1億500万円/<土地権利>所有権/<間取り>5K/<特徴>飲食店や物販店舗をすぐにでも、始めることも可能です。、駅まで平坦・2階建
販売戸数:1戸
法令等制限:景観法、風致地区
特記事項

省エネ性能

エネルギー消費性能 -
断熱性能 -
目安光熱費 -

神奈川県鎌倉市山ノ内 周辺地図情報

地図
※地図上に表示される物件の位置は付近住所に所在することを表すものであり、実際の物件所在地とは異なる場合がございます。
   正確な物件所在地は、取扱い不動産会社にお問い合わせください。
物件を見たい、物件や住環境の詳しい情報やローン相談など、
お問い合わせ先
(株)COCO-HOUSE

不動産会社情報

お問い合わせ先 商号:(株)COCO-HOUSE
免許番号:神奈川県知事(4)第026993号
所在地:神奈川県鎌倉市御成町11-7
TEL:0467-38-8130
取引態様:専任媒介
共有する
QRコード
物件を見たい、物件や住環境の詳しい情報やローン相談など、
お問い合わせ先
(株)COCO-HOUSE

鎌倉市の暮らしデータ

人口などの統計情報

世帯数 75607世帯
人口総数 175625人
転入者数 7562人
転入率(人口1000人当たり)
43.06人
転出者数 6984人
転出率(人口1000人当たり)
39.77人
土地平均価格
住宅地
214476円/m2
商業地
975500円/m2

結婚・育児の助成金

子育て関連の独自の取り組み (1)かまくらこども相談窓口きらきらの運営。(2)「かまくら子育てナビきらきら」の発行・配布。
出産祝い なし
公立保育所数 4所(うち0歳児保育を実施している保育所:4所)
私立保育所数 24所(うち0歳児保育を実施している保育所:24所)
保育所入所待機児童数 34人
認定こども園数 6園 預かり保育実施園数 公立:- 私立:15園
学校給食 【小学校】完全給食【中学校】家庭弁当等との選択制/デリバリー形式[運搬:ランチボックス、内容:完全給食]
公立中学校の学校選択制 未実施
子ども・学生等医療費助成<通院>対象年齢 18歳3月末まで 子ども・学生等医療費助成<入院>対象年齢 18歳3月末まで

鎌倉市の治安・ごみ収集情報

公共料金・インフラ

ガス料金(22m3使用した場合の月額) 東京瓦斯株式会社(東京地区等)3926円
水道料金(口径20mmで20m3の月額) 神奈川県営水道2988円
下水道料金(20m3を使用した場合の月額) 鎌倉市2754円
下水道普及率 97.8%

安心・安全

建物火災出火件数 28件
人口10000人当たり
1.62件
刑法犯認知件数 645件
人口1000人当たり
3.73件
ハザード・防災マップ あり

医療

一般病院総数 11ヶ所
一般診療所総数 184ヶ所
小児科医師数 29人
小児人口10000人当たり
15.35人
産婦人科医師数 21人
15~49歳女性人口1万人当たり
6.66人
介護保険料基準額(月額) 5500円

ごみ

家庭ごみ収集(可燃ごみ) 有料
備考
指定ごみ袋有料。
家庭ごみの分別方式 4分別21種〔資源物(飲食用カン、飲食用ビン、植木剪定材、ミックスペーパー、新聞紙、雑誌・古本、ボール紙・クラフト紙、紙パック、ダンボール、布類、ペットボトル、容器包装プラスチック、使用済み食用油、製品プラスチック) 燃やすごみ 燃えないごみ 危険・有害ごみ(蛍光管、乾電池、体温計・温度計、スプレーカン・カセットボンベ、割れたガラス・陶磁器・鏡・刃物類・電球)〕
家庭ごみの戸別収集 一部実施(【声かけふれあい収集】[1]介護保険の居宅サービスを日常的に利用している高齢者のみで構成されている世帯。[2]身体障害者手帳1級又は2級の交付を受けている障害者のみで構成されている世帯。[3]精神障害者保健福祉手帳1級又は2級の交付を受けており、居宅介護を日常的に利用している障害者のみで構成されている世帯。[4]前3号に規定する高齢者及び障害者で構成されている世帯。[5]前各号に規定する世帯と同等の状態にあると市長が認めた世帯)
粗大ごみ収集 あり
備考
有料。事前申込制。
生ごみ処理機助成金制度 あり
上限金額
30000円
上限比率
75.0%

鎌倉市の住まいの給付金

中古購入

利子補給制度 なし
補助/助成金制度 なし

増築・改築・改修

利子補給制度 なし
補助/助成金制度 あり
上限金額
120万円
備考
【耐震改修工事費等補助金交付制度】市または市が指定した事業者が行った「現地耐震診断」の結果、総合評点が1.0未満の木造住宅を耐震改修する場合、補助金を受けることができる。1981年5月31日以前に建築工事に着手した一戸建て住宅、二世帯住宅などが対象。費用の1/2、かつ上限100万円(低所得者世帯等は上限120万円)を補助。
暮らしデータ提供元:生活ガイド.com
※行政機関により公表していない地域及びデータがございます。東京23区以外の政令指定都市は、市全体のデータとして表示しています。
※提供データには細心の注意を払っておりますが、調査後に変更がある場合があります。 最新の情報につきましては各市区役所までお問い合わせいただくか、自治体HPなどをご確認ください。

この物件を見た人はこんな物件も見ています

OCN×ドコモ光新規お申込みで合計最大137,280円相当おトク!特典の内訳・適用条件など詳細はこちら

鎌倉市内の各駅の住みやすさ

住宅ローンの返済額一覧

物件価格 10500万円に対して、年率 で、頭金 の場合
↓ボーナス 35年間 30年間 25年間 20年間 15年間 10年間
0万円 259,585円/月 299,189円/月 354,669円/月 437,933円/月 576,764円/月 854,513円/月
5万円 250,499円/月 290,213円/月 345,803円/月 429,175円/月 568,113円/月 845,968円/月
10万円 241,414円/月 281,238円/月 336,936円/月 420,416円/月 559,462円/月 837,423円/月
15万円 232,328円/月 272,262円/月 328,069円/月 411,657円/月 550,810円/月 828,878円/月
20万円 223,243円/月 263,286円/月 319,202円/月 402,899円/月 542,159円/月 820,333円/月
25万円 214,157円/月 254,311円/月 310,336円/月 394,140円/月 533,507円/月 811,788円/月
30万円 205,072円/月 245,335円/月 301,469円/月 385,381円/月 524,856円/月 803,243円/月
支払い利息合計 9,047,470円~ 7,726,760円~ 6,416,400円~ 5,116,400円~ 3,827,030円~ 2,547,900円~
※元利均等返済方式で試算しています。 「円」の単位以下の端数金額は「切り捨て」として計算しております。
※金利は、固定金利として計算しております。
※上記の住宅ローン返済額一覧は、あくまで試算であり、将来の金利動向により、実際のご返済額とは異なります。
※ボーナス支払総額が総支払額の50%を超えている場合、上記の表では「ローン不可」となります。
※住宅ローン返済額一覧の数値は、住宅ローンのお申し込みやご融資をお約束するものではございません。
物件を見たい、物件や住環境の詳しい情報やローン相談など、
お問い合わせ先
(株)COCO-HOUSE

掲載情報の著作権は提供元企業等に帰属します。
Copyright:(C) 2025 Recruit Co., Ltd.
アプリで簡単 物件探し 大手不動産サイトの情報から一括検!プッシュ通知で物件を見逃さない
App Storeからダウンロード Google Playで手に入れよう QRコード