中古住宅
東京都国立市東1 国立駅 中古一戸建て・中古住宅
| 価格 |
12400万円
|
| 交通 |
|
| 所在地 |
東京都国立市東1周辺地図
|
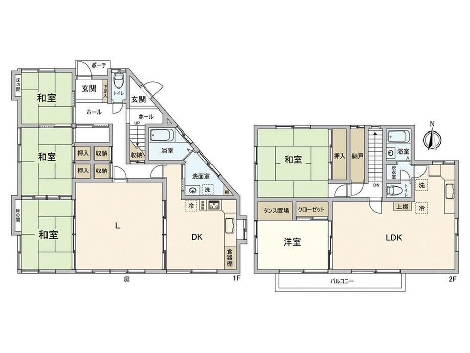
| 間取り |
他 |
| 建物面積 |
160.6m2(48.58坪)(登記) |
土地面積 |
253.14m2(76.57坪)(登記) |
| 築年月 |
1985年5月 |
築年数 |
築40年6ヶ月 |
- おすすめポイント
- ■【交通】 ○ JR中央本線 「国立」駅 徒歩5分■【建物】 ○ 建物面積:160.60平米(約48坪) ○ 1階:3LDK 2階:2LDK ○ 無垢材多用 ○ 1階に茶室あり ○ 高台に位置する陽当たり良好な土地のご紹介です ○ 売主こだわりの注文2世帯住宅 ○ 1階リビング約20.1帖 ○ 二重サッシ■【土地】 ○ 土地面積:253.14平米(約76坪) ○ 買い物施設充実 ○ 高台に位置する陽当たり良好な邸宅 ○ 庭あり【リフォーム履歴】令和5年1月○1階部分 ○畳交換 ○壁紙張替(一部)○内壁塗直し平成27年9月○屋根補修 ○外壁吹き直し
日当り良好・閑静な住宅街
- お問い合わせ先
- 三井のリハウス国立センター三井不動産リアルティ(株)
物件を見たい、物件や住環境の詳しい情報やローン相談など、
- お問い合わせ先
- 三井のリハウス国立センター三井不動産リアルティ(株)
| 価格 |
12400万円 |
| 所在地 |
東京都国立市東1周辺地図
|
| 交通 |
|
| 間取り |
他 |
築年月(築年数) |
1985年5月(築40年6ヶ月) |
| 建物面積 |
160.6m2(48.58坪)(登記) |
建物構造・規模 |
木造2階建
|
| 土地面積 |
253.14m2(76.57坪)(登記) |
土地権利 |
所有権 |
| 私道面積 |
|
借地期間・地代 |
|
| 接道状況 |
北5m接面1.9m 北東4m接面27.9m |
駐車場 |
無 |
| 用途地域 |
1種低層 |
都市計画 |
|
| 建ぺい率/容積率 |
50%/100% |
現況 |
|
| 地目 |
|
引渡可能時期 |
相談 |
| 情報提供元 |
SUUMO [030Z78499135] |
情報公開日 |
|
| 情報更新日 |
|
次回更新予定日 |
随時 |
設備など
| 1種低層地域 |
○ |
即入居可 |
- |
売主・代理 |
- |
| 駐車2台以上 |
- |
平屋 |
- |
本下水 |
○ |
| 都市ガス |
○ |
カウンターキッチン |
- |
床暖房 |
- |
| ウォークインクローゼット |
- |
バリアフリー |
- |
|
|
| 設備 |
バルコニー・都市ガス・トイレ2ヶ所・上水道・本下水・リフォーム |
| リフォーム履歴 |
- |
| リノベーション履歴 |
- |
| 備考 |
<物件名>東1(国立駅) 1億2400万円/<土地権利>所有権/<間取り>5LLDDKK/<特徴>■三井のリハウス国立センター■国立駅徒歩5分・高台に佇む邸宅、LDK20畳以上・土地50坪以上・スーパー 徒歩10分以内・内外装リフォーム・南向き 販売戸数:1戸 |
| 特記事項 |
日当り良好・閑静な住宅街 |
東京都国立市東1 周辺地図情報
※地図上に表示される物件の位置は付近住所に所在することを表すものであり、実際の物件所在地とは異なる場合がございます。
正確な物件所在地は、取扱い不動産会社にお問い合わせください。
物件を見たい、物件や住環境の詳しい情報やローン相談など、
- お問い合わせ先
- 三井のリハウス国立センター三井不動産リアルティ(株)
不動産会社情報
| お問い合わせ先 |
商号:三井のリハウス国立センター三井不動産リアルティ(株)
免許番号:国土交通大臣(15)第000777号 所在地:東京都国立市東1-4-13 COI国立ビル1階 TEL:00786-01793816 取引態様:専任媒介 管理コード:F25ARA14 |
共有する |
|
物件を見たい、物件や住環境の詳しい情報やローン相談など、
- お問い合わせ先
- 三井のリハウス国立センター三井不動産リアルティ(株)
人口などの統計情報
| 世帯数 |
38227世帯 |
| 人口総数 |
75889人 |
| 転入者数 |
4749人
- 転入率(人口1000人当たり)
- 62.58人
|
| 転出者数 |
4692人
- 転出率(人口1000人当たり)
- 61.83人
|
| 土地平均価格 |
- 住宅地
- 378833円/m2
- 商業地
- 438000円/m2
|
結婚・育児の助成金
| 子育て関連の独自の取り組み |
(1)幼児同乗用自転車貸出事業(幼児同乗用自転車8台を未就学の子どもを養育している世帯に年度単位で貸し出す[2016年9月から開始])。(2)子育てアプリ(市の子育てサービスや制度、子育て世帯へのおしらせ等をお届け[2016年3月から開始])。(3)くにたち子育てサポート窓口(くにサポ)(妊娠・出産から子育てに関する相談を一元的に受け付け)。(4)くにたちゆりかご事業(妊婦への全数面談を行い、その後の支援につなげる)。(5)子育て用品リサイクル・リンク事業(家庭で着られなくなった子ども服を提供してもらい、必要な方へ無償で提供する[2018年9月から開始])。 |
| 出産祝い |
あり |
| 公立保育所数 |
3所(うち0歳児保育を実施している保育所:3所) |
| 私立保育所数 |
15所(うち0歳児保育を実施している保育所:15所) |
| 保育所入所待機児童数 |
16人 |
| 認定こども園数 |
2園 |
預かり保育実施園数 |
公立:- 私立:8園 |
| 学校給食 |
【小学校】完全給食【中学校】完全給食 |
| 公立中学校の学校選択制 |
未実施 |
| 子ども・学生等医療費助成<通院>対象年齢 |
18歳3月末まで |
子ども・学生等医療費助成<入院>対象年齢 |
18歳3月末まで |
国立市の治安・ごみ収集情報
公共料金・インフラ
| ガス料金(22m3使用した場合の月額) |
東京瓦斯株式会社(東京地区等)3926円 |
| 水道料金(口径20mmで20m3の月額) |
東京都水道局2816円 |
| 下水道料金(20m3を使用した場合の月額) |
国立市1804円 |
| 下水道普及率 |
100.0% |
安心・安全
| 建物火災出火件数 |
11件
- 人口10000人当たり
- 1.43件
|
| 刑法犯認知件数 |
358件
- 人口1000人当たり
- 4.64件
|
| ハザード・防災マップ |
あり |
医療
| 一般病院総数 |
2ヶ所 |
| 一般診療所総数 |
84ヶ所 |
| 小児科医師数 |
13人
- 小児人口10000人当たり
- 15.53人
|
| 産婦人科医師数 |
4人
- 15~49歳女性人口1万人当たり
- 2.53人
|
| 介護保険料基準額(月額) |
6467円 |
ごみ
| 家庭ごみ収集(可燃ごみ) |
有料
|
| 家庭ごみの分別方式 |
8分別15種〔可燃ごみ 不燃ごみ 容器包装プラスチック 小型家電製品 有害ごみ 危険物 不燃系資源物(びん、かん、ペットボトル) 可燃系資源物(新聞紙、段ボール、本・雑誌、紙パック、雑がみ、古布)〕 |
| 家庭ごみの戸別収集 |
実施(2017年9月以降、希望があり、かつ道路事情により戸別収集可能な世帯には実施) |
| 粗大ごみ収集 |
あり
|
| 生ごみ処理機助成金制度 |
なし
- 上限金額
- -
- 上限比率
- -
|
国立市の住まいの給付金
中古購入
増築・改築・改修
| 利子補給制度 |
なし |
| 補助/助成金制度 |
あり
- 上限金額
- (1)5万円(2)80万円(3)12万円
|
※行政機関により公表していない地域及びデータがございます。東京23区以外の政令指定都市は、市全体のデータとして表示しています。
※提供データには細心の注意を払っておりますが、調査後に変更がある場合があります。 最新の情報につきましては各市区役所までお問い合わせいただくか、自治体HPなどをご確認ください。
国立市の暮らしデータをもっと見る
-
- 東京都国立市泉4
-
- 価格
- 4980万円
- 建物面積
- 89.28m2
- 土地面積
- 122.84m2
-
- 東京都国分寺市日吉町2
-
- 価格
- 5680万円
- 建物面積
- 87.49m2
- 土地面積
- 119.42m2
-
- 東京都国立市東2
-
- 価格
- 6480万円
- 建物面積
- 124.2m2
- 土地面積
- 133.06m2
-
- 東京都国立市中1
-
- 価格
- 9490万円
- 建物面積
- 96.72m2
- 土地面積
- 100.99m2
-
- 東京都国立市中1
-
- 価格
- 9990万円
- 建物面積
- 95.06m2
- 土地面積
- 100.97m2
物件を見たい、物件や住環境の詳しい情報やローン相談など、
- お問い合わせ先
- 三井のリハウス国立センター三井不動産リアルティ(株)