アプリで簡単 物件探し 通知 共有 アプリならではの機能を使ってみる
中古住宅

千葉県安房郡鋸南町保田 保田駅 中古一戸建て・中古住宅

情報提供元
SUUMO
千葉県安房郡鋸南町保田 保田駅 中古一戸建て・中古住宅
価格 2480万円
交通
所在地 千葉県安房郡鋸南町保田周辺地図
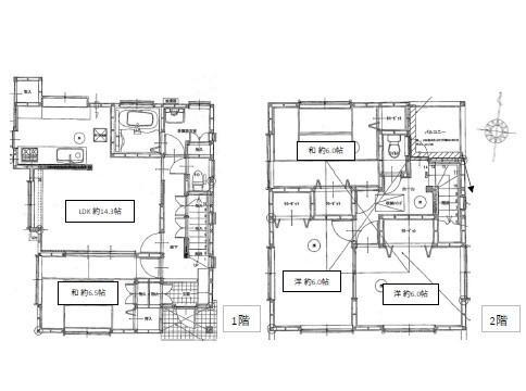
間取り 4LDK
建物面積 163.2m2(49.36坪)(登記) 土地面積 315.04m2(95.29坪)(登記)
築年月 2007年7月 築年数 築18年4ヶ月
おすすめポイント
◆満点の星空を味わいながら入れる露天風呂♪◆本格派ログハウス住宅♪◆緑豊かな景気を堪能できるウッドデッキ♪◆薪ストーブ完備の広々リビング♪◆道の駅保田小学校まで徒歩5分♪◆鋸南保田インターすぐそば♪
日当り良好・閑静な住宅街・駐車場2台分・整形地・浴室1坪以上
物件を見たい、物件や住環境の詳しい情報やローン相談など、
お問い合わせ先
(株)ディスカバリー不動産

詳細情報

価格 2480万円
所在地 千葉県安房郡鋸南町保田周辺地図
交通
間取り 4LDK 築年月(築年数) 2007年7月(築18年4ヶ月)
建物面積 163.2m2(49.36坪)(登記) 建物構造・規模 木造3階建
土地面積 315.04m2(95.29坪)(登記) 土地権利 所有権
私道面積 借地期間・地代
接道状況 北西5m 南東4m 駐車場
用途地域 無指定 都市計画 区域外
建ぺい率/容積率 60%/200% 現況
地目 引渡可能時期 即時
情報提供元 SUUMO [030Z78630908] 情報公開日
情報更新日 次回更新予定日 随時

設備など

1種低層地域 - 即入居可 売主・代理 -
駐車2台以上 平屋 - 本下水 -
都市ガス - カウンターキッチン - 床暖房 -
ウォークインクローゼット バリアフリー -
設備 バルコニー・トイレ・ウォークインクローゼット・温水洗浄便座・システムキッチン・風呂・庭・LPガス・トイレ2ヶ所・ルーフバルコニー・2面バルコニー・複層ガラス・上水道・浄化槽・駐車場2台分
リフォーム履歴 -
リノベーション履歴 -
備考 <物件名>保田(保田駅) 2480万円/<駐車場>カースペース/<土地権利>所有権/<間取り>4LDK/<特徴>ディスカバリー不動産だから見つかるステキ住まい♪、駐車2台可・即引渡可・LDK20畳以上・土地50坪以上・リバーサイド
販売戸数:1戸
特記事項 日当り良好・閑静な住宅街・駐車場2台分・整形地・浴室1坪以上

省エネ性能

エネルギー消費性能 -
断熱性能 -
目安光熱費 -

千葉県安房郡鋸南町保田 周辺地図情報

地図
※地図上に表示される物件の位置は付近住所に所在することを表すものであり、実際の物件所在地とは異なる場合がございます。
   正確な物件所在地は、取扱い不動産会社にお問い合わせください。
物件を見たい、物件や住環境の詳しい情報やローン相談など、
お問い合わせ先
(株)ディスカバリー不動産

不動産会社情報

お問い合わせ先 商号:(株)ディスカバリー不動産
免許番号:千葉県知事(1)第018713号
所在地:千葉県千葉市花見川区さつきが丘2-40-16
TEL:043-215-8414
取引態様:媒介
共有する
QRコード
物件を見たい、物件や住環境の詳しい情報やローン相談など、
お問い合わせ先
(株)ディスカバリー不動産

この物件を見た人はこんな物件も見ています

OCN×ドコモ光新規お申込みで合計最大137,280円相当おトク!特典の内訳・適用条件など詳細はこちら

他のエリアから探す

安房郡鋸南町の詳細地域から一戸建て物件を探す

小保田下佐久間保田

近辺の市区から探す

南房総市

周辺の駅から探す

内房線
佐貫町上総湊竹岡浜金谷保田安房勝山岩井富浦那古船形

千葉県安房郡鋸南町で他のジャンルから探す

住宅ローンの返済額一覧

物件価格 2480万円に対して、年率 で、頭金 の場合
↓ボーナス 35年間 30年間 25年間 20年間 15年間 10年間
0万円 51,397円/月 59,239円/月 70,224円/月 86,710円/月 114,199円/月 169,193円/月
5万円 42,312円/月 50,263円/月 61,357円/月 77,952円/月 105,547円/月 160,648円/月
10万円 33,226円/月 41,288円/月 52,491円/月 69,193円/月 96,896円/月 152,103円/月
15万円 ローン不可 32,312円/月 43,624円/月 60,434円/月 88,245円/月 143,558円/月
20万円 ローン不可 ローン不可 ローン不可 51,676円/月 79,593円/月 135,013円/月
25万円 ローン不可 ローン不可 ローン不可 ローン不可 70,942円/月 126,468円/月
30万円 ローン不可 ローン不可 ローン不可 ローン不可 62,290円/月 117,922円/月
支払い利息合計 1,793,950円~ 1,535,400円~ 1,275,050円~ 1,018,880円~ 765,150円~ 509,380円~
※元利均等返済方式で試算しています。 「円」の単位以下の端数金額は「切り捨て」として計算しております。
※金利は、固定金利として計算しております。
※上記の住宅ローン返済額一覧は、あくまで試算であり、将来の金利動向により、実際のご返済額とは異なります。
※ボーナス支払総額が総支払額の50%を超えている場合、上記の表では「ローン不可」となります。
※住宅ローン返済額一覧の数値は、住宅ローンのお申し込みやご融資をお約束するものではございません。
物件を見たい、物件や住環境の詳しい情報やローン相談など、
お問い合わせ先
(株)ディスカバリー不動産

掲載情報の著作権は提供元企業等に帰属します。
Copyright:(C) 2025 Recruit Co., Ltd.
アプリで簡単 物件探し 大手不動産サイトの情報から一括検!プッシュ通知で物件を見逃さない
App Storeからダウンロード Google Playで手に入れよう QRコード