アプリで簡単 物件探し 通知 共有 アプリならではの機能を使ってみる
中古住宅

埼玉県草加市金明町 新田駅 中古一戸建て・中古住宅

情報提供元
SUUMO
埼玉県草加市金明町 新田駅 中古一戸建て・中古住宅
価格 4199万円
交通
所在地 埼玉県草加市金明町周辺地図
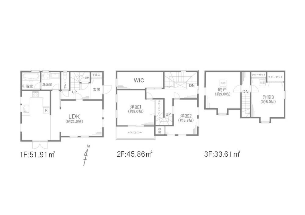
間取り 3SLDK
建物面積 131.38m2(39.74坪)(登記) 土地面積 106.9m2(32.33坪)(登記)
築年月 2003年12月 築年数 築21年11ヶ月
おすすめポイント
◆青い空によく映える、南欧風デザイン住宅 内外装リフォームも終わりました!!  ◇新田駅西口は区画整理により、よりキレイな街に!!    区画整理エリアにほど近い本物件。    駅前広場が整備され、公園が作られ、さらに住みやすい街へと♪♪  ◇ご紹介お家は・・・    内外装リフォームをしております。    白い壁にアンバーグロウな明るい色合いの瓦屋根、    心地よく暮らせる予感が…    室内はクロスを貼替え、適宜手を加えて、新生活を応援しています。    駐車は10m以上あり、    縦列に大型車2台を停めることができます。
日当り良好・閑静な住宅街・駐車場2台分・整形地・浴室1坪以上
物件を見たい、物件や住環境の詳しい情報やローン相談など、
お問い合わせ先
hi-Lohas(株)

詳細情報

価格 4199万円
所在地 埼玉県草加市金明町周辺地図
交通
間取り 3SLDK 築年月(築年数) 2003年12月(築21年11ヶ月)
建物面積 131.38m2(39.74坪)(登記) 建物構造・規模 木造3階建
土地面積 106.9m2(32.33坪)(登記) 土地権利 所有権
私道面積 借地期間・地代
接道状況 東5m 駐車場
用途地域 1種中高 都市計画
建ぺい率/容積率 60%/200% 現況
地目 引渡可能時期 即時
情報提供元 SUUMO [030Z78656093] 情報公開日
情報更新日 次回更新予定日 随時

設備など

1種低層地域 - 即入居可 売主・代理 -
駐車2台以上 平屋 - 本下水 -
都市ガス カウンターキッチン - 床暖房 -
ウォークインクローゼット バリアフリー -
設備 バルコニー・収納スペース・洗面所・都市ガス・ウォークインクローゼット・シャンプードレッサ・システムキッチン・風呂・浄水器・上水道・浄化槽・駐車場2台分・リフォーム・フローリング
リフォーム履歴 2025年10月完了
 水回り設備交換:トイレ
 内装リフォーム:壁・床
 その他:建具交換等
2025年10月完了
 その他リフォーム:外壁
※年月は一番古いリフォーム箇所を表します
リノベーション履歴 -
備考 <物件名>金明町(新田駅) 4199万円/<駐車場>カースペース/<土地権利>所有権/<間取り>3LDK+S(納戸)/<リフォーム>●リフォーム:2025年10月完了(水回り設備交換:トイレ、内装リフォーム:壁・床、その他:建具交換等)、2025年10月完了(その他リフォーム:外壁)※年月は一番古いリフォーム箇所を表します/<特徴>白壁に木製サッシとオレンジの洋瓦木柱のお洒落な手摺とタイル敷きのDK♪、駐車2台可・即引渡可・LDK20畳以上・スーパー 徒歩10分以内・市街地が近い
販売戸数:1戸
法令等制限:景観法
特記事項 日当り良好・閑静な住宅街・駐車場2台分・整形地・浴室1坪以上

省エネ性能

エネルギー消費性能 -
断熱性能 -
目安光熱費 -

埼玉県草加市金明町 周辺地図情報

地図
※地図上に表示される物件の位置は付近住所に所在することを表すものであり、実際の物件所在地とは異なる場合がございます。
   正確な物件所在地は、取扱い不動産会社にお問い合わせください。
物件を見たい、物件や住環境の詳しい情報やローン相談など、
お問い合わせ先
hi-Lohas(株)

不動産会社情報

お問い合わせ先 商号:hi-Lohas(株)
免許番号:埼玉県知事(3)第022834号
所在地:埼玉県さいたま市桜区西堀9-26-2
TEL:0120-644709
取引態様:媒介
共有する
QRコード
物件を見たい、物件や住環境の詳しい情報やローン相談など、
お問い合わせ先
hi-Lohas(株)

草加市の暮らしデータ

人口などの統計情報

世帯数 111692世帯
人口総数 251219人
転入者数 12986人
転入率(人口1000人当たり)
51.69人
転出者数 11161人
転出率(人口1000人当たり)
44.43人
土地平均価格
住宅地
154794円/m2
商業地
228500円/m2

結婚・育児の助成金

子育て関連の独自の取り組み (1)0歳から15歳までの子どもの育ちを園・学校・家庭・地域が共に支える、一人ひとりを大切にする幼保小中を一貫した教育の推進。(2)そうか子育て応援・情報サイト「ぼっくるん」で、子育て関連の行政情報、イベント情報、遊び場や預け先、さらに子育てを応援している団体・個人等幅広く紹介。(3)出産一時金を受け取ることができる市町村民税非課税世帯の妊産婦に対し、実際の出産費用が出産一時金の額を上回った場合、差額を助成する入院助産制度を拡充。
出産祝い あり
公立保育所数 18所(うち0歳児保育を実施している保育所:13所)
私立保育所数 21所(うち0歳児保育を実施している保育所:17所)
保育所入所待機児童数 24人
認定こども園数 2園 預かり保育実施園数 公立:- 私立:15園
学校給食 【小学校】完全給食【中学校】完全給食
公立中学校の学校選択制 未実施
子ども・学生等医療費助成<通院>対象年齢 18歳3月末まで 子ども・学生等医療費助成<入院>対象年齢 18歳3月末まで

草加市の治安・ごみ収集情報

公共料金・インフラ

ガス料金(22m3使用した場合の月額) 東京瓦斯株式会社(東京地区等)3926円
東彩ガス株式会社(越谷・春日部地区)4893円
水道料金(口径20mmで20m3の月額) 草加市2475円
下水道料金(20m3を使用した場合の月額) 草加市1947円
下水道普及率 98.1%

安心・安全

建物火災出火件数 37件
人口10000人当たり
1.49件
刑法犯認知件数 2122件
人口1000人当たり
8.55件
ハザード・防災マップ あり

医療

一般病院総数 6ヶ所
一般診療所総数 134ヶ所
小児科医師数 35人
小児人口10000人当たり
12.72人
産婦人科医師数 7人
15~49歳女性人口1万人当たり
1.38人
介護保険料基準額(月額) 5980円

ごみ

家庭ごみ収集(可燃ごみ) 無料
備考
-
家庭ごみの分別方式 4分別21種〔可燃ごみ 不燃ごみ 有害ごみ(ライター、スプレー缶、蛍光灯、乾電池、水銀体温計) 資源物(飲料用のびん、かん、ペットボトル、古紙類[新聞紙、雑誌、紙パック、チラシ類、段ボール類、厚紙、カタログ、コピー用紙、本、牛乳パック]、雑紙類)〕 拠点回収:使用済小型家電 古着 牛乳パック 乾電池 家庭用廃食油 せともの類
家庭ごみの戸別収集 未実施
粗大ごみ収集 あり
備考
有料。事前申込制。品目により処理手数料が異なる。
生ごみ処理機助成金制度 あり
上限金額
30000円
上限比率
50.0%

草加市の住まいの給付金

中古購入

利子補給制度 なし
補助/助成金制度 なし

増築・改築・改修

利子補給制度 なし
補助/助成金制度 あり
上限金額
(1)55万円(2)20万円
備考
(1)【木造住宅一般耐震改修】改修費用の23%(上限30万円)+改修費用の2.5%(上限5万円)+20万円(65歳以上の場合)=最大55万円。(2)【木造住宅簡易耐震改修】(a)耐震シェルター設置は費用の23%(上限20万円)。(b)屋根軽量化は費用の23%(上限20万円)。(c)寝室の補強等安全空間確保は費用の23%(上限10万円)。(a)~(c)の2つ以上の改修は費用の23%(上限20万円)。
暮らしデータ提供元:生活ガイド.com
※行政機関により公表していない地域及びデータがございます。東京23区以外の政令指定都市は、市全体のデータとして表示しています。
※提供データには細心の注意を払っておりますが、調査後に変更がある場合があります。 最新の情報につきましては各市区役所までお問い合わせいただくか、自治体HPなどをご確認ください。

この物件を見た人はこんな物件も見ています

OCN×ドコモ光新規お申込みで合計最大137,280円相当おトク!特典の内訳・適用条件など詳細はこちら

草加市内の各駅の住みやすさ

住宅ローンの返済額一覧

物件価格 4199万円に対して、年率 で、頭金 の場合
↓ボーナス 35年間 30年間 25年間 20年間 15年間 10年間
0万円 96,020円/月 110,670円/月 131,192円/月 161,991円/月 213,345円/月 316,084円/月
5万円 86,935円/月 101,694円/月 122,325円/月 153,233円/月 204,693円/月 307,539円/月
10万円 77,849円/月 92,718円/月 113,458円/月 144,474円/月 196,042円/月 298,994円/月
15万円 68,764円/月 83,743円/月 104,592円/月 135,715円/月 187,390円/月 290,449円/月
20万円 59,678円/月 74,767円/月 95,725円/月 126,957円/月 178,739円/月 281,904円/月
25万円 50,593円/月 65,791円/月 86,858円/月 118,198円/月 170,087円/月 273,358円/月
30万円 ローン不可 56,816円/月 77,991円/月 109,439円/月 161,436円/月 264,813円/月
支払い利息合計 3,356,740円~ 2,869,920円~ 2,383,000円~ 1,900,320円~ 1,421,430円~ 946,300円~
※元利均等返済方式で試算しています。 「円」の単位以下の端数金額は「切り捨て」として計算しております。
※金利は、固定金利として計算しております。
※上記の住宅ローン返済額一覧は、あくまで試算であり、将来の金利動向により、実際のご返済額とは異なります。
※ボーナス支払総額が総支払額の50%を超えている場合、上記の表では「ローン不可」となります。
※住宅ローン返済額一覧の数値は、住宅ローンのお申し込みやご融資をお約束するものではございません。
物件を見たい、物件や住環境の詳しい情報やローン相談など、
お問い合わせ先
hi-Lohas(株)

掲載情報の著作権は提供元企業等に帰属します。
Copyright:(C) 2025 Recruit Co., Ltd.
アプリで簡単 物件探し 大手不動産サイトの情報から一括検!プッシュ通知で物件を見逃さない
App Storeからダウンロード Google Playで手に入れよう QRコード