中古住宅
埼玉県春日部市南2 春日部駅 中古一戸建て・中古住宅
| 価格 |
4680万円
|
| 交通 |
|
| 所在地 |
埼玉県春日部市南2周辺地図
|
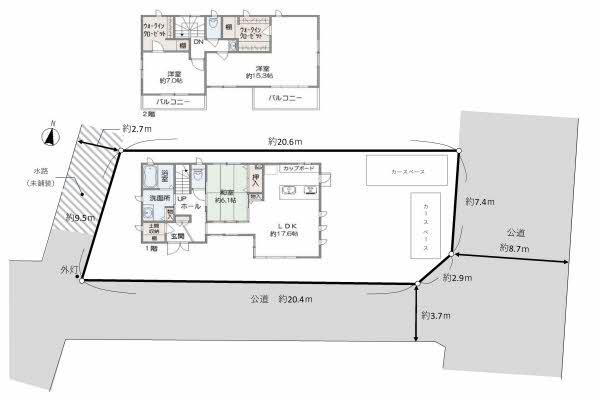
| 間取り |
3LDK |
| 建物面積 |
122.07m2(登記) |
土地面積 |
200.73m2(登記) |
| 築年月 |
2010年11月 |
築年数 |
築15年 |
- おすすめポイント
- ◎全窓ペアガラス ◎カースペース2台分有 ◎太陽光2.96kw搭載 ◎令和2年12月白蟻防除工事施工済 ◎住宅性能評価書有
駐車場2台分・オール電化・設計住宅性能評価取得・長期優良住宅・建設住宅性能評価取得
- お問い合わせ先
- 積水ハウス不動産(株)埼玉南営業所
物件を見たい、物件や住環境の詳しい情報やローン相談など、
- お問い合わせ先
- 積水ハウス不動産(株)埼玉南営業所
| 価格 |
4680万円 |
| 所在地 |
埼玉県春日部市南2周辺地図
|
| 交通 |
- 東武伊勢崎線 春日部駅 徒歩17分乗換案内
- 東武伊勢崎線 一ノ割駅 徒歩18分乗換案内
|
| 間取り |
3LDK |
築年月(築年数) |
2010年11月(築15年) |
| 建物面積 |
122.07m2(登記) |
建物構造・規模 |
軽量鉄骨2階建
|
| 土地面積 |
200.73m2(登記) |
土地権利 |
所有権 |
| 私道面積 |
|
借地期間・地代 |
|
| 接道状況 |
東8.7m接面7.4m 南3.7m接面23.3m |
駐車場 |
|
| 用途地域 |
1種住居 |
都市計画 |
|
| 建ぺい率/容積率 |
60%/200% |
現況 |
|
| 地目 |
|
引渡可能時期 |
相談 |
| 情報提供元 |
SUUMO [030Z78040314] |
情報公開日 |
|
| 情報更新日 |
|
次回更新予定日 |
随時 |
設備など
| 1種低層地域 |
- |
即入居可 |
- |
売主・代理 |
- |
| 駐車2台以上 |
○ |
平屋 |
- |
本下水 |
- |
| 都市ガス |
- |
カウンターキッチン |
- |
床暖房 |
- |
| ウォークインクローゼット |
○ |
バリアフリー |
- |
|
|
| 設備 |
バルコニー・浴室乾燥機・ウォークインクローゼット・モニタ付インターホン・風呂・衣類乾燥機・駐車場2台分 |
| リフォーム履歴 |
- |
| リノベーション履歴 |
- |
| 備考 |
<物件名>春日部市南二丁目スムストック/<土地権利>所有権/<間取り>3LDK/<その他制限事項>※上下水道敷地内引込有※角地につき建蔽率が70%に緩和されます。※南側対面側のセットバッグが未了です。※オール電化につきガスの引込はありませんが前面南側道路に本管があります。/<特徴>◎積水ハウス施工◎オール電化◎長期優良住宅◎南向きバルコニー◎南東角地、長期優良住宅認定通知書・設計住宅性能評価書・建設住宅性能評価書(既存住宅)・新築時・増改築時の設計図・駐車2台可 販売戸数:1戸 法令等制限:景観法による規制有、敷地面積最低限度有、日影制限有 |
| 特記事項 |
駐車場2台分・オール電化・設計住宅性能評価取得・長期優良住宅・建設住宅性能評価取得 |
埼玉県春日部市南2 周辺地図情報
※地図上に表示される物件の位置は付近住所に所在することを表すものであり、実際の物件所在地とは異なる場合がございます。
正確な物件所在地は、取扱い不動産会社にお問い合わせください。
物件を見たい、物件や住環境の詳しい情報やローン相談など、
- お問い合わせ先
- 積水ハウス不動産(株)埼玉南営業所
不動産会社情報
| お問い合わせ先 |
商号:積水ハウス不動産(株)埼玉南営業所
免許番号:国土交通大臣(13)第002343号 所在地:埼玉県さいたま市浦和区高砂2-1-1 TEL:048-824-3377 取引態様:専任媒介 管理コード:C14810010168 |
共有する |
|
物件を見たい、物件や住環境の詳しい情報やローン相談など、
- お問い合わせ先
- 積水ハウス不動産(株)埼玉南営業所
人口などの統計情報
| 世帯数 |
97528世帯 |
| 人口総数 |
230687人 |
| 転入者数 |
9108人
- 転入率(人口1000人当たり)
- 39.48人
|
| 転出者数 |
8195人
- 転出率(人口1000人当たり)
- 35.52人
|
| 土地平均価格 |
- 住宅地
- 81400円/m2
- 商業地
- 173400円/m2
|
結婚・育児の助成金
| 子育て関連の独自の取り組み |
ファミリー・サポート事業(子育て中の人が、子どもを一時的に預かってもらえる制度。既に小学生以下の子ども2人以上と同居しており、3人目以降の子どもを出産した家庭に、ファミリー・サポート無料券を10時間分交付。利用できるのは生後6ヶ月から小学生の児童で、有効期限は発行日より1年間。ただし、有効期限内でも対象となる第1子が小学校を卒業してしまう場合は、その年の3月31日までとなる。市外からの転入者も同様に対象となる)。 |
| 出産祝い |
あり |
| 公立保育所数 |
11所(うち0歳児保育を実施している保育所:9所) |
| 私立保育所数 |
20所(うち0歳児保育を実施している保育所:19所) |
| 保育所入所待機児童数 |
11人 |
| 認定こども園数 |
7園 |
預かり保育実施園数 |
公立:- 私立:12園 |
| 学校給食 |
【小学校】完全給食【中学校】完全給食 |
| 公立中学校の学校選択制 |
一部実施 |
| 子ども・学生等医療費助成<通院>対象年齢 |
18歳3月末まで |
子ども・学生等医療費助成<入院>対象年齢 |
18歳3月末まで |
春日部市の治安・ごみ収集情報
公共料金・インフラ
| ガス料金(22m3使用した場合の月額) |
東彩ガス株式会社(越谷・春日部地区)4893円 |
| 水道料金(口径20mmで20m3の月額) |
春日部市2684円 |
| 下水道料金(20m3を使用した場合の月額) |
春日部市2376円 |
| 下水道普及率 |
90.1% |
安心・安全
| 建物火災出火件数 |
29件
- 人口10000人当たり
- 1.26件
|
| 刑法犯認知件数 |
1753件
- 人口1000人当たり
- 7.63件
|
| ハザード・防災マップ |
あり |
医療
| 一般病院総数 |
12ヶ所 |
| 一般診療所総数 |
130ヶ所 |
| 小児科医師数 |
29人
- 小児人口10000人当たり
- 12.49人
|
| 産婦人科医師数 |
9人
- 15~49歳女性人口1万人当たり
- 2.18人
|
| 介護保険料基準額(月額) |
6300円 |
ごみ
| 家庭ごみ収集(可燃ごみ) |
無料
|
| 家庭ごみの分別方式 |
4分別18種〔可燃ごみ 不燃ごみ(不燃ごみ、小型家電) 資源物(びん、ペットボトル、かん、新聞紙・チラシ、雑誌、段ボール、雑紙、紙パック、古繊維類) 有害・危険ごみ(乾電池、水銀体温計、蛍光灯、カセット式ガスボンベ・スプレー缶、使い捨てライター、リチウムイオン電池製品)〕 |
| 家庭ごみの戸別収集 |
一部実施(【春日部市訪問収集事業】介助又は介護を必要とする高齢者および障害者世帯、その他特に必要と認める世帯で、自ら廃棄物等を所定の場所に持ち出すことが困難な世帯のみ) |
| 粗大ごみ収集 |
あり
|
| 生ごみ処理機助成金制度 |
なし
- 上限金額
- -
- 上限比率
- -
|
春日部市の住まいの給付金
中古購入
| 利子補給制度 |
なし |
| 補助/助成金制度 |
あり
- 上限金額
- (1)(商品券)30万円(2)(商品券+現金)60万円+α万円
|
増築・改築・改修
| 利子補給制度 |
なし |
| 補助/助成金制度 |
あり
- 上限金額
- 60万円
|
※行政機関により公表していない地域及びデータがございます。東京23区以外の政令指定都市は、市全体のデータとして表示しています。
※提供データには細心の注意を払っておりますが、調査後に変更がある場合があります。 最新の情報につきましては各市区役所までお問い合わせいただくか、自治体HPなどをご確認ください。
春日部市の暮らしデータをもっと見る
この物件を見た人はこんな物件も見ています
-
-
-
-
-
-
-
-
-
-
-
- 埼玉県春日部市粕壁
-
- 価格
- 4380万円
- 建物面積
- 110.13m2
- 土地面積
- 132.3m2
-
-
-
-
- 埼玉県春日部市小渕
-
- 価格
- 1780万円
- 建物面積
- 113.44m2
- 土地面積
- 99.17m2
-
-
-
-
-
-
-
-
-
- 埼玉県春日部市小渕
-
- 価格
- 1850万円
- 建物面積
- 55.88m2
- 土地面積
- 102.8m2
物件を見たい、物件や住環境の詳しい情報やローン相談など、
- お問い合わせ先
- 積水ハウス不動産(株)埼玉南営業所