アプリで簡単 物件探し 通知 共有 アプリならではの機能を使ってみる
中古住宅

埼玉県熊谷市拾六間 中古一戸建て・中古住宅

情報提供元
SUUMO
埼玉県熊谷市拾六間 中古一戸建て・中古住宅
価格 1399万円
交通
  • JR高崎線「籠原」2.8Km
所在地 埼玉県熊谷市拾六間周辺地図
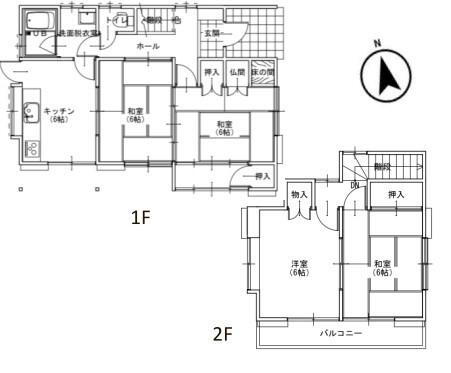
間取り 4DK
建物面積 76.17m2(23.04坪)(登記) 土地面積 165.66m2(50.11坪)(登記)
築年月 1987年5月 築年数 築38年6ヶ月
おすすめポイント
\◎はなまるハウスのリフォーム◎/当社が自信を持ってオススメする売主物件です♪*-------------------*\◎おすすめポイント◎/・住環境充実で子育て世代にもおすすめ・収納完備で片付けはかどる♪・日当たり良好!明るいお部屋・閑静な住宅街で安心♪・家賃より安く憧れの庭付き戸建♪\◎周辺環境◎/・籠原小学校(約1100m)・三尻中学校(約2300m)・ベルクかごはら南店(約800m)*-------------------*\◎本日ご見学可能◎/「今から見たい!」「お一人でも安心」お気軽にお問い合わせ♪住宅ローンのご相談も随時お任せください!
日当り良好・閑静な住宅街・整形地
お問い合わせ先
はなまるハウス(株)坂戸営業所
物件を見たい、物件や住環境の詳しい情報やローン相談など、
お問い合わせ先
はなまるハウス(株)坂戸営業所

詳細情報

価格 1399万円
所在地 埼玉県熊谷市拾六間周辺地図
交通
  • JR高崎線「籠原」2.8Km
間取り 4DK 築年月(築年数) 1987年5月(築38年6ヶ月)
建物面積 76.17m2(23.04坪)(登記) 建物構造・規模 木造2階建
土地面積 165.66m2(50.11坪)(登記) 土地権利 所有権
私道面積 借地期間・地代
接道状況 北西4.5m接面14.8m 南西5m接面14.8m 駐車場
用途地域 1種中高 都市計画
建ぺい率/容積率 50%/80% 現況
地目 引渡可能時期 相談
情報提供元 SUUMO [030Z78509572] 情報公開日
情報更新日 次回更新予定日 随時

設備など

1種低層地域 - 即入居可 - 売主・代理
駐車2台以上 - 平屋 - 本下水
都市ガス カウンターキッチン - 床暖房 -
ウォークインクローゼット - バリアフリー -
設備 バルコニー・収納スペース・都市ガス・システムキッチン・モニタ付インターホン・風呂・庭・床下収納・上水道・本下水
リフォーム履歴 -
リノベーション履歴 -
備考 <物件名>拾六間 1399万円/<駐車場>カースペース/<土地権利>所有権/<間取り>4DK/<特徴>\◎諸費用コミコミ◎/◆月々4万円台から♪◆年収300万円台から購入可能、土地50坪以上・年度内引渡可・スーパー 徒歩10分以内・市街地が近い・システムキッチン
建築確認:有/NO.第976号
販売戸数:1戸
特記事項 日当り良好・閑静な住宅街・整形地

省エネ性能

エネルギー消費性能 -
断熱性能 -
目安光熱費 -

埼玉県熊谷市拾六間 周辺地図情報

地図
※地図上に表示される物件の位置は付近住所に所在することを表すものであり、実際の物件所在地とは異なる場合がございます。
   正確な物件所在地は、取扱い不動産会社にお問い合わせください。
物件を見たい、物件や住環境の詳しい情報やローン相談など、
お問い合わせ先
はなまるハウス(株)坂戸営業所

不動産会社情報

お問い合わせ先 商号:はなまるハウス(株)坂戸営業所
免許番号:国土交通大臣(2)第009300号
所在地:埼玉県坂戸市鎌倉町3-22-2
TEL:0120-135253
取引態様:売主
管理コード:10601340
共有する
QRコード
物件を見たい、物件や住環境の詳しい情報やローン相談など、
お問い合わせ先
はなまるハウス(株)坂戸営業所

熊谷市の暮らしデータ

人口などの統計情報

世帯数 79976世帯
人口総数 192074人
転入者数 8285人
転入率(人口1000人当たり)
43.13人
転出者数 7643人
転出率(人口1000人当たり)
39.79人
土地平均価格
住宅地
45371円/m2
商業地
99257円/m2

結婚・育児の助成金

子育て関連の独自の取り組み (1)誕生祝金支給事業(熊谷市に誕生したお子様の保護者の方に、誕生祝金として3万円を支給)。(2)子育て応援自転車おでかけ事業(幼児2人同乗用自転車の購入者に購入費の一部を補助)。(3)ブックスタート事業:生後4~5ヶ月児を対象とした育児教室にて、ボランティアによる絵本の読み聞かせと赤ちゃんにおすすめの絵本等をプレゼントしている。
出産祝い あり
公立保育所数 12所(うち0歳児保育を実施している保育所:12所)
私立保育所数 23所(うち0歳児保育を実施している保育所:23所)
保育所入所待機児童数 0人
認定こども園数 7園 預かり保育実施園数 公立:0園 私立:9園
学校給食 【小学校】完全給食【中学校】完全給食
公立中学校の学校選択制 未実施
子ども・学生等医療費助成<通院>対象年齢 18歳3月末まで 子ども・学生等医療費助成<入院>対象年齢 18歳3月末まで

熊谷市の治安・ごみ収集情報

公共料金・インフラ

ガス料金(22m3使用した場合の月額) 東京瓦斯株式会社(東京地区等)3926円
武州瓦斯株式会社4281円
水道料金(口径20mmで20m3の月額) 熊谷市3201円
下水道料金(20m3を使用した場合の月額) 熊谷市2585円
下水道普及率 49.4%

安心・安全

建物火災出火件数 31件
人口10000人当たり
1.59件
刑法犯認知件数 1338件
人口1000人当たり
6.88件
ハザード・防災マップ あり

医療

一般病院総数 10ヶ所
一般診療所総数 149ヶ所
小児科医師数 33人
小児人口10000人当たり
16.33人
産婦人科医師数 7人
15~49歳女性人口1万人当たり
2.05人
介護保険料基準額(月額) 6100円

ごみ

家庭ごみ収集(可燃ごみ) 無料
備考
-
家庭ごみの分別方式 4分別13種〔可燃ごみ 資源物(新聞紙、書籍類、ダンボール、飲料用紙パック、紙製容器包装) 燃えないもの(カン[各種カン、ガスライター]、ビン[各種ビン、スプレーカン・カートリッジボンベ等]、ペットボトル、不燃ごみ) 家電製品〕 拠点回収:廃蛍光管 廃乾電池 体温計(電子体温計を除く) 加熱式たばこ 電子たばこ
家庭ごみの戸別収集 一部実施(障がい者、高齢者、要介護者等の自力で集積所へ搬出できない方が対象)
粗大ごみ収集 あり
備考
1回/週、集積所での通常収集。有料事前申込制の有料リクエスト収集あり。
生ごみ処理機助成金制度 あり
上限金額
30000円
上限比率
50.0%

熊谷市の住まいの給付金

中古購入

利子補給制度 あり
上限金額
-
備考
【熊谷市勤労者住宅資金貸付】約定どおり返済している人で市内在住者は支払利子額の25%以内、市外からの転入者は50%以内の額を、5年間にわたり助成。
補助/助成金制度 あり
上限金額
(1)(地域電子マネー「クマPAY」)25万円
備考
(1)【三世代ふれあい家族住宅取得等応援事業】三世代で同居又は近居し、住宅を新築・購入・増改築した場合に対象費用の1%、最大25万円の地域電子マネー「クマPAY」で補助。(2)【定住人口増加のための固定資産税等の課税免除】住宅を取得して転入した40歳未満の方の固定資産税等を3年免除。

増築・改築・改修

利子補給制度 あり
上限金額
-
備考
【熊谷市勤労者住宅資金貸付】約定どおり返済している人で市内在住者は支払利子額の25%以内、市外からの転入者は50%以内の額を、5年間にわたり助成。
補助/助成金制度 あり
上限金額
(1)5万円(2)40万円(3)(地域電子マネー「クマPAY」)25万円(4)(地域電子マネー)10万円
備考
(1)【木造住宅耐震診断補助金】1981年5月31日以前着工の木造住宅が対象。費用の1/2、上限5万円を補助。(2)【木造住宅耐震改修等補助金】耐震診断により安全でないと診断された木造住宅建築物が対象。費用の1/3、上限40万円を補助。(3)【三世代ふれあい家族住宅取得等応援事業】三世代で同居又は近居し、住宅を新築・購入・増改築した場合に対象費用の1%、最大25万円の地域電子マネー「クマPAY」で補助。(4)【熊谷市住宅リフォーム資金補助金】市内の事業者によりリフォームする人を対象に、対象工事費用の5%、最大10万円の地域電子マネー「クマPAY」を補助。
暮らしデータ提供元:生活ガイド.com
※行政機関により公表していない地域及びデータがございます。東京23区以外の政令指定都市は、市全体のデータとして表示しています。
※提供データには細心の注意を払っておりますが、調査後に変更がある場合があります。 最新の情報につきましては各市区役所までお問い合わせいただくか、自治体HPなどをご確認ください。

この物件を見た人はこんな物件も見ています

OCN×ドコモ光新規お申込みで合計最大137,280円相当おトク!特典の内訳・適用条件など詳細はこちら

熊谷市内の各駅の住みやすさ

住宅ローンの返済額一覧

物件価格 1399万円に対して、年率 で、頭金 の場合
↓ボーナス 35年間 30年間 25年間 20年間 15年間 10年間
0万円 23,336円/月 26,897円/月 31,884円/月 39,370円/月 51,851円/月 76,820円/月
5万円 14,251円/月 17,921円/月 23,018円/月 30,611円/月 43,199円/月 68,275円/月
10万円 ローン不可 ローン不可 ローン不可 21,852円/月 34,548円/月 59,730円/月
15万円 ローン不可 ローン不可 ローン不可 ローン不可 ローン不可 51,185円/月
20万円 ローン不可 ローン不可 ローン不可 ローン不可 ローン不可 42,640円/月
25万円 ローン不可 ローン不可 ローン不可 ローン不可 ローン不可 ローン不可
30万円 ローン不可 ローン不可 ローン不可 ローン不可 ローン不可 ローン不可
支払い利息合計 814,900円~ 695,920円~ 578,000円~ 462,800円~ 346,270円~ 232,620円~
※元利均等返済方式で試算しています。 「円」の単位以下の端数金額は「切り捨て」として計算しております。
※金利は、固定金利として計算しております。
※上記の住宅ローン返済額一覧は、あくまで試算であり、将来の金利動向により、実際のご返済額とは異なります。
※ボーナス支払総額が総支払額の50%を超えている場合、上記の表では「ローン不可」となります。
※住宅ローン返済額一覧の数値は、住宅ローンのお申し込みやご融資をお約束するものではございません。
物件を見たい、物件や住環境の詳しい情報やローン相談など、
お問い合わせ先
はなまるハウス(株)坂戸営業所

掲載情報の著作権は提供元企業等に帰属します。
Copyright:(C) 2025 Recruit Co., Ltd.
アプリで簡単 物件探し 大手不動産サイトの情報から一括検!プッシュ通知で物件を見逃さない
App Storeからダウンロード Google Playで手に入れよう QRコード