アプリで簡単 物件探し 通知 共有 アプリならではの機能を使ってみる
中古住宅

栃木県下都賀郡壬生町駅東町 壬生駅 中古一戸建て・中古住宅

情報提供元
SUUMO
栃木県下都賀郡壬生町駅東町 壬生駅 中古一戸建て・中古住宅
価格 2198万円
交通
所在地 栃木県下都賀郡壬生町駅東町周辺地図
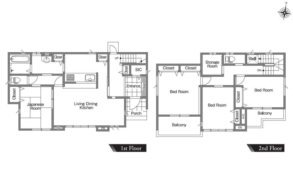
間取り 4SLDK
建物面積 115.69m2(34.99坪)(登記) 土地面積 225.58m2(68.23坪)(登記)
築年月 2013年12月 築年数 築11年11ヶ月
おすすめポイント
内装リフォーム、対面式キッチン、シューズインクローク、全室南向き、陽当り良好、南面バルコニー、駐車2台可、即引渡可、土地50坪以上、南向き、システムキッチン、全居室収納、閑静な住宅地、LDK15畳以上、前道6m以上、和室、整形地、シャワー付洗面化粧台、トイレ2ヶ所、浴室1坪以上、2階建、2面以上バルコニー、複層ガラス、オートバス、温水洗浄便座、南庭、浴室に窓、TVモニタ付インターホン、通風良好、パントリー(食器・食品の収納庫)、全居室6畳以上、IHクッキングヒーター、平坦地、納戸、食器洗乾燥機
日当り良好・閑静な住宅街・駐車場2台分・整形地・浴室1坪以上
物件を見たい、物件や住環境の詳しい情報やローン相談など、
お問い合わせ先
(株)中古住宅情報館本社

詳細情報

価格 2198万円
所在地 栃木県下都賀郡壬生町駅東町周辺地図
交通
間取り 4SLDK 築年月(築年数) 2013年12月(築11年11ヶ月)
建物面積 115.69m2(34.99坪)(登記) 建物構造・規模 木造2階建
土地面積 225.58m2(68.23坪)(登記) 土地権利 所有権
私道面積 借地期間・地代
接道状況 東16m 駐車場
用途地域 1種住居 都市計画
建ぺい率/容積率 60%/200% 現況
地目 引渡可能時期 即時
情報提供元 SUUMO [030Z78665440] 情報公開日
情報更新日 次回更新予定日 随時

設備など

1種低層地域 - 即入居可 売主・代理
駐車2台以上 平屋 - 本下水
都市ガス - カウンターキッチン - 床暖房 -
ウォークインクローゼット - バリアフリー -
設備 バルコニー・トイレ・収納スペース・洗面所・シャンプードレッサ・温水洗浄便座・システムキッチン・モニタ付インターホン・風呂・庭・LPガス・対面K・トイレ2ヶ所・IHクッキングヒータ・2面バルコニー・食器洗浄乾燥機・複層ガラス・上水道・本下水・駐車場2台分・リフォーム・シューズインクローク
リフォーム履歴 2023年6月完了
 水回り設備交換:浴室・トイレ
 内装リフォーム:壁
 その他:洗面化粧台
※年月は一番古いリフォーム箇所を表します
リノベーション履歴 -
備考 <物件名>駅東町(壬生駅) 2198万円/<駐車場>カーポート/<土地権利>所有権/<間取り>4LDK+S(納戸)/<リフォーム>●リフォーム:2023年6月完了(水回り設備交換:浴室・トイレ、内装リフォーム:壁、その他:洗面化粧台)※年月は一番古いリフォーム箇所を表します/<特徴>決算引渡価格 人気のリフォーム住宅 グランディの家 バス交換 壬生駅4分、駐車2台可・即引渡可・土地50坪以上・内装リフォーム・南向き
販売戸数:1戸
法令等制限:景観法
特記事項 日当り良好・閑静な住宅街・駐車場2台分・整形地・浴室1坪以上

省エネ性能

エネルギー消費性能 -
断熱性能 -
目安光熱費 -

栃木県下都賀郡壬生町駅東町 周辺地図情報

地図
※地図上に表示される物件の位置は付近住所に所在することを表すものであり、実際の物件所在地とは異なる場合がございます。
   正確な物件所在地は、取扱い不動産会社にお問い合わせください。
物件を見たい、物件や住環境の詳しい情報やローン相談など、
お問い合わせ先
(株)中古住宅情報館本社

不動産会社情報

お問い合わせ先 商号:(株)中古住宅情報館本社
免許番号:国土交通大臣(3)第008039号
所在地:栃木県宇都宮市下砥上町654-5
TEL:012079-3355
取引態様:売主
共有する
QRコード
物件を見たい、物件や住環境の詳しい情報やローン相談など、
お問い合わせ先
(株)中古住宅情報館本社

この物件を見た人はこんな物件も見ています

OCN×ドコモ光新規お申込みで合計最大137,280円相当おトク!特典の内訳・適用条件など詳細はこちら

下都賀郡壬生町内の各駅の住みやすさ

他のエリアから探す

下都賀郡壬生町の詳細地域から一戸建て物件を探す

あけぼの町駅東町大字壬生丁大字安塚落合おもちゃのまち表町寿町中央町通町緑町元町

近辺の市区から探す

栃木市小山市下野市河内郡上三川町

周辺の駅から探す

東武鉄道宇都宮線
新栃木野州平川野州大塚壬生国谷おもちゃのまち安塚西川田

栃木県下都賀郡壬生町で他のジャンルから探す

住宅ローンの返済額一覧

物件価格 2198万円に対して、年率 で、頭金 の場合
↓ボーナス 35年間 30年間 25年間 20年間 15年間 10年間
0万円 44,077円/月 50,802円/月 60,222円/月 74,361円/月 97,934円/月 145,096円/月
5万円 34,992円/月 41,826円/月 51,356円/月 65,602円/月 89,283円/月 136,551円/月
10万円 25,906円/月 32,851円/月 42,489円/月 56,843円/月 80,631円/月 128,006円/月
15万円 ローン不可 ローン不可 33,622円/月 48,085円/月 71,980円/月 119,461円/月
20万円 ローン不可 ローン不可 ローン不可 39,326円/月 63,328円/月 110,915円/月
25万円 ローン不可 ローン不可 ローン不可 ローン不可 54,677円/月 102,370円/月
30万円 ローン不可 ローン不可 ローン不可 ローン不可 ローン不可 93,825円/月
支払い利息合計 1,539,550円~ 1,315,080円~ 1,094,450円~ 874,880円~ 655,980円~ 437,740円~
※元利均等返済方式で試算しています。 「円」の単位以下の端数金額は「切り捨て」として計算しております。
※金利は、固定金利として計算しております。
※上記の住宅ローン返済額一覧は、あくまで試算であり、将来の金利動向により、実際のご返済額とは異なります。
※ボーナス支払総額が総支払額の50%を超えている場合、上記の表では「ローン不可」となります。
※住宅ローン返済額一覧の数値は、住宅ローンのお申し込みやご融資をお約束するものではございません。
物件を見たい、物件や住環境の詳しい情報やローン相談など、
お問い合わせ先
(株)中古住宅情報館本社

掲載情報の著作権は提供元企業等に帰属します。
Copyright:(C) 2025 Recruit Co., Ltd.
アプリで簡単 物件探し 大手不動産サイトの情報から一括検!プッシュ通知で物件を見逃さない
App Storeからダウンロード Google Playで手に入れよう QRコード