貸倉庫

滋賀県彦根市地蔵町 彦根口駅 貸倉庫

情報提供元
アットホーム
賃料 55万円  (管理費等:16,500円)
礼金・敷金 1ヶ月 / 3ヶ月 保証金/敷引・償却 なし / -
交通
所在地 滋賀県彦根市地蔵町周辺地図
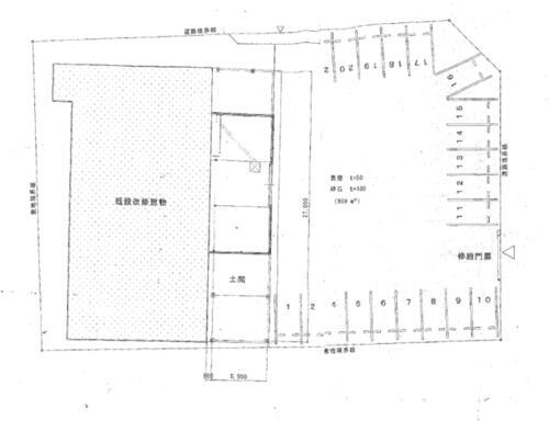
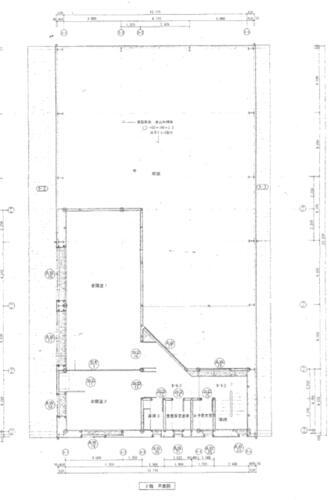
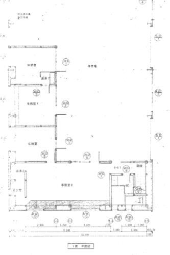
使用部分面積 381.41m2 土地面積 -
築年月 1968年8月 築年数 築57年5ヶ月

詳細情報

賃料 55万円  管理費等 16,500円 
敷金 3ヶ月  礼金 1ヶ月 
保証金 なし  敷引・償却
所在地 滋賀県彦根市地蔵町周辺地図
交通
使用部分面積 381.41m2  土地面積  
坪単価 0.48万円  その他一時金  
権利金 その他費用  
維持費等   都市計画  
用途地域 準工業  接道状況  
地目   建物構造・所在階/階数 鉄骨 2階建 
建物名   築年月(築年数) 1968年8月(築57年5ヶ月) 
条件等   契約期間 5年 
現況 居住中  引渡可能時期 2026年5月中旬 
情報提供元 アットホーム [6988579412] 情報公開日
情報更新日 - 次回更新予定日 随時

設備など

24時間セキュリティ - 1階 - 2階以上 -
即引渡し可 - 飲食店可 - エレベーター -
駐車場(近隣含) -        
設備  
備考 ■図面と現況が異なる場合は、現況を優先します。■別途火災保険加入要・賃貸保証等:加入要(全保連など。初回保証委託料:月額総賃料100%。年間保証委託料:月額総賃料10%(下限1万円))・保険等:要 築年月:1968/08築 
特記事項  

滋賀県彦根市地蔵町 周辺地図情報

地図
※地図上に表示される物件の位置は付近住所に所在することを表すものであり、実際の物件所在地とは異なる場合がございます。
   正確な物件所在地は、取扱い不動産会社にお問い合わせください。

不動産会社情報

お問い合わせ先 商号:eハート不動産(株)
免許番号:滋賀県知事免許(2)第3575号
所在地:彦根市戸賀町256-1北川ビル1F
TEL:0749-21-4147
取引態様:仲介
管理コード:
所属協会など:(公社)滋賀県宅地建物取引業協会会員、(公社)近畿地区不動産公正取引協議会加盟
共有する
QRコード

彦根市の暮らしデータ

人口などの統計情報

世帯数 48137世帯
人口総数 111118人
転入者数 5248人
転入率(人口1000人当たり)
47.23人
転出者数 5144人
転出率(人口1000人当たり)
46.29人
土地平均価格
住宅地
43656円/m2
商業地
73522円/m2

彦根市の治安・ごみ収集情報

公共料金・インフラ

ガス料金(22m3使用した場合の月額) 大阪瓦斯株式会社4544円
水道料金(口径20mmで20m3の月額) 彦根市2662円
下水道料金(20m3を使用した場合の月額) 彦根市2948円
下水道普及率 88.8%

安心・安全

建物火災出火件数 17件
人口10000人当たり
1.50件
刑法犯認知件数 686件
人口1000人当たり
6.04件
ハザード・防災マップ あり

医療

一般病院総数 3ヶ所
一般診療所総数 88ヶ所
小児科医師数 26人
小児人口10000人当たり
18.81人
産婦人科医師数 3人
15~49歳女性人口1万人当たり
1.38人
介護保険料基準額(月額) 6100円

ごみ

家庭ごみ収集(可燃ごみ) 無料
備考
指定ごみ袋は有料だが、袋代にごみ収集・処理料金等を含まず。
家庭ごみの分別方式 3分別11種〔燃やすごみ 埋立ごみ 資源(容器包装プラスチック、古紙・衣類[新聞、雑誌、牛乳パック、ダンボ―ル・厚紙類、衣類]、びん類、使用済乾電池、缶・金属類)〕 拠点回収:ペットボトル 廃食用油 使用済蛍光管
家庭ごみの戸別収集 一部実施(【ふれあい収集】高齢者・障害者・年少者だけで構成される世帯で、自らごみを指定された集積所まで運ぶことが困難な場合に、自宅まで収集を実施)
粗大ごみ収集 あり
備考
有料。戸別収集。事前申込制。または清掃センターへの直接搬入。
生ごみ処理機助成金制度 なし
上限金額
-
上限比率
-
暮らしデータ提供元:生活ガイド.com
※行政機関により公表していない地域及びデータがございます。東京23区以外の政令指定都市は、市全体のデータとして表示しています。
※提供データには細心の注意を払っておりますが、調査後に変更がある場合があります。 最新の情報につきましては各市区役所までお問い合わせいただくか、自治体HPなどをご確認ください。
OCN×ドコモ光新規お申込みで合計最大137,280円相当おトク!特典の内訳・適用条件など詳細はこちら

彦根市内の各駅の住みやすさ

掲載情報の著作権は提供元企業等に帰属します。
Copyright:(C) 2025 At Home Co.,Ltd
アプリで簡単 物件探し 大手不動産サイトの情報から一括検!プッシュ通知で物件を見逃さない
App Storeからダウンロード Google Playで手に入れよう QRコード