貸事務所

新東第一ビル 池袋駅 貸事務所

情報提供元
アットホーム
新東第一ビル
賃料 97.61万円  (管理費等:なし)
礼金・敷金 なし / なし 保証金/敷引・償却 6ヶ月 / 解約時10.00%償却
交通
所在地 東京都豊島区西池袋1丁目周辺地図
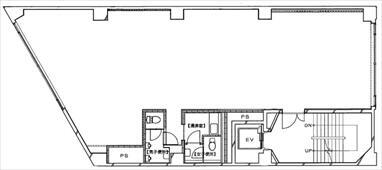
使用部分面積 120.59m2 土地面積 -
築年月 1970年10月 築年数 築55年3ヶ月
お問い合わせ先
On the room(同)
お問い合わせ先
On the room(同)

詳細情報

賃料 97.61万円  管理費等 なし 
敷金 なし  礼金 なし 
保証金 6ヶ月  敷引・償却 解約時10.00%償却 
所在地 東京都豊島区西池袋1丁目周辺地図
交通
使用部分面積 120.59m2  土地面積  
坪単価 2.68万円  その他一時金  
権利金 その他費用  
維持費等   都市計画  
用途地域   接道状況  
地目   建物構造・所在階/階数 SRC 3階/地上9階地下1階建 
建物名 新東第一ビル  築年月(築年数) 1970年10月(築55年3ヶ月) 
条件等 定期借家  契約期間 2年 
現況 居住中  引渡可能時期 2026年6月1日 
情報提供元 アットホーム [6988402110] 情報公開日
情報更新日 - 次回更新予定日 随時

設備など

24時間セキュリティ - 1階 - 2階以上
即引渡し可 - 飲食店可 - エレベーター
駐車場(近隣含) -        
設備 エレベーター 
備考 賃貸保証等:加入要(初回保証委託料:賃料、管理費などの1ヶ月分)・ビジネス拠点に良好な立地♪・バイク置場:なし・駐輪場:なし 築年月:1970/10築 
特記事項  

東京都豊島区西池袋1丁目 周辺地図情報

地図
※地図上に表示される物件の位置は付近住所に所在することを表すものであり、実際の物件所在地とは異なる場合がございます。
   正確な物件所在地は、取扱い不動産会社にお問い合わせください。
お問い合わせ先
On the room(同)
アピールポイント
・豊島区の不動産の事ならお任せください!物件はもちろん、周辺環境やお店の情報などなんでもお尋ねください。スタッフが親身におこたえします!・嬉しい【どこよりも安い工務店付き】なので、面倒なリフォーム工事もまとめて施工可能!オンザルームは、どこよりも初期費用お安く出来ます!・オンザルーム不動産は初期費用全額クレジット決済出来ます!敷金・礼金ゼロ物件や新着物件情報など多数ご用意しておりますので、お気軽にお問合せ下さい(^^)!☆お問い合わせ先はTEL:03-6823-4606☆ ・メールやラインだけでラクに早く引越しできます。ご来店が難しいお客様でも、お気軽にお問合せ下さいませ。この物件以外でお部屋をご検討されてる方も大歓迎です!まとめてご案内いたします!★オンライン内見オンライン相談可★ご契約までオンラインで完結可能★電気、ガス、ネット回線、引越しなどもまとめてお得に契約可能★安い工務店があるのでまとめてリフォーム可能★

不動産会社情報

お問い合わせ先 商号:On the room(同)
免許番号:東京都知事免許(1)第110526号
所在地:豊島区東池袋2丁目63番地1東池袋パレス1108号室
TEL:03-6823-4606
取引態様:仲介
管理コード:
所属協会など:(公社)全日本不動産協会会員、(公社)首都圏不動産公正取引協議会加盟
共有する
QRコード
お問い合わせ先
On the room(同)

豊島区の暮らしデータ

人口などの統計情報

世帯数 183687世帯
人口総数 291650人
転入者数 35939人
転入率(人口1000人当たり)
123.23人
転出者数 30649人
転出率(人口1000人当たり)
105.09人
土地平均価格
住宅地
783000円/m2
商業地
2992846円/m2

豊島区の治安・ごみ収集情報

公共料金・インフラ

ガス料金(22m3使用した場合の月額) 東京瓦斯株式会社(東京地区等)3926円
水道料金(口径20mmで20m3の月額) 東京都水道局2816円
下水道料金(20m3を使用した場合の月額) 東京都下水道局2068円
下水道普及率 100.0%

安心・安全

建物火災出火件数 78件
人口10000人当たり
2.59件
刑法犯認知件数 3405件
人口1000人当たり
11.29件
ハザード・防災マップ あり

医療

一般病院総数 14ヶ所
一般診療所総数 509ヶ所
小児科医師数 86人
小児人口10000人当たり
32.96人
産婦人科医師数 35人
15~49歳女性人口1万人当たり
4.75人
介護保険料基準額(月額) 6200円

ごみ

家庭ごみ収集(可燃ごみ) 無料
備考
一度に大量のごみを出す場合(45リットルの袋で4袋以上)は有料。
家庭ごみの分別方式 3分別13種〔燃やすごみ 金属・陶器・ガラスごみ 資源1(紙布類[新聞、雑誌、段ボール、厚紙製の箱、包装紙、牛乳パック、古布]、びん・かん・ペットボトル、プラスチック)〕 拠点回収:小型家電 蛍光灯 乾電池 廃食油
家庭ごみの戸別収集 一部実施(高齢者、障害者等の世帯で、自力でごみを集積所まで出すことが困難であり、身近な人の協力を得ることができない世帯に訪問収集を実施)
粗大ごみ収集 あり
備考
有料。事前申込制。
生ごみ処理機助成金制度 あり
上限金額
20000円
上限比率
50.0%
暮らしデータ提供元:生活ガイド.com
※行政機関により公表していない地域及びデータがございます。東京23区以外の政令指定都市は、市全体のデータとして表示しています。
※提供データには細心の注意を払っておりますが、調査後に変更がある場合があります。 最新の情報につきましては各市区役所までお問い合わせいただくか、自治体HPなどをご確認ください。
OCN×ドコモ光新規お申込みで合計最大137,280円相当おトク!特典の内訳・適用条件など詳細はこちら

豊島区内の各駅の住みやすさ

他のエリアから探す

豊島区の詳細地域から店舗・事業用物件を探す

池袋池袋本町要町上池袋北大塚駒込巣鴨千川雑司が谷高田高松千早長崎西池袋西巣鴨東池袋南池袋南大塚南長崎目白

近辺の市区から探す

川口市蕨市戸田市和光市千代田区中央区港区新宿区文京区台東区墨田区江東区目黒区世田谷区渋谷区中野区杉並区北区荒川区板橋区練馬区足立区葛飾区

周辺の駅から探す

山手線
新宿新大久保高田馬場目白池袋大塚巣鴨駒込田端
掲載情報の著作権は提供元企業等に帰属します。
Copyright:(C) 2025 At Home Co.,Ltd
アプリで簡単 物件探し 大手不動産サイトの情報から一括検!プッシュ通知で物件を見逃さない
App Storeからダウンロード Google Playで手に入れよう QRコード