アプリで簡単 物件探し 通知 共有 アプリならではの機能を使ってみる
賃貸マンション

URポートアイランド みなとじま駅 2LDK 賃貸(賃貸マンション・アパート)

情報提供元
SUUMO
URポートアイランド
賃料 8.39万円  (管理費等:2300円)
礼金・敷金 なし / 2ヶ月 保証金/敷引・償却 なし / -
交通
所在地 兵庫県神戸市中央区港島中町3周辺地図
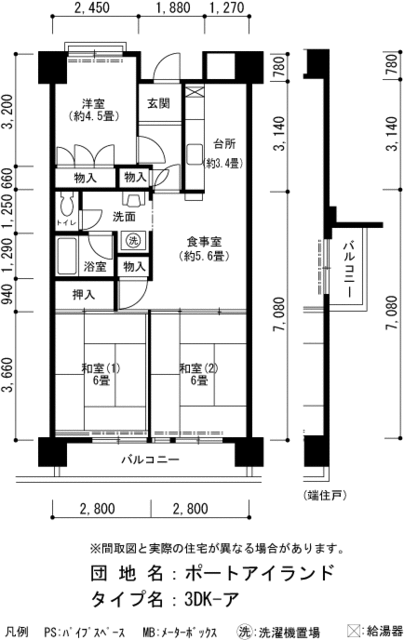
間取り 2LDK 専有面積 66.61m2
築年月 1980年3月 築年数 築45年9ヶ月
おすすめポイント
UR賃貸住宅は、礼金・仲介手数料・更新料・保証人不要! 周辺には病院や公園、少し歩けばIKEAでショッピングも楽しめる。三宮駅・神戸空港へのアクセスも快適、通勤・通学・お出かけにも便利な立地です。
お問い合わせ先
都市再生機構UR神戸営業センター
お問い合わせ先
都市再生機構UR神戸営業センター

詳細情報

賃料 8.39万円 管理費等 2300円
敷金 2ヶ月 礼金 なし
保証金 なし 敷引・償却 -
更新料 - 契約期間
カード決済 -
所在地 兵庫県神戸市中央区港島中町3周辺地図
交通
  • ポートアイランド線 みなとじま駅 徒歩5分乗換案内
  • ポートアイランド線 南公園駅 徒歩15分乗換案内
  • ポートアイランド線 中公園駅 徒歩8分乗換案内
建物名 URポートアイランド 
間取り 2LDK(和6 和6 洋4.5 D5.6K3.4) 築年月(築年数) 1980年3月(築45年9ヶ月)
専有面積 66.61㎡ 所在階/階数 4階/14階建
建物構造 SRC  方位 南 
現況   駐車場 無    近くの駐車場を探す
入居可能時期 即時 住宅保険 なし
情報提供元 SUUMO[060H100472957112] 情報公開日
情報更新日 次回更新予定日 随時

設備など

2階以上 最上階 - 角部屋
駐車場(近隣含) - エアコン付き バス・トイレ別
室内洗濯機置き場 追焚機能 - オートロック付き -
モニタ付インターホン - フローリング - バルコニー
ガスコンロ可 - 浴室乾燥機 - 24時間セキュリティ -
宅配ボックス - ペット相談可 - 二人入居可 -
設備 冷房・暖房・エアコン・バルコニー・バス・トイレ別・トイレ・収納スペース・洗濯機置場・洗面所・エレベーター・CATV・駐輪場・2面バルコニー・都市ガス・浴トイレ別・防犯カメラ・洗面所独立・コンロ2口以上・リフォーム・インターネット対応・室内洗濯機置き場 
リフォーム履歴 -
リノベーション履歴 -
備考 面積には、バルコニー面積2分の1を含みます。UR賃貸住宅は、礼金・仲介手数料・更新料・保証人不要! 月々の家賃でPontaポイントが貯まる!/バストイレ別/エアコン/室内洗濯置/南向き/角住戸/エレベーター/洗面所独立/洗面化粧台/駐輪場/押入/CATV/光ファイバー/即入居可/礼金不要/3口以上コンロ/防犯カメラ/保証人不要/仲介手数料不要/2面バルコニー/敷金2ヶ月/保証金不要/3駅以上利用可/駅徒歩5分以内/駅徒歩10分以内/アルコーブ/敷地内遊び場/敷地内ごみ置き場/都市ガス/高速ネット対応/初期費用30万円以下/リフォーム:2024年8月(キッチン、床)/神戸市役所(役所)まで2018m/トーホー ポーアイ店(スーパー)まで549m/大丸神戸店(スーパー)まで2210m/港島小学校(小学校)まで764m/港島中学校(中学校)まで822m/ポートアイランド病院(病院)まで715m/賃貸戸数:148戸 
特記事項 角部屋・保証人不要/代行

省エネ性能

エネルギー消費性能 -
断熱性能 -
目安光熱費 -

兵庫県神戸市中央区港島中町3 周辺地図情報

地図
※地図上に表示される物件の位置は付近住所に所在することを表すものであり、実際の物件所在地とは異なる場合がございます。
   正確な物件所在地は、取扱い不動産会社にお問い合わせください。
お問い合わせ先
都市再生機構UR神戸営業センター

不動産会社情報

お問い合わせ先 商号:都市再生機構UR神戸営業センター
免許番号:公団・公社()第号
所在地:兵庫県神戸市中央区加納町4-2-1 神戸三宮阪急ビル8階
TEL:078-571-6789
取引態様:貸主
管理コード:80-277-00000600401
共有する
QRコード
お問い合わせ先
都市再生機構UR神戸営業センター

神戸市中央区の暮らしデータ

人口などの統計情報

世帯数 734091世帯
人口総数 1500425人
転入者数 75773人
転入率(人口1000人当たり)
50.50人
転出者数 75052人
転出率(人口1000人当たり)
50.02人
土地平均価格
住宅地
196681円/m2
商業地
844842円/m2

結婚・育児の助成金

子育て関連の独自の取り組み (1)妊産婦タクシー利用券。(2)産後ケア事業(32ヶ所)。(3)多胎児家庭支援の充実(多胎児家庭ホームヘルプサービス等)。(4)多様な保育施設で待機児童3年連続ゼロ(保育送迎ステーション等)。(5)病児保育(22ヶ所)。(6)夜間、休日に年中無休で診療する「神戸こども初期急病センター」。(7)天候関係なく無料で遊べる場所の充実(こべっこランド、こども本の森神戸、児童館120ヶ所等)。(8)学童保育希望者全員受入れ。(9)インフルエンザ予防接種費の一部助成(12歳まで)。(10)市民が市内高校に通う通学定期代無料化。(11)子連れ利用可能な無料コワーキングスペース(無料の一時保育付)。(12)大人同伴の小学生以下の市バス・地下鉄の料金が無料。(13)住み替え補助(「住みかえーる」で検索)。
出産祝い あり
公立保育所数 56所(うち0歳児保育を実施している保育所:45所)
私立保育所数 70所(うち0歳児保育を実施している保育所:67所)
保育所入所待機児童数 0人
認定こども園数 191園 預かり保育実施園数 公立:28園 私立:37園
学校給食 【小学校】完全給食【中学校】完全給食 デリバリー形式[運搬:ランチボックス、内容:完全給食]、但し家庭弁当等の持参も可(2024年9月から順次全員喫食制へ移行)
公立中学校の学校選択制 一部実施(特定地域選択制)
子ども・学生等医療費助成<通院>対象年齢 18歳3月末まで 子ども・学生等医療費助成<入院>対象年齢 18歳3月末まで

神戸市中央区の治安・ごみ収集情報

公共料金・インフラ

ガス料金(22m3使用した場合の月額) 大阪瓦斯株式会社4544円
伊丹産業株式会社7185円
水道料金(口径20mmで20m3の月額) 神戸市2926円
下水道料金(20m3を使用した場合の月額) 神戸市1760円
下水道普及率 98.7%

安心・安全

建物火災出火件数 236件
人口10000人当たり
1.55件
刑法犯認知件数 12014件
人口1000人当たり
7.88件
ハザード・防災マップ あり

医療

一般病院総数 98ヶ所
一般診療所総数 1643ヶ所
小児科医師数 408人
小児人口10000人当たり
24.03人
産婦人科医師数 190人
15~49歳女性人口1万人当たり
6.47人
介護保険料基準額(月額) 6580円

ごみ

家庭ごみ収集(可燃ごみ) 無料
備考
指定ごみ袋は有料だが、袋代にごみ収集・処理料金等を含まず。
家庭ごみの分別方式 5分別〔缶・びん・ペットボトル 容器包装プラスチック 燃えないごみ カセットボンベ・スプレー缶 燃えるごみ〕 拠点回収:使用済小型家電 カセットボンベ・スプレー缶 水銀体温計・温度計・血圧計 蛍光管 乾電池・充電式電池・ボタン電池
家庭ごみの戸別収集 一部実施(【ひまわり収集】クリーンステーションまで、ごみを持ち出すことが困難な高齢者または障害者など一部の対象者に実施)
粗大ごみ収集 あり
備考
有料。戸別収集。事前申込制。申込みの後、大型ごみシール券を購入し貼付けて出すか、キャッシュレス決済を行う。申込みから1~2週間程度で収集。
生ごみ処理機助成金制度 なし
上限金額
-
上限比率
-
暮らしデータ提供元:生活ガイド.com
※行政機関により公表していない地域及びデータがございます。東京23区以外の政令指定都市は、市全体のデータとして表示しています。
※提供データには細心の注意を払っておりますが、調査後に変更がある場合があります。 最新の情報につきましては各市区役所までお問い合わせいただくか、自治体HPなどをご確認ください。
OCN×ドコモ光新規お申込みで合計最大137,280円相当おトク!特典の内訳・適用条件など詳細はこちら

掲載情報の著作権は提供元企業等に帰属します。
Copyright:(C) 2025 Recruit Co., Ltd.
アプリで簡単 物件探し 大手不動産サイトの情報から一括検!プッシュ通知で物件を見逃さない
App Storeからダウンロード Google Playで手に入れよう QRコード