アプリで簡単 物件探し 通知 共有 アプリならではの機能を使ってみる
賃貸マンション

ネクストステージ神戸元町 元町駅 1LDK 賃貸(賃貸マンション・アパート)

情報提供元
SUUMO
ネクストステージ神戸元町
賃料 11.1万円  (管理費等:8000円)
礼金・敷金 なし / なし 保証金/敷引・償却 なし / -
交通
所在地 兵庫県神戸市中央区元町通3周辺地図
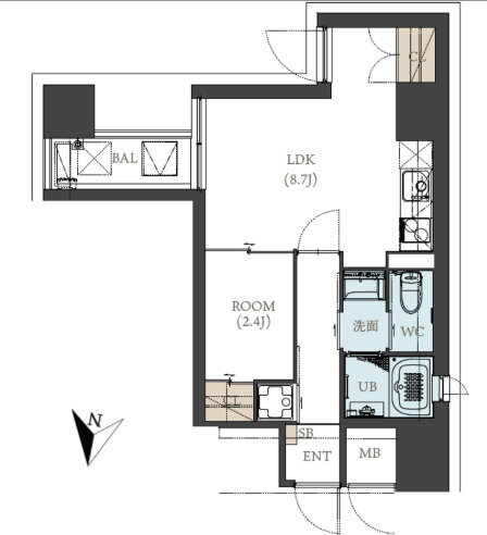
間取り 1LDK 専有面積 35.5m2
築年月 2025年9月 築年数 新築
おすすめポイント
こちらの物件にはエレベーターが付いています 共用部には宅配ボックスが備え付けられているため、忙しくて在宅時間が少なくても荷物を受け取れます。室内設備は洗面所独立・浴室乾燥機などが揃っており、とても充実しています。
お問い合わせ先
(株)プラン・ドゥ・シー垂水店
お問い合わせ先
(株)プラン・ドゥ・シー垂水店

詳細情報

賃料 11.1万円 管理費等 8000円
敷金 なし 礼金 なし
保証金 なし 敷引・償却 -
更新料 - 契約期間
カード決済 初期費用カード決済可
所在地 兵庫県神戸市中央区元町通3周辺地図
交通
建物名 ネクストステージ神戸元町 
間取り 1LDK 築年月(築年数) 2025年9月 新築
専有面積 35.5㎡ 所在階/階数 8階/11階建
建物構造 RC  方位  
現況   駐車場 近有 20,000円
入居可能時期 相談 住宅保険 あり 2年 16000円
情報提供元 SUUMO[060H100451859642] 情報公開日
情報更新日 次回更新予定日 随時

設備など

2階以上 最上階 - 角部屋
駐車場(近隣含) エアコン付き バス・トイレ別
室内洗濯機置き場 - 追焚機能 オートロック付き
モニタ付インターホン フローリング バルコニー
ガスコンロ可 - 浴室乾燥機 24時間セキュリティ -
宅配ボックス ペット相談可 二人入居可
設備 冷房・暖房・エアコン・オートロック・バルコニー・バス・トイレ別・トイレ・収納スペース・洗面所・エレベーター・CATV・BS端子・追焚機能・フローリング・浴室乾燥機・シャンプードレッサ・温水洗浄便座・システムキッチン・モニタ付インターホン・宅配BOX・駐輪場・風呂・クローゼット・CS・衣類乾燥機・都市ガス・IHクッキングヒータ・浴トイレ別・防犯カメラ・洗面所独立・バイク置き場・コンロ2口以上・シューズボックス・インターネット対応 
リフォーム履歴 -
リノベーション履歴 -
備考 鍵交換代1.65万円/保証会社利用可:総賃料の40%(保証人有り)、総賃料の50%(保証人無し)、更新時10 000円or800円¥¥/月 口座振替手数料330円¥¥/月/普通借家02年0ヶ月/二人入居可/ペット相談/ペット飼育可(賃料3 000円UP)短期違約金あり:1年未満は2か月分、2年未満は1か月分の賃料。 お部屋探しは是非当社まで。女性スタッフ対応も可能☆単身、カップル(新婚)、ファミリー様、保証人不要、福祉など様々なお部屋探しのシーンにご対応可能です!更新料なしの賃貸物件や初期費用相談可能な物件、ペット飼育可能物件や入居審査が中々通らない。。。などその他色んなニーズにも対応可能です。/バストイレ別/バルコニー/エアコン/クロゼット/フローリング/シャワー付洗面台/TVインターホン/浴室乾燥機/オートロック/陽当り良好/シューズボックス/システムキッチン/追焚機能浴室/角住戸/温水洗浄便座/脱衣所/エレベーター/洗面所独立/洗面化粧台/2口コンロ/駐輪場/宅配ボックス/CATV/礼金不要/敷金不要/防犯カメラ/ペット相談/IHクッキングヒーター/CATVインターネット/バイク置場/デザイナーズ/2沿線利用可/CS/駅まで平坦/眺望良好/浴室に窓/24時間換気システム/外壁コンクリート/平坦地/耐火構造/3沿線以上利用可/駅前/駅徒歩5分以内/高層階/敷地内ごみ置き場/都市ガス/洗面所にドア/玄関収納/BS/高速ネット対応/敷金・礼金不要/IT重説 対応物件/初期費用カード決済可/通風良好/サンドラッグ 神戸元町調剤薬局(ドラッグストア)まで30m/ココカラファイン 神戸元町店(ドラッグストア)まで90m/セブンイレブン 神戸元町商店街店(コンビニ)まで160m/ファミリーマート 栄町通店(コンビニ)まで152m/神戸海岸通郵便局(郵便局)まで212m/生田警察署元町通交番(警察署・交番)まで272m 
特記事項 ペット相談可・二人入居可・角部屋・日当り良好・デザイナーズ物件・初期費用カード決済可

省エネ性能

エネルギー消費性能 -
断熱性能 -
目安光熱費 -

兵庫県神戸市中央区元町通3 周辺地図情報

地図
※地図上に表示される物件の位置は付近住所に所在することを表すものであり、実際の物件所在地とは異なる場合がございます。
   正確な物件所在地は、取扱い不動産会社にお問い合わせください。
お問い合わせ先
(株)プラン・ドゥ・シー垂水店

不動産会社情報

お問い合わせ先 商号:(株)プラン・ドゥ・シー垂水店
免許番号:国土交通大臣(2)第9550号
所在地:兵庫県神戸市垂水区神田町 2-27 1階
TEL:078-600-0540
取引態様:仲介
管理コード:1496452
共有する
QRコード
お問い合わせ先
(株)プラン・ドゥ・シー垂水店

    神戸市中央区の暮らしデータ

    人口などの統計情報

    世帯数 734091世帯
    人口総数 1500425人
    転入者数 75773人
    転入率(人口1000人当たり)
    50.50人
    転出者数 75052人
    転出率(人口1000人当たり)
    50.02人
    土地平均価格
    住宅地
    196681円/m2
    商業地
    844842円/m2

    結婚・育児の助成金

    子育て関連の独自の取り組み (1)妊産婦タクシー利用券。(2)産後ケア事業(32ヶ所)。(3)多胎児家庭支援の充実(多胎児家庭ホームヘルプサービス等)。(4)多様な保育施設で待機児童3年連続ゼロ(保育送迎ステーション等)。(5)病児保育(22ヶ所)。(6)夜間、休日に年中無休で診療する「神戸こども初期急病センター」。(7)天候関係なく無料で遊べる場所の充実(こべっこランド、こども本の森神戸、児童館120ヶ所等)。(8)学童保育希望者全員受入れ。(9)インフルエンザ予防接種費の一部助成(12歳まで)。(10)市民が市内高校に通う通学定期代無料化。(11)子連れ利用可能な無料コワーキングスペース(無料の一時保育付)。(12)大人同伴の小学生以下の市バス・地下鉄の料金が無料。(13)住み替え補助(「住みかえーる」で検索)。
    出産祝い あり
    公立保育所数 56所(うち0歳児保育を実施している保育所:45所)
    私立保育所数 70所(うち0歳児保育を実施している保育所:67所)
    保育所入所待機児童数 0人
    認定こども園数 191園 預かり保育実施園数 公立:28園 私立:37園
    学校給食 【小学校】完全給食【中学校】完全給食 デリバリー形式[運搬:ランチボックス、内容:完全給食]、但し家庭弁当等の持参も可(2024年9月から順次全員喫食制へ移行)
    公立中学校の学校選択制 一部実施(特定地域選択制)
    子ども・学生等医療費助成<通院>対象年齢 18歳3月末まで 子ども・学生等医療費助成<入院>対象年齢 18歳3月末まで

    神戸市中央区の治安・ごみ収集情報

    公共料金・インフラ

    ガス料金(22m3使用した場合の月額) 大阪瓦斯株式会社4544円
    伊丹産業株式会社7185円
    水道料金(口径20mmで20m3の月額) 神戸市2926円
    下水道料金(20m3を使用した場合の月額) 神戸市1760円
    下水道普及率 98.7%

    安心・安全

    建物火災出火件数 236件
    人口10000人当たり
    1.55件
    刑法犯認知件数 12014件
    人口1000人当たり
    7.88件
    ハザード・防災マップ あり

    医療

    一般病院総数 98ヶ所
    一般診療所総数 1643ヶ所
    小児科医師数 408人
    小児人口10000人当たり
    24.03人
    産婦人科医師数 190人
    15~49歳女性人口1万人当たり
    6.47人
    介護保険料基準額(月額) 6580円

    ごみ

    家庭ごみ収集(可燃ごみ) 無料
    備考
    指定ごみ袋は有料だが、袋代にごみ収集・処理料金等を含まず。
    家庭ごみの分別方式 5分別〔缶・びん・ペットボトル 容器包装プラスチック 燃えないごみ カセットボンベ・スプレー缶 燃えるごみ〕 拠点回収:使用済小型家電 カセットボンベ・スプレー缶 水銀体温計・温度計・血圧計 蛍光管 乾電池・充電式電池・ボタン電池
    家庭ごみの戸別収集 一部実施(【ひまわり収集】クリーンステーションまで、ごみを持ち出すことが困難な高齢者または障害者など一部の対象者に実施)
    粗大ごみ収集 あり
    備考
    有料。戸別収集。事前申込制。申込みの後、大型ごみシール券を購入し貼付けて出すか、キャッシュレス決済を行う。申込みから1~2週間程度で収集。
    生ごみ処理機助成金制度 なし
    上限金額
    -
    上限比率
    -
    暮らしデータ提供元:生活ガイド.com
    ※行政機関により公表していない地域及びデータがございます。東京23区以外の政令指定都市は、市全体のデータとして表示しています。
    ※提供データには細心の注意を払っておりますが、調査後に変更がある場合があります。 最新の情報につきましては各市区役所までお問い合わせいただくか、自治体HPなどをご確認ください。
    OCN×ドコモ光新規お申込みで合計最大137,280円相当おトク!特典の内訳・適用条件など詳細はこちら

    他のエリアから探す

    神戸市中央区の詳細地域から賃貸物件を探す

    相生町旭通吾妻通生田町磯上通磯辺通伊藤町江戸町小野柄通海岸通籠池通加納町上筒井通神若通北長狭通北野町北本町通楠町国香通雲井通熊内町熊内橋通琴ノ緒町古湊通御幸通栄町通坂口通東雲通下山手通新港町神仙寺通諏訪山町橘通多聞通大日通筒井町中尾町中島通中町通中山手通二宮町布引町野崎通旗塚通八幡通花隈町浜辺通東川崎町日暮通葺合町再度筋町港島港島中町南本町通宮本通元町通八雲通山本通若菜通脇浜海岸通脇浜町割塚通

    近辺の市区から探す

    神戸市東灘区神戸市灘区神戸市兵庫区神戸市長田区神戸市須磨区神戸市北区芦屋市

    周辺の駅から探す

    東海道本線
    六甲道摩耶三ノ宮元町神戸
    神戸市西神山手線
    新神戸三宮県庁前大倉山湊川公園上沢長田
    阪神電鉄本線
    西灘岩屋春日野道神戸三宮元町

    兵庫県神戸市中央区で他のジャンルから探す


    掲載情報の著作権は提供元企業等に帰属します。
    Copyright:(C) 2025 Recruit Co., Ltd.
    アプリで簡単 物件探し 大手不動産サイトの情報から一括検!プッシュ通知で物件を見逃さない
    App Storeからダウンロード Google Playで手に入れよう QRコード