アプリで簡単 物件探し 通知 共有 アプリならではの機能を使ってみる
賃貸マンション

プレサンス神戸長田ラディアラ 新長田駅 1K 賃貸(賃貸マンション・アパート)

情報提供元
SUUMO
プレサンス神戸長田ラディアラ
賃料 6.52万円  (管理費等:6870円)
礼金・敷金 8万円 / なし 保証金/敷引・償却 なし / -
交通
所在地 兵庫県神戸市長田区若松町1周辺地図
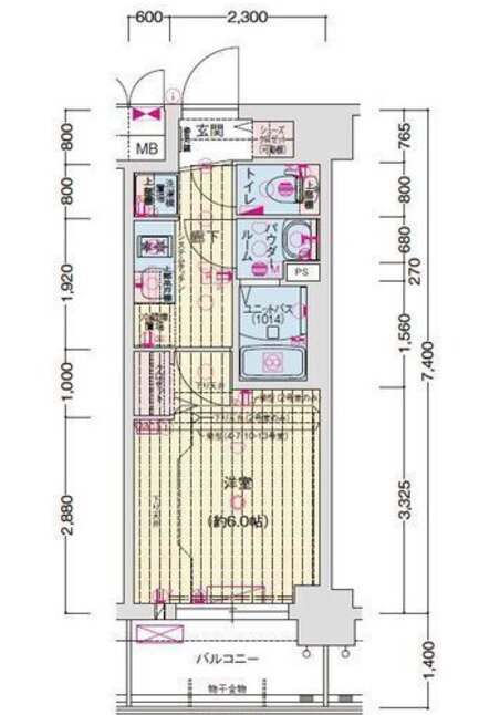
間取り 1K 専有面積 21.46m2
築年月 2025年1月 築年数 築0年12ヶ月
おすすめポイント
≪≪お問い合わせの際は電話番号をご入力ください♪≫≫ 収納はシューズボックス・クロゼット・全居室収納など豊富なので、広々と空間を利用することも可能です!安心のオートロックが嬉しい、防犯対策を考慮した物件です!閑静な住宅地にある物件です(#^^#)
お問い合わせ先
(株)プラスエステートホーム
お問い合わせ先
(株)プラスエステートホーム

詳細情報

賃料 6.52万円 管理費等 6870円
敷金 なし 礼金 8万円
保証金 なし 敷引・償却 -
更新料 - 契約期間
カード決済 初期費用カード決済可
所在地 兵庫県神戸市長田区若松町1周辺地図
交通
建物名 プレサンス神戸長田ラディアラ 
間取り 1K(洋6.0) 築年月(築年数) 2025年1月(築0年12ヶ月)
専有面積 21.46㎡ 所在階/階数 3階/7階建
建物構造 RC  方位  
現況   駐車場 有 13,000円
入居可能時期 相談 住宅保険 あり 1年 11000円
情報提供元 SUUMO[060H100474408218] 情報公開日
情報更新日 次回更新予定日 随時

設備など

2階以上 最上階 - 角部屋 -
駐車場(近隣含) エアコン付き バス・トイレ別
室内洗濯機置き場 追焚機能 オートロック付き
モニタ付インターホン - フローリング バルコニー
ガスコンロ可 浴室乾燥機 24時間セキュリティ -
宅配ボックス ペット相談可 - 二人入居可 -
設備 冷房・暖房・エアコン・オートロック・バルコニー・バス・トイレ別・トイレ・収納スペース・洗濯機置場・洗面所・エレベーター・追焚機能・フローリング・浴室乾燥機・照明器具・ガスコンロ可・温水洗浄便座・システムキッチン・宅配BOX・駐輪場・風呂・クローゼット・衣類乾燥機・都市ガス・ディンプルキー・浴トイレ別・洗面所独立・バイク置き場・コンロ2口以上・シューズボックス・インターネット無料・インターネット対応・室内洗濯機置き場 
リフォーム履歴 -
リノベーション履歴 -
備考 更新料 11000円 室内清掃費用 33000円 プレサポ24 月額990円/保証会社利用必:初期:総家賃の50%   更新:月々1.5%/普通借家01年0ヶ月/法人希望/単身者可/バストイレ別/バルコニー/エアコン/ガスコンロ対応/クロゼット/フローリング/浴室乾燥機/オートロック/室内洗濯置/シューズボックス/システムキッチン/追焚機能浴室/温水洗浄便座/脱衣所/エレベーター/洗面所独立/洗面化粧台/2口コンロ/駐輪場/宅配ボックス/閑静な住宅地/敷金不要/独立型キッチン/照明付/全居室収納/全居室洋室/バイク置場/全居室フローリング/2沿線利用可/ディンプルキー/駅まで平坦/ネット使用料不要/築2年以内/24時間換気システム/平坦地/人感照明センサー/浴室未使用/未入居/2駅利用可/3駅以上利用可/3沿線以上利用可/駅前/駅徒歩5分以内/駅徒歩10分以内/平面駐車場/全居室6畳以上/都市ガス/シューズWIC/高齢者歓迎/初期費用カード決済可/全室照明付/西友 新長田(スーパー)まで458m/神戸保育園(幼稚園・保育園)まで642m/神戸常盤短期大学附属幼稚園(幼稚園・保育園)まで1345m/神戸市立真陽小学校(小学校)まで459m/神戸市立駒ケ林中学校(中学校)まで833m/私立神戸常盤女子高校(高校・高専)まで1626m 
特記事項 法人契約希望・閑静な住宅街・高齢者相談・初期費用カード決済可

省エネ性能

エネルギー消費性能 -
断熱性能 -
目安光熱費 -

兵庫県神戸市長田区若松町1 周辺地図情報

地図
※地図上に表示される物件の位置は付近住所に所在することを表すものであり、実際の物件所在地とは異なる場合がございます。
   正確な物件所在地は、取扱い不動産会社にお問い合わせください。
お問い合わせ先
(株)プラスエステートホーム

不動産会社情報

お問い合わせ先 商号:(株)プラスエステートホーム
免許番号:兵庫県知事(2)第12138号
所在地:兵庫県神戸市長田区水笠通4-1-1 ルータス山吉112
TEL:078-786-3241
取引態様:仲介
管理コード:506171
所属協会など:(公社)近畿地区不動産公正取引協議会加盟、(一社)兵庫県宅地建物取引業協会会員
共有する
QRコード
お問い合わせ先
(株)プラスエステートホーム

    神戸市長田区の暮らしデータ

    人口などの統計情報

    世帯数 734091世帯
    人口総数 1500425人
    転入者数 75773人
    転入率(人口1000人当たり)
    50.50人
    転出者数 75052人
    転出率(人口1000人当たり)
    50.02人
    土地平均価格
    住宅地
    196681円/m2
    商業地
    844842円/m2

    結婚・育児の助成金

    子育て関連の独自の取り組み (1)妊産婦タクシー利用券。(2)産後ケア事業(32ヶ所)。(3)多胎児家庭支援の充実(多胎児家庭ホームヘルプサービス等)。(4)多様な保育施設で待機児童3年連続ゼロ(保育送迎ステーション等)。(5)病児保育(22ヶ所)。(6)夜間、休日に年中無休で診療する「神戸こども初期急病センター」。(7)天候関係なく無料で遊べる場所の充実(こべっこランド、こども本の森神戸、児童館120ヶ所等)。(8)学童保育希望者全員受入れ。(9)インフルエンザ予防接種費の一部助成(12歳まで)。(10)市民が市内高校に通う通学定期代無料化。(11)子連れ利用可能な無料コワーキングスペース(無料の一時保育付)。(12)大人同伴の小学生以下の市バス・地下鉄の料金が無料。(13)住み替え補助(「住みかえーる」で検索)。
    出産祝い あり
    公立保育所数 56所(うち0歳児保育を実施している保育所:45所)
    私立保育所数 70所(うち0歳児保育を実施している保育所:67所)
    保育所入所待機児童数 0人
    認定こども園数 191園 預かり保育実施園数 公立:28園 私立:37園
    学校給食 【小学校】完全給食【中学校】完全給食 デリバリー形式[運搬:ランチボックス、内容:完全給食]、但し家庭弁当等の持参も可(2024年9月から順次全員喫食制へ移行)
    公立中学校の学校選択制 一部実施(特定地域選択制)
    子ども・学生等医療費助成<通院>対象年齢 18歳3月末まで 子ども・学生等医療費助成<入院>対象年齢 18歳3月末まで

    神戸市長田区の治安・ごみ収集情報

    公共料金・インフラ

    ガス料金(22m3使用した場合の月額) 大阪瓦斯株式会社4544円
    伊丹産業株式会社7185円
    水道料金(口径20mmで20m3の月額) 神戸市2926円
    下水道料金(20m3を使用した場合の月額) 神戸市1760円
    下水道普及率 98.7%

    安心・安全

    建物火災出火件数 236件
    人口10000人当たり
    1.55件
    刑法犯認知件数 12014件
    人口1000人当たり
    7.88件
    ハザード・防災マップ あり

    医療

    一般病院総数 98ヶ所
    一般診療所総数 1643ヶ所
    小児科医師数 408人
    小児人口10000人当たり
    24.03人
    産婦人科医師数 190人
    15~49歳女性人口1万人当たり
    6.47人
    介護保険料基準額(月額) 6580円

    ごみ

    家庭ごみ収集(可燃ごみ) 無料
    備考
    指定ごみ袋は有料だが、袋代にごみ収集・処理料金等を含まず。
    家庭ごみの分別方式 5分別〔缶・びん・ペットボトル 容器包装プラスチック 燃えないごみ カセットボンベ・スプレー缶 燃えるごみ〕 拠点回収:使用済小型家電 カセットボンベ・スプレー缶 水銀体温計・温度計・血圧計 蛍光管 乾電池・充電式電池・ボタン電池
    家庭ごみの戸別収集 一部実施(【ひまわり収集】クリーンステーションまで、ごみを持ち出すことが困難な高齢者または障害者など一部の対象者に実施)
    粗大ごみ収集 あり
    備考
    有料。戸別収集。事前申込制。申込みの後、大型ごみシール券を購入し貼付けて出すか、キャッシュレス決済を行う。申込みから1~2週間程度で収集。
    生ごみ処理機助成金制度 なし
    上限金額
    -
    上限比率
    -
    暮らしデータ提供元:生活ガイド.com
    ※行政機関により公表していない地域及びデータがございます。東京23区以外の政令指定都市は、市全体のデータとして表示しています。
    ※提供データには細心の注意を払っておりますが、調査後に変更がある場合があります。 最新の情報につきましては各市区役所までお問い合わせいただくか、自治体HPなどをご確認ください。
    OCN×ドコモ光新規お申込みで合計最大137,280円相当おトク!特典の内訳・適用条件など詳細はこちら

    神戸市長田区内の各駅の住みやすさ

    他のエリアから探す

    神戸市長田区の詳細地域から賃貸物件を探す

    池田上町池田経町池田寺町池田広町一番町一里山町鶯町腕塚町梅ケ香町大谷町大塚町大橋町大道通重池町御屋敷通海運町神楽町片山町上池田苅藻通川西通北町久保町源平町高東町駒栄町駒ケ林町五位ノ池町五番町鹿松町庄田町庄山町菅原通高取山町滝谷町大日丘町大丸町長者町寺池町戸崎通長尾町長田町長田天神町長楽町名倉町浪松町西尻池町西代通西丸山町西山町二番町野田町萩乃町蓮宮通花山町浜添通林山町檜川町東尻池町東丸山町雲雀ケ丘日吉町二葉町平和台町細田町堀切町本庄町房王寺町前原町松野通真野町丸山町御蔵通水笠通御船通宮丘町宮川町明泉寺町山下町四番町六番町若松町

    近辺の市区から探す

    神戸市東灘区神戸市灘区神戸市兵庫区神戸市須磨区神戸市垂水区神戸市北区神戸市中央区

    周辺の駅から探す

    山陽本線
    神戸兵庫和田岬新長田鷹取須磨海浜公園須磨塩屋
    神戸市海岸線
    新長田駒ヶ林苅藻御崎公園和田岬中央市場前
    山陽電気鉄道本線
    西代板宿東須磨月見山須磨寺

    兵庫県神戸市長田区で他のジャンルから探す


    掲載情報の著作権は提供元企業等に帰属します。
    Copyright:(C) 2025 Recruit Co., Ltd.
    アプリで簡単 物件探し 大手不動産サイトの情報から一括検!プッシュ通知で物件を見逃さない
    App Storeからダウンロード Google Playで手に入れよう QRコード