賃貸マンション
大阪府高石市羽衣5 伽羅橋駅 3LDK 賃貸(賃貸マンション・アパート)
| 賃料 |
7.3万円 (管理費等:9000円) |
| 礼金・敷金 |
12万円 / なし |
保証金/敷引・償却 |
なし / - |
| 交通 |
|
| 所在地 |
大阪府高石市羽衣5周辺地図
|
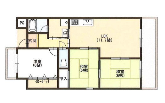
| 間取り |
3LDK |
専有面積 |
65m2 |
| 築年月 |
1996年12月 |
築年数 |
築29年1ヶ月 |
- おすすめポイント
- オートロック付き♪3LDK♪ 弊社では、初期費用のカード決済や立替あと払いによる分割支払いも可能です。様々な事情をお持ちの方や小さなご質問、ご相談も地域密着のMIRAI不動産へお任せください♪072-288-6330
- お問い合わせ先
- (株)LionelMIRAI不動産鳳店
- お問い合わせ先
- (株)LionelMIRAI不動産鳳店
| 賃料 |
7.3万円 |
管理費等 |
9000円 |
| 敷金 |
なし |
礼金 |
12万円 |
| 保証金 |
なし |
敷引・償却 |
- |
| 更新料 |
- |
契約期間 |
|
| カード決済 |
初期費用カード決済可 |
| 所在地 |
大阪府高石市羽衣5周辺地図
|
| 交通 |
|
| 建物名 |
|
| 間取り |
3LDK(和6.0 和6.0 洋6.0 LDK11.7) |
築年月(築年数) |
1996年12月(築29年1ヶ月)
|
| 専有面積 |
65㎡ |
所在階/階数 |
4階/6階建
|
| 建物構造 |
RC |
方位 |
|
| 現況 |
|
駐車場 |
有 11,000円 |
| 入居可能時期 |
即時 |
住宅保険 |
あり |
| 情報提供元 |
SUUMO[060H100473822932] |
情報公開日 |
|
| 情報更新日 |
|
次回更新予定日 |
随時 |
設備など
| 2階以上 |
○ |
最上階 |
- |
角部屋 |
- |
| 駐車場(近隣含) |
○ |
エアコン付き |
- |
バス・トイレ別 |
○ |
| 室内洗濯機置き場 |
○ |
追焚機能 |
- |
オートロック付き |
○ |
| モニタ付インターホン |
- |
フローリング |
○ |
バルコニー |
○ |
| ガスコンロ可 |
- |
浴室乾燥機 |
- |
24時間セキュリティ |
- |
| 宅配ボックス |
- |
ペット相談可 |
- |
二人入居可 |
○ |
| 設備 |
オートロック・バルコニー・バス・トイレ別・トイレ・収納スペース・洗濯機置場・洗面所・BS端子・フローリング・シャンプードレッサ・温水洗浄便座・駐輪場・クローゼット・CS・都市ガス・浴トイレ別・洗面所独立・インターネット対応・室内洗濯機置き場 |
| リフォーム履歴 |
- |
| リノベーション履歴 |
- |
| 備考 |
損保要/ライフサポート24 月額880円/保証会社利用必:保証会社の加入が必要です。/普通借家02年0ヶ月/二人入居可/子供可/ルームシェア相談/現地お待ち合わせ、オンライン内見可♪柔軟に対応させていただきますので、どうぞお気軽にご相談ください!LINEでのお問い合わせも可能です♪ID:@061gkbcy/バストイレ別/バルコニー/クロゼット/フローリング/シャワー付洗面台/オートロック/室内洗濯置/陽当り良好/温水洗浄便座/脱衣所/洗面所独立/洗面化粧台/駐輪場/押入/光ファイバー/即入居可/閑静な住宅地/BS・CS/敷金不要/2沿線利用可/CS/ネット専用回線/駅まで平坦/緑豊かな住宅地/眺望良好/平坦地/ルームシェア相談/学生相談/一部フローリング/2駅利用可/3駅以上利用可/3沿線以上利用可/駅徒歩5分以内/駅徒歩10分以内/敷地内ごみ置き場/和室/全居室6畳以上/都市ガス/洗面所にドア/縦型照明付洗面化粧台/BS/LAN/IT重説 対応物件/初期費用カード決済可/通風良好/巡回管理/高石市立羽衣小学校(小学校)まで166m/高石中学校(中学校)まで1045m/じゃんぼ食鮮館羽衣(スーパー)まで556m/ファミリーマート 羽衣駅東店(コンビニ)まで647m/高石東羽衣郵便局(郵便局)まで520m/ウエルシア高石東羽衣店(ドラッグストア)まで680m |
| 特記事項 |
二人入居可・管理人巡回・日当り良好・閑静な住宅街・ルームシェア可・初期費用カード決済可 |
大阪府高石市羽衣5 周辺地図情報
※地図上に表示される物件の位置は付近住所に所在することを表すものであり、実際の物件所在地とは異なる場合がございます。
正確な物件所在地は、取扱い不動産会社にお問い合わせください。
- お問い合わせ先
- (株)LionelMIRAI不動産鳳店
不動産会社情報
| お問い合わせ先 |
商号:(株)LionelMIRAI不動産鳳店 免許番号:大阪府知事(1)第64608号 所在地:大阪府堺市西区鳳東町7-765-9 TEL:072-288-6330 取引態様:仲介 管理コード:722335 所属協会など:(公社)近畿地区不動産公正取引協議会加盟、(公社)全日本不動産協会大阪府本部会員
|
共有する |
|
- お問い合わせ先
- (株)LionelMIRAI不動産鳳店
人口などの統計情報
| 世帯数 |
23099世帯 |
| 人口総数 |
56481人 |
| 転入者数 |
2029人
- 転入率(人口1000人当たり)
- 35.92人
|
| 転出者数 |
2251人
- 転出率(人口1000人当たり)
- 39.85人
|
| 土地平均価格 |
- 住宅地
- 139667円/m2
- 商業地
- 200000円/m2
|
結婚・育児の助成金
| 子育て関連の独自の取り組み |
(1)オムツ等の子育てに必要な物品を購入できるチケット(合計10,000円分)を贈呈。(2)友好都市である和歌山県有田川町産の木材で作成した積み木を贈呈(乳幼児すこやか見守り支援事業)。 |
| 出産祝い |
あり |
| 公立保育所数 |
1所(うち0歳児保育を実施している保育所:1所) |
| 私立保育所数 |
0所(うち0歳児保育を実施している保育所:-) |
| 保育所入所待機児童数 |
8人 |
| 認定こども園数 |
9園 |
預かり保育実施園数 |
公立:1園 私立:- |
| 学校給食 |
【小学校】完全給食【中学校】完全給食 |
| 公立中学校の学校選択制 |
未実施 |
| 子ども・学生等医療費助成<通院>対象年齢 |
18歳3月末まで |
子ども・学生等医療費助成<入院>対象年齢 |
18歳3月末まで |
高石市の治安・ごみ収集情報
公共料金・インフラ
| ガス料金(22m3使用した場合の月額) |
大阪瓦斯株式会社4544円 |
| 水道料金(口径20mmで20m3の月額) |
高石市2911円 |
| 下水道料金(20m3を使用した場合の月額) |
高石市2755円 |
| 下水道普及率 |
91.9% |
安心・安全
| 建物火災出火件数 |
5件
- 人口10000人当たり
- 0.90件
|
| 刑法犯認知件数 |
365件
- 人口1000人当たり
- 6.56件
|
| ハザード・防災マップ |
あり |
医療
| 一般病院総数 |
3ヶ所 |
| 一般診療所総数 |
51ヶ所 |
| 小児科医師数 |
8人
- 小児人口10000人当たり
- 11.50人
|
| 産婦人科医師数 |
2人
- 15~49歳女性人口1万人当たり
- 1.83人
|
| 介護保険料基準額(月額) |
6137円 |
ごみ
| 家庭ごみ収集(可燃ごみ) |
一部有料
|
| 家庭ごみの分別方式 |
3分別11種〔普通(可燃)ごみ 資源ごみ(カン類、ビン類、ペットボトル、プラスチック製容器包装) 不燃ごみ(せともの類、コップ、ガラス類、乾電池、電球、蛍光灯)〕 |
| 家庭ごみの戸別収集 |
実施 |
| 粗大ごみ収集 |
あり
|
| 生ごみ処理機助成金制度 |
あり
- 上限金額
- 20000円
- 上限比率
- 50.0%
|
※行政機関により公表していない地域及びデータがございます。東京23区以外の政令指定都市は、市全体のデータとして表示しています。
※提供データには細心の注意を払っておりますが、調査後に変更がある場合があります。 最新の情報につきましては各市区役所までお問い合わせいただくか、自治体HPなどをご確認ください。
高石市の暮らしデータをもっと見る