アプリで簡単 物件探し 通知 共有 アプリならではの機能を使ってみる
賃貸アパート

D-room白鳳 黄檗駅 2LDK 賃貸(賃貸マンション・アパート)

情報提供元
SUUMO
D-room白鳳
賃料 9万円  (管理費等:8000円)
礼金・敷金 18万円 / なし 保証金/敷引・償却 なし / -
交通
所在地 京都府宇治市五ケ庄日皆田周辺地図
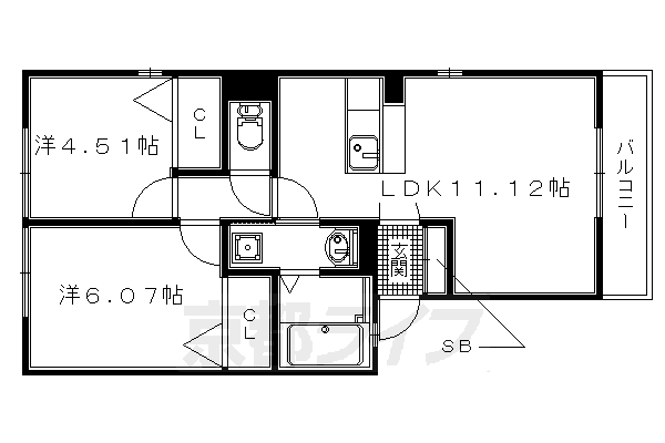
間取り 2LDK 専有面積 50.42m2
築年月 2019年5月 築年数 築6年8ヶ月
おすすめポイント
大手ハウスメーカー施工 築浅で駅チカ!生活に便利な立地です。 物件情報からエリア情報まで京都の賃貸物件紹介はお任せください!

詳細情報

賃料 9万円 管理費等 8000円
敷金 なし 礼金 18万円
保証金 なし 敷引・償却 -
更新料 - 契約期間
カード決済 -
所在地 京都府宇治市五ケ庄日皆田周辺地図
交通
建物名 D-room白鳳 
間取り 2LDK(洋6.07 洋4.51 LDK11.12) 築年月(築年数) 2019年5月(築6年8ヶ月)
専有面積 50.42㎡ 所在階/階数 1階/2階建
建物構造 軽量鉄骨  方位 南 
現況   駐車場 有 8,800円
入居可能時期 2026年1月上旬 住宅保険 あり
情報提供元 SUUMO[060H100472389687] 情報公開日
情報更新日 次回更新予定日 随時

設備など

2階以上 - 最上階 - 角部屋
駐車場(近隣含) エアコン付き バス・トイレ別
室内洗濯機置き場 追焚機能 オートロック付き
モニタ付インターホン フローリング バルコニー
ガスコンロ可 浴室乾燥機 24時間セキュリティ -
宅配ボックス - ペット相談可 - 二人入居可
設備 冷房・暖房・エアコン・オートロック・バルコニー・バス・トイレ別・トイレ・収納スペース・洗濯機置場・洗面所・BS端子・追焚機能・フローリング・浴室乾燥機・ガスコンロ可・シャンプードレッサ・温水洗浄便座・システムキッチン・モニタ付インターホン・駐輪場・風呂・クローゼット・床下収納・衣類乾燥機・カードキー・都市ガス・浄水器・浴トイレ別・洗面所独立・バイク置き場・コンロ2口以上・シューズボックス・インターネット無料・インターネット対応・室内洗濯機置き場 
リフォーム履歴 -
リノベーション履歴 -
備考 損保要/ハウスクリーニング代7.15万円 カードキー1.65万円/保証会社利用必:初回:3.5万円、月額:月額賃料等の1%+800円/二人入居可/更新料:新家賃1ヶ月/バストイレ別/バルコニー/エアコン/ガスコンロ対応/クロゼット/フローリング/シャワー付洗面台/TVインターホン/浴室乾燥機/オートロック/室内洗濯置/陽当り良好/シューズボックス/システムキッチン/南向き/追焚機能浴室/角住戸/温水洗浄便座/脱衣所/洗面所独立/駐輪場/押入/敷金不要/3口以上コンロ/全居室洋室/保証人不要/二人入居相談/バイク置場/カードキー/ネット使用料不要/浄水器/床下収納/3駅以上利用可/駅徒歩10分以内/敷地内ごみ置き場/都市ガス/BS/年度内入居可/IT重説 対応物件/巡回管理/セブンイレブン宇治五ヶ庄店(コンビニ)まで318m/ハッピーテラダ 黄檗店(スーパー)まで360m/ファミリーマート宇治東インター店(コンビニ)まで512m/ローソン宇治五ケ庄店(コンビニ)まで520m/宇治菟道郵便局(郵便局)まで776m/京都中央信用金庫 黄檗支店(銀行)まで1000m/京阪宇治線宇治駅徒歩20分/賃貸戸数:8戸 
特記事項 二人入居可・角部屋・管理人巡回・日当り良好・保証人不要/代行

省エネ性能

エネルギー消費性能 -
断熱性能 -
目安光熱費 -

京都府宇治市五ケ庄日皆田 周辺地図情報

地図
※地図上に表示される物件の位置は付近住所に所在することを表すものであり、実際の物件所在地とは異なる場合がございます。
   正確な物件所在地は、取扱い不動産会社にお問い合わせください。

不動産会社情報

お問い合わせ先 商号:(株)京都ライフ北山店
免許番号:京都府知事(11)第6353号
所在地:京都府京都市北区上賀茂岩ケ垣内町 98-2 戸田ビル1F
TEL:075-708-1711
取引態様:仲介
管理コード:K70672-101
所属協会など:(公社)近畿地区不動産公正取引協議会加盟、(公社)京都府宅地建物取引業協会会員
共有する
QRコード

    宇治市の暮らしデータ

    人口などの統計情報

    世帯数 73443世帯
    人口総数 180943人
    転入者数 6394人
    転入率(人口1000人当たり)
    35.34人
    転出者数 6409人
    転出率(人口1000人当たり)
    35.42人
    土地平均価格
    住宅地
    116144円/m2
    商業地
    241667円/m2

    結婚・育児の助成金

    子育て関連の独自の取り組み (1)市役所1階に「来庁者子育て支援コーナー」の設置(子どもと一緒に来庁した市民のために保育士による子どもの一時預かりや保育士や専門相談員による子育ての相談及び支援事業の紹介等を実施)。(2)毎年度作成の「宇治子育て情報誌」を未就学児のいる全家庭に郵送等で配布。電子書籍版を作成しスマートフォン等から手軽に閲覧可能。(3)主に未就学児を対象とした子育て世帯へLINE(ライン)による情報発信の充実。
    出産祝い なし
    公立保育所数 7所(うち0歳児保育を実施している保育所:7所)
    私立保育所数 5所(うち0歳児保育を実施している保育所:5所)
    保育所入所待機児童数 0人
    認定こども園数 14園 預かり保育実施園数 公立:3園 私立:9園
    学校給食 【小学校】完全給食【中学校】給食なし
    公立中学校の学校選択制 未実施
    子ども・学生等医療費助成<通院>対象年齢 中学校卒業まで 子ども・学生等医療費助成<入院>対象年齢 中学校卒業まで

    宇治市の治安・ごみ収集情報

    公共料金・インフラ

    ガス料金(22m3使用した場合の月額) 大阪瓦斯株式会社4544円
    水道料金(口径20mmで20m3の月額) 宇治市3412円
    下水道料金(20m3を使用した場合の月額) 宇治市3082円
    下水道普及率 98.4%

    安心・安全

    建物火災出火件数 20件
    人口10000人当たり
    1.11件
    刑法犯認知件数 573件
    人口1000人当たり
    3.19件
    ハザード・防災マップ あり

    医療

    一般病院総数 9ヶ所
    一般診療所総数 134ヶ所
    小児科医師数 33人
    小児人口10000人当たり
    16.06人
    産婦人科医師数 11人
    15~49歳女性人口1万人当たり
    3.29人
    介護保険料基準額(月額) 5900円

    ごみ

    家庭ごみ収集(可燃ごみ) 無料
    備考
    一時多量ごみ(引越し時に発生したごみ等)は有料。100リットルごとに250円。
    家庭ごみの分別方式 10分別13種〔もえるごみ もえないごみ 乾電池 スプレー缶・ボンベ缶 ライター 缶 びん ペットボトル プラマーク 古紙類(新聞・チラシ、雑誌・その他紙、ダンボール、古布)〕 拠点回収:紙パック てんぷら油 ペットボトルキャップ 蛍光管 小型家電 インクカートリッジ その他紙
    家庭ごみの戸別収集 一部実施(高齢者・身体障害者・産後ケア対象者の一部を対象に実施)
    粗大ごみ収集 あり
    備考
    有料。戸別収集。事前申込制。一時多量ごみ・大型ごみ等が対象。
    生ごみ処理機助成金制度 なし
    上限金額
    -
    上限比率
    -
    暮らしデータ提供元:生活ガイド.com
    ※行政機関により公表していない地域及びデータがございます。東京23区以外の政令指定都市は、市全体のデータとして表示しています。
    ※提供データには細心の注意を払っておりますが、調査後に変更がある場合があります。 最新の情報につきましては各市区役所までお問い合わせいただくか、自治体HPなどをご確認ください。
    OCN×ドコモ光新規お申込みで合計最大137,280円相当おトク!特典の内訳・適用条件など詳細はこちら

    宇治市内の各駅の住みやすさ

    他のエリアから探す

    宇治市の詳細地域から賃貸物件を探す

    伊勢田町宇治大久保町小倉町木幡五ケ庄神明莵道羽拍子町開町広野町槇島町明星町安田町六地蔵

    近辺の市区から探す

    京都市東山区京都市下京区京都市南区京都市伏見区京都市山科区城陽市向日市長岡京市八幡市京田辺市乙訓郡大山崎町久世郡久御山町綴喜郡井手町綴喜郡宇治田原町三島郡島本町

    周辺の駅から探す

    奈良線
    JR藤森桃山六地蔵木幡黄檗宇治JR小倉新田城陽
    京阪電気鉄道宇治線
    観月橋桃山南口六地蔵木幡黄檗三室戸宇治

    京都府宇治市で他のジャンルから探す


    掲載情報の著作権は提供元企業等に帰属します。
    Copyright:(C) 2025 Recruit Co., Ltd.
    アプリで簡単 物件探し 大手不動産サイトの情報から一括検!プッシュ通知で物件を見逃さない
    App Storeからダウンロード Google Playで手に入れよう QRコード