アプリで簡単 物件探し 通知 共有 アプリならではの機能を使ってみる
賃貸マンション

フィレール五条大宮 丹波口駅 ワンルーム 賃貸(賃貸マンション・アパート)

情報提供元
SUUMO
フィレール五条大宮
賃料 4.1万円  (管理費等:なし)
礼金・敷金 なし / なし 保証金/敷引・償却 なし / -
交通
所在地 京都府京都市下京区中堂寺前田町周辺地図
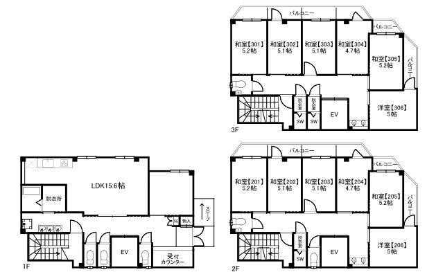
間取り ワンルーム 専有面積 8.41m2
築年月 2017年3月 築年数 築8年10ヶ月
おすすめポイント
女性専用シェアハウス!共有スペースは個々に机があるので、一人でもゆっくりと過ごせる新しいタイプのシェアハウスです!また共有部分の掃除や備品などは業者が清掃・補充するので費用負担なし!
お問い合わせ先
(株)ハウスクエスト四条大宮店
お問い合わせ先
(株)ハウスクエスト四条大宮店

詳細情報

賃料 4.1万円 管理費等 なし
敷金 なし 礼金 なし
保証金 なし 敷引・償却 -
更新料 - 契約期間 定期借家 1年
カード決済 -
所在地 京都府京都市下京区中堂寺前田町周辺地図
交通
建物名 フィレール五条大宮 
間取り ワンルーム(和5.2) 築年月(築年数) 2017年3月(築8年10ヶ月)
専有面積 8.41㎡ 所在階/階数 3階/3階建
建物構造 鉄骨  方位 北 
現況   駐車場 無    近くの駐車場を探す
入居可能時期 即時 住宅保険 なし
情報提供元 SUUMO[060H100429541553] 情報公開日
情報更新日 次回更新予定日 随時

設備など

2階以上 最上階 角部屋 -
駐車場(近隣含) - エアコン付き バス・トイレ別
室内洗濯機置き場 追焚機能 - オートロック付き
モニタ付インターホン - フローリング バルコニー -
ガスコンロ可 - 浴室乾燥機 24時間セキュリティ -
宅配ボックス - ペット相談可 - 二人入居可 -
設備 冷房・暖房・エアコン・オートロック・バス・トイレ別・トイレ・洗濯機置場・洗面所・エレベーター・フローリング・浴室乾燥機・システムキッチン・駐輪場・衣類乾燥機・都市ガス・シャワー・IHクッキングヒータ・コインランドリ−・浴トイレ別・防犯カメラ・家具付き・洗面所独立・コンロ2口以上・インターネット無料・インターネット対応・室内洗濯機置き場 
リフォーム履歴 -
リノベーション履歴 -
備考 ハウスクリーニング代 22000円/水道光熱費・ネット代 10000円/月、振替手数料 880円/月/保証会社利用必:月額合計の60%、1年更新20,000円/仲介手数料0.55ヶ月/定期借家01年/女性限定/バストイレ別/エアコン/フローリング/浴室乾燥機/オートロック/室内洗濯置/システムキッチン/脱衣所/エレベーター/洗面所独立/洗面化粧台/駐輪場/即入居可/最上階/3口以上コンロ/防犯カメラ/IHクッキングヒーター/仲手0.55ヶ月/ネット使用料不要/コインランドリー/家電付/家具付/3駅以上利用可/3沿線以上利用可/駅徒歩10分以内/上階無し/24時間ゴミ出し可/敷地内ごみ置き場/当社管理物件/和室/都市ガス/シャワールーム/敷金・礼金不要/シェアハウス/IT重説 対応物件/ローソン 大宮五条店(コンビニ)まで183m/京都島原郵便局(郵便局)まで299m/京都中央信用金庫大宮支店(銀行)まで283m/セブンイレブン 五条千本店(コンビニ)まで584m/スーパーマツモト 五条店(スーパー)まで703m/【4/15オープン】フレスコ 五条壬生川店(スーパー)まで267m/賃貸戸数:12戸 
特記事項 女性限定・最上階

省エネ性能

エネルギー消費性能 -
断熱性能 -
目安光熱費 -

京都府京都市下京区中堂寺前田町 周辺地図情報

地図
※地図上に表示される物件の位置は付近住所に所在することを表すものであり、実際の物件所在地とは異なる場合がございます。
   正確な物件所在地は、取扱い不動産会社にお問い合わせください。
お問い合わせ先
(株)ハウスクエスト四条大宮店

不動産会社情報

お問い合わせ先 商号:(株)ハウスクエスト四条大宮店
免許番号:京都府知事(5)第11502号
所在地:京都府京都市下京区黒門通四条下る下り松町 151
TEL:075-813-0337
取引態様:仲介
管理コード:0000064624
所属協会など:(公社)近畿地区不動産公正取引協議会加盟、(公社)全日本不動産協会京都府本部会員
共有する
QRコード
お問い合わせ先
(株)ハウスクエスト四条大宮店

京都市下京区の暮らしデータ

人口などの統計情報

世帯数 728744世帯
人口総数 1379529人
転入者数 85315人
転入率(人口1000人当たり)
61.84人
転出者数 80567人
転出率(人口1000人当たり)
58.40人
土地平均価格
住宅地
220880円/m2
商業地
1290411円/m2

結婚・育児の助成金

子育て関連の独自の取り組み (1)乳幼児の子育て支援機能や学童クラブ機能等を有する児童館設置。(2)こんにちはプレママ事業。(3)児童虐待未然防止に係る医療機関と子どもはぐくみ室及び京北出張所の連携。(4)子ども保健医療相談・事故防止センター設置。(5)京都はぐくみアプリ配信。(6)子育て支援コンシェルジュ育成。(7)骨髄移植手術等により免疫を喪失した子どもへのワクチン再接種費用助成制度。(8)子どもを共に育む京都市民憲章の制定、憲章の実践・普及の促進。(9)【京都安心すまい応援金】未就学の子どもがいる世帯を対象に、自己居住用として既存住宅を購入し、リフォームを行う場合に、最大200万円の応援金を交付。
出産祝い あり
公立保育所数 14所(うち0歳児保育を実施している保育所:13所)
私立保育所数 196所(うち0歳児保育を実施している保育所:188所)
保育所入所待機児童数 0人
認定こども園数 83園 預かり保育実施園数 公立:15園 私立:81園
学校給食 【小学校】完全給食【中学校】完全給食 家庭弁当等との選択制/デリバリー形式[運搬:ランチボックス、内容:完全給食] 給食なし
公立中学校の学校選択制 未実施
子ども・学生等医療費助成<通院>対象年齢 中学校卒業まで 子ども・学生等医療費助成<入院>対象年齢 中学校卒業まで

京都市下京区の治安・ごみ収集情報

公共料金・インフラ

ガス料金(22m3使用した場合の月額) 大阪瓦斯株式会社4544円
水道料金(口径20mmで20m3の月額) 京都市3014円
下水道料金(20m3を使用した場合の月額) 京都市2013円
下水道普及率 99.5%

安心・安全

建物火災出火件数 158件
人口10000人当たり
1.08件
刑法犯認知件数 8104件
人口1000人当たり
5.54件
ハザード・防災マップ あり

医療

一般病院総数 89ヶ所
一般診療所総数 1622ヶ所
小児科医師数 397人
小児人口10000人当たり
27.26人
産婦人科医師数 201人
15~49歳女性人口1万人当たり
7.16人
介護保険料基準額(月額) 7160円

ごみ

家庭ごみ収集(可燃ごみ) 有料
備考
指定ごみ袋有料。
家庭ごみの分別方式 5分別8種〔燃やすごみ 缶・びん・ペットボトル プラスチック類 小型金属類・スプレー缶 雑がみ〕 拠点回収:移動式拠点回収):古紙(新聞・ダンボール) 雑がみ 紙パック 使用済てんぷら油 古着類 乾電池 ボタン電池 充電式電池 蛍光管 水銀体温計・水銀血圧計 小型家電 磁気テープ類 インクカートリッジ リユースびん 刃物類 使い捨てライター 陶磁器製の食器 せん定枝木の枝 石油類 医薬品・農薬 化学薬品・塗料・ワックス・絵の具 洗浄剤
家庭ごみの戸別収集 一部実施(原則定点としているが、一部地域で狭路等やむを得ない事情がある場合のみ実施。また、ごみ出しが困難な高齢者や障害のある方などの生活支援の一つとして、御自宅の玄関先までごみの収集に伺う「ごみ収集福祉サービス[まごころ収集]」を実施)
粗大ごみ収集 あり
備考
有料。事前申込制。
生ごみ処理機助成金制度 なし
上限金額
-
上限比率
-
暮らしデータ提供元:生活ガイド.com
※行政機関により公表していない地域及びデータがございます。東京23区以外の政令指定都市は、市全体のデータとして表示しています。
※提供データには細心の注意を払っておりますが、調査後に変更がある場合があります。 最新の情報につきましては各市区役所までお問い合わせいただくか、自治体HPなどをご確認ください。
OCN×ドコモ光新規お申込みで合計最大137,280円相当おトク!特典の内訳・適用条件など詳細はこちら

京都市下京区内の各駅の住みやすさ

他のエリアから探す

京都市下京区の詳細地域から賃貸物件を探す

相之町悪王子町朝妻町芦刈山町新シ町安土町油小路町飴屋町綾大宮町綾材木町綾西洞院町綾堀川町石井筒町石不動之町和泉町和泉屋町市之町井筒町糸屋町因幡堂町稲荷町稲荷町稲荷町今大黒町岩滝町岩戸山町植松町植松町艮町打越町梅小路石橋町梅小路高畑町梅小路西中町梅湊町裏片町永養寺町榎木町恵美須之町夷之町夷之町夷馬場町大江町扇酒屋町大坂町大津町大堀町大宮1丁目大宮2丁目大宮3丁目大宮町小田原町柿本町鍵屋町鍵屋町傘鉾町風早町柏屋町鍛冶屋町鍛冶屋町堅田町堅田町堅田町郭巨山町金換町鎌屋町上鱗形町上夷町上金仏町上糀屋町上五条町上三之宮町上諏訪町上長福寺町上中之町上之町上之町上平野町上柳町上柳町上柳町亀屋町亀屋町烏丸2丁目唐物町雁金町雁金町観喜寺町官社殿町菅大臣町学林町元日町菊屋町菊屋町北町北不動堂町北門前町吉文字町吉文字町京極町喜吉町小石町小泉町小稲荷町幸竹町高野堂町粉川町小島町紺屋町郷之町御器屋町御供石町五条烏丸町五坊大宮町堺町堺町堺町佐竹町佐女牛井町晒屋町三軒町山王町山王町材木町材木町材木町塩竈町塩小路町塩屋町塩屋町塩屋町四条町四条堀川町七条御所ノ内北町七条御所ノ内中町七条御所ノ内西町七条御所ノ内本町七条御所ノ内南町四本松町清水町清水町志水町下鱗形町下五条町下三之宮町下長福寺町下二之宮町下平野町俊成町卓屋町新釜座町新日吉町神明町順風町杉蛭子町杉屋町朱雀北ノ口町朱雀正会町朱雀分木町朱雀宝蔵町筋屋町住吉町住吉町諏訪開町瀬戸屋町泉水町善長寺町太子山町高材木町高辻猪熊町高辻大宮町高辻町高辻西洞院町高辻堀川町竹屋之町橘町橘町橘町立中町辰巳町足袋屋町玉津島町玉本町玉屋町溜池町俵屋町俵屋町大工町大工町大黒町大黒町大黒町醍醐町大寿町茶磨屋町茶磨屋町忠庵町中堂寺鍵田町中堂寺北町中堂寺櫛笥町中堂寺庄ノ内町中堂寺西寺町中堂寺坊城町中堂寺前田町中堂寺前町中堂寺南町中堂寺壬生川町中堂寺薮ノ内町突抜1丁目月鉾町月見町土橋町葛籠屋町徹宝町天使突抜1丁目天使突抜3丁目天使突抜4丁目天神町天神前町天満町燈籠町木賊山町徳屋町富永町富永町富永町富松町中金仏町中之町中野之町永倉町永原町鍋屋町納屋町難波町匂天神町西綾小路西半町西綾小路東半町西錺屋町西側町西境町西七条赤社町西七条石井町西七条市部町西七条御前田町西七条掛越町西七条北衣田町西七条北月読町西七条北西野町西七条北東野町西七条御領町西七条中野町西七条名倉町西七条西石ケ坪町西七条西八反田町西七条東石ケ坪町西七条東御前田町西七条東久保町西七条東八反田町西七条比輪田町西七条南衣田町西七条南月読町西七条南中野町西七条南西野町西七条南東野町西七条八幡町西新屋敷上之町西新屋敷下之町西新屋敷太夫町西新屋敷中堂寺町西新屋敷中之町西高辻町西玉水町西田町西洞院町西橋詰町西前町西松屋町西八百屋町西若松町廿人講町二人司町塗師屋町塗師屋町布屋町白楽天町八王子町八文字町花畑町花屋町繁昌町坂東屋町東魚屋町東境町東塩小路町東塩小路向畑町東若松町平居町平野町平屋町毘沙門町深草町福島町福本町船鉾町麓町古御旅町仏具屋町仏具屋町仏光寺東町骨屋町骨屋町堀詰町堀之内町堀之上町本覚寺前町本燈籠町本柳水町坊門町坊門中之町真苧屋町桝屋町升屋町松川町松原中之町松本町松本町丸屋町丸屋町万寿寺町万寿寺中之町御影堂町御影町御影堂前町南夷町南京極町南町南不動堂町南八百屋町妙伝寺町妙満寺町元悪王子町本上神明町本塩竈町本神明町元両替町紅葉町文覚町屋形町薬園町矢田町八ツ柳町柳町藪下町藪之内町八幡町夕顔町要法寺町吉水町吉水町万屋町来迎堂町若松町若宮町若宮町若宮町和気町

近辺の市区から探す

大津市京都市北区京都市上京区京都市左京区京都市中京区京都市東山区京都市南区京都市右京区京都市伏見区京都市山科区京都市西京区宇治市向日市長岡京市乙訓郡大山崎町久世郡久御山町

周辺の駅から探す

山陰本線
京都梅小路京都西丹波口二条円町花園太秦
京都市烏丸線
今出川丸太町烏丸御池四条五条京都九条十条くいな橋
阪急電鉄京都線
京都河原町烏丸大宮西院西京極洛西口

掲載情報の著作権は提供元企業等に帰属します。
Copyright:(C) 2025 Recruit Co., Ltd.
アプリで簡単 物件探し 大手不動産サイトの情報から一括検!プッシュ通知で物件を見逃さない
App Storeからダウンロード Google Playで手に入れよう QRコード